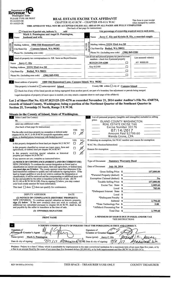
Property
Account |
| Property ID: | 659175 | Abbreviated Legal Description: | THE COURTYARD CONDO APT G-3 1/31 INT |
| Geographic ID: | S6423-00-0000G-3 | Agent Code: | |
| Type: | Real | | |
| Tax Area: | 100 - APPRAISER-OH Schl Dist, in OH | Land Use Code | 14 |
| Open Space: | N | DFL | N |
| Historic Property: | N | Remodel Property: | N |
| Multi-Family Redevelopment: | N | | |
| Township: | | Section: | |
| Range: | |
Location |
| Address: | 730 SE 8TH AVE BLDG H APT 202 OAK HARBOR, WA 98277 | Mapsco: | |
| Neighborhood: | 12*OH-courtyard | Map ID: | 88 |
| Neighborhood CD: | 12*OHctyrd |
Owner |
| Name: | WOODY, AUBRI R | Owner ID: | 279061 |
| Mailing Address: | 730 SE 8TH AVE APT H202 OAK HARBOR, WA 98277-4765 | % Ownership: | 100.0000000000% |
| | | Exemptions: | |
Taxes and Assessment Details
Values
| (+) Improvement Homesite Value: | + | $0 | |
| (+) Improvement Non-Homesite Value: | + | $197,303 | |
| (+) Land Homesite Value: | + | $0 | |
| (+) Land Non-Homesite Value: | + | $110,000 | |
| (+) Curr Use (HS): | + | $0 | $0 |
| (+) Curr Use (NHS): | + | $0 | $0 |
| | | -------------------------- | |
| (=) Market Value: | = | $307,303 | |
| (–) Productivity Loss: | – | $0 | |
| | | -------------------------- | |
| (=) Subtotal: | = | $307,303 | |
| (+) Senior Appraised Value: | + | $0 | |
| (+) Non-Senior Appraised Value: | + | $307,303 | |
| | | -------------------------- | |
| (=) Total Appraised Value: | = | $307,303 | |
| (–) Senior Exemption Loss: | – | $0 | |
| (–) Exemption Loss: | – | $0 | |
| | | -------------------------- | |
| (=) Taxable Value: | = | $307,303 | |
Taxing Jurisdiction
| Owner: | WOODY, AUBRI R | | |
| % Ownership: | 100.0000000000% | | |
| Total Value: | $307,303 | | |
| Tax Area: | 100 - APPRAISER-OH Schl Dist, in OH |
| CF | Conservation Futures | 0.0316035091 | $307,303 | $307,303 | $9.71 | | |
| CEM1 | Cemetery #1 | 0.0040320932 | $307,303 | $307,303 | $1.24 | | |
| COH | City of Oak Harbor | 2.3001546061 | $307,303 | $307,303 | $706.84 | | |
| OAKBOND | City of Oak Harbor BOND | 0.1926904192 | $307,303 | $307,303 | $59.21 | | |
| HOBOND | Hospital BOND | 0.1910887512 | $307,303 | $307,303 | $58.72 | | |
| HOGEN | Hospital GEN | 0.3902502903 | $307,303 | $307,303 | $119.93 | | |
| CE | County Current Expense | 0.3708482477 | $307,303 | $307,303 | $113.96 | | |
| ISLANDEMS | Hospital GEN (EMS) | 0.5000000000 | $307,303 | $307,303 | $153.65 | | |
| LIB | Library Sno-Isle GEN | 0.3153421757 | $307,303 | $307,303 | $96.91 | | |
| NWHIDPRMT | P & R N Whidbey GEN | 0.2004466701 | $307,303 | $307,303 | $61.60 | | |
| SCH201MO | School 201 Enrichment | 1.8559231640 | $307,303 | $307,303 | $570.33 | | |
| ST | State School | 1.3035497053 | $307,303 | $307,303 | $400.58 | | |
| ST2 | State School Part 2 | 0.8169543533 | $307,303 | $307,303 | $251.05 | | |
| | Total Tax Rate: | 8.4728839852 | | | | | |
| | | | | Taxes w/Current Exemptions: | $2,603.73 | | |
| | | | | Taxes w/o Exemptions: | $2,603.73 | | |
Improvement / Building
| Improvement #1: | RESIDENTIAL | State Code: | Y | 969.3 sqft | Value: | $197,303 |
| Bathrooms: | 2 | Bedrooms: | 2 | | Ceiling: | DRYWALL PAINTED | Exterior Wall/Cover: | VINYL | | Floor Covering: | CARPET 100% | Floor Structure: | WOOD W/SUBFLOOR | | Foundation: | CONCRETE | Heating: | FHA ELECTRIC | | Interior Finish: | DRYWALL PAINT | Plumbing Fixture Cnt: | 9 | | Roof Slope: | 4" IN 12" | Roof Structure/Cover: | CJ ASPHALT |
|
| | Type | Description | Class CD | Sub Class CD | Year Built | Area |
| | BAS | BASE/MAIN FLOOR | 3 | 0 | 1991 | 969.3 |
| | OWR | OPEN WOOD PORCH W/STEPS/ROOF | 3 | 0 | 1991 | 20.3 |
| | UTY | STORAGE/UTILITY | 3 | 0 | 1991 | 18.0 |
| | OWR | OPEN WOOD PORCH W/STEPS/ROOF | 3 | 0 | 1991 | 48.0 |
| | OCP | OPEN CARPORT | 3 | 0 | 1991 | 162.0 |
| | oPV1 | PV/ASPH 2" | 3 | 0 | 1991 | 0.0 |
Sketch
Property Image
Land
| 1 | 61 | MULTIPLE RESIDENCES | 0.0452 | 1969.14 | 0.00 | 0.00 | 1.00 | $110,000 | $0 |
Roll Value History
| 2026 | N/A | N/A | N/A | N/A | N/A |
| 2025 | $197,303 | $110,000 | $0 | $307,303 | $307,303 |
| 2024 | $199,762 | $110,000 | $0 | $309,762 | $309,762 |
| 2023 | $121,537 | $90,000 | $0 | $211,537 | $211,537 |
| 2022 | $111,684 | $65,000 | $0 | $176,684 | $176,684 |
| 2021 | $98,645 | $65,000 | $0 | $163,645 | $163,645 |
| 2020 | $95,819 | $30,000 | $0 | $125,819 | $125,819 |
| 2019 | $67,627 | $75,000 | $0 | $142,627 | $142,627 |
| 2018 | $67,827 | $65,000 | $0 | $132,827 | $132,827 |
| 2017 | $65,271 | $19,000 | $0 | $84,271 | $84,271 |
| 2016 | $66,139 | $19,000 | $0 | $85,139 | $85,139 |
| 2015 | $67,009 | $19,000 | $0 | $86,009 | $86,009 |
| 2014 | $67,878 | $19,000 | $0 | $86,878 | $86,878 |
| 2013 | $68,748 | $19,000 | $0 | $87,748 | $87,748 |
| 2012 | $81,341 | $29,400 | $0 | $110,741 | $110,741 |
| 2011 | $81,341 | $29,400 | $0 | $110,741 | $110,741 |
| 2010 | $83,498 | $29,028 | $0 | $112,526 | $112,526 |
| 2009 | $87,041 | $60,760 | $0 | $147,801 | $147,801 |
| 2008 | $88,095 | $64,484 | $0 | $152,579 | $152,579 |
| 2007 | $89,150 | $49,000 | $0 | $138,150 | $138,150 |
Deed and Sales History
| 1 | 03/14/2017 | WD | Warranty Deed | EICH, LANCE C | WOODY, AUBRI R | | | $134,000.00 | 28550 | 4419372 |
| 2 | 09/17/2010 | BARGSLD | Bargain And Sale Deed | FEDERAL HOME LOAN MORTGAGE CORPORATION | EICH, LANCE C | | | $0.00 | 2356 | 4281392 |
| 3 | 03/02/2010 | TRUSTEED | Trustee's Deed | HAMMER, ALICE M | , | | | $99,650.00 | 533 | 4269887 |
| 4 | 01/04/2007 | WD | Warranty Deed | MOSIMAN, JUSTIN T | HAMMER, ALICE M | | | $159,900.00 | 70074 | 4191274 |
| 5 | 02/12/2004 | WD | Warranty Deed | HATT, CELINA M | MOSIMAN, JUSTIN T | | | $90,500.00 | 40537 | 4091134 |
| 6 | 10/03/2001 | WD | Warranty Deed | HATT, CELINA M | HATT, CELINA M | | | $0.00 | 0 | 20044631 |
| 7 | 07/11/2001 | PRD | Personal Representatives Deed | BLOW, RICHARD T | PHILLIPS, MAIKO KAREN | | | $0.00 | 12700 | 20037535 |
| 8 | 07/09/2001 | WD | Warranty Deed | PHILLIPS, MAIKO KAREN | HATT, CELINA M | | | $74,900.00 | 12701 | 20037536 |
| 9 | 02/01/1992 | WD | Warranty Deed | ISLAND, CONST & | BLOW, RICHARD T | | | $62,500.00 | 20618 | 92003007 |
| 10 | 12/01/1991 | QCD | Quit Claim Deed | BLOW, RICHARD T | BLOW, RICHARD T | | | $0.00 | 20619 | 92003008 |
| 11 | 01/01/1900 | OTHER | Other - Misc. Documents | Unknown | ISLAND, CONST & | | | $0.00 | 6258 | 90021570 |
Payout Agreement
| No payout information available.. |