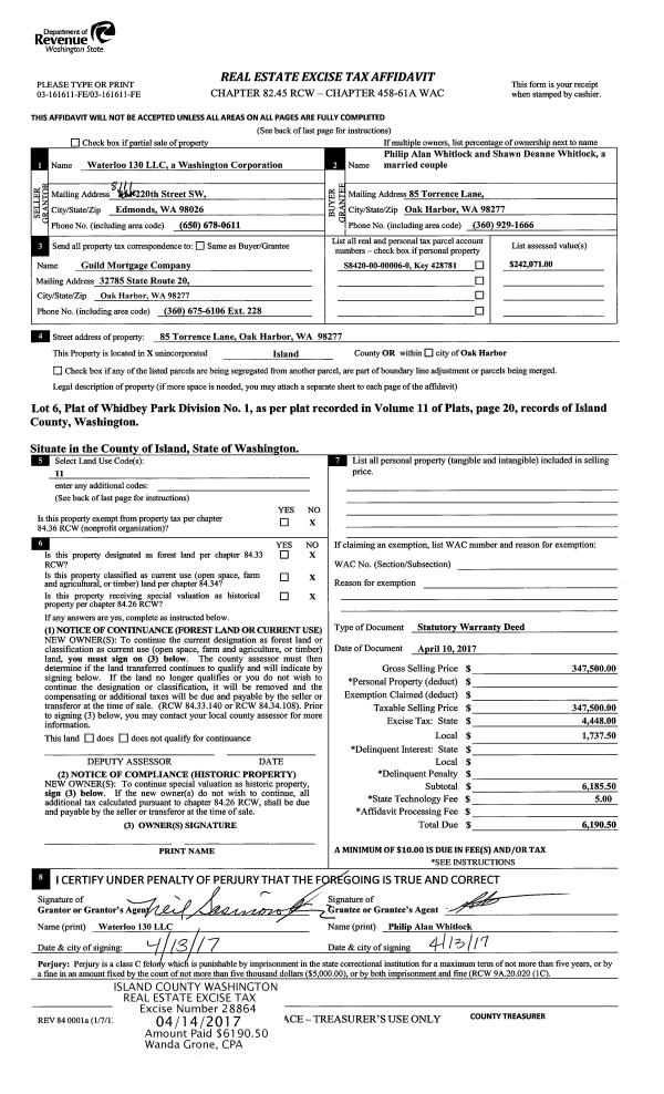
Property
Account |
| Property ID: | 659763 | Abbreviated Legal Description: | LOT 1 SP 24-90.22922.418-3620 V2 SP P288 AF#91005752 EX WLY 40' MEAS PARA/TO WLN |
| Geographic ID: | R22922-418-3420 | Agent Code: | |
| Type: | Real | | |
| Tax Area: | 710 - APPRAISER-S Whid Schl Dist, outside Langley, improved & 1 acre or less | Land Use Code | 11 |
| Open Space: | N | DFL | N |
| Historic Property: | N | Remodel Property: | N |
| Multi-Family Redevelopment: | N | | |
| Township: | 29 | Section: | 22 |
| Range: | R2 |
Location |
| Address: | 1461 GREEN LAUREL PLACE FREELAND, WA 98249 | Mapsco: | |
| Neighborhood: | Cycle 3 | Map ID: | 336 |
| Neighborhood CD: | 3 |
Owner |
| Name: | GOINS TTEE, GARY | Owner ID: | 293698 |
| Mailing Address: | BARBARA MOSHER, TTEE PO BOX 558 LANGLEY, WA 98260 | % Ownership: | 100.0000000000% |
| | | Exemptions: | |
Taxes and Assessment Details
Values
| (+) Improvement Homesite Value: | + | $0 | |
| (+) Improvement Non-Homesite Value: | + | $396,809 | |
| (+) Land Homesite Value: | + | $0 | |
| (+) Land Non-Homesite Value: | + | $360,000 | |
| (+) Curr Use (HS): | + | $0 | $0 |
| (+) Curr Use (NHS): | + | $0 | $0 |
| | | -------------------------- | |
| (=) Market Value: | = | $756,809 | |
| (–) Productivity Loss: | – | $0 | |
| | | -------------------------- | |
| (=) Subtotal: | = | $756,809 | |
| (+) Senior Appraised Value: | + | $0 | |
| (+) Non-Senior Appraised Value: | + | $756,809 | |
| | | -------------------------- | |
| (=) Total Appraised Value: | = | $756,809 | |
| (–) Senior Exemption Loss: | – | $0 | |
| (–) Exemption Loss: | – | $0 | |
| | | -------------------------- | |
| (=) Taxable Value: | = | $756,809 | |
Taxing Jurisdiction
| Owner: | GOINS TTEE, GARY | | |
| % Ownership: | 100.0000000000% | | |
| Total Value: | $756,809 | | |
| Tax Area: | 710 - APPRAISER-S Whid Schl Dist, outside Langley, improved & 1 acre or less |
| CF | Conservation Futures | 0.0316035091 | $756,809 | $756,809 | $23.92 | | |
| FIRE3 | Fire & Rescue Dist #3 S Whidbey GEN | 1.2004855531 | $756,809 | $756,809 | $908.54 | | |
| HOBOND | Hospital BOND | 0.1910887512 | $756,809 | $756,809 | $144.62 | | |
| HOGEN | Hospital GEN | 0.3902502903 | $756,809 | $756,809 | $295.34 | | |
| CE | County Current Expense | 0.3708482477 | $756,809 | $756,809 | $280.66 | | |
| CR | County Roads | 0.4584763726 | $756,809 | $756,809 | $346.98 | | |
| ISLANDEMS | Hospital GEN (EMS) | 0.5000000000 | $756,809 | $756,809 | $378.40 | | |
| LIB | Library Sno-Isle GEN | 0.3153421757 | $756,809 | $756,809 | $238.65 | | |
| PORTWHID | Port of S Whidbey GEN | 0.1094540357 | $756,809 | $756,809 | $82.84 | | |
| SCH206BOND | School 206 BOND | 0.3161759235 | $756,809 | $756,809 | $239.28 | | |
| SCH206MO | School 206 Enrichment | 0.4547169547 | $756,809 | $756,809 | $344.13 | | |
| ST | State School | 1.3035497053 | $756,809 | $756,809 | $986.54 | | |
| ST2 | State School Part 2 | 0.8169543533 | $756,809 | $756,809 | $618.28 | | |
| SWHIDPRBD | P & R S Whidbey BOND | 0.0152817568 | $756,809 | $756,809 | $11.57 | | |
| SWHIDPRBD2 | P & R S Whidbey BOND2 | 0.0138911264 | $756,809 | $756,809 | $10.51 | | |
| SWHIDPRMT | P & R S Whidbey GEN | 0.2053334452 | $756,809 | $756,809 | $155.40 | | |
| | Total Tax Rate: | 6.6934522006 | | | | | |
| | | | | Taxes w/Current Exemptions: | $5,065.66 | | |
| | | | | Taxes w/o Exemptions: | $5,065.66 | | |
Improvement / Building
| Improvement #1: | RESIDENTIAL | State Code: | Y | 1578.0 sqft | Value: | $396,809 |
| Bathrooms: | 2 | Bedrooms: | 3 | | Ceiling: | DRYWALL PAINTED | Exterior Wall/Cover: | CEMENT FIBER | | Floor Covering: | HARDWOOD/CARP 20-80 | Floor Structure: | WOOD W/SUBFLOOR | | Foundation: | CONCRETE | Heating: | FHA GAS | | Interior Finish: | DRYWALL PAINT | Plumbing Fixture Cnt: | 11 | | Roof Slope: | 8" IN 12" | Roof Structure/Cover: | CJ ASPHALT |
|
| | Type | Description | Class CD | Sub Class CD | Year Built | Area |
| | BAS | BASE/MAIN FLOOR | 4 | 0 | 2005 | 1578.0 |
| | AGR | ATTACHED GARAGE | 4 | 0 | 2005 | 702.0 |
| | OWP | OPEN WOOD PORCH W/STEPS | 4 | 0 | 2005 | 55.6 |
| | OWC | OPEN WOOD PORCH W/STEPS/ROOF/C | 4 | 0 | 2005 | 498.5 |
Sketch
Property Image
Land
| 1 | 16 | AC (00.51-01.00) | 0.6500 | 28314.00 | 0.00 | 0.00 | 1.00 | $360,000 | $0 |
Roll Value History
| 2026 | N/A | N/A | N/A | N/A | N/A |
| 2025 | $396,809 | $360,000 | $0 | $756,809 | $756,809 |
| 2024 | $401,464 | $340,000 | $0 | $741,464 | $741,464 |
| 2023 | $406,119 | $300,000 | $0 | $706,119 | $706,119 |
| 2022 | $371,964 | $280,000 | $0 | $651,964 | $651,964 |
| 2021 | $327,124 | $220,000 | $0 | $547,124 | $547,124 |
| 2020 | $317,070 | $180,000 | $0 | $497,070 | $497,070 |
| 2019 | $225,209 | $190,000 | $0 | $415,209 | $415,209 |
| 2018 | $225,839 | $180,000 | $0 | $405,839 | $405,839 |
| 2017 | $227,079 | $135,000 | $0 | $362,079 | $362,079 |
| 2016 | $229,602 | $125,000 | $0 | $354,602 | $354,602 |
| 2015 | $232,124 | $100,000 | $0 | $332,124 | $332,124 |
| 2014 | $234,648 | $100,000 | $0 | $334,648 | $334,648 |
| 2013 | $239,270 | $100,000 | $0 | $339,270 | $339,270 |
| 2012 | $243,425 | $110,500 | $0 | $353,925 | $353,925 |
| 2011 | $246,020 | $130,000 | $0 | $376,020 | $376,020 |
| 2010 | $259,335 | $130,000 | $0 | $389,335 | $389,335 |
| 2009 | $267,515 | $160,000 | $0 | $427,515 | $427,515 |
| 2008 | $270,628 | $121,000 | $0 | $391,628 | $391,628 |
| 2007 | $270,954 | $108,750 | $0 | $379,704 | $379,704 |
Deed and Sales History
| 1 | 03/06/2020 | QCD | Quit Claim Deed | GOINS, GARY | GOINS TTEE, GARY | | | $0.00 | 42325 | 4482658 |
| 2 | 04/20/2017 | WD | Warranty Deed | HENRIKSEN, PER A | GOINS, GARY | | | $419,000.00 | 29019 | 4421386 |
| 3 | 06/14/2005 | WD | Warranty Deed | WOODRIDGE HOMES INC, | HENRIKSEN, PER A | | | $60,000.00 | 52787 | 4137673 |
| 4 | 05/24/2004 | WD | Warranty Deed | Unknown | WOODRIDGE HOMES INC, | | | $50,000.00 | 42173 | 410510 |
| 5 | 03/24/2003 | BLA | DNU - Boundary Line Adjustment | STANLEY, EDWARD F | STANLEY, EDWARD F & | | | $0.00 | 69774 | 4025079 |
| 6 | 07/10/2002 | ESTSEPPROP | Establish Separate Property | STANLEY, EDWARD F & | STANLEY, EDWARD F | | | $0.00 | 22919 | 4026694 |
| 7 | 01/01/1900 | OTHER | Other - Misc. Documents | Unknown | STANLEY, EDWARD F | | | $0.00 | 94218 | 89013867 |
Payout Agreement
| No payout information available.. |