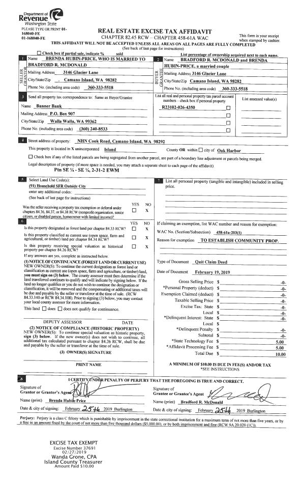
Property
Account |
| Property ID: | 65994 | Abbreviated Legal Description: | 14 - IN GL3 TGW ADJ TIDES BG MC SEC 21 & 22 S40' ANG/ L 86*30' 85.8' TPB ANG/ L93 L93*30 210.5' ANG/R 93*30' 45 ANG/R 86*30' 210.5' ANG/ R/ 93*30' 45'TPB |
| Geographic ID: | R23022-370-0100 | Agent Code: | |
| Type: | Real | | |
| Tax Area: | 310 - APPRAISER-Cpvl Schl Dist, outside Cpvl, improved & 1 acre or less | Land Use Code | 11 |
| Open Space: | N | DFL | N |
| Historic Property: | N | Remodel Property: | N |
| Multi-Family Redevelopment: | N | | |
| Township: | 30 | Section: | 22 |
| Range: | R2 |
Location |
| Address: | 3723 QUAIL WALK LN GREENBANK, WA 98253 | Mapsco: | |
| Neighborhood: | Cycle 3 | Map ID: | 405 |
| Neighborhood CD: | 3 |
Owner |
| Name: | BORDEN, GAIL PETER | Owner ID: | 285838 |
| Mailing Address: | BROOKE T BORDEN 1918 LAUDERDALE ST HOUSTON, TX 77030 | % Ownership: | 100.0000000000% |
| | | Exemptions: | |
Taxes and Assessment Details
Values
| (+) Improvement Homesite Value: | + | $0 | |
| (+) Improvement Non-Homesite Value: | + | $121,997 | |
| (+) Land Homesite Value: | + | $0 | |
| (+) Land Non-Homesite Value: | + | $625,450 | |
| (+) Curr Use (HS): | + | $0 | $0 |
| (+) Curr Use (NHS): | + | $0 | $0 |
| | | -------------------------- | |
| (=) Market Value: | = | $747,447 | |
| (–) Productivity Loss: | – | $0 | |
| | | -------------------------- | |
| (=) Subtotal: | = | $747,447 | |
| (+) Senior Appraised Value: | + | $0 | |
| (+) Non-Senior Appraised Value: | + | $747,447 | |
| | | -------------------------- | |
| (=) Total Appraised Value: | = | $747,447 | |
| (–) Senior Exemption Loss: | – | $0 | |
| (–) Exemption Loss: | – | $0 | |
| | | -------------------------- | |
| (=) Taxable Value: | = | $747,447 | |
Taxing Jurisdiction
| Owner: | BORDEN, GAIL PETER | | |
| % Ownership: | 100.0000000000% | | |
| Total Value: | $747,447 | | |
| Tax Area: | 310 - APPRAISER-Cpvl Schl Dist, outside Cpvl, improved & 1 acre or less |
| CF | Conservation Futures | 0.0316035091 | $747,447 | $747,447 | $23.62 | | |
| CEM2 | Cemetery #2 | 0.0095056933 | $747,447 | $747,447 | $7.11 | | |
| FIRE5 | Fire & Rescue Dist #5 C Whidbey GEN | 1.2008080668 | $747,447 | $747,447 | $897.54 | | |
| FIRE5BOND | Fire & Rescue Dist #5 C Whidbey BOND | 0.1400090713 | $747,447 | $747,447 | $104.65 | | |
| HOBOND | Hospital BOND | 0.1910887512 | $747,447 | $747,447 | $142.83 | | |
| HOGEN | Hospital GEN | 0.3902502903 | $747,447 | $747,447 | $291.69 | | |
| CE | County Current Expense | 0.3708482477 | $747,447 | $747,447 | $277.19 | | |
| CR | County Roads | 0.4584763726 | $747,447 | $747,447 | $342.69 | | |
| ISLANDEMS | Hospital GEN (EMS) | 0.5000000000 | $747,447 | $747,447 | $373.72 | | |
| LIB | Library Sno-Isle GEN | 0.3153421757 | $747,447 | $747,447 | $235.70 | | |
| LIBCAP | Library Sno-Isle BOND (Cap Fac Imp Area) | 0.0543427938 | $747,447 | $747,447 | $40.62 | | |
| POCOUP | Port of Coupeville GEN | 0.1093371703 | $747,447 | $747,447 | $81.72 | | |
| POCOUPIDD | Port of Coupeville IDD | 0.3409740022 | $747,447 | $747,447 | $254.86 | | |
| COUPSDTECH | School 204 CP (TECH) | 0.7545480007 | $747,447 | $747,447 | $563.98 | | |
| SCH204MO | School 204 Enrichment | 0.6716186034 | $747,447 | $747,447 | $502.00 | | |
| ST | State School | 1.3035497053 | $747,447 | $747,447 | $974.33 | | |
| ST2 | State School Part 2 | 0.8169543533 | $747,447 | $747,447 | $610.63 | | |
| | Total Tax Rate: | 7.6592568070 | | | | | |
| | | | | Taxes w/Current Exemptions: | $5,724.88 | | |
| | | | | Taxes w/o Exemptions: | $5,724.88 | | |
Improvement / Building
| Improvement #1: | RESIDENTIAL | State Code: | Y | 666.0 sqft | Value: | $121,997 |
| Bathrooms: | 1 | Ceiling: | TONGUE & GROOVE | | Exterior Wall/Cover: | WOOD SIDING | Floor Covering: | HARDWOOD 100% | | Floor Structure: | WOOD W/SUBFLOOR | Foundation: | PEIRS | | Heating: | (NONE) | Interior Finish: | DRYWALL PAINT | | Plumbing Fixture Cnt: | 4 | Roof Slope: | 4" IN 12" | | Roof Structure/Cover: | ALUM LIGHT |   |   |
|
| | Type | Description | Class CD | Sub Class CD | Year Built | Area |
| | BAS | BASE/MAIN FLOOR | 3 | 0 | 1970 | 666.0 |
| | UTY | STORAGE/UTILITY | 3 | 0 | 1970 | 200.0 |
| | OWP | OPEN WOOD PORCH W/STEPS | 3 | 0 | 1970 | 732.7 |
| | ENP | ENCLOSED PORCH | 3 | 0 | 1970 | 168.0 |
Sketch
Property Image
Land
| 1 | LB | LOW BANK | 0.0000 | 0.00 | 45.00 | 0.00 | 1.00 | $625,000 | $0 |
| 2 | 55 | TIDES | 0.0000 | 0.00 | 45.00 | 0.00 | 1.00 | $450 | $0 |
Roll Value History
| 2026 | N/A | N/A | N/A | N/A | N/A |
| 2025 | $121,997 | $625,450 | $0 | $747,447 | $747,447 |
| 2024 | $123,811 | $600,450 | $0 | $724,261 | $724,261 |
| 2023 | $125,625 | $575,450 | $0 | $701,075 | $701,075 |
| 2022 | $115,404 | $575,450 | $0 | $690,854 | $690,854 |
| 2021 | $101,780 | $400,450 | $0 | $502,230 | $502,230 |
| 2020 | $99,315 | $350,450 | $0 | $449,765 | $449,765 |
| 2019 | $60,393 | $350,450 | $0 | $410,843 | $410,843 |
| 2018 | $40,865 | $300,450 | $0 | $341,315 | $341,315 |
| 2017 | $41,197 | $300,450 | $0 | $341,647 | $341,647 |
| 2016 | $41,861 | $300,450 | $0 | $342,311 | $342,311 |
| 2015 | $42,526 | $300,450 | $0 | $342,976 | $342,976 |
| 2014 | $43,191 | $300,450 | $0 | $343,641 | $343,641 |
| 2013 | $29,304 | $298,017 | $0 | $327,321 | $327,321 |
| 2012 | $29,304 | $298,017 | $0 | $327,321 | $327,321 |
| 2011 | $29,304 | $298,017 | $0 | $327,321 | $327,321 |
| 2010 | $29,304 | $298,017 | $0 | $327,321 | $327,321 |
| 2009 | $30,246 | $372,409 | $0 | $402,655 | $402,655 |
| 2008 | $30,760 | $409,605 | $0 | $440,365 | $440,365 |
| 2007 | $29,125 | $355,728 | $0 | $384,853 | $384,853 |
Deed and Sales History
| 1 | 06/26/2018 | WD | Warranty Deed | LINBURGH CABIN LLC | BORDEN, GAIL PETER | | | $501,000.00 | 34816 | 4447282 |
| 2 | 11/16/2015 | QCD | Quit Claim Deed | THE LINBURGH CABIN TRUST | LINBURGH CABIN LLC | | | $0.00 | 22334 | 4390335 |
| 3 | 07/03/2006 | QCD | Quit Claim Deed | LINBURGH TRUSTEE, DONNAMAE | THE LINBURGH CABIN TRUST, | | | $0.00 | 65187 | 4189236 |
| 4 | 07/12/2001 | QCD | Quit Claim Deed | LINBURGH, DONNAMAE | LINBURGH TRUSTEE, DONNAMAE | | | $0.00 | 12608 | 20036990 |
| 5 | 02/01/1982 | TRUSTEED | Trustee's Deed | MCDONALD, EVELYN M | LINBURGH, DONNAMAE | | | $1.00 | 20354 | 393150 |
| 6 | 01/01/1900 | OTHER | Other - Misc. Documents | Unknown | MCDONALD, EVELYN M | | | $0.00 | 0 | 0 |
Payout Agreement
| No payout information available.. |