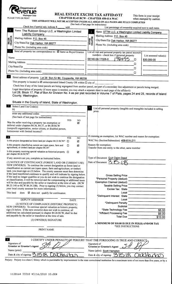
Property
Account |
| Property ID: | 660225 | Abbreviated Legal Description: | HIGHLANDS CAMANO LOT 1 SP 31-90.7125.00.00002.0 V2 SP P289-90 AF#91006180 EX PT TO IS CO AF#91013451 |
| Geographic ID: | S7125-00-00002-1 | Agent Code: | |
| Type: | Real | | |
| Tax Area: | 542 - APPRAISER-Stan/Cam Schl Dist, Special Dist, improved, greater than 1 acre | Land Use Code | 11 |
| Open Space: | N | DFL | N |
| Historic Property: | N | Remodel Property: | N |
| Multi-Family Redevelopment: | N | | |
| Township: | | Section: | |
| Range: | |
Location |
| Address: | 1328 SETH DR CAMANO ISLAND, WA 98282 | Mapsco: | |
| Neighborhood: | 58RscamWF-South Cam | Map ID: | 874 |
| Neighborhood CD: | 58RscamWF |
Owner |
| Name: | NABAVI, MELUD | Owner ID: | 304255 |
| Mailing Address: | 1328 SETH DR CAMANO ISLAND, WA 98282 | % Ownership: | 100.0000000000% |
| | | Exemptions: | |
Taxes and Assessment Details
Values
| (+) Improvement Homesite Value: | + | $0 | |
| (+) Improvement Non-Homesite Value: | + | $739,944 | |
| (+) Land Homesite Value: | + | $0 | |
| (+) Land Non-Homesite Value: | + | $725,000 | |
| (+) Curr Use (HS): | + | $0 | $0 |
| (+) Curr Use (NHS): | + | $0 | $0 |
| | | -------------------------- | |
| (=) Market Value: | = | $1,464,944 | |
| (–) Productivity Loss: | – | $0 | |
| | | -------------------------- | |
| (=) Subtotal: | = | $1,464,944 | |
| (+) Senior Appraised Value: | + | $0 | |
| (+) Non-Senior Appraised Value: | + | $1,464,944 | |
| | | -------------------------- | |
| (=) Total Appraised Value: | = | $1,464,944 | |
| (–) Senior Exemption Loss: | – | $0 | |
| (–) Exemption Loss: | – | $0 | |
| | | -------------------------- | |
| (=) Taxable Value: | = | $1,464,944 | |
Taxing Jurisdiction
| Owner: | NABAVI, MELUD | | |
| % Ownership: | 100.0000000000% | | |
| Total Value: | $1,464,944 | | |
| Tax Area: | 542 - APPRAISER-Stan/Cam Schl Dist, Special Dist, improved, greater than 1 acre |
| CF | Conservation Futures | 0.0316035091 | $1,464,944 | $1,464,944 | $46.30 | | |
| EMS1 | Fire & Rescue Dist #1 Camano GEN (EMS) | 0.3677864386 | $1,464,944 | $1,464,944 | $538.79 | | |
| FIRE1 | Fire & Rescue Dist #1 Camano GEN | 1.2502910536 | $1,464,944 | $1,464,944 | $1,831.61 | | |
| FIRE1BOND | Fire & Rescue Dist #1 Camano BOND | 0.1570001679 | $1,464,944 | $1,464,944 | $230.00 | | |
| CE | County Current Expense | 0.3708482477 | $1,464,944 | $1,464,944 | $543.27 | | |
| CR | County Roads | 0.4584763726 | $1,464,944 | $1,464,944 | $671.64 | | |
| LCIB | Library Sno-Isle BOND (Camano Island) | 0.0396325772 | $1,464,944 | $1,464,944 | $58.06 | | |
| LIB | Library Sno-Isle GEN | 0.3153421757 | $1,464,944 | $1,464,944 | $461.96 | | |
| SCH205_401 | School 205-401 Enrichment | 1.2698420524 | $1,464,944 | $1,464,944 | $1,860.25 | | |
| SCH205BOND | School 205-401 BOND | 0.9396497583 | $1,464,944 | $1,464,944 | $1,376.53 | | |
| ST | State School | 1.3035497053 | $1,464,944 | $1,464,944 | $1,909.63 | | |
| ST2 | State School Part 2 | 0.8169543533 | $1,464,944 | $1,464,944 | $1,196.79 | | |
| | Total Tax Rate: | 7.3209764117 | | | | | |
| | | | | Taxes w/Current Exemptions: | $10,724.83 | | |
| | | | | Taxes w/o Exemptions: | $10,724.83 | | |
Improvement / Building
| Improvement #1: | RESIDENTIAL | State Code: | Y | 2792.5 sqft | Value: | $739,944 |
| Bathrooms: | 2.5 | Bedrooms: | 3 | | Ceiling: | DRYWALL PAINTED | Cooling: | HEAT PUMP/CONV/V | | Exterior Wall/Cover: | WOOD SIDING | Floor Covering: | HARDWOOD/CARP 20-80 | | Floor Structure: | WOOD W/SUBFLOOR | Foundation: | CONCRETE | | Interior Finish: | DRYWALL PAINT | Plumbing Fixture Cnt: | 13 | | Roof Slope: | 5" IN 12" | Roof Structure/Cover: | CJ ASPHALT |
|
| | Type | Description | Class CD | Sub Class CD | Year Built | Area |
| | BAS | BASE/MAIN FLOOR | 4 | 0 | 1995 | 1803.5 |
| | OP4 | OPEN PORCH W/CEILING-ROOF | 4 | 0 | 1995 | 108.0 |
| | DGR | DETACHED GARAGE | 4 | 0 | 2019 | 1296.0 |
| | BIG | BUILT IN GARAGE | 4 | 0 | 1995 | 833.0 |
| | UPH | HALF STORY | 4 | 0 | 1995 | 989.0 |
| | OWP | OPEN WOOD PORCH W/STEPS | 4 | 0 | 1995 | 230.0 |
| | OWP | OPEN WOOD PORCH W/STEPS | 4 | 0 | 1995 | 357.8 |
| | ENP | ENCLOSED PORCH | 4 | 0 | 2019 | 432.0 |
| | DGR | DETACHED GARAGE | 4 | 0 | 1995 | 800.0 |
| | ATF | ATTIC FINISHED | 4 | 0 | 1995 | 864.0 |
Sketch
Property Image
Land
| 1 | HB | HIGH BLUFF | 2.3700 | 103237.20 | 159.00 | 0.00 | 1.00 | $725,000 | $0 |
Roll Value History
| 2026 | N/A | N/A | N/A | N/A | N/A |
| 2025 | $739,944 | $725,000 | $0 | $1,464,944 | $1,464,944 |
| 2024 | $748,329 | $700,000 | $0 | $1,448,329 | $1,448,329 |
| 2023 | $754,616 | $700,000 | $0 | $1,454,616 | $1,454,616 |
| 2022 | $689,390 | $600,000 | $0 | $1,289,390 | $1,289,390 |
| 2021 | $558,025 | $475,000 | $0 | $1,033,025 | $1,033,025 |
| 2020 | $542,348 | $400,000 | $0 | $942,348 | $942,348 |
| 2019 | $419,371 | $450,000 | $0 | $869,371 | $869,371 |
| 2018 | $349,017 | $300,000 | $0 | $649,017 | $649,017 |
| 2017 | $317,397 | $300,000 | $0 | $617,397 | $617,397 |
| 2016 | $321,177 | $300,000 | $0 | $621,177 | $621,177 |
| 2015 | $312,748 | $300,000 | $0 | $612,748 | $612,748 |
| 2014 | $316,050 | $300,000 | $0 | $616,050 | $616,050 |
| 2013 | $323,405 | $307,320 | $0 | $630,725 | $630,725 |
| 2012 | $326,901 | $361,553 | $0 | $688,454 | $688,454 |
| 2011 | $330,398 | $451,941 | $0 | $782,339 | $782,339 |
| 2010 | $344,308 | $502,157 | $0 | $846,465 | $846,465 |
| 2009 | $357,651 | $540,267 | $0 | $897,918 | $897,918 |
| 2008 | $362,216 | $540,267 | $0 | $902,483 | $902,483 |
| 2007 | $366,843 | $540,267 | $0 | $907,110 | $907,110 |
Deed and Sales History
| 1 | 05/12/2022 | WD | Warranty Deed | GARDNER TTEE, CRAIG C | NABAVI, MELUD | | | $1,967,150.00 | 53094 | 4545100 |
| 2 | 01/29/2018 | WD | Warranty Deed | DENNIS & KATHLEEN DUBOIS ESTATE PLANNING TRUST | GARDNER TTEE, CRAIG C | | | $855,000.00 | 32808 | 4438413 |
| 3 | 08/10/2000 | QCD | Quit Claim Deed | DUBOIS, DENNIS C | DUBOIS, TR, DENNIS CLIVE | | | $0.00 | 3112 | 20014697 |
| 4 | 09/01/1994 | WD | Warranty Deed | ROSSMAN, ALLEN M | DUBOIS, DENNIS C | | | $175,000.00 | 43672 | 94019367 |
| 5 | 01/01/1900 | OTHER | Other - Misc. Documents | Unknown | ROSSMAN, ALLEN M | | | $0.00 | 93575 | 89012002 |
Payout Agreement
| No payout information available.. |