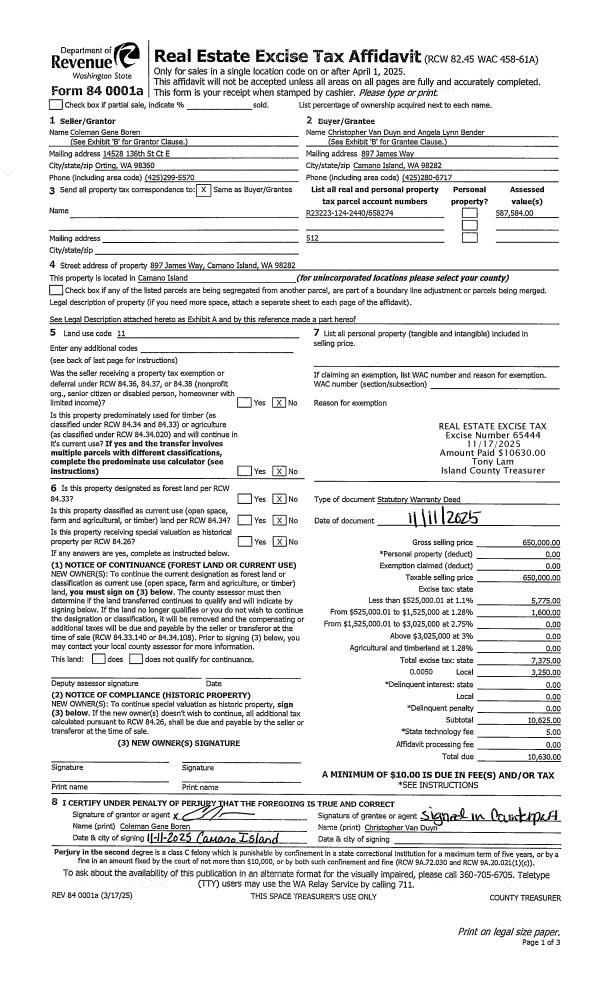
Property
Account |
| Property ID: | 661046 | Abbreviated Legal Description: | HIGHLANDS CAMANO PT LOT 14: BG NWCR LOT 14 S1*E290.24' TPB S76*E151.97 S13*W100' S76*E53.7' S11*W 308' M/L TO TOP OF BANK ALG TOP OF BANK NWLY TP ON WLN LOT 14 160' M/L N1*W326.21' M/L TPB FR PT 00014-2 & PT 00014-1 |
| Geographic ID: | S7125-00-00014-5 | Agent Code: | |
| Type: | Real | | |
| Tax Area: | 542 - APPRAISER-Stan/Cam Schl Dist, Special Dist, improved, greater than 1 acre | Land Use Code | 11 |
| Open Space: | N | DFL | N |
| Historic Property: | N | Remodel Property: | N |
| Multi-Family Redevelopment: | N | | |
| Township: | | Section: | |
| Range: | |
Location |
| Address: | 3844 SOUTH CAMANO DR CAMANO ISLAND, WA 98282 | Mapsco: | |
| Neighborhood: | 58RscamWF-South Cam | Map ID: | 875 |
| Neighborhood CD: | 58RscamWF |
Owner |
| Name: | CAHILL, MARGARET B | Owner ID: | 64805 |
| Mailing Address: | 21036 NE 122ND ST REDMOND, WA 98053-5321 | % Ownership: | 100.0000000000% |
| | | Exemptions: | |
Taxes and Assessment Details
Values
| (+) Improvement Homesite Value: | + | $0 | |
| (+) Improvement Non-Homesite Value: | + | $1,335,497 | |
| (+) Land Homesite Value: | + | $0 | |
| (+) Land Non-Homesite Value: | + | $543,750 | |
| (+) Curr Use (HS): | + | $0 | $0 |
| (+) Curr Use (NHS): | + | $0 | $0 |
| | | -------------------------- | |
| (=) Market Value: | = | $1,879,247 | |
| (–) Productivity Loss: | – | $0 | |
| | | -------------------------- | |
| (=) Subtotal: | = | $1,879,247 | |
| (+) Senior Appraised Value: | + | $0 | |
| (+) Non-Senior Appraised Value: | + | $1,879,247 | |
| | | -------------------------- | |
| (=) Total Appraised Value: | = | $1,879,247 | |
| (–) Senior Exemption Loss: | – | $0 | |
| (–) Exemption Loss: | – | $0 | |
| | | -------------------------- | |
| (=) Taxable Value: | = | $1,879,247 | |
Taxing Jurisdiction
| Owner: | CAHILL, MARGARET B | | |
| % Ownership: | 100.0000000000% | | |
| Total Value: | $1,879,247 | | |
| Tax Area: | 542 - APPRAISER-Stan/Cam Schl Dist, Special Dist, improved, greater than 1 acre |
| CF | Conservation Futures | 0.0316035091 | $1,879,247 | $1,879,247 | $59.39 | | |
| EMS1 | Fire & Rescue Dist #1 Camano GEN (EMS) | 0.3677864386 | $1,879,247 | $1,879,247 | $691.16 | | |
| FIRE1 | Fire & Rescue Dist #1 Camano GEN | 1.2502910536 | $1,879,247 | $1,879,247 | $2,349.61 | | |
| FIRE1BOND | Fire & Rescue Dist #1 Camano BOND | 0.1570001679 | $1,879,247 | $1,879,247 | $295.04 | | |
| CE | County Current Expense | 0.3708482477 | $1,879,247 | $1,879,247 | $696.92 | | |
| CR | County Roads | 0.4584763726 | $1,879,247 | $1,879,247 | $861.59 | | |
| LCIB | Library Sno-Isle BOND (Camano Island) | 0.0396325772 | $1,879,247 | $1,879,247 | $74.48 | | |
| LIB | Library Sno-Isle GEN | 0.3153421757 | $1,879,247 | $1,879,247 | $592.61 | | |
| SCH205_401 | School 205-401 Enrichment | 1.2698420524 | $1,879,247 | $1,879,247 | $2,386.35 | | |
| SCH205BOND | School 205-401 BOND | 0.9396497583 | $1,879,247 | $1,879,247 | $1,765.83 | | |
| ST | State School | 1.3035497053 | $1,879,247 | $1,879,247 | $2,449.69 | | |
| ST2 | State School Part 2 | 0.8169543533 | $1,879,247 | $1,879,247 | $1,535.26 | | |
| | Total Tax Rate: | 7.3209764117 | | | | | |
| | | | | Taxes w/Current Exemptions: | $13,757.93 | | |
| | | | | Taxes w/o Exemptions: | $13,757.93 | | |
Improvement / Building
| Improvement #1: | RESIDENTIAL | State Code: | Y | 6678.0 sqft | Value: | $1,335,497 |
| Bathrooms: | 6.5 | Bedrooms: | 5 | | Ceiling: | TONGUE & GROOVE | Cooling: | HEAT PUMP/CONV/V | | Exterior Wall/Cover: | CEMENT FIBER | Floor Covering: | HARDWOOD 100% | | Floor Structure: | WOOD W/SUBFLOOR | Foundation: | CONCRETE | | Interior Finish: | DRYWALL PAINT | Plumbing Fixture Cnt: | 32 | | Roof Slope: | 8" IN 12" | Roof Structure/Cover: | BEAM ASPHALT |
|
| | Type | Description | Class CD | Sub Class CD | Year Built | Area |
| | BAS | BASE/MAIN FLOOR | 5 | 0 | 2025 | 3761.8 |
| | UPS | UPPER STORY | 5 | 0 | 2025 | 2916.2 |
| | BIG | BUILT IN GARAGE | 5 | 0 | 2025 | 1222.5 |
| | OP4 | OPEN PORCH W/CEILING-ROOF | 5 | 0 | 2025 | 198.0 |
| | OWC | OPEN WOOD PORCH W/STEPS/ROOF/C | 5 | 0 | 2025 | 154.0 |
| | OWC | OPEN WOOD PORCH W/STEPS/ROOF/C | 5 | 0 | 2025 | 1814.0 |
| | OWP | OPEN WOOD PORCH W/STEPS | 5 | 0 | 2025 | 732.7 |
Sketch
Property Image
Land
| 1 | HB | HIGH BLUFF | 1.3600 | 59241.60 | 110.00 | 0.00 | 1.00 | $543,750 | $0 |
Roll Value History
| 2026 | N/A | N/A | N/A | N/A | N/A |
| 2025 | $1,335,497 | $543,750 | $0 | $1,879,247 | $1,879,247 |
| 2024 | $94,719 | $350,000 | $0 | $444,719 | $444,719 |
| 2023 | $94,719 | $350,000 | $0 | $444,719 | $444,719 |
| 2022 | $94,719 | $325,000 | $0 | $419,719 | $419,719 |
| 2021 | $399,316 | $425,000 | $0 | $824,316 | $824,316 |
| 2020 | $391,046 | $350,000 | $0 | $741,046 | $741,046 |
| 2019 | $313,916 | $400,000 | $0 | $713,916 | $713,916 |
| 2018 | $314,959 | $200,000 | $0 | $514,959 | $514,959 |
| 2017 | $317,045 | $200,000 | $0 | $517,045 | $517,045 |
| 2016 | $321,217 | $200,000 | $0 | $521,217 | $521,217 |
| 2015 | $239,192 | $200,000 | $0 | $439,192 | $439,192 |
| 2014 | $243,462 | $200,000 | $0 | $443,462 | $443,462 |
| 2013 | $246,080 | $219,859 | $0 | $465,939 | $465,939 |
| 2012 | $250,351 | $258,658 | $0 | $509,009 | $509,009 |
| 2011 | $254,622 | $323,322 | $0 | $577,944 | $577,944 |
| 2010 | $279,495 | $359,247 | $0 | $638,742 | $638,742 |
| 2009 | $289,636 | $423,831 | $0 | $713,467 | $713,467 |
| 2008 | $293,841 | $423,831 | $0 | $717,672 | $717,672 |
| 2007 | $298,046 | $423,831 | $0 | $721,877 | $721,877 |
Deed and Sales History
| 1 | 05/01/1992 | WD | Warranty Deed | SARATOGA, ENTERPRISES I | CAHILL, MARGARET B | | | $258,000.00 | 22043 | 92009752 |
| 2 | 05/01/1992 | QCD | Quit Claim Deed | CAHILL, MARGARET B | CAHILL, MARGARET B | | | $0.00 | 22044 | 92009753 |
| 3 | 06/01/1991 | OTHER | Other - Misc. Documents | SARATOGA, ENTERPRISES I | SARATOGA, ENTERPRISES I | | | $0.00 | 64253 | 91008392 |
| 4 | 01/01/1900 | OTHER | Other - Misc. Documents | Unknown | SARATOGA, ENTERPRISES I | | | $0.00 | 1214 | 90003899 |
Payout Agreement
| No payout information available.. |