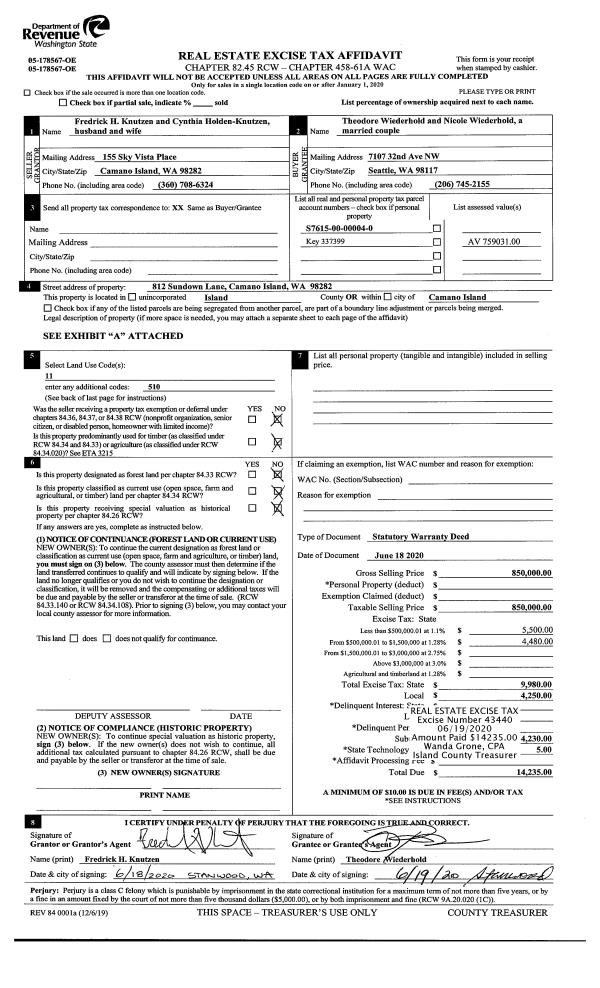
Property
Account |
| Property ID: | 66127 | Abbreviated Legal Description: | 6 - IN GL2: BG MC SECS 23 & 26 N11*E673.20' N15*E858' N19*E1490.52' TPB E1062.80' N291.87' W1044.77' S33*E59 .8' S19*W255.88' TPB INCL ADJ TIDES TGW EZ |
| Geographic ID: | R23023-303-4850 | Agent Code: | |
| Type: | Real | | |
| Tax Area: | 719 - APPRAISER-S Whid Schl Dist, outside Langley, vacant & 50 acres or less | Land Use Code | 91 |
| Open Space: | N | DFL | N |
| Historic Property: | N | Remodel Property: | N |
| Multi-Family Redevelopment: | N | | |
| Township: | 30 | Section: | 23 |
| Range: | R2 |
Location |
| Address: | | Mapsco: | |
| Neighborhood: | Cycle 3 | Map ID: | 407 |
| Neighborhood CD: | 3 |
Owner |
| Name: | JOHNSTON TTEE ET AL, DAVID J | Owner ID: | 284659 |
| Mailing Address: | 19411 WHITEMAN COVE RD LONGBRANCH, WA 98351 | % Ownership: | 100.0000000000% |
| | | Exemptions: | |
Taxes and Assessment Details
Values
| (+) Improvement Homesite Value: | + | $0 | |
| (+) Improvement Non-Homesite Value: | + | $0 | |
| (+) Land Homesite Value: | + | $0 | |
| (+) Land Non-Homesite Value: | + | $379,430 | |
| (+) Curr Use (HS): | + | $0 | $0 |
| (+) Curr Use (NHS): | + | $0 | $0 |
| | | -------------------------- | |
| (=) Market Value: | = | $379,430 | |
| (–) Productivity Loss: | – | $0 | |
| | | -------------------------- | |
| (=) Subtotal: | = | $379,430 | |
| (+) Senior Appraised Value: | + | $0 | |
| (+) Non-Senior Appraised Value: | + | $379,430 | |
| | | -------------------------- | |
| (=) Total Appraised Value: | = | $379,430 | |
| (–) Senior Exemption Loss: | – | $0 | |
| (–) Exemption Loss: | – | $0 | |
| | | -------------------------- | |
| (=) Taxable Value: | = | $379,430 | |
Taxing Jurisdiction
| Owner: | JOHNSTON TTEE ET AL, DAVID J | | |
| % Ownership: | 100.0000000000% | | |
| Total Value: | $379,430 | | |
| Tax Area: | 719 - APPRAISER-S Whid Schl Dist, outside Langley, vacant & 50 acres or less |
| CF | Conservation Futures | 0.0316035091 | $379,430 | $379,430 | $11.99 | | |
| HOBOND | Hospital BOND | 0.1910887512 | $379,430 | $379,430 | $72.50 | | |
| HOGEN | Hospital GEN | 0.3902502903 | $379,430 | $379,430 | $148.07 | | |
| CE | County Current Expense | 0.3708482477 | $379,430 | $379,430 | $140.71 | | |
| CR | County Roads | 0.4584763726 | $379,430 | $379,430 | $173.96 | | |
| ISLANDEMS | Hospital GEN (EMS) | 0.5000000000 | $379,430 | $379,430 | $189.72 | | |
| LIB | Library Sno-Isle GEN | 0.3153421757 | $379,430 | $379,430 | $119.65 | | |
| PORTWHID | Port of S Whidbey GEN | 0.1094540357 | $379,430 | $379,430 | $41.53 | | |
| SCH206BOND | School 206 BOND | 0.3161759235 | $379,430 | $379,430 | $119.97 | | |
| SCH206MO | School 206 Enrichment | 0.4547169547 | $379,430 | $379,430 | $172.53 | | |
| ST | State School | 1.3035497053 | $379,430 | $379,430 | $494.61 | | |
| ST2 | State School Part 2 | 0.8169543533 | $379,430 | $379,430 | $309.98 | | |
| SWHIDPRBD | P & R S Whidbey BOND | 0.0152817568 | $379,430 | $379,430 | $5.80 | | |
| SWHIDPRBD2 | P & R S Whidbey BOND2 | 0.0138911264 | $379,430 | $379,430 | $5.27 | | |
| SWHIDPRMT | P & R S Whidbey GEN | 0.2053334452 | $379,430 | $379,430 | $77.91 | | |
| | Total Tax Rate: | 5.4929666475 | | | | | |
| | | | | Taxes w/Current Exemptions: | $2,084.20 | | |
| | | | | Taxes w/o Exemptions: | $2,084.20 | | |
Improvement / Building
Sketch
| No sketches available for this property. |
Property Image
Land
| 1 | HB | HIGH BLUFF | 0.0000 | 0.00 | 292.00 | 0.00 | 1.00 | $375,000 | $0 |
| 2 | 55 | TIDES | 0.0000 | 0.00 | 492.00 | 0.00 | 1.00 | $4,430 | $0 |
Roll Value History
| 2026 | N/A | N/A | N/A | N/A | N/A |
| 2025 | $0 | $379,430 | $0 | $379,430 | $379,430 |
| 2024 | $0 | $379,430 | $0 | $379,430 | $379,430 |
| 2023 | $0 | $379,430 | $0 | $379,430 | $379,430 |
| 2022 | $0 | $504,430 | $0 | $504,430 | $504,430 |
| 2021 | $19,026 | $404,430 | $0 | $423,456 | $423,456 |
| 2020 | $18,404 | $404,430 | $0 | $422,834 | $422,834 |
| 2019 | $13,596 | $404,430 | $0 | $418,026 | $418,026 |
| 2018 | $13,596 | $404,430 | $0 | $418,026 | $418,026 |
| 2017 | $13,596 | $404,430 | $0 | $418,026 | $418,026 |
| 2016 | $13,596 | $404,430 | $0 | $418,026 | $418,026 |
| 2015 | $13,596 | $404,430 | $0 | $418,026 | $418,026 |
| 2014 | $13,596 | $404,430 | $0 | $418,026 | $418,026 |
| 2013 | $13,596 | $366,380 | $0 | $379,976 | $379,976 |
| 2012 | $13,596 | $366,380 | $0 | $379,976 | $379,976 |
| 2011 | $13,596 | $366,380 | $0 | $379,976 | $379,976 |
| 2010 | $0 | $407,086 | $0 | $407,086 | $407,086 |
| 2009 | $0 | $407,086 | $0 | $407,086 | $407,086 |
| 2008 | $0 | $407,086 | $0 | $407,086 | $407,086 |
| 2007 | $0 | $403,642 | $0 | $403,642 | $403,642 |
Deed and Sales History
| 1 | 07/12/2022 | WD | Warranty Deed | JOHNSON, DAVID | JOHNSTON TTEE, DAVID J | | | $0.00 | 54341 | 4550425 |
| 2 | 11/11/2019 | QCD | Quit Claim Deed | GUARDIAN SERVICES OF SEATTLE | SANDSTROM, CHERYL E R | | | $0.00 | 41446 | 4477423 |
| 3 | 03/24/2018 | PRD | Personal Representatives Deed | JOHNSTON, DAVID J | JOHNSTON TTEE ET AL, DAVID J | | | $0.00 | 33735 | 4442877 |
| 4 | 04/04/2015 | TRUSTEED | Trustee's Deed | JOHNSTON, DEBORAH ET AL | JOHNSTON, DAVID J | | | $0.00 | 20065 | 4380446 |
| 5 | 07/01/1996 | QCD | Quit Claim Deed | JOHNSTON, JAMES G | JOHNSTON, DAVID J | | | $0.00 | 62622 | 96012955 |
| 6 | 05/01/1991 | QCD | Quit Claim Deed | JOHNSTON, DAVID J | JOHNSTON, JAMES G | | | $0.00 | 11732 | 91007434 |
| 7 | 05/01/1991 | QCD | Quit Claim Deed | JOHNSTON, G J | JOHNSTON, DAVID J | | | $0.00 | 11733 | 91007433 |
| 8 | 05/01/1985 | QCD | Quit Claim Deed | JOHNSTON, G J | JOHNSTON, G J | | | $0.00 | 51547 | 85006247 |
| 9 | 08/01/1984 | QCD | Quit Claim Deed | JOHNSTON, JAMES G | JOHNSTON, G J | | | $0.00 | 43010 | 84004439 |
| 10 | 01/01/1900 | OTHER | Other - Misc. Documents | Unknown | JOHNSTON, JAMES G | | | $0.00 | 0 | 84004440 |
Payout Agreement
| No payout information available.. |