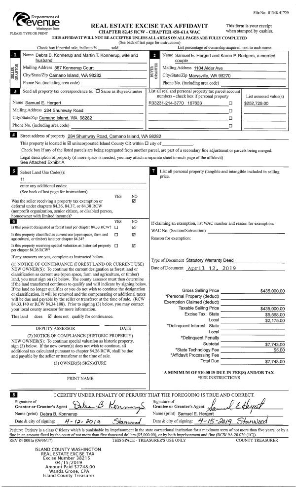
Property
Account |
| Property ID: | 661803 | Abbreviated Legal Description: | LANGLEY VILLAGE CONDO LOT 1 1/16 INT |
| Geographic ID: | S7348-00-00001-0 | Agent Code: | |
| Type: | Real | | |
| Tax Area: | 700 - APPRAISER-S Whid Schl Dist, in town of Langley | Land Use Code | 50 |
| Open Space: | N | DFL | N |
| Historic Property: | N | Remodel Property: | N |
| Multi-Family Redevelopment: | N | | |
| Township: | | Section: | |
| Range: | |
Location |
| Address: | 221 2ND ST Unit 1 LANGLEY, WA 98260 | Mapsco: | |
| Neighborhood: | 42cLG-north | Map ID: | 913 |
| Neighborhood CD: | 42cLGnorth |
Owner |
| Name: | PITTMAN, GUY B | Owner ID: | 302303 |
| Mailing Address: | LAUREEN PITTMAN 11610 TULANE AVE RIVERSIDE, CA 92507 | % Ownership: | 100.0000000000% |
| | | Exemptions: | |
Taxes and Assessment Details
Values
| (+) Improvement Homesite Value: | + | $0 | |
| (+) Improvement Non-Homesite Value: | + | $119,459 | |
| (+) Land Homesite Value: | + | $0 | |
| (+) Land Non-Homesite Value: | + | $161,190 | |
| (+) Curr Use (HS): | + | $0 | $0 |
| (+) Curr Use (NHS): | + | $0 | $0 |
| | | -------------------------- | |
| (=) Market Value: | = | $280,649 | |
| (–) Productivity Loss: | – | $0 | |
| | | -------------------------- | |
| (=) Subtotal: | = | $280,649 | |
| (+) Senior Appraised Value: | + | $0 | |
| (+) Non-Senior Appraised Value: | + | $280,649 | |
| | | -------------------------- | |
| (=) Total Appraised Value: | = | $280,649 | |
| (–) Senior Exemption Loss: | – | $0 | |
| (–) Exemption Loss: | – | $0 | |
| | | -------------------------- | |
| (=) Taxable Value: | = | $280,649 | |
Taxing Jurisdiction
| Owner: | PITTMAN, GUY B | | |
| % Ownership: | 100.0000000000% | | |
| Total Value: | $280,649 | | |
| Tax Area: | 700 - APPRAISER-S Whid Schl Dist, in town of Langley |
| CF | Conservation Futures | 0.0316035091 | $280,649 | $280,649 | $8.87 | | |
| LANG | City of Langley | 1.0093520762 | $280,649 | $280,649 | $283.27 | | |
| LANGBOND | City of Langley BOND | 1.0326110892 | $280,649 | $280,649 | $289.80 | | |
| FIRE3 | Fire & Rescue Dist #3 S Whidbey GEN | 1.2004855531 | $280,649 | $280,649 | $336.92 | | |
| HOBOND | Hospital BOND | 0.1910887512 | $280,649 | $280,649 | $53.63 | | |
| HOGEN | Hospital GEN | 0.3902502903 | $280,649 | $280,649 | $109.52 | | |
| CE | County Current Expense | 0.3708482477 | $280,649 | $280,649 | $104.08 | | |
| ISLANDEMS | Hospital GEN (EMS) | 0.5000000000 | $280,649 | $280,649 | $140.32 | | |
| LIB | Library Sno-Isle GEN | 0.3153421757 | $280,649 | $280,649 | $88.50 | | |
| PORTWHID | Port of S Whidbey GEN | 0.1094540357 | $280,649 | $280,649 | $30.72 | | |
| SCH206BOND | School 206 BOND | 0.3161759235 | $280,649 | $280,649 | $88.73 | | |
| SCH206MO | School 206 Enrichment | 0.4547169547 | $280,649 | $280,649 | $127.62 | | |
| ST | State School | 1.3035497053 | $280,649 | $280,649 | $365.84 | | |
| ST2 | State School Part 2 | 0.8169543533 | $280,649 | $280,649 | $229.28 | | |
| SWHIDPRBD | P & R S Whidbey BOND | 0.0152817568 | $280,649 | $280,649 | $4.29 | | |
| SWHIDPRBD2 | P & R S Whidbey BOND2 | 0.0138911264 | $280,649 | $280,649 | $3.90 | | |
| SWHIDPRMT | P & R S Whidbey GEN | 0.2053334452 | $280,649 | $280,649 | $57.63 | | |
| | Total Tax Rate: | 8.2769389934 | | | | | |
| | | | | Taxes w/Current Exemptions: | $2,322.92 | | |
| | | | | Taxes w/o Exemptions: | $2,322.92 | | |
Improvement / Building
| Improvement #1: | COMMERCIAL | State Code: | F1 | 780.1 sqft | Value: | $119,459 |
| Bathrooms: | 0 | Bedrooms: | 0 | | Ceiling: | DRYWALL PAINTED | Exterior Wall/Cover: | STUCO/WD OR ST STUDS | | Floor Covering: | TILE CERAMIC | Floor Structure: | CONCRETE ON GROUND | | Foundation: | CONCRETE | Heating: | WALL HEAT ELECTRIC | | Interior Finish: | RETAIL | Plumbing Fixture Cnt: | 1 | | Roof Structure/Cover: | BEAM BUILT-UP ROCK |   |   |
|
| | Type | Description | Class CD | Sub Class CD | Year Built | Area |
| | BAS | BASE/MAIN FLOOR | 3 | 0 | 1991 | 780.1 |
| | OP4 | OPEN PORCH W/CEILING-ROOF | 3 | 0 | 1991 | 22.9 |
Sketch
Property Image
Land
| 1 | 68 | COMMERCIAL RETAIL | 0.0206 | 895.50 | 0.00 | 0.00 | 1.00 | $161,190 | $0 |
Roll Value History
| 2026 | N/A | N/A | N/A | N/A | N/A |
| 2025 | $119,459 | $161,190 | $0 | $280,649 | $280,649 |
| 2024 | $122,764 | $161,190 | $0 | $283,954 | $283,954 |
| 2023 | $126,068 | $161,190 | $0 | $287,258 | $287,258 |
| 2022 | $92,553 | $147,758 | $0 | $240,311 | $240,311 |
| 2021 | $92,459 | $147,758 | $0 | $240,217 | $240,217 |
| 2020 | $66,319 | $116,415 | $0 | $182,734 | $182,734 |
| 2019 | $76,211 | $116,415 | $0 | $192,626 | $192,626 |
| 2018 | $76,212 | $116,415 | $0 | $192,627 | $192,627 |
| 2017 | $76,205 | $116,415 | $0 | $192,620 | $192,620 |
| 2016 | $76,211 | $116,415 | $0 | $192,626 | $192,626 |
| 2015 | $79,711 | $116,415 | $0 | $196,126 | $196,126 |
| 2014 | $78,251 | $212,735 | $0 | $290,986 | $290,986 |
| 2013 | $79,160 | $212,735 | $0 | $291,895 | $291,895 |
| 2012 | $68,365 | $212,735 | $0 | $281,100 | $281,100 |
| 2011 | $68,365 | $212,735 | $0 | $281,100 | $281,100 |
| 2010 | $56,434 | $212,735 | $0 | $269,169 | $269,169 |
| 2009 | $57,167 | $255,086 | $0 | $312,253 | $312,253 |
| 2008 | $58,633 | $255,086 | $0 | $313,719 | $313,719 |
| 2007 | $59,366 | $255,086 | $0 | $314,452 | $314,452 |
Deed and Sales History
| 1 | 12/06/2021 | WD | Warranty Deed | FULLER TTEE, KATHLEEN MARIE | PITTMAN, GUY B | | | $0.00 | 51269 | 4535614 |
| 2 | 04/29/2019 | WD | Warranty Deed | PEYSER, ETHAN ALLEN | FULLER TTEE, KATHLEEN MARIE | | | $841,000.00 | 38255 | 4462248 |
|   | |
| 3 | 10/02/2015 | WD | Warranty Deed | ANDERSON, LINDA M | PEYSER, ETHAN ALLEN | | | $260,000.00 | 21631 | 4387194 |
| 4 | 06/01/1991 | QCD | Quit Claim Deed | LANGLEY, VILLAGE | ANDERSON, LINDA M | | | $0.00 | 12094 | 91008888 |
| 5 | 01/01/1900 | OTHER | Other - Misc. Documents | Unknown | LANGLEY, VILLAGE | | | $0.00 | 53427 | 85013556 |
Payout Agreement
| No payout information available.. |