Property
Account |
| Property ID: | 661849 | Abbreviated Legal Description: | LANGLEY VILLAGE CONDO LOT 3 1/16 INT EX S5'OF SD LOT 3 |
| Geographic ID: | S7348-00-00003-0 | Agent Code: | |
| Type: | Real | | |
| Tax Area: | 700 - APPRAISER-S Whid Schl Dist, in town of Langley | Land Use Code | 50 |
| Open Space: | N | DFL | N |
| Historic Property: | N | Remodel Property: | N |
| Multi-Family Redevelopment: | N | | |
| Township: | | Section: | |
| Range: | |
Location |
| Address: | 221 2ND ST Unit 3 LANGLEY, WA 98260 | Mapsco: | |
| Neighborhood: | 42cLG-north | Map ID: | 913 |
| Neighborhood CD: | 42cLGnorth |
Owner |
| Name: | PHILLIPS ENTERPRISES, INC | Owner ID: | 288434 |
| Mailing Address: | 115 2ND ST #1269 LANGLEY, WA 98260 | % Ownership: | 100.0000000000% |
| | | Exemptions: | |
Taxes and Assessment Details
Values
| (+) Improvement Homesite Value: | + | $0 | |
| (+) Improvement Non-Homesite Value: | + | $266,562 | |
| (+) Land Homesite Value: | + | $0 | |
| (+) Land Non-Homesite Value: | + | $283,716 | |
| (+) Curr Use (HS): | + | $0 | $0 |
| (+) Curr Use (NHS): | + | $0 | $0 |
| | | -------------------------- | |
| (=) Market Value: | = | $550,278 | |
| (–) Productivity Loss: | – | $0 | |
| | | -------------------------- | |
| (=) Subtotal: | = | $550,278 | |
| (+) Senior Appraised Value: | + | $0 | |
| (+) Non-Senior Appraised Value: | + | $550,278 | |
| | | -------------------------- | |
| (=) Total Appraised Value: | = | $550,278 | |
| (–) Senior Exemption Loss: | – | $0 | |
| (–) Exemption Loss: | – | $0 | |
| | | -------------------------- | |
| (=) Taxable Value: | = | $550,278 | |
Taxing Jurisdiction
| Owner: | PHILLIPS ENTERPRISES, INC | | |
| % Ownership: | 100.0000000000% | | |
| Total Value: | $550,278 | | |
| Tax Area: | 700 - APPRAISER-S Whid Schl Dist, in town of Langley |
| CF | Conservation Futures | 0.0316035091 | $550,278 | $550,278 | $17.39 | | |
| LANG | City of Langley | 1.0093520762 | $550,278 | $550,278 | $555.42 | | |
| LANGBOND | City of Langley BOND | 1.0326110892 | $550,278 | $550,278 | $568.22 | | |
| FIRE3 | Fire & Rescue Dist #3 S Whidbey GEN | 1.2004855531 | $550,278 | $550,278 | $660.60 | | |
| HOBOND | Hospital BOND | 0.1910887512 | $550,278 | $550,278 | $105.15 | | |
| HOGEN | Hospital GEN | 0.3902502903 | $550,278 | $550,278 | $214.75 | | |
| CE | County Current Expense | 0.3708482477 | $550,278 | $550,278 | $204.07 | | |
| ISLANDEMS | Hospital GEN (EMS) | 0.5000000000 | $550,278 | $550,278 | $275.14 | | |
| LIB | Library Sno-Isle GEN | 0.3153421757 | $550,278 | $550,278 | $173.53 | | |
| PORTWHID | Port of S Whidbey GEN | 0.1094540357 | $550,278 | $550,278 | $60.23 | | |
| SCH206BOND | School 206 BOND | 0.3161759235 | $550,278 | $550,278 | $173.98 | | |
| SCH206MO | School 206 Enrichment | 0.4547169547 | $550,278 | $550,278 | $250.22 | | |
| ST | State School | 1.3035497053 | $550,278 | $550,278 | $717.31 | | |
| ST2 | State School Part 2 | 0.8169543533 | $550,278 | $550,278 | $449.55 | | |
| SWHIDPRBD | P & R S Whidbey BOND | 0.0152817568 | $550,278 | $550,278 | $8.41 | | |
| SWHIDPRBD2 | P & R S Whidbey BOND2 | 0.0138911264 | $550,278 | $550,278 | $7.64 | | |
| SWHIDPRMT | P & R S Whidbey GEN | 0.2053334452 | $550,278 | $550,278 | $112.99 | | |
| | Total Tax Rate: | 8.2769389934 | | | | | |
| | | | | Taxes w/Current Exemptions: | $4,554.60 | | |
| | | | | Taxes w/o Exemptions: | $4,554.60 | | |
Improvement / Building
| Improvement #1: | COMMERCIAL | State Code: | F1 | 1263.0 sqft | Value: | $266,562 |
| Bathrooms: | 0 | Bedrooms: | 0 | | Ceiling: | DRYWALL PAINTED | Exterior Wall/Cover: | WD/WD OR STEEL STUDS | | Floor Covering: | CARPET 100% | Floor Structure: | WOOD ON WOOD JOIST | | Foundation: | CONCRETE | Heating: | HEAT PUMP | | Interior Finish: | MEDICAL OFFICE | Plumbing Fixture Cnt: | 1 | | Roof Structure/Cover: | METAL/OPEN WOOD |   |   |
|
| | Type | Description | Class CD | Sub Class CD | Year Built | Area |
| | BAS | BASE/MAIN FLOOR | 3 | 0 | 1984 | 993.0 |
| | OWR | OPEN WOOD PORCH W/STEPS/ROOF | 3 | 0 | 1984 | 30.0 |
| | UPS | UPPER STORY | 3 | 0 | 1984 | 270.0 |
Sketch
Property Image
Land
| 1 | 68 | COMMERCIAL RETAIL | 0.0362 | 1576.20 | 0.00 | 0.00 | 1.00 | $283,716 | $0 |
Roll Value History
| 2026 | N/A | N/A | N/A | N/A | N/A |
| 2025 | $266,562 | $283,716 | $0 | $550,278 | $550,278 |
| 2024 | $274,859 | $283,716 | $0 | $558,575 | $558,575 |
| 2023 | $287,295 | $283,716 | $0 | $571,011 | $571,011 |
| 2022 | $226,117 | $260,073 | $0 | $486,190 | $486,190 |
| 2021 | $225,923 | $260,073 | $0 | $485,996 | $485,996 |
| 2020 | $76,885 | $228,930 | $0 | $305,815 | $305,815 |
| 2019 | $99,535 | $228,930 | $0 | $328,465 | $328,465 |
| 2018 | $99,538 | $228,930 | $0 | $328,468 | $328,468 |
| 2017 | $99,544 | $228,930 | $0 | $328,474 | $328,474 |
| 2016 | $99,556 | $228,930 | $0 | $328,486 | $328,486 |
| 2015 | $107,792 | $228,930 | $0 | $336,722 | $336,722 |
| 2014 | $97,931 | $290,888 | $0 | $388,819 | $388,819 |
| 2013 | $97,931 | $290,888 | $0 | $388,819 | $388,819 |
| 2012 | $97,931 | $290,888 | $0 | $388,819 | $388,819 |
| 2011 | $97,931 | $290,888 | $0 | $388,819 | $388,819 |
| 2010 | $104,950 | $290,888 | $0 | $395,838 | $395,838 |
| 2009 | $107,948 | $348,797 | $0 | $456,745 | $456,745 |
| 2008 | $217,183 | $348,797 | $0 | $565,980 | $565,980 |
| 2007 | $220,041 | $348,797 | $0 | $568,838 | $568,838 |
Deed and Sales History
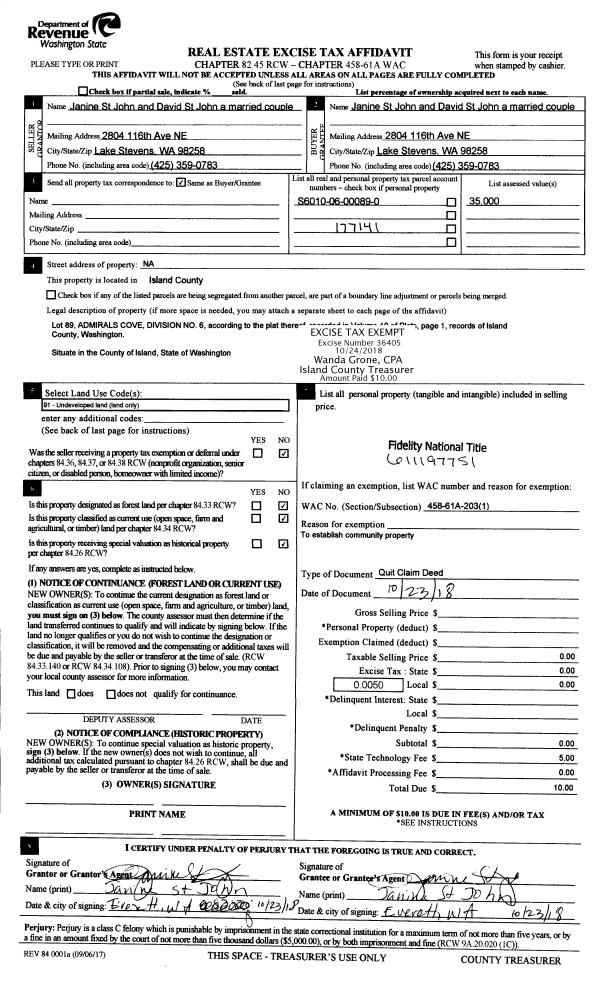
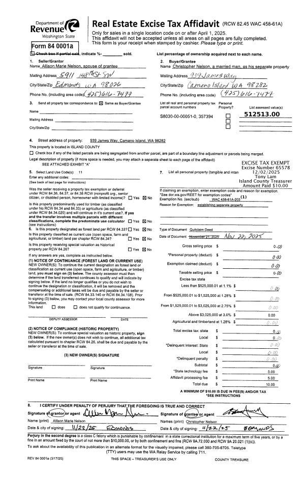
| 1 | 12/26/2018 | WD | Warranty Deed | MOULTON FAMILY LLC | PHILLIPS ENTERPRISES, INC | | | $333,000.00 | 37212 | 4457535 |
| 2 | 09/15/2018 | QCD | Quit Claim Deed | SLEIGHT, ROBERT F | MOULTON, JOYCE | | | $0.00 | 37226 | 4457593 |
| 3 | 07/02/2010 | QCD | Quit Claim Deed | MOULTON FAMILY LLC | MOULTON FAMILY LLC | | | $0.00 | 35911 | 4451788 |
| 4 | 07/15/2010 | QCD | Quit Claim Deed | MOULTON, JOYCE | MOULTON FAMILY LLC, | | | $0.00 | 1756 | 4277222 |
| 5 | 04/21/2004 | WD | Warranty Deed | SLEIGHT, ROBERT F | MOULTON, JOYCE | | | $450,000.00 | 43356 | 4107777 |
| 6 | 06/01/1992 | QCD | Quit Claim Deed | LANGLEY, VILLAGE | SLEIGHT, ROBERT F | | | $0.00 | 22511 | 92012063 |
| 7 | 04/01/1992 | OTHER | Other - Misc. Documents | LANGLEY, VILLAGE | LANGLEY, VILLAGE | | | $0.00 | 64801 | 92006639 |
| 8 | 01/01/1900 | OTHER | Other - Misc. Documents | Unknown | LANGLEY, VILLAGE | | | $0.00 | 53427 | 85013556 |
Payout Agreement
| No payout information available.. |