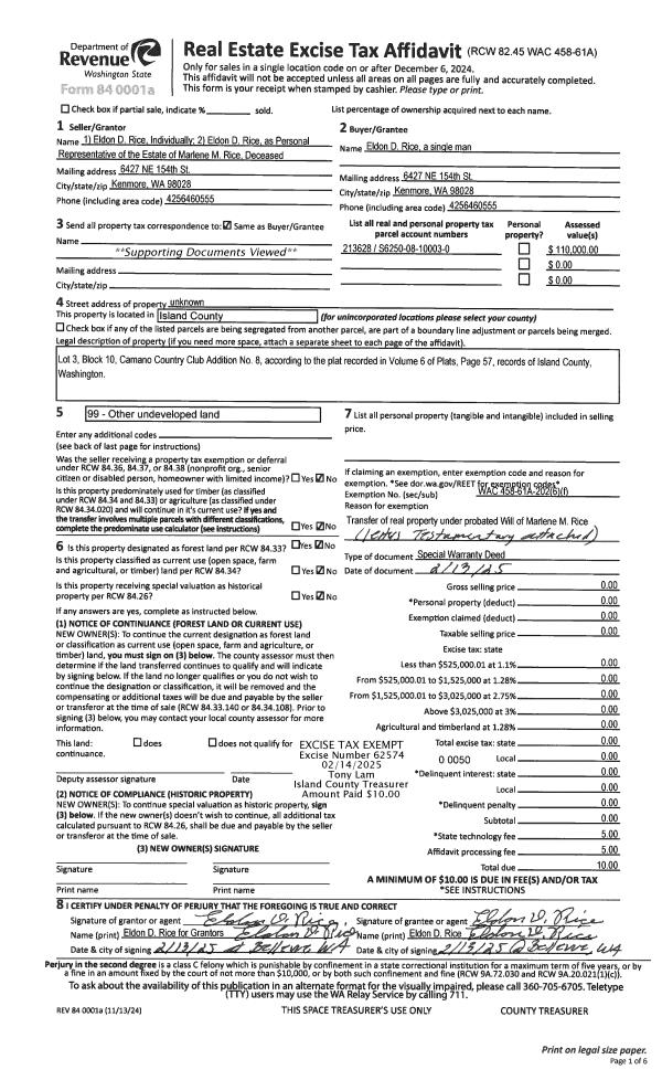
Property
Account |
| Property ID: | 662287 | Abbreviated Legal Description: | W/2 NW SW SW TGW & SUB EZS FR 079-0660 |
| Geographic ID: | R32801-114-0180 | Agent Code: | |
| Type: | Real | | |
| Tax Area: | 712 - APPRAISER-S Whid Schl Dist, outside Langley, improved, greater than 1 acre | Land Use Code | 11 |
| Open Space: | N | DFL | N |
| Historic Property: | N | Remodel Property: | N |
| Multi-Family Redevelopment: | N | | |
| Township: | 28 | Section: | 01 |
| Range: | R3 |
Location |
| Address: | 7545 ROSEBERRY ST CLINTON, WA 98236 | Mapsco: | |
| Neighborhood: | Cycle 4 | Map ID: | 675 |
| Neighborhood CD: | 4 |
Owner |
| Name: | BAGE, QUILLIAN | Owner ID: | 313686 |
| Mailing Address: | CALENTINE BAGE 7545 ROSEBERRY ST CLINTON, WA 98236 | % Ownership: | 100.0000000000% |
| | | Exemptions: | |
Taxes and Assessment Details
Values
| (+) Improvement Homesite Value: | + | $0 | |
| (+) Improvement Non-Homesite Value: | + | $86,512 | |
| (+) Land Homesite Value: | + | $360,000 | |
| (+) Land Non-Homesite Value: | + | $0 | |
| (+) Curr Use (HS): | + | $0 | $0 |
| (+) Curr Use (NHS): | + | $0 | $0 |
| | | -------------------------- | |
| (=) Market Value: | = | $446,512 | |
| (–) Productivity Loss: | – | $0 | |
| | | -------------------------- | |
| (=) Subtotal: | = | $446,512 | |
| (+) Senior Appraised Value: | + | $0 | |
| (+) Non-Senior Appraised Value: | + | $446,512 | |
| | | -------------------------- | |
| (=) Total Appraised Value: | = | $446,512 | |
| (–) Senior Exemption Loss: | – | $0 | |
| (–) Exemption Loss: | – | $0 | |
| | | -------------------------- | |
| (=) Taxable Value: | = | $446,512 | |
Taxing Jurisdiction
| Owner: | BAGE, QUILLIAN | | |
| % Ownership: | 100.0000000000% | | |
| Total Value: | $446,512 | | |
| Tax Area: | 712 - APPRAISER-S Whid Schl Dist, outside Langley, improved, greater than 1 acre |
| CF | Conservation Futures | 0.0316035091 | $446,512 | $446,512 | $14.11 | | |
| FIRE3 | Fire & Rescue Dist #3 S Whidbey GEN | 1.2004855531 | $446,512 | $446,512 | $536.03 | | |
| HOBOND | Hospital BOND | 0.1910887512 | $446,512 | $446,512 | $85.32 | | |
| HOGEN | Hospital GEN | 0.3902502903 | $446,512 | $446,512 | $174.25 | | |
| CE | County Current Expense | 0.3708482477 | $446,512 | $446,512 | $165.59 | | |
| CR | County Roads | 0.4584763726 | $446,512 | $446,512 | $204.72 | | |
| ISLANDEMS | Hospital GEN (EMS) | 0.5000000000 | $446,512 | $446,512 | $223.26 | | |
| LIB | Library Sno-Isle GEN | 0.3153421757 | $446,512 | $446,512 | $140.80 | | |
| PORTWHID | Port of S Whidbey GEN | 0.1094540357 | $446,512 | $446,512 | $48.87 | | |
| SCH206BOND | School 206 BOND | 0.3161759235 | $446,512 | $446,512 | $141.18 | | |
| SCH206MO | School 206 Enrichment | 0.4547169547 | $446,512 | $446,512 | $203.04 | | |
| ST | State School | 1.3035497053 | $446,512 | $446,512 | $582.05 | | |
| ST2 | State School Part 2 | 0.8169543533 | $446,512 | $446,512 | $364.78 | | |
| SWHIDPRBD | P & R S Whidbey BOND | 0.0152817568 | $446,512 | $446,512 | $6.82 | | |
| SWHIDPRBD2 | P & R S Whidbey BOND2 | 0.0138911264 | $446,512 | $446,512 | $6.20 | | |
| SWHIDPRMT | P & R S Whidbey GEN | 0.2053334452 | $446,512 | $446,512 | $91.68 | | |
| | Total Tax Rate: | 6.6934522006 | | | | | |
| | | | | Taxes w/Current Exemptions: | $2,988.70 | | |
| | | | | Taxes w/o Exemptions: | $2,988.70 | | |
Improvement / Building
| Improvement #1: | MANUFACTURED HOME | State Code: | Y | 1296.0 sqft | Value: | $86,512 |
| Bathrooms: | 0 | Bedrooms: | 0 | | Ceiling: | PLASTER PAINTED | Cooling: | EVAP NO DUCT | | Exterior Wall/Cover: | VINYL | Floor Covering: | CARPET 100% | | Floor Structure: | SLAB ON GRADE | Foundation: | SLAB | | Heating: | FHA ELECTRIC | Interior Finish: | PLASTER | | Plumbing Fixture Cnt: | 1 | Roof Slope: | FLAT | | Roof Structure/Cover: | CJ ALUMINIUM HEAVY |   |   |
|
| | Type | Description | Class CD | Sub Class CD | Year Built | Area |
| | BAS | BASE/MAIN FLOOR | 4 | 0 | 1992 | 1296.0 |
| | OWP | OPEN WOOD PORCH W/STEPS | 4 | 0 | 1992 | 201.0 |
| | OWP | OPEN WOOD PORCH W/STEPS | 4 | 0 | 1992 | 634.0 |
| | oCB1 | CABIN UNFI | 3 | 0 | 1992 | 192.0 |
Sketch
| No sketches available for this property. |
Property Image
Land
| 1 | 32 | AC (03.01-09.99) | 5.0000 | 0.00 | 0.00 | 0.00 | 1.00 | $360,000 | $0 |
Roll Value History
| 2026 | N/A | N/A | N/A | N/A | N/A |
| 2025 | $86,512 | $360,000 | $0 | $446,512 | $446,512 |
| 2024 | $84,673 | $340,000 | $0 | $424,673 | $424,673 |
| 2023 | $76,407 | $330,000 | $0 | $406,407 | $82,312 |
| 2022 | $71,705 | $280,000 | $0 | $351,705 | $82,312 |
| 2021 | $65,627 | $230,000 | $0 | $295,627 | $82,312 |
| 2020 | $45,926 | $190,000 | $0 | $235,926 | $82,312 |
| 2019 | $37,490 | $220,000 | $0 | $257,490 | $82,312 |
| 2018 | $39,463 | $210,000 | $0 | $249,463 | $82,312 |
| 2017 | $40,779 | $165,000 | $0 | $205,779 | $82,312 |
| 2016 | $42,094 | $165,000 | $0 | $207,094 | $207,094 |
| 2015 | $43,410 | $150,000 | $0 | $193,410 | $193,410 |
| 2014 | $53,677 | $150,000 | $0 | $203,677 | $203,677 |
| 2013 | $59,201 | $200,000 | $0 | $259,201 | $259,201 |
| 2012 | $60,517 | $170,000 | $0 | $230,517 | $230,517 |
| 2011 | $61,175 | $170,000 | $0 | $231,175 | $231,175 |
| 2010 | $61,263 | $170,000 | $0 | $231,263 | $231,263 |
| 2009 | $64,436 | $220,000 | $0 | $284,436 | $284,436 |
| 2008 | $64,749 | $210,000 | $0 | $274,749 | $274,749 |
| 2007 | $66,490 | $210,000 | $0 | $276,490 | $276,490 |
Deed and Sales History
| 1 | 08/23/2024 | WD | Warranty Deed | NICHOLS, MICHAEL A | BAGE, QUILLIAN | | | $412,000.00 | 61095 | 4576379 |
| 2 | 01/27/2000 | WD | Warranty Deed | GRIFFIN, JOE O | NICHOLS, MICHAEL A | | | $136,500.00 | 339 | 0 |
| 3 | 01/24/2000 | WD | Warranty Deed | Unknown | NICHOLS, MICHAEL A | | | $136,500.00 | 339 | 20001760 |
| 4 | 02/04/1999 | OTHER | Other - Misc. Documents | NICHOLS, MICHAEL A | SUCHAN, JOSEPH S | | | $41,858.00 | 90537 | 0 |
| 5 | 02/04/1999 | WD | Warranty Deed | GRIFFIN, JOSEPH O | SUCHAN, JOSEPH S | | | $73,142.00 | 90536 | 99003672 |
| 6 | 02/01/1994 | OTHER | Other - Misc. Documents | Unknown | GRIFFIN, JOE O | | | $0.00 | 40517 | 0 |
| 7 | 02/01/1992 | QCD | Quit Claim Deed | , | GRIFFIN, JOSEPH O | | | $0.00 | 20642 | 92003189 |
| 8 | 09/01/1991 | QCD | Quit Claim Deed | , | GRIFFIN, MATHEW D | | | $0.00 | 64416 | 352184 |
| 9 | 01/01/1900 | OTHER | Other - Misc. Documents | SUCHAN, JOSEPH S | , | | | $0.00 | 81128 | 88004252 |
Payout Agreement
| No payout information available.. |