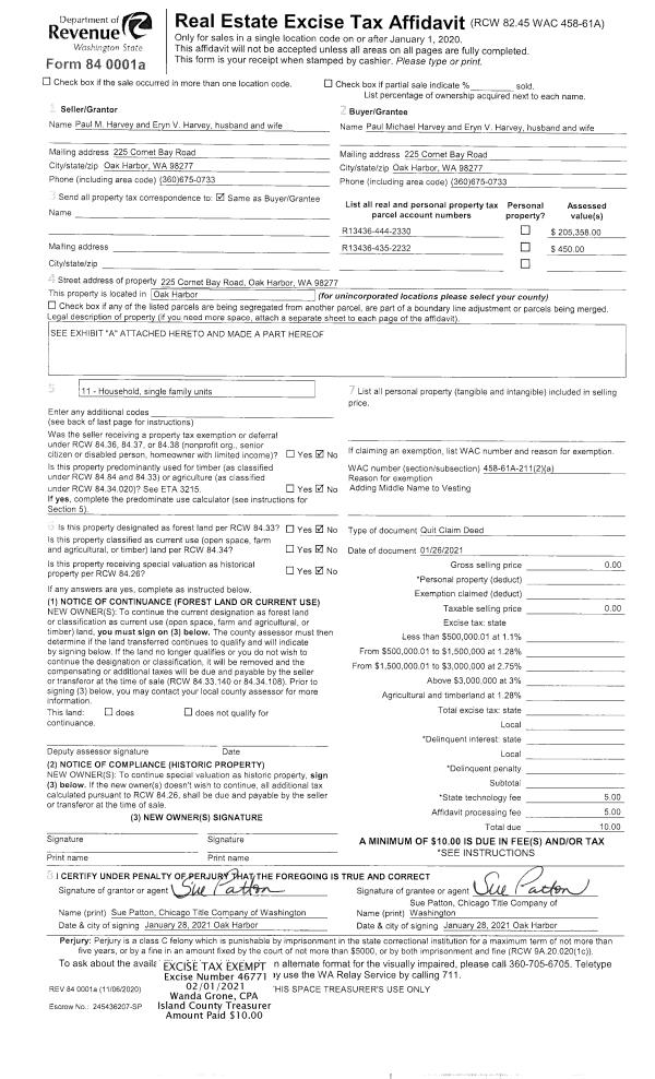
Property
Account |
| Property ID: | 662303 | Abbreviated Legal Description: | 4.9300 Acres ins Section 01s Township 28s Range R3s BLA 428/21 AF4552389;s |
| Geographic ID: | R32801-046-0480 | Agent Code: | |
| Type: | Real | | |
| Tax Area: | 719 - APPRAISER-S Whid Schl Dist, outside Langley, vacant & 50 acres or less | Land Use Code | 91 |
| Open Space: | N | DFL | N |
| Historic Property: | N | Remodel Property: | N |
| Multi-Family Redevelopment: | N | | |
| Township: | 28 | Section: | 01 |
| Range: | R3 |
Location |
| Address: | | Mapsco: | |
| Neighborhood: | Cycle 4 | Map ID: | 675 |
| Neighborhood CD: | 4 |
Owner |
| Name: | SHIVELY, JAMEN W | Owner ID: | 299571 |
| Mailing Address: | MELISSA V KOCH-DE WRANGEL PO BOX 1214 CLINTON, WA 98236 | % Ownership: | 100.0000000000% |
| | | Exemptions: | |
Taxes and Assessment Details
Values
| (+) Improvement Homesite Value: | + | $0 | |
| (+) Improvement Non-Homesite Value: | + | $0 | |
| (+) Land Homesite Value: | + | $0 | |
| (+) Land Non-Homesite Value: | + | $240,000 | |
| (+) Curr Use (HS): | + | $0 | $0 |
| (+) Curr Use (NHS): | + | $0 | $0 |
| | | -------------------------- | |
| (=) Market Value: | = | $240,000 | |
| (–) Productivity Loss: | – | $0 | |
| | | -------------------------- | |
| (=) Subtotal: | = | $240,000 | |
| (+) Senior Appraised Value: | + | $0 | |
| (+) Non-Senior Appraised Value: | + | $240,000 | |
| | | -------------------------- | |
| (=) Total Appraised Value: | = | $240,000 | |
| (–) Senior Exemption Loss: | – | $0 | |
| (–) Exemption Loss: | – | $0 | |
| | | -------------------------- | |
| (=) Taxable Value: | = | $240,000 | |
Taxing Jurisdiction
| Owner: | SHIVELY, JAMEN W | | |
| % Ownership: | 100.0000000000% | | |
| Total Value: | $240,000 | | |
| Tax Area: | 719 - APPRAISER-S Whid Schl Dist, outside Langley, vacant & 50 acres or less |
| CF | Conservation Futures | 0.0316035091 | $240,000 | $240,000 | $7.58 | | |
| HOBOND | Hospital BOND | 0.1910887512 | $240,000 | $240,000 | $45.86 | | |
| HOGEN | Hospital GEN | 0.3902502903 | $240,000 | $240,000 | $93.66 | | |
| CE | County Current Expense | 0.3708482477 | $240,000 | $240,000 | $89.00 | | |
| CR | County Roads | 0.4584763726 | $240,000 | $240,000 | $110.03 | | |
| ISLANDEMS | Hospital GEN (EMS) | 0.5000000000 | $240,000 | $240,000 | $120.00 | | |
| LIB | Library Sno-Isle GEN | 0.3153421757 | $240,000 | $240,000 | $75.68 | | |
| PORTWHID | Port of S Whidbey GEN | 0.1094540357 | $240,000 | $240,000 | $26.27 | | |
| SCH206BOND | School 206 BOND | 0.3161759235 | $240,000 | $240,000 | $75.88 | | |
| SCH206MO | School 206 Enrichment | 0.4547169547 | $240,000 | $240,000 | $109.13 | | |
| ST | State School | 1.3035497053 | $240,000 | $240,000 | $312.85 | | |
| ST2 | State School Part 2 | 0.8169543533 | $240,000 | $240,000 | $196.07 | | |
| SWHIDPRBD | P & R S Whidbey BOND | 0.0152817568 | $240,000 | $240,000 | $3.67 | | |
| SWHIDPRBD2 | P & R S Whidbey BOND2 | 0.0138911264 | $240,000 | $240,000 | $3.33 | | |
| SWHIDPRMT | P & R S Whidbey GEN | 0.2053334452 | $240,000 | $240,000 | $49.28 | | |
| | Total Tax Rate: | 5.4929666475 | | | | | |
| | | | | Taxes w/Current Exemptions: | $1,318.29 | | |
| | | | | Taxes w/o Exemptions: | $1,318.29 | | |
Improvement / Building
Sketch
| No sketches available for this property. |
Property Image
Land
| 1 | 32 | AC (03.01-09.99) | 4.9300 | 0.00 | 0.00 | 0.00 | 1.00 | $240,000 | $0 |
Roll Value History
| 2026 | N/A | N/A | N/A | N/A | N/A |
| 2025 | $0 | $240,000 | $0 | $240,000 | $240,000 |
| 2024 | $0 | $220,000 | $0 | $220,000 | $220,000 |
| 2023 | $0 | $200,000 | $0 | $200,000 | $200,000 |
| 2022 | $0 | $170,000 | $0 | $170,000 | $170,000 |
| 2021 | $0 | $150,000 | $0 | $150,000 | $150,000 |
| 2020 | $0 | $150,000 | $0 | $150,000 | $150,000 |
| 2019 | $0 | $120,000 | $0 | $120,000 | $120,000 |
| 2018 | $0 | $120,000 | $0 | $120,000 | $120,000 |
| 2017 | $0 | $120,000 | $0 | $120,000 | $120,000 |
| 2016 | $0 | $130,000 | $0 | $130,000 | $130,000 |
| 2015 | $0 | $100,000 | $0 | $100,000 | $100,000 |
| 2014 | $0 | $125,000 | $0 | $125,000 | $125,000 |
| 2013 | $0 | $133,110 | $0 | $133,110 | $133,110 |
| 2012 | $0 | $133,110 | $0 | $133,110 | $133,110 |
| 2011 | $0 | $133,110 | $0 | $133,110 | $133,110 |
| 2010 | $0 | $133,110 | $0 | $133,110 | $133,110 |
| 2009 | $0 | $167,620 | $0 | $167,620 | $167,620 |
| 2008 | $0 | $147,900 | $0 | $147,900 | $147,900 |
| 2007 | $0 | $123,250 | $0 | $123,250 | $123,250 |
Deed and Sales History
| 1 | 08/29/2022 | QCD | Quit Claim Deed | SHIVELY, JAMEN W | THELEN, ROBERT | | | $0.00 | 54816 | 4552391 |
| 2 | 04/27/2021 | WD | Warranty Deed | THELEN, ROBERT E | SHIVELY, JAMEN W | | | $275,000.00 | 48447 | 4520471 |
| 3 | 04/01/2008 | WD | Warranty Deed | TAG, PETER H | THELEN, ROBERT E | | | $161,000.00 | 80865 | 4225868 |
| 4 | 12/01/2006 | WD | Warranty Deed | SPECHT, SUSAN WRIGHT | TAG, PETER H | | | $149,500.00 | 65109 | 4188655 |
| 5 | 04/04/2005 | WD | Warranty Deed | CROSBY, RANDALL E | SPECHT, SUSAN WRIGHT | | | $92,500.00 | 51395 | 4130268 |
| 6 | 10/12/2004 | BLA | DNU - Boundary Line Adjustment | CROSBY, RANDALL E | CROSBY, RANDALL E | | | $0.00 | 70378 | 4055067 |
| 7 | 02/06/2003 | DECREE | Divorce Decree/Legal Separation | CROSBY, RANDALL | CROSBY, RANDALL E | | | $0.00 | 30616 | 4047929 |
| 8 | 04/18/2001 | WD | Warranty Deed | WALLS, KURT D | CROSBY, RANDALL | | | $28,750.00 | 11325 | 20030194 |
| 9 | 09/16/1998 | WD | Warranty Deed | WALLS, KURT D | WALLS, KURT D | | | $0.00 | 83693 | 98019242 |
| 10 | 09/16/1998 | QCD | Quit Claim Deed | WALLS, KURT D | WALLS, KURT D | | | $0.00 | 83692 | 98019241 |
| 11 | 07/15/1998 | WD | Warranty Deed | RUTLEDGE, MICHAEL J | WALLS, KURT D | | | $29,100.00 | 82925 | 98015332 |
| 12 | 07/15/1998 | ESTSEPPROP | Establish Separate Property | WALLS, KURT D | RUTLEDGE, MICHAEL J | | | $0.00 | 82924 | 98015331 |
| 13 | 03/01/1993 | QCD | Quit Claim Deed | RUTLEDGE, MICHAEL J | RUTLEDGE, MICHAEL J | | | $0.00 | 30884 | 93004653 |
| 14 | 08/01/1992 | WD | Warranty Deed | GRIFFIN, MATHEW D | RUTLEDGE, MICHAEL J | | | $31,250.00 | 30582 | 93003107 |
| 15 | 09/01/1991 | QCD | Quit Claim Deed | , | GRIFFIN, MATHEW D | | | $0.00 | 64416 | 352177 |
| 16 | 01/01/1900 | OTHER | Other - Misc. Documents | Unknown | , | | | $0.00 | 81128 | 88004252 |
| 17 | 01/01/1900 | OTHER | Other - Misc. Documents | RUTLEDGE, MICHAEL J | RUTLEDGE, MICHAEL J | | | $0.00 | 82924 | 98015331 |
| 18 | 01/01/1900 | OTHER | Other - Misc. Documents | RUTLEDGE, MICHAEL J | WALLS, KURT D | | | $0.00 | 82925 | 98015332 |
Payout Agreement
| No payout information available.. |