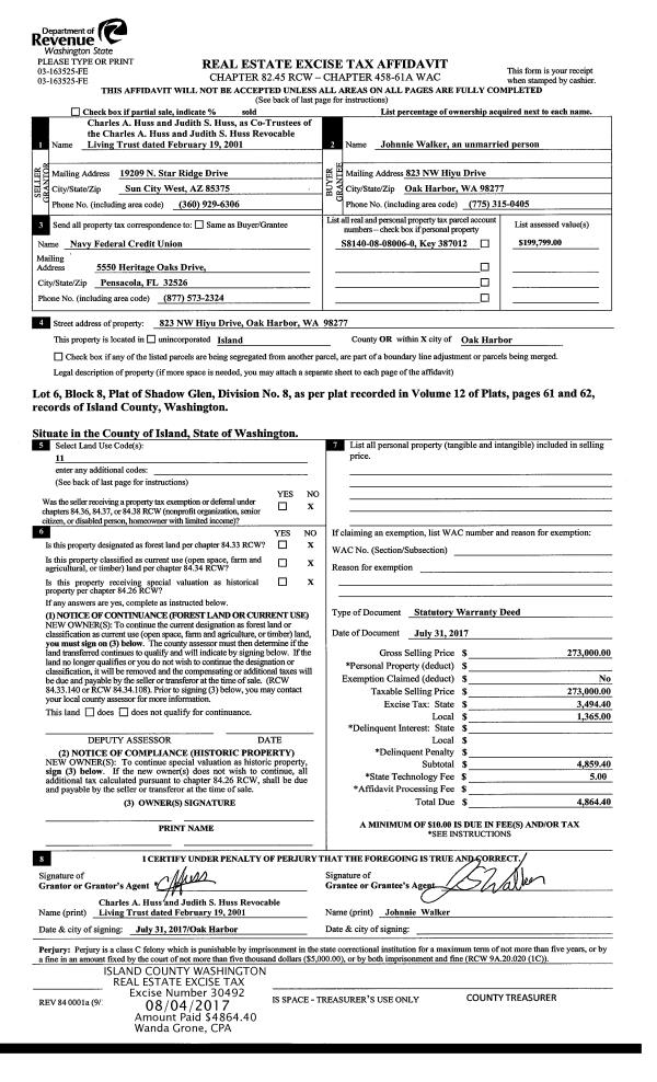
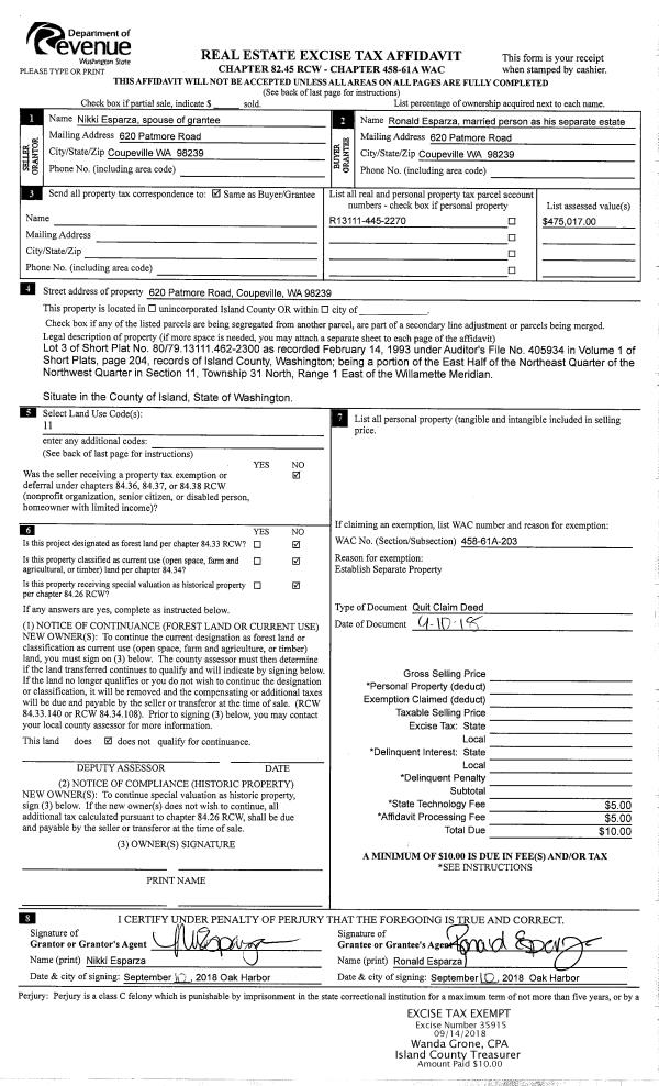
Property
Account |
| Property ID: | 662385 | Abbreviated Legal Description: | LOT 1 SP 58-90.23133.291-1170 V2 SP P309 AF#91011957 |
| Geographic ID: | R23133-287-0930 | Agent Code: | |
| Type: | Real | | |
| Tax Area: | 310 - APPRAISER-Cpvl Schl Dist, outside Cpvl, improved & 1 acre or less | Land Use Code | 11 |
| Open Space: | N | DFL | N |
| Historic Property: | N | Remodel Property: | N |
| Multi-Family Redevelopment: | N | | |
| Township: | 31 | Section: | 33 |
| Range: | R2 |
Location |
| Address: | 867 SNOWSHOE PLACE GREENBANK, WA 98253 | Mapsco: | |
| Neighborhood: | Cycle 2 | Map ID: | 531 |
| Neighborhood CD: | 2 |
Owner |
| Name: | CASTELLANOS, ANGEL | Owner ID: | 307566 |
| Mailing Address: | AMANDA CASTELLANOS 867 SNOWSHOE PLACE GREENBANK, WA 98253 | % Ownership: | 100.0000000000% |
| | | Exemptions: | |
Taxes and Assessment Details
Values
| (+) Improvement Homesite Value: | + | $0 | |
| (+) Improvement Non-Homesite Value: | + | $191,130 | |
| (+) Land Homesite Value: | + | $0 | |
| (+) Land Non-Homesite Value: | + | $218,182 | |
| (+) Curr Use (HS): | + | $0 | $0 |
| (+) Curr Use (NHS): | + | $0 | $0 |
| | | -------------------------- | |
| (=) Market Value: | = | $409,312 | |
| (–) Productivity Loss: | – | $0 | |
| | | -------------------------- | |
| (=) Subtotal: | = | $409,312 | |
| (+) Senior Appraised Value: | + | $0 | |
| (+) Non-Senior Appraised Value: | + | $409,312 | |
| | | -------------------------- | |
| (=) Total Appraised Value: | = | $409,312 | |
| (–) Senior Exemption Loss: | – | $0 | |
| (–) Exemption Loss: | – | $0 | |
| | | -------------------------- | |
| (=) Taxable Value: | = | $409,312 | |
Taxing Jurisdiction
| Owner: | CASTELLANOS, ANGEL | | |
| % Ownership: | 100.0000000000% | | |
| Total Value: | $409,312 | | |
| Tax Area: | 310 - APPRAISER-Cpvl Schl Dist, outside Cpvl, improved & 1 acre or less |
| CF | Conservation Futures | 0.0316035091 | $409,312 | $409,312 | $12.94 | | |
| CEM2 | Cemetery #2 | 0.0095056933 | $409,312 | $409,312 | $3.89 | | |
| FIRE5 | Fire & Rescue Dist #5 C Whidbey GEN | 1.2008080668 | $409,312 | $409,312 | $491.51 | | |
| FIRE5BOND | Fire & Rescue Dist #5 C Whidbey BOND | 0.1400090713 | $409,312 | $409,312 | $57.31 | | |
| HOBOND | Hospital BOND | 0.1910887512 | $409,312 | $409,312 | $78.21 | | |
| HOGEN | Hospital GEN | 0.3902502903 | $409,312 | $409,312 | $159.73 | | |
| CE | County Current Expense | 0.3708482477 | $409,312 | $409,312 | $151.79 | | |
| CR | County Roads | 0.4584763726 | $409,312 | $409,312 | $187.66 | | |
| ISLANDEMS | Hospital GEN (EMS) | 0.5000000000 | $409,312 | $409,312 | $204.66 | | |
| LIB | Library Sno-Isle GEN | 0.3153421757 | $409,312 | $409,312 | $129.07 | | |
| LIBCAP | Library Sno-Isle BOND (Cap Fac Imp Area) | 0.0543427938 | $409,312 | $409,312 | $22.24 | | |
| POCOUP | Port of Coupeville GEN | 0.1093371703 | $409,312 | $409,312 | $44.75 | | |
| POCOUPIDD | Port of Coupeville IDD | 0.3409740022 | $409,312 | $409,312 | $139.56 | | |
| COUPSDTECH | School 204 CP (TECH) | 0.7545480007 | $409,312 | $409,312 | $308.85 | | |
| SCH204MO | School 204 Enrichment | 0.6716186034 | $409,312 | $409,312 | $274.90 | | |
| ST | State School | 1.3035497053 | $409,312 | $409,312 | $533.56 | | |
| ST2 | State School Part 2 | 0.8169543533 | $409,312 | $409,312 | $334.39 | | |
| | Total Tax Rate: | 7.6592568070 | | | | | |
| | | | | Taxes w/Current Exemptions: | $3,135.02 | | |
| | | | | Taxes w/o Exemptions: | $3,135.02 | | |
Improvement / Building
| Improvement #1: | MANUFACTURED HOME | State Code: | Y | 1833.1 sqft | Value: | $191,130 |
| Bathrooms: | 0 | Bedrooms: | 0 | | Ceiling: | PLASTER PAINTED | Cooling: | EVAP NO DUCT | | Exterior Wall/Cover: | VINYL | Floor Covering: | CARPET 100% | | Floor Structure: | SLAB ON GRADE | Foundation: | SLAB | | Heating: | FHA ELECTRIC | Interior Finish: | PLASTER | | Plumbing Fixture Cnt: | 1 | Roof Slope: | FLAT | | Roof Structure/Cover: | CJ ALUMINIUM HEAVY |   |   |
|
| | Type | Description | Class CD | Sub Class CD | Year Built | Area |
| | BAS | BASE/MAIN FLOOR | 4 | 0 | 2004 | 1833.1 |
| | DGR | DETACHED GARAGE | 4 | 0 | 2004 | 672.0 |
| | OWP | OPEN WOOD PORCH W/STEPS | 4 | 0 | 2004 | 814.5 |
| | UTY | STORAGE/UTILITY | 4 | 0 | 2004 | 54.0 |
| | OWR | OPEN WOOD PORCH W/STEPS/ROOF | 4 | 0 | 2004 | 152.0 |
Sketch
| No sketches available for this property. |
Property Image
Land
| 1 | HS | HOMESITE | 0.4600 | 20037.60 | 0.00 | 0.00 | 1.00 | $218,182 | $0 |
Roll Value History
| 2026 | N/A | N/A | N/A | N/A | N/A |
| 2025 | $191,130 | $218,182 | $0 | $409,312 | $409,312 |
| 2024 | $194,527 | $190,000 | $0 | $384,527 | $384,527 |
| 2023 | $173,565 | $190,000 | $0 | $363,565 | $363,565 |
| 2022 | $163,268 | $170,000 | $0 | $333,268 | $81,946 |
| 2021 | $145,573 | $140,000 | $0 | $285,573 | $81,946 |
| 2020 | $144,800 | $120,000 | $0 | $264,800 | $81,946 |
| 2019 | $115,703 | $155,000 | $0 | $270,703 | $81,400 |
| 2018 | $111,040 | $135,000 | $0 | $246,040 | $93,073 |
| 2017 | $112,921 | $100,000 | $0 | $212,921 | $93,299 |
| 2016 | $114,806 | $90,000 | $0 | $204,806 | $204,806 |
| 2015 | $115,749 | $90,000 | $0 | $205,749 | $205,749 |
| 2014 | $116,691 | $71,250 | $0 | $187,941 | $187,941 |
| 2013 | $118,576 | $71,250 | $0 | $189,826 | $189,826 |
| 2012 | $131,302 | $71,250 | $0 | $202,552 | $202,552 |
| 2011 | $133,413 | $75,000 | $0 | $208,413 | $208,413 |
| 2010 | $133,885 | $75,000 | $0 | $208,885 | $208,885 |
| 2009 | $138,277 | $100,000 | $0 | $238,277 | $238,277 |
| 2008 | $114,372 | $79,750 | $0 | $194,122 | $194,122 |
| 2007 | $115,516 | $79,750 | $0 | $195,266 | $195,266 |
Deed and Sales History
| 1 | 01/28/2023 | WD | Warranty Deed | KRAMER, ELLIOT | CASTELLANOS, ANGEL | | | $425,000.00 | 55796 | 4556503 |
| 2 | 11/30/2017 | WD | Warranty Deed | THE SECRETARY OF HOUSING & URBAN DEVELOPMENT | KRAMER, ELLIOT | | | $206,809.00 | 32182 | 4435302 |
| 3 | 08/10/2017 | SPWARDEED | Special Warranty Deed | US BANK NATIONAL ASSOCIATION | THE SECRETARY OF HOUSING & URBAN DEVELOPMENT | | | $0.00 | 30754 | 4428691 |
| 4 | 05/15/2017 | TRUSTEED | Trustee's Deed | JOHNSON, TROY O | US BANK NATIONAL ASSOCIATION | | | $218,400.00 | 29319 | 4422664 |
| 5 | 09/15/2006 | ESTSEPPROP | Establish Separate Property | JOHNSON, TROY O | JOHNSON, TROY O | | | $0.00 | 64039 | 4182214 |
| 6 | 06/11/2004 | ESTSEPPROP | Establish Separate Property | JOHNSON, TROY O | JOHNSON, TROY O | | | $0.00 | 42592 | 4103807 |
| 7 | 06/11/2004 | WD | Warranty Deed | OAKWOOD HOMES INC, | JOHNSON, TROY O | | | $0.00 | 42591 | 4103806 |
| 8 | 12/31/2003 | WD | Warranty Deed | WYNKOOP SR, JOHN R | OAKWOOD HOMES INC, | | | $36,000.00 | 40177 | 4088647 |
| 9 | 11/08/2000 | WD | Warranty Deed | HANKINS, CARL W | WYNKOOP SR, JOHN R | | | $28,500.00 | 4593 | 20021278 |
| 10 | 01/01/1900 | OTHER | Other - Misc. Documents | Unknown | HANKINS, CARL W | | | $0.00 | 3584 | 90011599 |
Payout Agreement
| No payout information available.. |