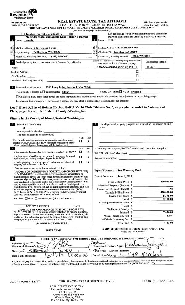
Property
Account |
| Property ID: | 662401 | Abbreviated Legal Description: | LOT 3 SP 58-90.23133.291-1170 V2 SP P309 AF#91011957 |
| Geographic ID: | R23133-291-1390 | Agent Code: | |
| Type: | Real | | |
| Tax Area: | 310 - APPRAISER-Cpvl Schl Dist, outside Cpvl, improved & 1 acre or less | Land Use Code | 11 |
| Open Space: | N | DFL | N |
| Historic Property: | N | Remodel Property: | N |
| Multi-Family Redevelopment: | N | | |
| Township: | 31 | Section: | 33 |
| Range: | R2 |
Location |
| Address: | 895 SNOWSHOE PLACE GREENBANK, WA 98253 | Mapsco: | |
| Neighborhood: | Area 2 Waterfront Eastside Res | Map ID: | 531 |
| Neighborhood CD: | 2WFTE01R |
Owner |
| Name: | GRADLE, MICHAEL W | Owner ID: | 84600 |
| Mailing Address: | MARIA J GRADLE PO BOX 413 GREENBANK, WA 98253 | % Ownership: | 100.0000000000% |
| | | Exemptions: | |
Taxes and Assessment Details
Values
| (+) Improvement Homesite Value: | + | $0 | |
| (+) Improvement Non-Homesite Value: | + | $631,720 | |
| (+) Land Homesite Value: | + | $0 | |
| (+) Land Non-Homesite Value: | + | $575,000 | |
| (+) Curr Use (HS): | + | $0 | $0 |
| (+) Curr Use (NHS): | + | $0 | $0 |
| | | -------------------------- | |
| (=) Market Value: | = | $1,206,720 | |
| (–) Productivity Loss: | – | $0 | |
| | | -------------------------- | |
| (=) Subtotal: | = | $1,206,720 | |
| (+) Senior Appraised Value: | + | $0 | |
| (+) Non-Senior Appraised Value: | + | $1,206,720 | |
| | | -------------------------- | |
| (=) Total Appraised Value: | = | $1,206,720 | |
| (–) Senior Exemption Loss: | – | $0 | |
| (–) Exemption Loss: | – | $0 | |
| | | -------------------------- | |
| (=) Taxable Value: | = | $1,206,720 | |
Taxing Jurisdiction
| Owner: | GRADLE, MICHAEL W | | |
| % Ownership: | 100.0000000000% | | |
| Total Value: | $1,206,720 | | |
| Tax Area: | 310 - APPRAISER-Cpvl Schl Dist, outside Cpvl, improved & 1 acre or less |
| CF | Conservation Futures | 0.0316035091 | $1,206,720 | $1,206,720 | $38.14 | | |
| CEM2 | Cemetery #2 | 0.0095056933 | $1,206,720 | $1,206,720 | $11.47 | | |
| FIRE5 | Fire & Rescue Dist #5 C Whidbey GEN | 1.2008080668 | $1,206,720 | $1,206,720 | $1,449.04 | | |
| FIRE5BOND | Fire & Rescue Dist #5 C Whidbey BOND | 0.1400090713 | $1,206,720 | $1,206,720 | $168.95 | | |
| HOBOND | Hospital BOND | 0.1910887512 | $1,206,720 | $1,206,720 | $230.59 | | |
| HOGEN | Hospital GEN | 0.3902502903 | $1,206,720 | $1,206,720 | $470.92 | | |
| CE | County Current Expense | 0.3708482477 | $1,206,720 | $1,206,720 | $447.51 | | |
| CR | County Roads | 0.4584763726 | $1,206,720 | $1,206,720 | $553.25 | | |
| ISLANDEMS | Hospital GEN (EMS) | 0.5000000000 | $1,206,720 | $1,206,720 | $603.36 | | |
| LIB | Library Sno-Isle GEN | 0.3153421757 | $1,206,720 | $1,206,720 | $380.53 | | |
| LIBCAP | Library Sno-Isle BOND (Cap Fac Imp Area) | 0.0543427938 | $1,206,720 | $1,206,720 | $65.58 | | |
| POCOUP | Port of Coupeville GEN | 0.1093371703 | $1,206,720 | $1,206,720 | $131.94 | | |
| POCOUPIDD | Port of Coupeville IDD | 0.3409740022 | $1,206,720 | $1,206,720 | $411.46 | | |
| COUPSDTECH | School 204 CP (TECH) | 0.7545480007 | $1,206,720 | $1,206,720 | $910.53 | | |
| SCH204MO | School 204 Enrichment | 0.6716186034 | $1,206,720 | $1,206,720 | $810.46 | | |
| ST | State School | 1.3035497053 | $1,206,720 | $1,206,720 | $1,573.02 | | |
| ST2 | State School Part 2 | 0.8169543533 | $1,206,720 | $1,206,720 | $985.84 | | |
| | Total Tax Rate: | 7.6592568070 | | | | | |
| | | | | Taxes w/Current Exemptions: | $9,242.59 | | |
| | | | | Taxes w/o Exemptions: | $9,242.59 | | |
Improvement / Building
| Improvement #1: | RESIDENTIAL | State Code: | Y | 2428.0 sqft | Value: | $631,720 |
| Bathrooms: | 2.5 | Bedrooms: | 3 | | Ceiling: | DRYWALL PAINTED | Cooling: | HEAT PUMP/CONV/V | | Exterior Wall/Cover: | CEMENT FIBER | Floor Covering: | HARDWOOD 100% | | Floor Structure: | WOOD W/SUBFLOOR | Foundation: | CONCRETE | | Interior Finish: | DRYWALL PAINT | Plumbing Fixture Cnt: | 14 | | Roof Slope: | 8" IN 12" | Roof Structure/Cover: | CJ ASPHALT |
|
| | Type | Description | Class CD | Sub Class CD | Year Built | Area |
| | BAS | BASE/MAIN FLOOR | 4 | 0 | 2018 | 1456.0 |
| | OWP | OPEN WOOD PORCH W/STEPS | 4 | 0 | 2018 | 144.0 |
| | OWC | OPEN WOOD PORCH W/STEPS/ROOF/C | 4 | 0 | 2018 | 216.0 |
| | AGR | ATTACHED GARAGE | 4 | 0 | 2018 | 612.0 |
| | UPS | UPPER STORY | 4 | 0 | 2018 | 972.0 |
| | OP4 | OPEN PORCH W/CEILING-ROOF | 4 | 0 | 2018 | 83.0 |
| | DGR | DETACHED GARAGE | 4 | 0 | 2020 | 864.0 |
Sketch
| No sketches available for this property. |
Property Image
Land
| 1 | HB | HIGH BLUFF | 0.7000 | 30492.00 | 100.00 | 0.00 | 1.00 | $575,000 | $0 |
Roll Value History
| 2026 | N/A | N/A | N/A | N/A | N/A |
| 2025 | $631,720 | $575,000 | $0 | $1,206,720 | $1,206,720 |
| 2024 | $586,291 | $550,000 | $0 | $1,136,291 | $1,136,291 |
| 2023 | $591,021 | $525,000 | $0 | $1,116,021 | $1,116,021 |
| 2022 | $539,469 | $425,000 | $0 | $964,469 | $964,469 |
| 2021 | $472,834 | $375,000 | $0 | $847,834 | $847,834 |
| 2020 | $443,404 | $300,000 | $0 | $743,404 | $743,404 |
| 2019 | $331,195 | $350,000 | $0 | $681,195 | $681,195 |
| 2018 | $41,356 | $300,000 | $0 | $341,356 | $341,356 |
| 2017 | $41,696 | $250,000 | $0 | $291,696 | $291,696 |
| 2016 | $42,497 | $250,000 | $0 | $292,497 | $292,497 |
| 2015 | $43,301 | $250,000 | $0 | $293,301 | $293,301 |
| 2014 | $44,103 | $250,000 | $0 | $294,103 | $294,103 |
| 2013 | $44,903 | $196,622 | $0 | $241,525 | $241,525 |
| 2012 | $34,135 | $196,622 | $0 | $230,757 | $230,757 |
| 2011 | $34,893 | $196,622 | $0 | $231,515 | $231,515 |
| 2010 | $41,623 | $196,622 | $0 | $238,245 | $238,245 |
| 2009 | $43,598 | $228,774 | $0 | $272,372 | $272,372 |
| 2008 | $44,361 | $228,774 | $0 | $273,135 | $273,135 |
| 2007 | $45,124 | $228,774 | $0 | $273,898 | $273,898 |
Deed and Sales History
| 1 | 10/19/1998 | WD | Warranty Deed | PURCELL, DANIEL R | GRADLE, MICHAEL W | | | $146,000.00 | 84211 | 98022831 |
| 2 | 04/01/1994 | WD | Warranty Deed | HANKINS, CARL W | PURCELL, DANIEL R | | | $111,000.00 | 41524 | 94009313 |
| 3 | 01/01/1900 | OTHER | Other - Misc. Documents | Unknown | HANKINS, CARL W | | | $0.00 | 3584 | 90011599 |
Payout Agreement
| No payout information available.. |