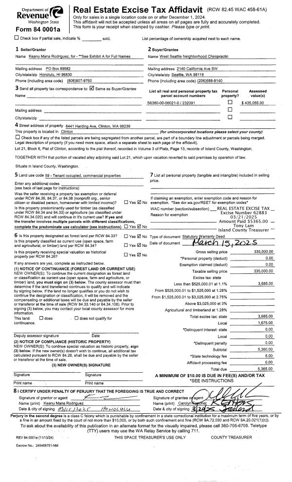
Property
Account |
| Property ID: | 662768 | Abbreviated Legal Description: | LOT A C-SP 85-2.13233.317-3200 AF#86002094-5 V2 SP P17 TGW N155.01'OF LOT B C-SP 35-2 MEAS ALG ELN TGW LOT A C-BLA AF#91013852 EX BG SECR SD LOT A N88*W ALG SLN SD LOT A 40.00' N1*E ALG LN PARA/ELN SD LOT A 34.01' S88*E ALG LN PARA/SLN SD LOT A 40.00' |
| Geographic ID: | R13233-344-3260 | Agent Code: | |
| Type: | Real | | |
| Tax Area: | 300 - APPRAISER-Cpvl Schl Dist, in Cpvl | Land Use Code | 79 |
| Open Space: | N | DFL | N |
| Historic Property: | N | Remodel Property: | N |
| Multi-Family Redevelopment: | N | | |
| Township: | 32 | Section: | 33 |
| Range: | R1 |
Location |
| Address: | 802 NW ALEXANDER ST COUPEVILLE, WA 98239 | Mapsco: | |
| Neighborhood: | Area 2 Coupeville Exempt Commercial | Map ID: | 175 |
| Neighborhood CD: | 2CpvExComm |
Owner |
| Name: | TOWN OF COUPEVILLE | Owner ID: | 7253 |
| Mailing Address: | 4 NE SEVENTH ST COUPEVILLE, WA 98239 | % Ownership: | 100.0000000000% |
| | | Exemptions: | EX |
Taxes and Assessment Details
Property Tax Information as of
10/22/2025
Click on "Statement Details" to expand or collapse a tax statement.
* Please enter a valid date ** Please enter a valid date *
Statement Details |
| 2025 | 40596 | ST - State School | $0.00 | $0.00 | $0.00 | $0.00 | $0.00 | $0.00 |
| 2025 | 40596 | Island County - Island County General Fund | $0.00 | $0.00 | $0.00 | $0.00 | $0.00 | $0.00 |
| 2025 | 40596 | CICPVL - City: Town of Coupeville | $0.00 | $0.00 | $0.00 | $0.00 | $0.00 | $0.00 |
| 2025 | 40596 | PRTCPVL - Port of Coupeville | $0.00 | $0.00 | $0.00 | $0.00 | $0.00 | $0.00 |
| 2025 | 40596 | SCH204 - School 204 Coupeville | $0.00 | $0.00 | $0.00 | $0.00 | $0.00 | $0.00 |
| 2025 | 40596 | CEM2 - Cemetery #2 Central Whidbey | $0.00 | $0.00 | $0.00 | $0.00 | $0.00 | $0.00 |
| 2025 | 40596 | FIRE5 - Fire & Rescue Dist #5 Central Whidbey | $0.00 | $0.00 | $0.00 | $0.00 | $0.00 | $0.00 |
| 2025 | 40596 | LIB - Library Sno-Isle Regional | $0.00 | $0.00 | $0.00 | $0.00 | $0.00 | $0.00 |
| 2025 | 40596 | HOSPEMS - Whidbey Health EMS Island County | $0.00 | $0.00 | $0.00 | $0.00 | $0.00 | $0.00 |
| 2025 | 40596 | HOSP - Whidbey Health | $0.00 | $0.00 | $0.00 | $0.00 | $0.00 | $0.00 |
| 2025 | 40596 | CF - Island County Conservation Futures | $0.00 | $0.00 | $0.00 | $0.00 | $0.00 | $0.00 |
| 2025 | 40596 | TOTAL: | $0.00 | $0.00 | $0.00 | $0.00 | $0.00 | $0.00 |
|
| 2025 | 40596 | $0.00 | $0.00 | $0.00 | $0.00 | $0.00 | $0.00 |
Statement Details |
| 2016 | 41278 | WDBYCNV - Whidbey Conservation District | $0.00 | $0.00 | $0.00 | $0.00 | $0.00 | $0.00 |
| 2016 | 41278 | TOTAL: | $0.00 | $0.00 | $0.00 | $0.00 | $0.00 | $0.00 |
|
| 2016 | 41278 | $0.00 | $0.00 | $0.00 | $0.00 | $0.00 | $0.00 |
Values
| (+) Improvement Homesite Value: | + | $0 | |
| (+) Improvement Non-Homesite Value: | + | $220,767 | |
| (+) Land Homesite Value: | + | $0 | |
| (+) Land Non-Homesite Value: | + | $280,000 | |
| (+) Curr Use (HS): | + | $0 | $0 |
| (+) Curr Use (NHS): | + | $0 | $0 |
| | | -------------------------- | |
| (=) Market Value: | = | $500,767 | |
| (–) Productivity Loss: | – | $0 | |
| | | -------------------------- | |
| (=) Subtotal: | = | $500,767 | |
| (+) Senior Appraised Value: | + | $0 | |
| (+) Non-Senior Appraised Value: | + | $500,767 | |
| | | -------------------------- | |
| (=) Total Appraised Value: | = | $500,767 | |
| (–) Senior Exemption Loss: | – | $0 | |
| (–) Exemption Loss: | – | $500,767 | |
| | | -------------------------- | |
| (=) Taxable Value: | = | $0 | |
Taxing Jurisdiction
| Owner: | TOWN OF COUPEVILLE | | |
| % Ownership: | 100.0000000000% | | |
| Total Value: | $500,767 | | |
| Tax Area: | 300 - APPRAISER-Cpvl Schl Dist, in Cpvl |
| CF | Conservation Futures | 0.0316035091 | $500,767 | $0 | $0.00 | | |
| CEM2 | Cemetery #2 | 0.0095056933 | $500,767 | $0 | $0.00 | | |
| COUP | City: Town of Coupeville | 0.8426414490 | $500,767 | $0 | $0.00 | | |
| FIRE5 | Fire & Rescue Dist #5 C Whidbey GEN | 1.2008080668 | $500,767 | $0 | $0.00 | | |
| FIRE5BOND | Fire & Rescue Dist #5 C Whidbey BOND | 0.1400090713 | $500,767 | $0 | $0.00 | | |
| HOBOND | Hospital BOND | 0.1910887512 | $500,767 | $0 | $0.00 | | |
| HOGEN | Hospital GEN | 0.3902502903 | $500,767 | $0 | $0.00 | | |
| CE | County Current Expense | 0.3708482477 | $500,767 | $0 | $0.00 | | |
| ISLANDEMS | Hospital GEN (EMS) | 0.5000000000 | $500,767 | $0 | $0.00 | | |
| LIB | Library Sno-Isle GEN | 0.3153421757 | $500,767 | $0 | $0.00 | | |
| LIBCAP | Library Sno-Isle BOND (Cap Fac Imp Area) | 0.0543427938 | $500,767 | $0 | $0.00 | | |
| POCOUP | Port of Coupeville GEN | 0.1093371703 | $500,767 | $0 | $0.00 | | |
| POCOUPIDD | Port of Coupeville IDD | 0.3409740022 | $500,767 | $0 | $0.00 | | |
| COUPSDTECH | School 204 CP (TECH) | 0.7545480007 | $500,767 | $0 | $0.00 | | |
| SCH204MO | School 204 Enrichment | 0.6716186034 | $500,767 | $0 | $0.00 | | |
| ST | State School | 1.3035497053 | $500,767 | $0 | $0.00 | | |
| ST2 | State School Part 2 | 0.8169543533 | $500,767 | $0 | $0.00 | | |
| | Total Tax Rate: | 8.0434218834 | | | | | |
| | | | | Taxes w/Current Exemptions: | $0.00 | | |
| | | | | Taxes w/o Exemptions: | $4,027.86 | | |
Improvement / Building
| Improvement #1: | COMMERCIAL | State Code: | X | 600.0 sqft | Value: | $220,767 |
| Bathrooms: | 4 | Ceiling: | DRYWALL PAINTED | | Exterior Wall/Cover: | WOOD SIDING | Floor Covering: | CONCRETE SEALER | | Floor Structure: | SLAB ON GRADE | Foundation: | CONCRETE | | Heating: | SPACE HEATERS | Interior Finish: | DRYWALL PAINT | | Plumbing Fixture Cnt: | 11 | Roof Slope: | 6" IN 12" | | Roof Structure/Cover: | CJ WOOD SHINGLE |   |   |
|
| | Type | Description | Class CD | Sub Class CD | Year Built | Area |
| | BAS | BASE/MAIN FLOOR | 3 | 0 | 1910 | 600.0 |
| | UTY | STORAGE/UTILITY | 3 | 0 | 1910 | 390.0 |
| | oLIT | LITE POLE | 3 | 0 | 1910 | 0.0 |
| | oPV1 | PV/ASPH 2" | 3 | 0 | 1910 | 33105.0 |
Sketch
Property Image
Land
| 1 | 64 | PERSONAL BUSINESS | 1.0300 | 44866.80 | 0.00 | 0.00 | 1.00 | $280,000 | $0 |
Roll Value History
| 2026 | N/A | N/A | N/A | N/A | N/A |
| 2025 | $220,767 | $280,000 | $0 | $500,767 | $0 |
| 2024 | $222,113 | $139,830 | $0 | $361,943 | $0 |
| 2023 | $223,459 | $139,830 | $0 | $363,289 | $0 |
| 2022 | $208,651 | $139,830 | $0 | $348,481 | $0 |
| 2021 | $189,872 | $139,830 | $0 | $329,702 | $0 |
| 2020 | $185,400 | $139,830 | $0 | $325,230 | $0 |
| 2019 | $140,012 | $279,660 | $0 | $419,672 | $0 |
| 2018 | $8,000 | $116,525 | $0 | $124,525 | $0 |
| 2017 | $8,000 | $69,915 | $0 | $77,915 | $0 |
| 2016 | $8,000 | $69,915 | $0 | $77,915 | $0 |
| 2015 | $8,000 | $69,915 | $0 | $77,915 | $0 |
| 2014 | $8,000 | $69,915 | $0 | $77,915 | $0 |
| 2013 | $0 | $69,915 | $0 | $69,915 | $0 |
| 2012 | $0 | $77,839 | $0 | $77,839 | $0 |
| 2011 | $0 | $77,839 | $0 | $77,839 | $0 |
| 2010 | $0 | $77,839 | $0 | $77,839 | $0 |
| 2009 | $0 | $77,839 | $0 | $77,839 | $0 |
| 2008 | $0 | $77,839 | $0 | $77,839 | $0 |
| 2007 | $0 | $206,482 | $0 | $206,482 | $0 |
Deed and Sales History
| 1 | 07/01/2010 | BLA | DNU - Boundary Line Adjustment | TOWN, OF C | TOWN OF COUPEVILLE, | | | $0.00 | 81786 | 4251629 |
| 2 | 09/01/1991 | OTHER | Other - Misc. Documents | ISLAND, CO H | ISLAND, CO H | | | $0.00 | 64455 | 91013852 |
| 3 | 08/01/1991 | QCD | Quit Claim Deed | Unknown | ISLAND, CO H | | | $0.00 | 13260 | 91013851 |
| 4 | 08/01/1991 | WD | Warranty Deed | ISLAND, CO H | ISLAND, CO H | | | $0.00 | 13261 | 91013853 |
| 5 | 08/01/1991 | WD | Warranty Deed | ISLAND, CO H | TOWN, OF C | | | $66,800.00 | 13262 | 91013854 |
Payout Agreement
| No payout information available.. |