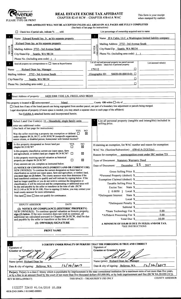
Property
Account |
| Property ID: | 662857 | Abbreviated Legal Description: | S190'OF E/2 OF W/2 & W/2 OF E/2 OF NE NW SE EX W30' EX S40' EX E30' FR 219-3670 & 219-3810 |
| Geographic ID: | R23114-219-3730 | Agent Code: | |
| Type: | Real | | |
| Tax Area: | 510 - APPRAISER-Stan/Cam Schl Dist, improved & 1 acre or less | Land Use Code | 11 |
| Open Space: | N | DFL | N |
| Historic Property: | N | Remodel Property: | N |
| Multi-Family Redevelopment: | N | | |
| Township: | 31 | Section: | 14 |
| Range: | R2 |
Location |
| Address: | 528 KODIAK AVE CAMANO ISLAND, WA 98282 | Mapsco: | |
| Neighborhood: | Cycle 5 | Map ID: | 482 |
| Neighborhood CD: | 5 |
Owner |
| Name: | COOPERMAN-BACH, JULIE | Owner ID: | 310981 |
| Mailing Address: | THOMAS BACH 528 KODIAK AVE CAMANO ISLAND, WA 98282 | % Ownership: | 100.0000000000% |
| | | Exemptions: | |
Taxes and Assessment Details
Values
| (+) Improvement Homesite Value: | + | $0 | |
| (+) Improvement Non-Homesite Value: | + | $105,999 | |
| (+) Land Homesite Value: | + | $0 | |
| (+) Land Non-Homesite Value: | + | $130,000 | |
| (+) Curr Use (HS): | + | $0 | $0 |
| (+) Curr Use (NHS): | + | $0 | $0 |
| | | -------------------------- | |
| (=) Market Value: | = | $235,999 | |
| (–) Productivity Loss: | – | $0 | |
| | | -------------------------- | |
| (=) Subtotal: | = | $235,999 | |
| (+) Senior Appraised Value: | + | $0 | |
| (+) Non-Senior Appraised Value: | + | $235,999 | |
| | | -------------------------- | |
| (=) Total Appraised Value: | = | $235,999 | |
| (–) Senior Exemption Loss: | – | $0 | |
| (–) Exemption Loss: | – | $0 | |
| | | -------------------------- | |
| (=) Taxable Value: | = | $235,999 | |
Taxing Jurisdiction
| Owner: | COOPERMAN-BACH, JULIE | | |
| % Ownership: | 100.0000000000% | | |
| Total Value: | $235,999 | | |
| Tax Area: | 510 - APPRAISER-Stan/Cam Schl Dist, improved & 1 acre or less |
| CF | Conservation Futures | 0.0316035091 | $235,999 | $235,999 | $7.46 | | |
| EMS1 | Fire & Rescue Dist #1 Camano GEN (EMS) | 0.3677864386 | $235,999 | $235,999 | $86.80 | | |
| FIRE1 | Fire & Rescue Dist #1 Camano GEN | 1.2502910536 | $235,999 | $235,999 | $295.07 | | |
| FIRE1BOND | Fire & Rescue Dist #1 Camano BOND | 0.1570001679 | $235,999 | $235,999 | $37.05 | | |
| CE | County Current Expense | 0.3708482477 | $235,999 | $235,999 | $87.52 | | |
| CR | County Roads | 0.4584763726 | $235,999 | $235,999 | $108.20 | | |
| LCIB | Library Sno-Isle BOND (Camano Island) | 0.0396325772 | $235,999 | $235,999 | $9.35 | | |
| LIB | Library Sno-Isle GEN | 0.3153421757 | $235,999 | $235,999 | $74.42 | | |
| SCH205_401 | School 205-401 Enrichment | 1.2698420524 | $235,999 | $235,999 | $299.68 | | |
| SCH205BOND | School 205-401 BOND | 0.9396497583 | $235,999 | $235,999 | $221.76 | | |
| ST | State School | 1.3035497053 | $235,999 | $235,999 | $307.64 | | |
| ST2 | State School Part 2 | 0.8169543533 | $235,999 | $235,999 | $192.80 | | |
| | Total Tax Rate: | 7.3209764117 | | | | | |
| | | | | Taxes w/Current Exemptions: | $1,727.75 | | |
| | | | | Taxes w/o Exemptions: | $1,727.75 | | |
Improvement / Building
| Improvement #1: | MANUFACTURED HOME | State Code: | Y | 988.2 sqft | Value: | $16,630 |
| Bathrooms: | 0 | Bedrooms: | 0 | | Ceiling: | PLASTER PAINTED | Cooling: | EVAP NO DUCT | | Exterior Wall/Cover: | VINYL | Floor Covering: | CARPET 100% | | Floor Structure: | SLAB ON GRADE | Foundation: | SLAB | | Heating: | FHA ELECTRIC | Interior Finish: | PLASTER | | Plumbing Fixture Cnt: | 1 | Roof Slope: | FLAT | | Roof Structure/Cover: | CJ ALUMINIUM HEAVY |   |   |
|
| | Type | Description | Class CD | Sub Class CD | Year Built | Area |
| | BAS | BASE/MAIN FLOOR | 3 | 0 | 1980 | 988.2 |
| | ENP | ENCLOSED PORCH | 3 | 0 | 1980 | 336.0 |
| Improvement #2: | RESIDENTIAL | State Code: | Y | 768.0 sqft | Value: | $89,369 |
| Bathrooms: | 1 | Bedrooms: | 2 | | Ceiling: | DRY WALL SPRAYED | Exterior Wall/Cover: | CEMENT FIBER | | Floor Covering: | LAMINATE/LVP | Floor Structure: | WOOD W/SUBFLOOR | | Foundation: | CONCRETE | Heating: | HEAT PUMP | | Interior Finish: | DRYWALL PAINT | Plumbing Fixture Cnt: | 7 | | Roof Slope: | 6" IN 12" | Roof Structure/Cover: | CJ ASPHALT |
|
| | Type | Description | Class CD | Sub Class CD | Year Built | Area |
| | BAS | BASE/MAIN FLOOR | 3 | 0 | 2025 | 768.0 |
| | OP3 | OPEN PORCH W/ROOF | 3 | 0 | 2025 | 384.0 |
Sketch
Property Image
Land
| 1 | 16 | AC (00.51-01.00) | 0.9300 | 40510.80 | 0.00 | 0.00 | 1.00 | $130,000 | $0 |
Roll Value History
| 2026 | N/A | N/A | N/A | N/A | N/A |
| 2025 | $105,999 | $130,000 | $0 | $235,999 | $235,999 |
| 2024 | $19,103 | $130,000 | $0 | $149,103 | $149,103 |
| 2023 | $20,558 | $230,000 | $0 | $250,558 | $250,558 |
| 2022 | $20,282 | $210,000 | $0 | $230,282 | $230,282 |
| 2021 | $17,041 | $150,000 | $0 | $167,041 | $167,041 |
| 2020 | $17,743 | $120,000 | $0 | $137,743 | $137,743 |
| 2019 | $15,397 | $160,000 | $0 | $175,397 | $175,397 |
| 2018 | $15,966 | $120,000 | $0 | $135,966 | $135,966 |
| 2017 | $16,534 | $100,000 | $0 | $116,534 | $116,534 |
| 2016 | $17,103 | $100,000 | $0 | $117,103 | $117,103 |
| 2015 | $16,690 | $65,000 | $0 | $81,690 | $81,690 |
| 2014 | $16,925 | $65,000 | $0 | $81,925 | $81,925 |
| 2013 | $17,161 | $41,600 | $0 | $58,761 | $58,761 |
| 2012 | $17,396 | $41,600 | $0 | $58,996 | $58,996 |
| 2011 | $17,632 | $52,000 | $0 | $69,632 | $69,632 |
| 2010 | $17,737 | $52,000 | $0 | $69,737 | $69,737 |
| 2009 | $16,470 | $90,000 | $0 | $106,470 | $106,470 |
| 2008 | $17,119 | $95,000 | $0 | $112,119 | $112,119 |
| 2007 | $13,537 | $99,271 | $0 | $112,808 | $112,808 |
Deed and Sales History
| 1 | 12/19/2023 | WD | Warranty Deed | SIMO, HAROLD W WEGA | COOPERMAN-BACH, JULIE | | | $355,000.00 | 58815 | 4567866 |
| 2 | 09/24/2021 | WD | Warranty Deed | BLUE TURTLE HOLDING, LLC | SIMO, HAROLD W WEGA | | | $299,000.00 | 50273 | 4530387 |
| 3 | 12/28/2017 | WD | Warranty Deed | BOWEN, KENNETH | BLUE TURTLE HOLDING, LLC | | | $115,966.00 | 32505 | 4436840 |
| 4 | 08/04/2014 | WD | Warranty Deed | SHERIFF, CHRIS M | BOWEN, KENNETH | | | $95,000.00 | 17098 | 4366705 |
| 5 | 10/16/2003 | WD | Warranty Deed | SHERIFF, GLENN M | SHERIFF, GLENN M | | | $85,500.00 | 34752 | 4079978 |
| 6 | 11/01/1991 | OTHER | Other - Misc. Documents | SHERIFF, GLENN M | SHERIFF, GLENN M | | | $0.00 | 64465 | 91017218 |
| 7 | 05/01/1987 | OTHER | Other - Misc. Documents | Unknown | SHERIFF, GLENN M | | | $20,000.00 | 71232 | 0 |
| 8 | 01/01/1900 | OTHER | Other - Misc. Documents | SHERIFF, GLENN M | SHERIFF, GLENN M | | | $0.00 | 70656 | 87003606 |
Payout Agreement
| No payout information available.. |