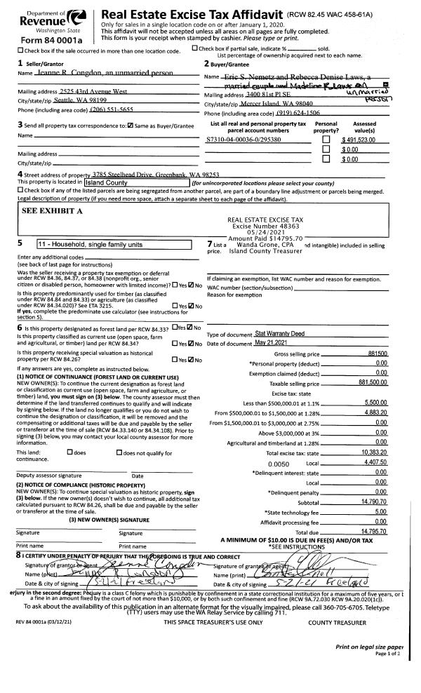
Property
Account |
| Property ID: | 663017 | Abbreviated Legal Description: | ANDERSON ROAD - PRD LOT 4 |
| Geographic ID: | S6033-00-00004-0 | Agent Code: | |
| Type: | Real | | |
| Tax Area: | 710 - APPRAISER-S Whid Schl Dist, outside Langley, improved & 1 acre or less | Land Use Code | 11 |
| Open Space: | N | DFL | N |
| Historic Property: | N | Remodel Property: | N |
| Multi-Family Redevelopment: | N | | |
| Township: | | Section: | |
| Range: | |
Location |
| Address: | 3746 TALKING CIR LANGLEY, WA 98260 | Mapsco: | |
| Neighborhood: | Cycle 4 | Map ID: | 723 |
| Neighborhood CD: | 4 |
Owner |
| Name: | MURPHY, TERESA A | Owner ID: | 255519 |
| Mailing Address: | 3746 TALKING CIRCLE LANGLEY, WA 98260 | % Ownership: | 100.0000000000% |
| | | Exemptions: | |
Taxes and Assessment Details
Values
| (+) Improvement Homesite Value: | + | $0 | |
| (+) Improvement Non-Homesite Value: | + | $263,676 | |
| (+) Land Homesite Value: | + | $0 | |
| (+) Land Non-Homesite Value: | + | $240,000 | |
| (+) Curr Use (HS): | + | $0 | $0 |
| (+) Curr Use (NHS): | + | $0 | $0 |
| | | -------------------------- | |
| (=) Market Value: | = | $503,676 | |
| (–) Productivity Loss: | – | $0 | |
| | | -------------------------- | |
| (=) Subtotal: | = | $503,676 | |
| (+) Senior Appraised Value: | + | $0 | |
| (+) Non-Senior Appraised Value: | + | $503,676 | |
| | | -------------------------- | |
| (=) Total Appraised Value: | = | $503,676 | |
| (–) Senior Exemption Loss: | – | $0 | |
| (–) Exemption Loss: | – | $0 | |
| | | -------------------------- | |
| (=) Taxable Value: | = | $503,676 | |
Taxing Jurisdiction
| Owner: | MURPHY, TERESA A | | |
| % Ownership: | 100.0000000000% | | |
| Total Value: | $503,676 | | |
| Tax Area: | 710 - APPRAISER-S Whid Schl Dist, outside Langley, improved & 1 acre or less |
| CF | Conservation Futures | 0.0316035091 | $503,676 | $503,676 | $15.92 | | |
| FIRE3 | Fire & Rescue Dist #3 S Whidbey GEN | 1.2004855531 | $503,676 | $503,676 | $604.66 | | |
| HOBOND | Hospital BOND | 0.1910887512 | $503,676 | $503,676 | $96.25 | | |
| HOGEN | Hospital GEN | 0.3902502903 | $503,676 | $503,676 | $196.56 | | |
| CE | County Current Expense | 0.3708482477 | $503,676 | $503,676 | $186.79 | | |
| CR | County Roads | 0.4584763726 | $503,676 | $503,676 | $230.92 | | |
| ISLANDEMS | Hospital GEN (EMS) | 0.5000000000 | $503,676 | $503,676 | $251.84 | | |
| LIB | Library Sno-Isle GEN | 0.3153421757 | $503,676 | $503,676 | $158.83 | | |
| PORTWHID | Port of S Whidbey GEN | 0.1094540357 | $503,676 | $503,676 | $55.13 | | |
| SCH206BOND | School 206 BOND | 0.3161759235 | $503,676 | $503,676 | $159.25 | | |
| SCH206MO | School 206 Enrichment | 0.4547169547 | $503,676 | $503,676 | $229.03 | | |
| ST | State School | 1.3035497053 | $503,676 | $503,676 | $656.57 | | |
| ST2 | State School Part 2 | 0.8169543533 | $503,676 | $503,676 | $411.48 | | |
| SWHIDPRBD | P & R S Whidbey BOND | 0.0152817568 | $503,676 | $503,676 | $7.70 | | |
| SWHIDPRBD2 | P & R S Whidbey BOND2 | 0.0138911264 | $503,676 | $503,676 | $7.00 | | |
| SWHIDPRMT | P & R S Whidbey GEN | 0.2053334452 | $503,676 | $503,676 | $103.42 | | |
| | Total Tax Rate: | 6.6934522006 | | | | | |
| | | | | Taxes w/Current Exemptions: | $3,371.35 | | |
| | | | | Taxes w/o Exemptions: | $3,371.35 | | |
Improvement / Building
| Improvement #1: | RESIDENTIAL | State Code: | Y | 1440.0 sqft | Value: | $263,676 |
| Bathrooms: | 2 | Bedrooms: | 4 | | Ceiling: | BEAM PAINTED | Exterior Wall/Cover: | WOOD SIDING | | Floor Covering: | HARDWOOD/CARP 60-40 | Floor Structure: | WOOD W/SUBFLOOR | | Foundation: | CONCRETE | Heating: | FHA GAS | | Interior Finish: | DRYWALL PAINT | Plumbing Fixture Cnt: | 9 | | Roof Slope: | 6" IN 12" | Roof Structure/Cover: | CJ ALUMINIUM HEAVY |
|
| | Type | Description | Class CD | Sub Class CD | Year Built | Area |
| | BAS | BASE/MAIN FLOOR | 3 | 0 | 1992 | 768.0 |
| | UPS | UPPER STORY | 3 | 0 | 1992 | 672.0 |
| | OWR | OPEN WOOD PORCH W/STEPS/ROOF | 3 | 0 | 1992 | 72.0 |
| | UTY | STORAGE/UTILITY | 3 | 0 | 1992 | 128.0 |
| | OWP | OPEN WOOD PORCH W/STEPS | 3 | 0 | 1992 | 392.0 |
Sketch
Property Image
Land
| 1 | 14 | SQ (08001-12000) | 0.0000 | 0.00 | 0.00 | 0.00 | 1.00 | $240,000 | $0 |
Roll Value History
| 2026 | N/A | N/A | N/A | N/A | N/A |
| 2025 | $263,676 | $240,000 | $0 | $503,676 | $503,676 |
| 2024 | $262,734 | $230,000 | $0 | $492,734 | $492,734 |
| 2023 | $266,091 | $230,000 | $0 | $496,091 | $496,091 |
| 2022 | $243,984 | $210,000 | $0 | $453,984 | $453,984 |
| 2021 | $214,811 | $150,000 | $0 | $364,811 | $364,811 |
| 2020 | $184,761 | $135,000 | $0 | $319,761 | $319,761 |
| 2019 | $134,721 | $210,000 | $0 | $344,721 | $344,721 |
| 2018 | $135,145 | $170,000 | $0 | $305,145 | $305,145 |
| 2017 | $135,996 | $150,000 | $0 | $285,996 | $285,996 |
| 2016 | $137,695 | $120,000 | $0 | $257,695 | $257,695 |
| 2015 | $139,395 | $95,000 | $0 | $234,395 | $234,395 |
| 2014 | $133,718 | $95,000 | $0 | $228,718 | $228,718 |
| 2013 | $135,369 | $80,750 | $0 | $216,119 | $216,119 |
| 2012 | $137,020 | $80,750 | $0 | $217,770 | $217,770 |
| 2011 | $138,671 | $95,000 | $0 | $233,671 | $233,671 |
| 2010 | $142,993 | $114,000 | $0 | $256,993 | $256,993 |
| 2009 | $149,101 | $125,000 | $0 | $274,101 | $274,101 |
| 2008 | $136,149 | $125,000 | $0 | $261,149 | $261,149 |
| 2007 | $137,754 | $125,000 | $0 | $262,754 | $262,754 |
Deed and Sales History
| 1 | 09/09/2011 | WD | Warranty Deed | LAWLOR, GRETCHEN | MURPHY, TERESA A | | | $266,000.00 | 5541 | 4301207 |
| 2 | 10/11/2007 | OTHER | Other - Misc. Documents | LAWLOR, GRETCHEN & | LAWLOR, GRETCHEN | | | $0.00 | 80395 | 0 |
| 3 | 09/01/1991 | QCD | Quit Claim Deed | ANDERSON, ROAD G | LAWLOR, GRETCHEN & | | | $25,000.00 | 13184 | 91013509 |
| 4 | 01/01/1900 | OTHER | Other - Misc. Documents | Unknown | ANDERSON, ROAD G | | | $0.00 | 11201 | 91005114 |
Payout Agreement
| No payout information available.. |