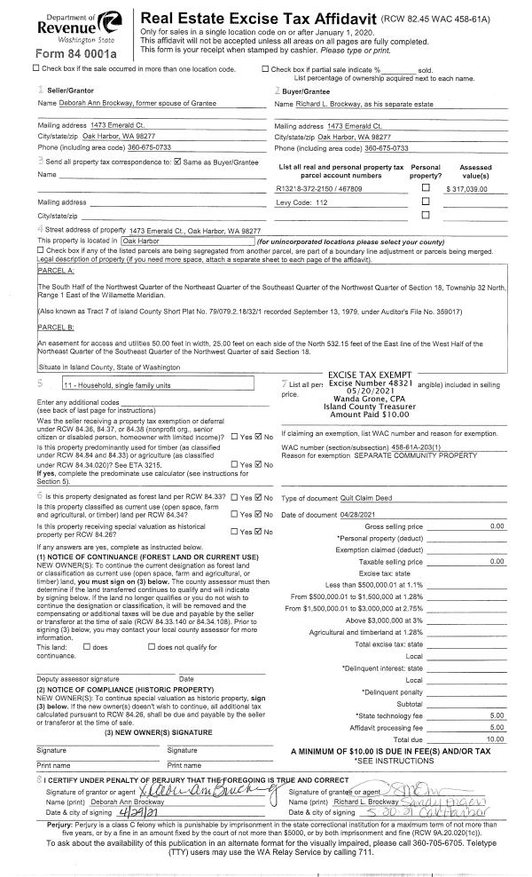
Property
Account |
| Property ID: | 663053 | Abbreviated Legal Description: | ANDERSON ROAD - PRD LOT 8 |
| Geographic ID: | S6033-00-00008-0 | Agent Code: | |
| Type: | Real | | |
| Tax Area: | 710 - APPRAISER-S Whid Schl Dist, outside Langley, improved & 1 acre or less | Land Use Code | 11 |
| Open Space: | N | DFL | N |
| Historic Property: | N | Remodel Property: | N |
| Multi-Family Redevelopment: | N | | |
| Township: | | Section: | |
| Range: | |
Location |
| Address: | 3764 TALKING CIR LANGLEY, WA 98260 | Mapsco: | |
| Neighborhood: | Cycle 4 | Map ID: | 723 |
| Neighborhood CD: | 4 |
Owner |
| Name: | BENNETT, ROGER & EMMA G | Owner ID: | 95217 |
| Mailing Address: | GRETCHEN D'ARMAND TRSTEE 3764 TALKING CIRCLE LANGLEY, WA 98260 | % Ownership: | 100.0000000000% |
| | | Exemptions: | |
Taxes and Assessment Details
Values
| (+) Improvement Homesite Value: | + | $0 | |
| (+) Improvement Non-Homesite Value: | + | $321,227 | |
| (+) Land Homesite Value: | + | $0 | |
| (+) Land Non-Homesite Value: | + | $240,000 | |
| (+) Curr Use (HS): | + | $0 | $0 |
| (+) Curr Use (NHS): | + | $0 | $0 |
| | | -------------------------- | |
| (=) Market Value: | = | $561,227 | |
| (–) Productivity Loss: | – | $0 | |
| | | -------------------------- | |
| (=) Subtotal: | = | $561,227 | |
| (+) Senior Appraised Value: | + | $0 | |
| (+) Non-Senior Appraised Value: | + | $561,227 | |
| | | -------------------------- | |
| (=) Total Appraised Value: | = | $561,227 | |
| (–) Senior Exemption Loss: | – | $0 | |
| (–) Exemption Loss: | – | $0 | |
| | | -------------------------- | |
| (=) Taxable Value: | = | $561,227 | |
Taxing Jurisdiction
| Owner: | BENNETT, ROGER & EMMA G | | |
| % Ownership: | 100.0000000000% | | |
| Total Value: | $561,227 | | |
| Tax Area: | 710 - APPRAISER-S Whid Schl Dist, outside Langley, improved & 1 acre or less |
| CF | Conservation Futures | 0.0316035091 | $561,227 | $561,227 | $17.74 | | |
| FIRE3 | Fire & Rescue Dist #3 S Whidbey GEN | 1.2004855531 | $561,227 | $561,227 | $673.74 | | |
| HOBOND | Hospital BOND | 0.1910887512 | $561,227 | $561,227 | $107.24 | | |
| HOGEN | Hospital GEN | 0.3902502903 | $561,227 | $561,227 | $219.02 | | |
| CE | County Current Expense | 0.3708482477 | $561,227 | $561,227 | $208.13 | | |
| CR | County Roads | 0.4584763726 | $561,227 | $561,227 | $257.31 | | |
| ISLANDEMS | Hospital GEN (EMS) | 0.5000000000 | $561,227 | $561,227 | $280.61 | | |
| LIB | Library Sno-Isle GEN | 0.3153421757 | $561,227 | $561,227 | $176.98 | | |
| PORTWHID | Port of S Whidbey GEN | 0.1094540357 | $561,227 | $561,227 | $61.43 | | |
| SCH206BOND | School 206 BOND | 0.3161759235 | $561,227 | $561,227 | $177.45 | | |
| SCH206MO | School 206 Enrichment | 0.4547169547 | $561,227 | $561,227 | $255.20 | | |
| ST | State School | 1.3035497053 | $561,227 | $561,227 | $731.59 | | |
| ST2 | State School Part 2 | 0.8169543533 | $561,227 | $561,227 | $458.50 | | |
| SWHIDPRBD | P & R S Whidbey BOND | 0.0152817568 | $561,227 | $561,227 | $8.58 | | |
| SWHIDPRBD2 | P & R S Whidbey BOND2 | 0.0138911264 | $561,227 | $561,227 | $7.80 | | |
| SWHIDPRMT | P & R S Whidbey GEN | 0.2053334452 | $561,227 | $561,227 | $115.24 | | |
| | Total Tax Rate: | 6.6934522006 | | | | | |
| | | | | Taxes w/Current Exemptions: | $3,756.56 | | |
| | | | | Taxes w/o Exemptions: | $3,756.56 | | |
Improvement / Building
| Improvement #1: | RESIDENTIAL | State Code: | Y | 2326.9 sqft | Value: | $321,227 |
| Bathrooms: | 3 | Bedrooms: | 3 | | Ceiling: | BEAM PAINTED | Exterior Wall/Cover: | PLY/HARDBOARD T-111 | | Floor Covering: | HARDWOOD/CARP 80-20 | Floor Structure: | WOOD W/SUBFLOOR | | Foundation: | CONCRETE | Heating: | FHA GAS | | Interior Finish: | DRYWALL PAINT | Plumbing Fixture Cnt: | 12 | | Roof Slope: | 6" IN 12" | Roof Structure/Cover: | CJ ASPHALT |
|
| | Type | Description | Class CD | Sub Class CD | Year Built | Area |
| | BAS | BASE/MAIN FLOOR | 3 | 0 | 1992 | 1759.7 |
| | UPS | UPPER STORY | 3 | 0 | 1992 | 391.2 |
| | OWP | OPEN WOOD PORCH W/STEPS | 3 | 0 | 1992 | 144.2 |
| | OWP | OPEN WOOD PORCH W/STEPS | 3 | 0 | 1992 | 98.0 |
| | OWR | OPEN WOOD PORCH W/STEPS/ROOF | 3 | 0 | 1992 | 72.2 |
| | LOF | LOFT | 3 | 0 | 1992 | 176.0 |
| | UTY | STORAGE/UTILITY | 3 | 0 | 1992 | 96.0 |
Sketch
Property Image
Land
| 1 | 15 | SQ (12001-21780) | 0.0000 | 0.00 | 0.00 | 0.00 | 1.00 | $240,000 | $0 |
Roll Value History
| 2026 | N/A | N/A | N/A | N/A | N/A |
| 2025 | $321,227 | $240,000 | $0 | $561,227 | $561,227 |
| 2024 | $319,818 | $230,000 | $0 | $549,818 | $549,818 |
| 2023 | $324,012 | $230,000 | $0 | $554,012 | $554,012 |
| 2022 | $297,195 | $210,000 | $0 | $507,195 | $507,195 |
| 2021 | $261,720 | $150,000 | $0 | $411,720 | $411,720 |
| 2020 | $220,624 | $135,000 | $0 | $355,624 | $355,624 |
| 2019 | $170,902 | $210,000 | $0 | $380,902 | $380,902 |
| 2018 | $171,477 | $170,000 | $0 | $341,477 | $341,477 |
| 2017 | $172,630 | $150,000 | $0 | $322,630 | $322,630 |
| 2016 | $174,931 | $120,000 | $0 | $294,931 | $294,931 |
| 2015 | $177,232 | $95,000 | $0 | $272,232 | $272,232 |
| 2014 | $174,510 | $95,000 | $0 | $269,510 | $269,510 |
| 2013 | $176,748 | $97,750 | $0 | $274,498 | $274,498 |
| 2012 | $178,983 | $97,750 | $0 | $276,733 | $276,733 |
| 2011 | $181,218 | $115,000 | $0 | $296,218 | $296,218 |
| 2010 | $187,633 | $115,000 | $0 | $302,633 | $302,633 |
| 2009 | $195,689 | $125,000 | $0 | $320,689 | $320,689 |
| 2008 | $194,456 | $125,000 | $0 | $319,456 | $319,456 |
| 2007 | $196,900 | $125,000 | $0 | $321,900 | $321,900 |
Deed and Sales History
| 1 | 02/16/2010 | QCD | Quit Claim Deed | BENNETT, PETER G | BENNETT, ROGER & EMMA G | | | $0.00 | 393 | 4269048 |
| 2 | 04/16/2004 | QCD | Quit Claim Deed | BENNETT, PETER G | BENNETT, PETER G | | | $0.00 | 41781 | 4099151 |
| 3 | 11/19/1999 | QCD | Quit Claim Deed | BENNETT, PETER G | BENNETT, PETER G | | | $0.00 | 94759 | 99026699 |
| 4 | 02/13/1998 | QCD | Quit Claim Deed | Unknown | BENNETT, PETER G | | | $0.00 | 81798 | 98009996 |
| 5 | 01/01/1994 | WD | Warranty Deed | BENNETT, PETER G | BENNETT, PETER G | | | $0.00 | 40109 | 94000626 |
| 6 | 07/01/1992 | QCD | Quit Claim Deed | BENNETT, PETER G | BENNETT, PETER G | | | $0.00 | 23247 | 92015839 |
| 7 | 09/01/1991 | WD | Warranty Deed | ANDERSON, ROAD G | BENNETT, PETER G | | | $30,500.00 | 13674 | 91015704 |
| 8 | 01/01/1900 | OTHER | Other - Misc. Documents | Unknown | ANDERSON, ROAD G | | | $0.00 | 11201 | 91005114 |
Payout Agreement
| No payout information available.. |