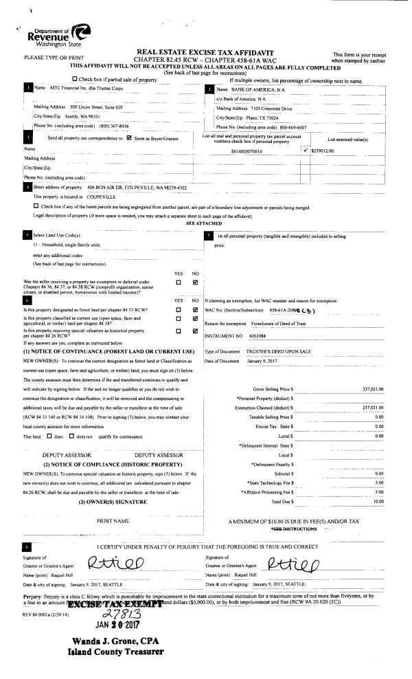
Property
Account |
| Property ID: | 663543 | Abbreviated Legal Description: | W/2 NE NW SE EX N30' FR 244-3700 & 213-3680 |
| Geographic ID: | R23036-233-3500 | Agent Code: | |
| Type: | Real | | |
| Tax Area: | 712 - APPRAISER-S Whid Schl Dist, outside Langley, improved, greater than 1 acre | Land Use Code | 11 |
| Open Space: | N | DFL | N |
| Historic Property: | N | Remodel Property: | N |
| Multi-Family Redevelopment: | N | | |
| Township: | 30 | Section: | 36 |
| Range: | R2 |
Location |
| Address: | 2262 CRICKET LN FREELAND, WA 98249 | Mapsco: | |
| Neighborhood: | Cycle 3 | Map ID: | 446 |
| Neighborhood CD: | 3 |
Owner |
| Name: | HESSLER, JAMES K | Owner ID: | 301613 |
| Mailing Address: | PAULA J WEISS-HESSLER 2262 CRICKET LN FREELAND, WA 98249 | % Ownership: | 100.0000000000% |
| | | Exemptions: | |
Taxes and Assessment Details
Values
| (+) Improvement Homesite Value: | + | $0 | |
| (+) Improvement Non-Homesite Value: | + | $546,442 | |
| (+) Land Homesite Value: | + | $0 | |
| (+) Land Non-Homesite Value: | + | $410,000 | |
| (+) Curr Use (HS): | + | $0 | $0 |
| (+) Curr Use (NHS): | + | $0 | $0 |
| | | -------------------------- | |
| (=) Market Value: | = | $956,442 | |
| (–) Productivity Loss: | – | $0 | |
| | | -------------------------- | |
| (=) Subtotal: | = | $956,442 | |
| (+) Senior Appraised Value: | + | $0 | |
| (+) Non-Senior Appraised Value: | + | $956,442 | |
| | | -------------------------- | |
| (=) Total Appraised Value: | = | $956,442 | |
| (–) Senior Exemption Loss: | – | $0 | |
| (–) Exemption Loss: | – | $0 | |
| | | -------------------------- | |
| (=) Taxable Value: | = | $956,442 | |
Taxing Jurisdiction
| Owner: | HESSLER, JAMES K | | |
| % Ownership: | 100.0000000000% | | |
| Total Value: | $956,442 | | |
| Tax Area: | 712 - APPRAISER-S Whid Schl Dist, outside Langley, improved, greater than 1 acre |
| CF | Conservation Futures | 0.0316035091 | $956,442 | $956,442 | $30.23 | | |
| FIRE3 | Fire & Rescue Dist #3 S Whidbey GEN | 1.2004855531 | $956,442 | $956,442 | $1,148.19 | | |
| HOBOND | Hospital BOND | 0.1910887512 | $956,442 | $956,442 | $182.77 | | |
| HOGEN | Hospital GEN | 0.3902502903 | $956,442 | $956,442 | $373.25 | | |
| CE | County Current Expense | 0.3708482477 | $956,442 | $956,442 | $354.69 | | |
| CR | County Roads | 0.4584763726 | $956,442 | $956,442 | $438.51 | | |
| ISLANDEMS | Hospital GEN (EMS) | 0.5000000000 | $956,442 | $956,442 | $478.22 | | |
| LIB | Library Sno-Isle GEN | 0.3153421757 | $956,442 | $956,442 | $301.61 | | |
| PORTWHID | Port of S Whidbey GEN | 0.1094540357 | $956,442 | $956,442 | $104.69 | | |
| SCH206BOND | School 206 BOND | 0.3161759235 | $956,442 | $956,442 | $302.40 | | |
| SCH206MO | School 206 Enrichment | 0.4547169547 | $956,442 | $956,442 | $434.91 | | |
| ST | State School | 1.3035497053 | $956,442 | $956,442 | $1,246.77 | | |
| ST2 | State School Part 2 | 0.8169543533 | $956,442 | $956,442 | $781.37 | | |
| SWHIDPRBD | P & R S Whidbey BOND | 0.0152817568 | $956,442 | $956,442 | $14.62 | | |
| SWHIDPRBD2 | P & R S Whidbey BOND2 | 0.0138911264 | $956,442 | $956,442 | $13.29 | | |
| SWHIDPRMT | P & R S Whidbey GEN | 0.2053334452 | $956,442 | $956,442 | $196.39 | | |
| | Total Tax Rate: | 6.6934522006 | | | | | |
| | | | | Taxes w/Current Exemptions: | $6,401.91 | | |
| | | | | Taxes w/o Exemptions: | $6,401.91 | | |
Improvement / Building
| Improvement #1: | RESIDENTIAL | State Code: | Y | 1491.0 sqft | Value: | $332,529 |
| Bathrooms: | 2 | Bedrooms: | 3 | | Ceiling: | DRYWALL PAINTED | Cooling: | HEAT PUMP/CONV/V | | Exterior Wall/Cover: | CEMENT FIBER | Floor Covering: | CARPET/VINYL 60-40 | | Floor Structure: | WOOD W/SUBFLOOR | Foundation: | CONCRETE | | Interior Finish: | DRYWALL PAINT | Plumbing Fixture Cnt: | 9 | | Roof Slope: | 5" IN 12" | Roof Structure/Cover: | CJ ASPHALT |
|
| | Type | Description | Class CD | Sub Class CD | Year Built | Area |
| | BAS | BASE/MAIN FLOOR | 3 | 0 | 2018 | 1491.0 |
| | AGR | ATTACHED GARAGE | 3 | 0 | 2018 | 484.0 |
| | OWC | OPEN WOOD PORCH W/STEPS/ROOF/C | 3 | 0 | 2018 | 75.0 |
| | OWP | OPEN WOOD PORCH W/STEPS | 3 | 0 | 2018 | 576.0 |
| Improvement #2: | RESIDENTIAL | State Code: | Y | 1656.0 sqft | Value: | $213,913 |
| Bathrooms: | 0.5 | Bedrooms: | 0 | | Ceiling: | DRYWALL PAINTED | Cooling: | HEAT PUMP/CONV/V | | Exterior Wall/Cover: | CEMENT FIBER | Floor Covering: | VINYL 100% | | Floor Structure: | WOOD W/SUBFLOOR | Foundation: | SLAB | | Interior Finish: | DRYWALL PAINT | Plumbing Fixture Cnt: | 2 | | Roof Slope: | 5" IN 12" | Roof Structure/Cover: | CJ ALUMINIUM HEAVY |
|
| | Type | Description | Class CD | Sub Class CD | Year Built | Area |
| | BAS | BASE/MAIN FLOOR | 2 | 0 | 2018 | 1656.0 |
| | UTY | STORAGE/UTILITY | 2 | 0 | 2018 | 72.0 |
| | OP3 | OPEN PORCH W/ROOF | 2 | 0 | 2018 | 135.0 |
Sketch
Property Image
Land
| 1 | 32 | AC (03.01-09.99) | 4.7700 | 0.00 | 0.00 | 0.00 | 1.00 | $410,000 | $0 |
Roll Value History
| 2026 | N/A | N/A | N/A | N/A | N/A |
| 2025 | $546,442 | $410,000 | $0 | $956,442 | $956,442 |
| 2024 | $553,489 | $390,000 | $0 | $943,489 | $943,489 |
| 2023 | $387,048 | $350,000 | $0 | $737,048 | $737,048 |
| 2022 | $334,318 | $350,000 | $0 | $684,318 | $684,318 |
| 2021 | $296,910 | $300,000 | $0 | $596,910 | $596,910 |
| 2020 | $291,534 | $260,000 | $0 | $551,534 | $551,534 |
| 2019 | $209,708 | $300,000 | $0 | $509,708 | $509,708 |
| 2018 | $59,808 | $160,000 | $0 | $219,808 | $219,808 |
| 2017 | $25,000 | $160,000 | $0 | $185,000 | $185,000 |
| 2016 | $25,000 | $145,000 | $0 | $170,000 | $170,000 |
| 2015 | $25,000 | $145,000 | $0 | $170,000 | $170,000 |
| 2014 | $25,000 | $143,100 | $0 | $168,100 | $168,100 |
| 2013 | $26,749 | $176,490 | $0 | $203,239 | $203,239 |
| 2012 | $26,749 | $176,490 | $0 | $203,239 | $203,239 |
| 2011 | $26,749 | $176,490 | $0 | $203,239 | $203,239 |
| 2010 | $26,749 | $176,490 | $0 | $203,239 | $203,239 |
| 2009 | $29,238 | $238,500 | $0 | $267,738 | $267,738 |
| 2008 | $31,726 | $333,900 | $0 | $365,626 | $365,626 |
| 2007 | $34,423 | $172,397 | $0 | $206,820 | $206,820 |
Deed and Sales History
| 1 | 10/12/2021 | WD | Warranty Deed | ROBBINS, SCOTT | HESSLER, JAMES K | | | $901,000.00 | 50513 | 4531598 |
| 2 | 01/24/2017 | WD | Warranty Deed | KAISER, CLINT | ROBBINS, SCOTT | | | $201,000.00 | 27839 | 4415734 |
| 3 | 08/26/1998 | WD | Warranty Deed | KAISER, CLINT & | KAISER, CLINT | | | $142,075.00 | 83503 | 98018186 |
| 4 | 12/01/1995 | DECREE | Divorce Decree/Legal Separation | NICHOLS, WILSON O | NICHOLS, WILSON O | | | $0.00 | 66760 | 0 |
| 5 | 10/01/1991 | OTHER | Other - Misc. Documents | NICHOLS, WILSON O | NICHOLS, WILSON O | | | $0.00 | 64489 | 91015213 |
| 6 | 06/01/1990 | OTHER | Other - Misc. Documents | Unknown | NICHOLS, WILSON O | | | $0.00 | 3857 | 90012550 |
Payout Agreement
| No payout information available.. |