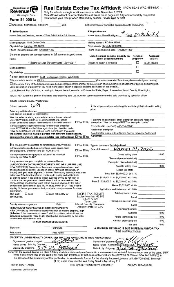
Property
Account |
| Property ID: | 663703 | Abbreviated Legal Description: | SAN DE FUCA TRACT B BG SWCR LOT 12 BLK 72 N105'TPB N105'TO CTRLN VAC SIXTH ST E130' S105' W130'TPB TGW & SUB EZS FR 73003-0 |
| Geographic ID: | S8060-00-73003-2 | Agent Code: | |
| Type: | Real | | |
| Tax Area: | 339 - APPRAISER-Cpvl Schl Dist, Special Dist, vacant & 50 acres or less | Land Use Code | 99 |
| Open Space: | N | DFL | N |
| Historic Property: | N | Remodel Property: | N |
| Multi-Family Redevelopment: | N | | |
| Township: | | Section: | |
| Range: | |
Location |
| Address: | | Mapsco: | |
| Neighborhood: | Cycle 2 | Map ID: | 145 |
| Neighborhood CD: | 2 |
Owner |
| Name: | ESPINOZA, EFRAIN P | Owner ID: | 314252 |
| Mailing Address: | BEATRIZ ESPINOZA 2890 N OAK HARBOR RD TRLR 503 OAK HARBOR, WA 98277 | % Ownership: | 100.0000000000% |
| | | Exemptions: | |
Taxes and Assessment Details
Values
| (+) Improvement Homesite Value: | + | $0 | |
| (+) Improvement Non-Homesite Value: | + | $0 | |
| (+) Land Homesite Value: | + | $0 | |
| (+) Land Non-Homesite Value: | + | $110,000 | |
| (+) Curr Use (HS): | + | $0 | $0 |
| (+) Curr Use (NHS): | + | $0 | $0 |
| | | -------------------------- | |
| (=) Market Value: | = | $110,000 | |
| (–) Productivity Loss: | – | $0 | |
| | | -------------------------- | |
| (=) Subtotal: | = | $110,000 | |
| (+) Senior Appraised Value: | + | $0 | |
| (+) Non-Senior Appraised Value: | + | $110,000 | |
| | | -------------------------- | |
| (=) Total Appraised Value: | = | $110,000 | |
| (–) Senior Exemption Loss: | – | $0 | |
| (–) Exemption Loss: | – | $0 | |
| | | -------------------------- | |
| (=) Taxable Value: | = | $110,000 | |
Taxing Jurisdiction
| Owner: | ESPINOZA, EFRAIN P | | |
| % Ownership: | 100.0000000000% | | |
| Total Value: | $110,000 | | |
| Tax Area: | 339 - APPRAISER-Cpvl Schl Dist, Special Dist, vacant & 50 acres or less |
| CF | Conservation Futures | 0.0316035091 | $110,000 | $110,000 | $3.48 | | |
| CEM2 | Cemetery #2 | 0.0095056933 | $110,000 | $110,000 | $1.05 | | |
| HOBOND | Hospital BOND | 0.1910887512 | $110,000 | $110,000 | $21.02 | | |
| HOGEN | Hospital GEN | 0.3902502903 | $110,000 | $110,000 | $42.93 | | |
| CE | County Current Expense | 0.3708482477 | $110,000 | $110,000 | $40.79 | | |
| CR | County Roads | 0.4584763726 | $110,000 | $110,000 | $50.43 | | |
| ISLANDEMS | Hospital GEN (EMS) | 0.5000000000 | $110,000 | $110,000 | $55.00 | | |
| LIB | Library Sno-Isle GEN | 0.3153421757 | $110,000 | $110,000 | $34.69 | | |
| LIBCAP | Library Sno-Isle BOND (Cap Fac Imp Area) | 0.0543427938 | $110,000 | $110,000 | $5.98 | | |
| POCOUP | Port of Coupeville GEN | 0.1093371703 | $110,000 | $110,000 | $12.03 | | |
| POCOUPIDD | Port of Coupeville IDD | 0.3409740022 | $110,000 | $110,000 | $37.51 | | |
| COUPSDTECH | School 204 CP (TECH) | 0.7545480007 | $110,000 | $110,000 | $83.00 | | |
| SCH204MO | School 204 Enrichment | 0.6716186034 | $110,000 | $110,000 | $73.88 | | |
| ST | State School | 1.3035497053 | $110,000 | $110,000 | $143.39 | | |
| ST2 | State School Part 2 | 0.8169543533 | $110,000 | $110,000 | $89.86 | | |
| | Total Tax Rate: | 6.3184396689 | | | | | |
| | | | | Taxes w/Current Exemptions: | $695.04 | | |
| | | | | Taxes w/o Exemptions: | $695.04 | | |
Improvement / Building
Sketch
| No sketches available for this property. |
Property Image
Land
| 1 | 15 | SQ (12001-21780) | 0.3100 | 13503.60 | 0.00 | 0.00 | 1.00 | $110,000 | $0 |
Roll Value History
| 2026 | N/A | N/A | N/A | N/A | N/A |
| 2025 | $0 | $110,000 | $0 | $110,000 | $110,000 |
| 2024 | $0 | $110,000 | $0 | $110,000 | $110,000 |
| 2023 | $0 | $110,000 | $0 | $110,000 | $110,000 |
| 2022 | $0 | $110,000 | $0 | $110,000 | $110,000 |
| 2021 | $0 | $90,000 | $0 | $90,000 | $90,000 |
| 2020 | $0 | $7,000 | $0 | $7,000 | $7,000 |
| 2019 | $0 | $7,000 | $0 | $7,000 | $7,000 |
| 2018 | $0 | $7,000 | $0 | $7,000 | $7,000 |
| 2017 | $0 | $10,000 | $0 | $10,000 | $10,000 |
| 2016 | $0 | $10,000 | $0 | $10,000 | $10,000 |
| 2015 | $0 | $10,000 | $0 | $10,000 | $10,000 |
| 2014 | $0 | $10,000 | $0 | $10,000 | $10,000 |
| 2013 | $0 | $12,750 | $0 | $12,750 | $12,750 |
| 2012 | $0 | $12,750 | $0 | $12,750 | $12,750 |
| 2011 | $0 | $12,750 | $0 | $12,750 | $12,750 |
| 2010 | $0 | $12,750 | $0 | $12,750 | $12,750 |
| 2009 | $0 | $14,450 | $0 | $14,450 | $14,450 |
| 2008 | $0 | $16,171 | $0 | $16,171 | $16,171 |
| 2007 | $0 | $16,171 | $0 | $16,171 | $16,171 |
Deed and Sales History
| 1 | 10/17/2024 | WD | Warranty Deed | WHIDBEY RE VENTURES LLC | ESPINOZA, EFRAIN P | | | $400,000.00 | 61594 | 4578333 |
|   | |
| 2 | 07/20/2021 | WD | Warranty Deed | PARKER, ALAN D | WHIDBEY RE VENTURES LLC | | | $215,000.00 | 49288 | 4525029 |
|   | |
| 3 | 03/07/2011 | WD | Warranty Deed | PARKER, ALAN D | PARKER, ALAN D | | | $32,500.00 | 3792 | 4291906 |
|   | |
| 4 | 11/26/2003 | QCD | Quit Claim Deed | PARKER, ALAN D | PARKER, ALAN D | | | $0.00 | 35341 | 4084329 |
| 5 | 01/01/1997 | QCD | Quit Claim Deed | PARKER, ALAN D | PARKER, ALAN D | | | $0.00 | 70165 | 97000608 |
| 6 | 10/01/1991 | OTHER | Other - Misc. Documents | PARKER, ALAN D | PARKER, ALAN D | | | $0.00 | 64513 | 91015835 |
| 7 | 01/01/1900 | OTHER | Other - Misc. Documents | Unknown | PARKER, ALAN D | | | $0.00 | 73833 | 87016675 |
Payout Agreement
| No payout information available.. |