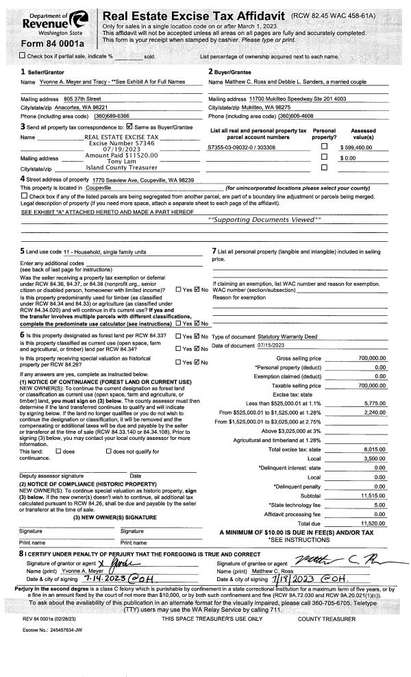
Property
Account |
| Property ID: | 664365 | Abbreviated Legal Description: | LOT 1 SP 16-91.33218.476-3780 & 460-3740 V2 SP P327 AF#91017969 TGW ADJ VAC PT HULTMAN RD R40-01 AF#4008174 |
| Geographic ID: | R33218-467-3750 | Agent Code: | |
| Type: | Real | | |
| Tax Area: | 512 - APPRAISER-Stan/Cam Schl Dist, improved, greater than 1 acre | Land Use Code | 11 |
| Open Space: | N | DFL | N |
| Historic Property: | N | Remodel Property: | N |
| Multi-Family Redevelopment: | N | | |
| Township: | 32 | Section: | 18 |
| Range: | R3 |
Location |
| Address: | 1559 HULTMAN RD CAMANO ISLAND, WA 98282 | Mapsco: | |
| Neighborhood: | North Camano | Map ID: | 959 |
| Neighborhood CD: | 06-C |
Owner |
| Name: | TM WEST LLC | Owner ID: | 265354 |
| Mailing Address: | 1559 HULTMAN RD CAMANO ISLAND, WA 98282-8713 | % Ownership: | 100.0000000000% |
| | | Exemptions: | |
Taxes and Assessment Details
Values
| (+) Improvement Homesite Value: | + | $0 | |
| (+) Improvement Non-Homesite Value: | + | $429,050 | |
| (+) Land Homesite Value: | + | $0 | |
| (+) Land Non-Homesite Value: | + | $825,000 | |
| (+) Curr Use (HS): | + | $0 | $0 |
| (+) Curr Use (NHS): | + | $0 | $0 |
| | | -------------------------- | |
| (=) Market Value: | = | $1,254,050 | |
| (–) Productivity Loss: | – | $0 | |
| | | -------------------------- | |
| (=) Subtotal: | = | $1,254,050 | |
| (+) Senior Appraised Value: | + | $0 | |
| (+) Non-Senior Appraised Value: | + | $1,254,050 | |
| | | -------------------------- | |
| (=) Total Appraised Value: | = | $1,254,050 | |
| (–) Senior Exemption Loss: | – | $0 | |
| (–) Exemption Loss: | – | $0 | |
| | | -------------------------- | |
| (=) Taxable Value: | = | $1,254,050 | |
Taxing Jurisdiction
| Owner: | TM WEST LLC | | |
| % Ownership: | 100.0000000000% | | |
| Total Value: | $1,254,050 | | |
| Tax Area: | 512 - APPRAISER-Stan/Cam Schl Dist, improved, greater than 1 acre |
| CF | Conservation Futures | 0.0316035091 | $1,254,050 | $1,254,050 | $39.63 | | |
| EMS1 | Fire & Rescue Dist #1 Camano GEN (EMS) | 0.3677864386 | $1,254,050 | $1,254,050 | $461.22 | | |
| FIRE1 | Fire & Rescue Dist #1 Camano GEN | 1.2502910536 | $1,254,050 | $1,254,050 | $1,567.93 | | |
| FIRE1BOND | Fire & Rescue Dist #1 Camano BOND | 0.1570001679 | $1,254,050 | $1,254,050 | $196.89 | | |
| CE | County Current Expense | 0.3708482477 | $1,254,050 | $1,254,050 | $465.06 | | |
| CR | County Roads | 0.4584763726 | $1,254,050 | $1,254,050 | $574.95 | | |
| LCIB | Library Sno-Isle BOND (Camano Island) | 0.0396325772 | $1,254,050 | $1,254,050 | $49.70 | | |
| LIB | Library Sno-Isle GEN | 0.3153421757 | $1,254,050 | $1,254,050 | $395.45 | | |
| SCH205_401 | School 205-401 Enrichment | 1.2698420524 | $1,254,050 | $1,254,050 | $1,592.45 | | |
| SCH205BOND | School 205-401 BOND | 0.9396497583 | $1,254,050 | $1,254,050 | $1,178.37 | | |
| ST | State School | 1.3035497053 | $1,254,050 | $1,254,050 | $1,634.72 | | |
| ST2 | State School Part 2 | 0.8169543533 | $1,254,050 | $1,254,050 | $1,024.50 | | |
| | Total Tax Rate: | 7.3209764117 | | | | | |
| | | | | Taxes w/Current Exemptions: | $9,180.87 | | |
| | | | | Taxes w/o Exemptions: | $9,180.87 | | |
Improvement / Building
| Improvement #1: | RESIDENTIAL | State Code: | Y | 2860.0 sqft | Value: | $429,050 |
| Bathrooms: | 2.5 | Bedrooms: | 3 | | Ceiling: | DRYWALL PAINTED | Cooling: | HEAT PUMP/CONV/V | | Exterior Wall/Cover: | WOOD SIDING | Floor Covering: | HARDWOOD/CARP 60-40 | | Floor Structure: | WOOD W/SUBFLOOR | Foundation: | CONCRETE | | Interior Finish: | DRYWALL PAINT | Plumbing Fixture Cnt: | 12 | | Roof Slope: | 5" IN 12" | Roof Structure/Cover: | CJ ASPHALT |
|
| | Type | Description | Class CD | Sub Class CD | Year Built | Area |
| | BAS | BASE/MAIN FLOOR | 3 | 0 | 1972 | 1580.0 |
| | DWN | DOWNSTAIRS LIVING AREA | 3 | 0 | 1972 | 1280.0 |
| | OP1 | OPEN PORCH SLAB | 3 | 0 | 1972 | 212.0 |
| | OP2 | OPEN PORCH W/STEPS | 3 | 0 | 1972 | 56.0 |
| | AGR | ATTACHED GARAGE | 3 | 0 | 1972 | 552.0 |
| | OWP | OPEN WOOD PORCH W/STEPS | 3 | 0 | 1972 | 344.0 |
| | DGR | DETACHED GARAGE | 3 | 0 | 1972 | 1055.0 |
Sketch
Property Image
Land
| 1 | HB | HIGH BLUFF | 1.9400 | 84506.40 | 205.00 | 0.00 | 1.00 | $825,000 | $0 |
Roll Value History
| 2026 | N/A | N/A | N/A | N/A | N/A |
| 2025 | $429,050 | $825,000 | $0 | $1,254,050 | $1,254,050 |
| 2024 | $434,604 | $825,000 | $0 | $1,259,604 | $1,259,604 |
| 2023 | $440,158 | $750,000 | $0 | $1,190,158 | $1,190,158 |
| 2022 | $393,526 | $503,790 | $0 | $897,316 | $897,316 |
| 2021 | $346,573 | $500,000 | $0 | $846,573 | $846,573 |
| 2020 | $338,761 | $475,000 | $0 | $813,761 | $813,761 |
| 2019 | $270,093 | $475,000 | $0 | $745,093 | $745,093 |
| 2018 | $270,922 | $425,000 | $0 | $695,922 | $695,922 |
| 2017 | $272,584 | $400,000 | $0 | $672,584 | $672,584 |
| 2016 | $262,182 | $400,000 | $0 | $662,182 | $662,182 |
| 2015 | $187,800 | $400,000 | $0 | $587,800 | $587,800 |
| 2014 | $190,422 | $400,000 | $0 | $590,422 | $590,422 |
| 2013 | $206,150 | $400,000 | $0 | $606,150 | $606,150 |
| 2012 | $208,774 | $466,226 | $0 | $675,000 | $675,000 |
| 2011 | $217,116 | $610,070 | $0 | $827,186 | $827,186 |
| 2010 | $223,132 | $610,070 | $0 | $833,202 | $833,202 |
| 2009 | $232,636 | $673,335 | $0 | $905,971 | $905,971 |
| 2008 | $243,531 | $673,335 | $0 | $916,866 | $916,866 |
| 2007 | $247,056 | $673,335 | $0 | $920,391 | $920,391 |
Deed and Sales History
| 1 | 03/11/2014 | WD | Warranty Deed | BERRIS, KENNETH A | TM WEST LLC | | | $546,000.00 | 14550 | 4356426 |
| 2 | 07/16/2013 | QCD | Quit Claim Deed | BERRIS, KENNETH | BERRIS, KENNETH A | | | $0.00 | 12299 | 4345828 |
| 3 | 01/04/2005 | WD | Warranty Deed | GWINN, G W | BERRIS, KENNETH | | | $820,000.00 | 50159 | 4123091 |
| 4 | 01/01/1900 | OTHER | Other - Misc. Documents | Unknown | GWINN, G W | | | $0.00 | 64136 | 91004363 |
Payout Agreement
| No payout information available.. |