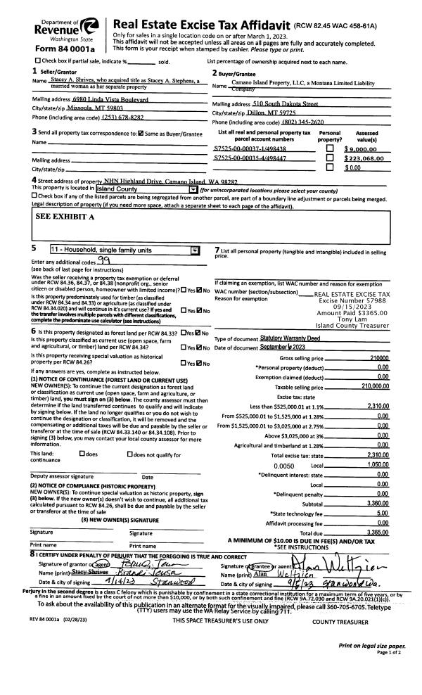
Property
Account |
| Property ID: | 664436 | Abbreviated Legal Description: | LOT 3 SP 17-89.23234.127-3330 V2 SP P328-9 AF#91018491 |
| Geographic ID: | R23234-115-3340 | Agent Code: | |
| Type: | Real | | |
| Tax Area: | 510 - APPRAISER-Stan/Cam Schl Dist, improved & 1 acre or less | Land Use Code | 11 |
| Open Space: | N | DFL | N |
| Historic Property: | N | Remodel Property: | N |
| Multi-Family Redevelopment: | N | | |
| Township: | 32 | Section: | 34 |
| Range: | R2 |
Location |
| Address: | 956 HIGH RD CAMANO ISLAND, WA 98282 | Mapsco: | |
| Neighborhood: | North Camano | Map ID: | 573 |
| Neighborhood CD: | 06-C |
Owner |
| Name: | NESTOR, FRANCIS E | Owner ID: | 26618 |
| Mailing Address: | 956 HIGH RD CAMANO ISLAND, WA 98282-8644 | % Ownership: | 100.0000000000% |
| | | Exemptions: | SNR/DSBL |
Taxes and Assessment Details
Values
| (+) Improvement Homesite Value: | + | $307,973 | |
| (+) Improvement Non-Homesite Value: | + | $206,068 | |
| (+) Land Homesite Value: | + | $330,000 | |
| (+) Land Non-Homesite Value: | + | $0 | |
| (+) Curr Use (HS): | + | $0 | $0 |
| (+) Curr Use (NHS): | + | $0 | $0 |
| | | -------------------------- | |
| (=) Market Value: | = | $844,041 | |
| (–) Productivity Loss: | – | $0 | |
| | | -------------------------- | |
| (=) Subtotal: | = | $844,041 | |
| (+) Senior Appraised Value: | + | $205,844 | |
| (+) Non-Senior Appraised Value: | + | $206,068 | |
| | | -------------------------- | |
| (=) Total Appraised Value: | = | $411,912 | |
| (–) Senior Exemption Loss: | – | $123,506 | |
| (–) Exemption Loss: | – | $0 | |
| | | -------------------------- | |
| (=) Taxable Value: | = | $288,406 | |
Taxing Jurisdiction
| Owner: | NESTOR, FRANCIS E | | |
| % Ownership: | 100.0000000000% | | |
| Total Value: | $844,041 | | |
| Tax Area: | 510 - APPRAISER-Stan/Cam Schl Dist, improved & 1 acre or less |
| CF | Conservation Futures | 0.0316035091 | $844,041 | $288,406 | $9.11 | | |
| EMS1 | Fire & Rescue Dist #1 Camano GEN (EMS) | 0.3677864386 | $844,041 | $288,406 | $106.07 | | |
| FIRE1 | Fire & Rescue Dist #1 Camano GEN | 1.2502910536 | $844,041 | $288,406 | $360.59 | | |
| FIRE1BOND | Fire & Rescue Dist #1 Camano BOND | 0.0000000000 | $844,041 | $206,068 | $32.35 | | |
| CE | County Current Expense | 0.3708482477 | $844,041 | $288,406 | $106.95 | | |
| CR | County Roads | 0.4584763726 | $844,041 | $288,406 | $132.23 | | |
| LCIB | Library Sno-Isle BOND (Camano Island) | 0.0000000000 | $844,041 | $206,068 | $8.17 | | |
| LIB | Library Sno-Isle GEN | 0.3153421757 | $844,041 | $288,406 | $90.95 | | |
| SCH205_401 | School 205-401 Enrichment | 0.0000000000 | $844,041 | $206,068 | $261.67 | | |
| SCH205BOND | School 205-401 BOND | 0.0000000000 | $844,041 | $206,068 | $193.63 | | |
| ST | State School | 1.3035497053 | $844,041 | $288,406 | $375.95 | | |
| ST2 | State School Part 2 | 0.0000000000 | $844,041 | $206,068 | $168.35 | | |
| | Total Tax Rate: | 4.0978975026 | | | | | |
| | | | | Taxes w/Current Exemptions: | $1,846.02 | | |
| | | | | Taxes w/o Exemptions: | $6,179.19 | | |
Improvement / Building
| Improvement #1: | RESIDENTIAL | State Code: | Y | 960.0 sqft | Value: | $206,068 |
| Bathrooms: | 1 | Bedrooms: | 1 | | Ceiling: | DRYWALL PAINTED | Exterior Wall/Cover: | VINYL | | Floor Covering: | CARPET/VINYL 80-20 | Floor Structure: | WOOD W/SUBFLOOR | | Foundation: | CONCRETE | Heating: | WALL HEAT ELECTRIC | | Interior Finish: | DRYWALL PAINT | Plumbing Fixture Cnt: | 3 | | Roof Slope: | 3" IN 12" | Roof Structure/Cover: | ALUM LIGHT |
|
| | Type | Description | Class CD | Sub Class CD | Year Built | Area |
| | BAS | BASE/MAIN FLOOR | 3 | 0 | 2000 | 960.0 |
| | AGR | ATTACHED GARAGE | 3 | 0 | 2000 | 960.0 |
| | BIG | BUILT IN GARAGE | 3 | 0 | 2000 | 960.0 |
| | ATU | ATTIC UNFINISHED | 3 | 0 | 2000 | 272.0 |
| | OWP | OPEN WOOD PORCH W/STEPS | 3 | 0 | 2000 | 261.0 |
| | CPD | OPEN CARPORT DIRT FLOOR | 3 | 0 | 2000 | 352.0 |
| | oPOL | POLE BARN | 3 | 0 | 2000 | 0.0 |
| Improvement #2: | RESIDENTIAL | State Code: | Y | 2026.7 sqft | Value: | $307,973 |
| Bathrooms: | 2.5 | Bedrooms: | 2 | | Ceiling: | DRYWALL PAINTED | Exterior Wall/Cover: | WOOD SIDING | | Floor Covering: | COLORED CONCRETE | Floor Structure: | WOOD W/SUBFLOOR | | Foundation: | CONCRETE | Heating: | RADIANT FLOOR | | Interior Finish: | DRYWALL PAINT | Plumbing Fixture Cnt: | 11 | | Roof Slope: | 6" IN 12" | Roof Structure/Cover: | CJ ALUMINIUM HEAVY |
|
| | Type | Description | Class CD | Sub Class CD | Year Built | Area |
| | BAS | BASE/MAIN FLOOR | 3 | 0 | 1961 | 1589.1 |
| | BAS | BASE/MAIN FLOOR | 3 | 0 | 1961 | 437.6 |
| | AGR | ATTACHED GARAGE | 3 | 0 | 1961 | 808.4 |
| | OWP | OPEN WOOD PORCH W/STEPS | 3 | 0 | 1961 | 225.6 |
| | OWP | OPEN WOOD PORCH W/STEPS | 3 | 0 | 1961 | 100.0 |
Sketch
Property Image
Land
| 1 | 16 | AC (00.51-01.00) | 0.0000 | 0.00 | 0.00 | 0.00 | 1.00 | $330,000 | $0 |
Roll Value History
| 2026 | N/A | N/A | N/A | N/A | N/A |
| 2025 | $514,041 | $330,000 | $0 | $844,041 | $288,406 |
| 2024 | $520,869 | $320,000 | $0 | $840,869 | $290,912 |
| 2023 | $527,697 | $310,000 | $0 | $837,697 | $293,418 |
| 2022 | $484,307 | $260,000 | $0 | $744,307 | $273,142 |
| 2021 | $427,289 | $200,000 | $0 | $627,289 | $250,965 |
| 2020 | $417,775 | $160,000 | $0 | $577,775 | $247,480 |
| 2019 | $315,776 | $220,000 | $0 | $535,776 | $205,012 |
| 2018 | $316,763 | $150,000 | $0 | $466,763 | $205,374 |
| 2017 | $318,738 | $150,000 | $0 | $468,738 | $206,098 |
| 2016 | $280,845 | $110,000 | $0 | $390,845 | $202,124 |
| 2015 | $284,667 | $92,800 | $0 | $377,467 | $203,507 |
| 2014 | $288,491 | $92,800 | $0 | $381,291 | $204,891 |
| 2013 | $292,316 | $92,800 | $0 | $385,116 | $206,276 |
| 2012 | $296,141 | $92,800 | $0 | $388,941 | $207,660 |
| 2011 | $299,963 | $116,000 | $0 | $415,963 | $209,042 |
| 2010 | $183,874 | $116,000 | $0 | $299,874 | $82,338 |
| 2009 | $190,455 | $149,643 | $0 | $340,098 | $82,338 |
| 2008 | $180,478 | $147,663 | $0 | $328,141 | $76,485 |
| 2007 | $161,892 | $149,439 | $0 | $311,331 | $69,657 |
Deed and Sales History
| 1 | 01/01/1900 | OTHER | Other - Misc. Documents | Unknown | NESTOR, FRANCIS E | | | $0.00 | 92331 | 89008006 |
Payout Agreement
| No payout information available.. |