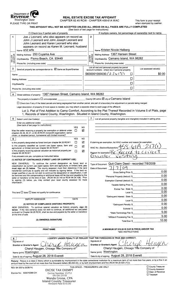
Property
Account |
| Property ID: | 664579 | Abbreviated Legal Description: | 5.0000 Acres ins Section 35s Township 33s Range R2s LOT B BLC AF#4443179 IN SW NW;s |
| Geographic ID: | R23335-346-0520 | Agent Code: | |
| Type: | Real | | |
| Tax Area: | 112 - APPRAISER-OH Schl Dist, outside OH, improved, greater than 1 acre | Land Use Code | 11 |
| Open Space: | N | DFL | N |
| Historic Property: | N | Remodel Property: | N |
| Multi-Family Redevelopment: | N | | |
| Township: | 33 | Section: | 35 |
| Range: | R2 |
Location |
| Address: | 2672 UMATILLA DR OAK HARBOR, WA 98277 | Mapsco: | |
| Neighborhood: | Cycle 6 | Map ID: | 662 |
| Neighborhood CD: | 6 |
Owner |
| Name: | DAVIS, MARK R | Owner ID: | 195825 |
| Mailing Address: | WENDY DAVIS 2672 UMATILLA DR OAK HARBOR, WA 98277-8698 | % Ownership: | 100.0000000000% |
| | | Exemptions: | |
Taxes and Assessment Details
Values
| (+) Improvement Homesite Value: | + | $0 | |
| (+) Improvement Non-Homesite Value: | + | $673,820 | |
| (+) Land Homesite Value: | + | $0 | |
| (+) Land Non-Homesite Value: | + | $340,000 | |
| (+) Curr Use (HS): | + | $0 | $0 |
| (+) Curr Use (NHS): | + | $0 | $0 |
| | | -------------------------- | |
| (=) Market Value: | = | $1,013,820 | |
| (–) Productivity Loss: | – | $0 | |
| | | -------------------------- | |
| (=) Subtotal: | = | $1,013,820 | |
| (+) Senior Appraised Value: | + | $0 | |
| (+) Non-Senior Appraised Value: | + | $1,013,820 | |
| | | -------------------------- | |
| (=) Total Appraised Value: | = | $1,013,820 | |
| (–) Senior Exemption Loss: | – | $0 | |
| (–) Exemption Loss: | – | $0 | |
| | | -------------------------- | |
| (=) Taxable Value: | = | $1,013,820 | |
Taxing Jurisdiction
| Owner: | DAVIS, MARK R | | |
| % Ownership: | 100.0000000000% | | |
| Total Value: | $1,013,820 | | |
| Tax Area: | 112 - APPRAISER-OH Schl Dist, outside OH, improved, greater than 1 acre |
| CF | Conservation Futures | 0.0316035091 | $1,013,820 | $1,013,820 | $32.04 | | |
| CEM1 | Cemetery #1 | 0.0040320932 | $1,013,820 | $1,013,820 | $4.09 | | |
| FIRE2 | Fire & Rescue Dist #2 N Whidbey GEN | 0.5475949600 | $1,013,820 | $1,013,820 | $555.16 | | |
| HOBOND | Hospital BOND | 0.1910887512 | $1,013,820 | $1,013,820 | $193.73 | | |
| HOGEN | Hospital GEN | 0.3902502903 | $1,013,820 | $1,013,820 | $395.64 | | |
| CE | County Current Expense | 0.3708482477 | $1,013,820 | $1,013,820 | $375.97 | | |
| CR | County Roads | 0.4584763726 | $1,013,820 | $1,013,820 | $464.81 | | |
| ISLANDEMS | Hospital GEN (EMS) | 0.5000000000 | $1,013,820 | $1,013,820 | $506.91 | | |
| LIB | Library Sno-Isle GEN | 0.3153421757 | $1,013,820 | $1,013,820 | $319.70 | | |
| NWHIDPRMT | P & R N Whidbey GEN | 0.2004466701 | $1,013,820 | $1,013,820 | $203.22 | | |
| SCH201MO | School 201 Enrichment | 1.8559231640 | $1,013,820 | $1,013,820 | $1,881.57 | | |
| ST | State School | 1.3035497053 | $1,013,820 | $1,013,820 | $1,321.56 | | |
| ST2 | State School Part 2 | 0.8169543533 | $1,013,820 | $1,013,820 | $828.24 | | |
| | Total Tax Rate: | 6.9861102925 | | | | | |
| | | | | Taxes w/Current Exemptions: | $7,082.64 | | |
| | | | | Taxes w/o Exemptions: | $7,082.64 | | |
Improvement / Building
| Improvement #1: | RESIDENTIAL | State Code: | Y | 1944.0 sqft | Value: | $673,820 |
| Bathrooms: | 2 | Bedrooms: | 2 | | Ceiling: | DRYWALL PAINTED | Cooling: | HEAT PUMP/CONV/V | | Exterior Wall/Cover: | CEMENT FIBER | Floor Covering: | CERAMIC TILE/HWD 40/60 | | Floor Structure: | WOOD W/SUBFLOOR | Foundation: | CONCRETE | | Interior Finish: | DRYWALL PAINT | Plumbing Fixture Cnt: | 10 | | Roof Slope: | 8" IN 12" | Roof Structure/Cover: | CJ ASPHALT |
|
| | Type | Description | Class CD | Sub Class CD | Year Built | Area |
| | BAS | BASE/MAIN FLOOR | 4 | 0 | 2006 | 1944.0 |
| | OP4 | OPEN PORCH W/CEILING-ROOF | 4 | 0 | 2006 | 209.2 |
| | DGR | DETACHED GARAGE | 4 | 0 | 2006 | 840.0 |
| | ENP | ENCLOSED PORCH | 4 | 0 | 2006 | 496.6 |
| | UTY | STORAGE/UTILITY | 4 | 0 | 2006 | 2764.0 |
| | OP1 | OPEN PORCH SLAB | 4 | 0 | 2006 | 379.0 |
| | OWP | OPEN WOOD PORCH W/STEPS | 4 | 0 | 2006 | 297.0 |
| | ATF | ATTIC FINISHED | 4 | 0 | 2006 | 600.0 |
Sketch
Property Image
Land
| 1 | 32 | AC (03.01-09.99) | 5.0000 | 0.00 | 0.00 | 0.00 | 1.00 | $340,000 | $0 |
Roll Value History
| 2026 | N/A | N/A | N/A | N/A | N/A |
| 2025 | $673,820 | $340,000 | $0 | $1,013,820 | $1,013,820 |
| 2024 | $680,829 | $320,000 | $0 | $1,000,829 | $1,000,829 |
| 2023 | $686,087 | $320,000 | $0 | $1,006,087 | $1,006,087 |
| 2022 | $444,302 | $240,000 | $0 | $684,302 | $684,302 |
| 2021 | $393,749 | $160,000 | $0 | $553,749 | $553,749 |
| 2020 | $383,482 | $140,000 | $0 | $523,482 | $523,482 |
| 2019 | $298,179 | $200,000 | $0 | $498,179 | $498,179 |
| 2018 | $298,926 | $170,000 | $0 | $468,926 | $468,926 |
| 2017 | $300,421 | $150,000 | $0 | $450,421 | $450,421 |
| 2016 | $298,425 | $140,000 | $0 | $438,425 | $438,425 |
| 2015 | $301,450 | $120,000 | $0 | $421,450 | $421,450 |
| 2014 | $304,474 | $100,000 | $0 | $404,474 | $404,474 |
| 2013 | $307,497 | $108,000 | $0 | $415,497 | $415,497 |
| 2012 | $310,522 | $99,000 | $0 | $409,522 | $409,522 |
| 2011 | $313,546 | $110,000 | $0 | $423,546 | $423,546 |
| 2010 | $280,445 | $110,000 | $0 | $390,445 | $390,445 |
| 2009 | $291,579 | $145,000 | $0 | $436,579 | $436,579 |
| 2008 | $297,196 | $145,000 | $0 | $442,196 | $442,196 |
| 2007 | $297,759 | $150,000 | $0 | $447,759 | $447,759 |
Deed and Sales History
| 1 | 07/05/2018 | QCD | Quit Claim Deed | MAY, ROBERT T | DAVIS, MARK R | | | $0.00 | 35348 | 4449460 |
| 2 | 03/30/2006 | QCD | Quit Claim Deed | MAY, ROBERT T | DAVIS, MARK R | | | $0.00 | 61405 | 4166426 |
| 3 | 10/17/2005 | WD | Warranty Deed | ANDERSON, JAMES T | MAY, ROBERT T | | | $173,600.00 | 55330 | 4151674 |
| 4 | 06/01/1994 | QCD | Quit Claim Deed | ANDERSON, LLOYD L | ANDERSON, JAMES T | | | $0.00 | 42186 | 94012584 |
| 5 | 07/01/1993 | DECREE | Divorce Decree/Legal Separation | ANDERSON, JAMES T | ANDERSON, LLOYD L | | | $0.00 | 33183 | 93016966 |
| 6 | 01/01/1992 | OTHER | Other - Misc. Documents | ANDERSON, JAMES T | ANDERSON, JAMES T | | | $0.00 | 64650 | 0 |
| 7 | 06/01/1975 | EXECUTORD | Executor Deed | TIPPERY, MILES W | ANDERSON, JAMES T | | | $11,000.00 | 55640 | 0 |
| 8 | 01/01/1900 | OTHER | Other - Misc. Documents | Unknown | TIPPERY, MILES W | | | $0.00 | 0 | 0 |
Payout Agreement
| No payout information available.. |