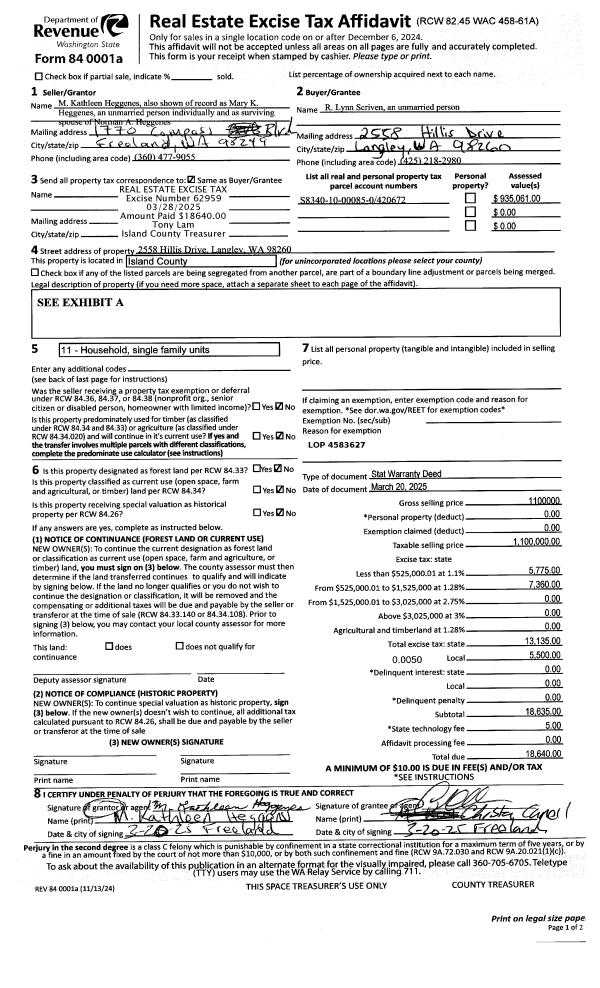
Property
Account |
| Property ID: | 664702 | Abbreviated Legal Description: | LOT 2 SP 67-90.03224.021.1770 V2 SP P331 AF#91019663 |
| Geographic ID: | R03224-021-1790 | Agent Code: | |
| Type: | Real | | |
| Tax Area: | 330 - APPRAISER-Cpvl Schl Dist, Special Dist, improved & less than 1 acre | Land Use Code | 11 |
| Open Space: | N | DFL | N |
| Historic Property: | N | Remodel Property: | N |
| Multi-Family Redevelopment: | N | | |
| Township: | 32 | Section: | 24 |
| Range: | R0 |
Location |
| Address: | | Mapsco: | |
| Neighborhood: | Area 2 Waterfront Westside Res | Map ID: | 3 |
| Neighborhood CD: | 2WFTW01R |
Owner |
| Name: | SARGENT, KENNETH C | Owner ID: | 192849 |
| Mailing Address: | DONNA M SARGENT 813 BERGWACHT PLACE COUPEVILLE, WA 98239-9707 | % Ownership: | 100.0000000000% |
| | | Exemptions: | |
Taxes and Assessment Details
Values
| (+) Improvement Homesite Value: | + | $0 | |
| (+) Improvement Non-Homesite Value: | + | $628,723 | |
| (+) Land Homesite Value: | + | $0 | |
| (+) Land Non-Homesite Value: | + | $525,000 | |
| (+) Curr Use (HS): | + | $0 | $0 |
| (+) Curr Use (NHS): | + | $0 | $0 |
| | | -------------------------- | |
| (=) Market Value: | = | $1,153,723 | |
| (–) Productivity Loss: | – | $0 | |
| | | -------------------------- | |
| (=) Subtotal: | = | $1,153,723 | |
| (+) Senior Appraised Value: | + | $0 | |
| (+) Non-Senior Appraised Value: | + | $1,153,723 | |
| | | -------------------------- | |
| (=) Total Appraised Value: | = | $1,153,723 | |
| (–) Senior Exemption Loss: | – | $0 | |
| (–) Exemption Loss: | – | $0 | |
| | | -------------------------- | |
| (=) Taxable Value: | = | $1,153,723 | |
Taxing Jurisdiction
| Owner: | SARGENT, KENNETH C | | |
| % Ownership: | 100.0000000000% | | |
| Total Value: | $1,153,723 | | |
| Tax Area: | 330 - APPRAISER-Cpvl Schl Dist, Special Dist, improved & less than 1 acre |
| CF | Conservation Futures | 0.0316035091 | $1,153,723 | $1,153,723 | $36.46 | | |
| CEM2 | Cemetery #2 | 0.0095056933 | $1,153,723 | $1,153,723 | $10.97 | | |
| FIRE2 | Fire & Rescue Dist #2 N Whidbey GEN | 0.5475949600 | $1,153,723 | $1,153,723 | $631.77 | | |
| HOBOND | Hospital BOND | 0.1910887512 | $1,153,723 | $1,153,723 | $220.46 | | |
| HOGEN | Hospital GEN | 0.3902502903 | $1,153,723 | $1,153,723 | $450.24 | | |
| CE | County Current Expense | 0.3708482477 | $1,153,723 | $1,153,723 | $427.86 | | |
| CR | County Roads | 0.4584763726 | $1,153,723 | $1,153,723 | $528.95 | | |
| ISLANDEMS | Hospital GEN (EMS) | 0.5000000000 | $1,153,723 | $1,153,723 | $576.86 | | |
| LIB | Library Sno-Isle GEN | 0.3153421757 | $1,153,723 | $1,153,723 | $363.82 | | |
| LIBCAP | Library Sno-Isle BOND (Cap Fac Imp Area) | 0.0543427938 | $1,153,723 | $1,153,723 | $62.70 | | |
| POCOUP | Port of Coupeville GEN | 0.1093371703 | $1,153,723 | $1,153,723 | $126.14 | | |
| POCOUPIDD | Port of Coupeville IDD | 0.3409740022 | $1,153,723 | $1,153,723 | $393.39 | | |
| COUPSDTECH | School 204 CP (TECH) | 0.7545480007 | $1,153,723 | $1,153,723 | $870.54 | | |
| SCH204MO | School 204 Enrichment | 0.6716186034 | $1,153,723 | $1,153,723 | $774.86 | | |
| ST | State School | 1.3035497053 | $1,153,723 | $1,153,723 | $1,503.94 | | |
| ST2 | State School Part 2 | 0.8169543533 | $1,153,723 | $1,153,723 | $942.54 | | |
| | Total Tax Rate: | 6.8660346289 | | | | | |
| | | | | Taxes w/Current Exemptions: | $7,921.50 | | |
| | | | | Taxes w/o Exemptions: | $7,921.50 | | |
Improvement / Building
| Improvement #1: | RESIDENTIAL | State Code: | Y | 3338.6 sqft | Value: | $628,723 |
| Bathrooms: | 2.5 | Bedrooms: | 3 | | Ceiling: | DRYWALL PAINTED | Exterior Wall/Cover: | CEMENT FIBER | | Floor Covering: | HARDWOOD/CARP 60-40 | Floor Structure: | WOOD W/SUBFLOOR | | Foundation: | CONCRETE | Heating: | FHA GAS | | Interior Finish: | DRYWALL PAINT | Plumbing Fixture Cnt: | 13 | | Roof Slope: | 8" IN 12" | Roof Structure/Cover: | CJ ASPHALT |
|
| | Type | Description | Class CD | Sub Class CD | Year Built | Area |
| | BAS | BASE/MAIN FLOOR | 4 | 0 | 2008 | 1933.3 |
| | DWN | DOWNSTAIRS LIVING AREA | 4 | 0 | 2008 | 1405.3 |
| | OP1 | OPEN PORCH SLAB | 4 | 0 | 2008 | 1150.1 |
| | BIG | BUILT IN GARAGE | 4 | 0 | 2008 | 528.0 |
| | OWP | OPEN WOOD PORCH W/STEPS | 4 | 0 | 2008 | 635.3 |
| | OWC | OPEN WOOD PORCH W/STEPS/ROOF/C | 4 | 0 | 2008 | 79.0 |
Sketch
Property Image
Land
| 1 | HS | HOMESITE | 1.0000 | 43560.00 | 0.00 | 0.00 | 1.00 | $340,000 | $0 |
| 2 | HB | HIGH BLUFF | 0.0000 | 0.00 | 90.00 | 0.00 | 1.00 | $185,000 | $0 |
Roll Value History
| 2026 | N/A | N/A | N/A | N/A | N/A |
| 2025 | $628,723 | $525,000 | $0 | $1,153,723 | $1,153,723 |
| 2024 | $611,066 | $500,000 | $0 | $1,111,066 | $1,111,066 |
| 2023 | $617,989 | $500,000 | $0 | $1,117,989 | $1,117,989 |
| 2022 | $564,308 | $450,000 | $0 | $1,014,308 | $1,014,308 |
| 2021 | $495,062 | $325,000 | $0 | $820,062 | $820,062 |
| 2020 | $481,494 | $295,000 | $0 | $776,494 | $776,494 |
| 2019 | $390,140 | $300,000 | $0 | $690,140 | $690,140 |
| 2018 | $375,647 | $250,000 | $0 | $625,647 | $625,647 |
| 2017 | $377,718 | $250,000 | $0 | $627,718 | $627,718 |
| 2016 | $381,914 | $250,000 | $0 | $631,914 | $631,914 |
| 2015 | $386,111 | $250,000 | $0 | $636,111 | $636,111 |
| 2014 | $390,309 | $250,000 | $0 | $640,309 | $640,309 |
| 2013 | $394,505 | $202,982 | $0 | $597,487 | $597,487 |
| 2012 | $401,019 | $202,982 | $0 | $604,001 | $604,001 |
| 2011 | $405,219 | $202,982 | $0 | $608,201 | $608,201 |
| 2010 | $411,953 | $202,982 | $0 | $614,935 | $614,935 |
| 2009 | $424,678 | $287,699 | $0 | $712,377 | $712,377 |
| 2008 | $429,040 | $287,699 | $0 | $716,739 | $716,739 |
| 2007 | $0 | $224,699 | $0 | $224,699 | $224,699 |
Deed and Sales History
| 1 | 06/09/2004 | WD | Warranty Deed | MOSES, LAURENCE G | SARGENT, KENNETH C | | | $200,000.00 | 42511 | 4103296 |
| 2 | 01/01/1900 | OTHER | Other - Misc. Documents | Unknown | MOSES, LAURENCE G | | | $0.00 | 92201 | 89007523 |
Payout Agreement
| No payout information available.. |