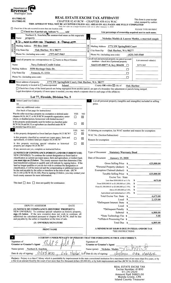
Property
Account |
| Property ID: | 66485 | Abbreviated Legal Description: | 46 - S/2 S/2 SW NW EX RD TGW: S/2 N/2 S/2 SW NW EX: W681.67' OF S/2 N/2 S/2 SW NW |
| Geographic ID: | R23024-281-0670 | Agent Code: | |
| Type: | Real | | |
| Tax Area: | 712 - APPRAISER-S Whid Schl Dist, outside Langley, improved, greater than 1 acre | Land Use Code | 11 |
| Open Space: | N | DFL | N |
| Historic Property: | N | Remodel Property: | N |
| Multi-Family Redevelopment: | N | | |
| Township: | 30 | Section: | 24 |
| Range: | R2 |
Location |
| Address: | | Mapsco: | |
| Neighborhood: | Cycle 3 | Map ID: | 410 |
| Neighborhood CD: | 3 |
Owner |
| Name: | ZIMMERMAN, MARNI A | Owner ID: | 121566 |
| Mailing Address: | ROBERT B CRIBBS 3799 E HARBOR RD LANGLEY, WA 98260 | % Ownership: | 100.0000000000% |
| | | Exemptions: | |
Taxes and Assessment Details
Values
| (+) Improvement Homesite Value: | + | $0 | |
| (+) Improvement Non-Homesite Value: | + | $342,798 | |
| (+) Land Homesite Value: | + | $0 | |
| (+) Land Non-Homesite Value: | + | $400,000 | |
| (+) Curr Use (HS): | + | $0 | $0 |
| (+) Curr Use (NHS): | + | $0 | $0 |
| | | -------------------------- | |
| (=) Market Value: | = | $742,798 | |
| (–) Productivity Loss: | – | $0 | |
| | | -------------------------- | |
| (=) Subtotal: | = | $742,798 | |
| (+) Senior Appraised Value: | + | $0 | |
| (+) Non-Senior Appraised Value: | + | $742,798 | |
| | | -------------------------- | |
| (=) Total Appraised Value: | = | $742,798 | |
| (–) Senior Exemption Loss: | – | $0 | |
| (–) Exemption Loss: | – | $0 | |
| | | -------------------------- | |
| (=) Taxable Value: | = | $742,798 | |
Taxing Jurisdiction
| Owner: | ZIMMERMAN, MARNI A | | |
| % Ownership: | 100.0000000000% | | |
| Total Value: | $742,798 | | |
| Tax Area: | 712 - APPRAISER-S Whid Schl Dist, outside Langley, improved, greater than 1 acre |
| CF | Conservation Futures | 0.0316035091 | $742,798 | $742,798 | $23.48 | | |
| FIRE3 | Fire & Rescue Dist #3 S Whidbey GEN | 1.2004855531 | $742,798 | $742,798 | $891.72 | | |
| HOBOND | Hospital BOND | 0.1910887512 | $742,798 | $742,798 | $141.94 | | |
| HOGEN | Hospital GEN | 0.3902502903 | $742,798 | $742,798 | $289.88 | | |
| CE | County Current Expense | 0.3708482477 | $742,798 | $742,798 | $275.47 | | |
| CR | County Roads | 0.4584763726 | $742,798 | $742,798 | $340.56 | | |
| ISLANDEMS | Hospital GEN (EMS) | 0.5000000000 | $742,798 | $742,798 | $371.40 | | |
| LIB | Library Sno-Isle GEN | 0.3153421757 | $742,798 | $742,798 | $234.24 | | |
| PORTWHID | Port of S Whidbey GEN | 0.1094540357 | $742,798 | $742,798 | $81.30 | | |
| SCH206BOND | School 206 BOND | 0.3161759235 | $742,798 | $742,798 | $234.85 | | |
| SCH206MO | School 206 Enrichment | 0.4547169547 | $742,798 | $742,798 | $337.76 | | |
| ST | State School | 1.3035497053 | $742,798 | $742,798 | $968.27 | | |
| ST2 | State School Part 2 | 0.8169543533 | $742,798 | $742,798 | $606.83 | | |
| SWHIDPRBD | P & R S Whidbey BOND | 0.0152817568 | $742,798 | $742,798 | $11.35 | | |
| SWHIDPRBD2 | P & R S Whidbey BOND2 | 0.0138911264 | $742,798 | $742,798 | $10.32 | | |
| SWHIDPRMT | P & R S Whidbey GEN | 0.2053334452 | $742,798 | $742,798 | $152.52 | | |
| | Total Tax Rate: | 6.6934522006 | | | | | |
| | | | | Taxes w/Current Exemptions: | $4,971.89 | | |
| | | | | Taxes w/o Exemptions: | $4,971.89 | | |
Improvement / Building
| Improvement #1: | RESIDENTIAL | State Code: | Y | 2203.0 sqft | Value: | $342,798 |
| Bathrooms: | 1.5 | Bedrooms: | 3 | | Ceiling: | DRYWALL PAINTED | Exterior Wall/Cover: | PLY/HARDBOARD T-111 | | Floor Covering: | COLORED CONCRETE | Floor Structure: | WOOD W/SUBFLOOR | | Foundation: | CONCRETE | Heating: | RADIANT FLOOR | | Interior Finish: | DRYWALL PAINT | Plumbing Fixture Cnt: | 9 | | Roof Slope: | 3" IN 12" | Roof Structure/Cover: | CJ ALUMINIUM HEAVY |
|
| | Type | Description | Class CD | Sub Class CD | Year Built | Area |
| | BAS | BASE/MAIN FLOOR | 3 | 0 | 2004 | 1137.0 |
| | OP1 | OPEN PORCH SLAB | 3 | 0 | 2004 | 339.0 |
| | UTY | STORAGE/UTILITY | 3 | 0 | 2004 | 1012.0 |
| | UPS | UPPER STORY | 3 | 0 | 2004 | 1066.0 |
| | OWP | OPEN WOOD PORCH W/STEPS | 3 | 0 | 2004 | 65.0 |
| | OWR | OPEN WOOD PORCH W/STEPS/ROOF | 3 | 0 | 2004 | 66.0 |
| | OWR | OPEN WOOD PORCH W/STEPS/ROOF | 3 | 0 | 2004 | 33.0 |
| | UTY | STORAGE/UTILITY | 3 | 0 | 2004 | 640.0 |
| | OWR | OPEN WOOD PORCH W/STEPS/ROOF | 3 | 0 | 2004 | 69.2 |
Sketch
Property Image
Land
| 1 | 35 | AC (10.00-30.99) | 0.0000 | 0.00 | 0.00 | 0.00 | 1.00 | $400,000 | $0 |
Roll Value History
| 2026 | N/A | N/A | N/A | N/A | N/A |
| 2025 | $342,798 | $400,000 | $0 | $742,798 | $742,798 |
| 2024 | $347,121 | $360,000 | $0 | $707,121 | $707,121 |
| 2023 | $351,449 | $350,000 | $0 | $701,449 | $701,449 |
| 2022 | $322,171 | $230,000 | $0 | $552,171 | $552,171 |
| 2021 | $283,555 | $230,000 | $0 | $513,555 | $513,555 |
| 2020 | $276,927 | $190,000 | $0 | $466,927 | $466,927 |
| 2019 | $214,382 | $280,000 | $0 | $494,382 | $494,382 |
| 2018 | $215,011 | $210,000 | $0 | $425,011 | $425,011 |
| 2017 | $216,266 | $200,000 | $0 | $416,266 | $416,266 |
| 2016 | $218,781 | $200,000 | $0 | $418,781 | $418,781 |
| 2015 | $221,297 | $200,000 | $0 | $421,297 | $421,297 |
| 2014 | $223,810 | $132,030 | $0 | $355,840 | $355,840 |
| 2013 | $253,063 | $132,030 | $0 | $385,093 | $385,093 |
| 2012 | $255,559 | $132,030 | $0 | $387,589 | $387,589 |
| 2011 | $258,052 | $132,030 | $0 | $390,082 | $390,082 |
| 2010 | $263,597 | $146,700 | $0 | $410,297 | $410,297 |
| 2009 | $276,255 | $215,160 | $0 | $491,415 | $491,415 |
| 2008 | $276,738 | $231,700 | $0 | $508,438 | $508,438 |
| 2007 | $278,007 | $231,700 | $0 | $509,707 | $509,707 |
Deed and Sales History
| 1 | 08/10/2009 | BLA | DNU - Boundary Line Adjustment | ZIMMERMAN, MARNI A | ZIMMERMAN, MARNI A | | | $0.00 | 81348 | 4217829 |
| 2 | 04/27/2009 | ESTSEPPROP | Establish Separate Property | ZIMMERMAN, MARNI A | ZIMMERMAN, MARNI A | | | $0.00 | 90908 | 4249924 |
| 3 | 09/27/2002 | QCD | Quit Claim Deed | CRIBBS, ROBBIE | ZIMMERMAN, MARNI A | | | $0.00 | 24116 | 4034211 |
| 4 | 03/07/2001 | WD | Warranty Deed | PHELPS, HOWARD B | CRIBBS, ROBBIE | | | $75,000.00 | 11062 | 20028685 |
| 5 | 04/01/1997 | QCD | Quit Claim Deed | PHELPS, MARK | PHELPS, HOWARD B | | | $0.00 | 71044 | 97005062 |
| 6 | 05/01/1993 | WD | Warranty Deed | KOLB, GERALD B | PHELPS, MARK | | | $49,900.00 | 31650 | 93008528 |
| 7 | 01/01/1900 | OTHER | Other - Misc. Documents | Unknown | KOLB, GERALD B | | | $0.00 | 0 | 0 |
Payout Agreement
| No payout information available.. |