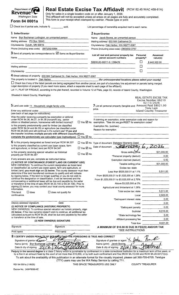
Property
Account |
| Property ID: | 665417 | Abbreviated Legal Description: | 1967 VANDYKE 10X64 LENGTH INCLUDES 7X12 TIPOUT VIN# 2892 TPO #61624 FROM K-641014 |
| Geographic ID: | M911000001390 | Agent Code: | |
| Type: | Mobile Home | | |
| Tax Area: | 100 - APPRAISER-OH Schl Dist, in OH | Land Use Code | 11 |
| Open Space: | N | DFL | N |
| Historic Property: | N | Remodel Property: | N |
| Multi-Family Redevelopment: | N | | |
| Township: | | Section: | |
| Range: | |
Location |
| Address: | 700 NW CROSBY AVE # 139 OAK HARBOR, WA 98277 | Mapsco: | |
| Neighborhood: | Cycle 1 | Map ID: | |
| Neighborhood CD: | 1 |
Owner |
| Name: | PARKWOOD MHP LLC | Owner ID: | 195981 |
| Mailing Address: | 550 CALIFORNIA ST SUITE 116 SAN FRANCISCO, CA 94104 | % Ownership: | 100.0000000000% |
| | | Exemptions: | |
Taxes and Assessment Details
Values
| (+) Improvement Homesite Value: | + | $0 | |
| (+) Improvement Non-Homesite Value: | + | $5,755 | |
| (+) Land Homesite Value: | + | $0 | |
| (+) Land Non-Homesite Value: | + | $0 | |
| (+) Curr Use (HS): | + | $0 | $0 |
| (+) Curr Use (NHS): | + | $0 | $0 |
| | | -------------------------- | |
| (=) Market Value: | = | $5,755 | |
| (–) Productivity Loss: | – | $0 | |
| | | -------------------------- | |
| (=) Subtotal: | = | $5,755 | |
| (+) Senior Appraised Value: | + | $0 | |
| (+) Non-Senior Appraised Value: | + | $5,755 | |
| | | -------------------------- | |
| (=) Total Appraised Value: | = | $5,755 | |
| (–) Senior Exemption Loss: | – | $0 | |
| (–) Exemption Loss: | – | $0 | |
| | | -------------------------- | |
| (=) Taxable Value: | = | $5,755 | |
Taxing Jurisdiction
| Owner: | PARKWOOD MHP LLC | | |
| % Ownership: | 100.0000000000% | | |
| Total Value: | $5,755 | | |
| Tax Area: | 100 - APPRAISER-OH Schl Dist, in OH |
| CF | Conservation Futures | 0.0316035091 | $5,755 | $5,755 | $0.18 | | |
| CEM1 | Cemetery #1 | 0.0040320932 | $5,755 | $5,755 | $0.02 | | |
| COH | City of Oak Harbor | 2.3001546061 | $5,755 | $5,755 | $13.24 | | |
| OAKBOND | City of Oak Harbor BOND | 0.1926904192 | $5,755 | $5,755 | $1.11 | | |
| HOBOND | Hospital BOND | 0.1910887512 | $5,755 | $5,755 | $1.10 | | |
| HOGEN | Hospital GEN | 0.3902502903 | $5,755 | $5,755 | $2.25 | | |
| CE | County Current Expense | 0.3708482477 | $5,755 | $5,755 | $2.13 | | |
| ISLANDEMS | Hospital GEN (EMS) | 0.5000000000 | $5,755 | $5,755 | $2.88 | | |
| LIB | Library Sno-Isle GEN | 0.3153421757 | $5,755 | $5,755 | $1.81 | | |
| NWHIDPRMT | P & R N Whidbey GEN | 0.2004466701 | $5,755 | $5,755 | $1.15 | | |
| SCH201MO | School 201 Enrichment | 1.8559231640 | $5,755 | $5,755 | $10.68 | | |
| ST | State School | 1.3035497053 | $5,755 | $5,755 | $7.50 | | |
| ST2 | State School Part 2 | 0.8169543533 | $5,755 | $5,755 | $4.70 | | |
| | Total Tax Rate: | 8.4728839852 | | | | | |
| | | | | Taxes w/Current Exemptions: | $48.75 | | |
| | | | | Taxes w/o Exemptions: | $48.75 | | |
Improvement / Building
| Improvement #1: | MANUFACTURED HOME | State Code: | Y | 637.0 sqft | Value: | $5,755 |
| Bathrooms: | 1 | Bedrooms: | 2 | | Ceiling: | PLASTER PAINTED | Cooling: | EVAP NO DUCT | | Exterior Wall/Cover: | VINYL | Floor Covering: | CARPET 100% | | Floor Structure: | SLAB ON GRADE | Foundation: | SLAB | | Heating: | FHA ELECTRIC | Interior Finish: | PLASTER | | Plumbing Fixture Cnt: | 1 | Roof Slope: | FLAT | | Roof Structure/Cover: | CJ ALUMINIUM HEAVY |   |   |
|
Sketch
Property Image
Land
No land segments exist for this property.
Roll Value History
| 2026 | N/A | N/A | N/A | N/A | N/A |
| 2025 | $5,755 | $0 | $0 | $5,755 | $5,755 |
| 2024 | $5,755 | $0 | $0 | $5,755 | $5,755 |
| 2023 | $5,004 | $0 | $0 | $5,004 | $5,004 |
| 2022 | $4,532 | $0 | $0 | $4,532 | $4,532 |
| 2021 | $3,349 | $0 | $0 | $3,349 | $3,349 |
| 2020 | $3,252 | $0 | $0 | $3,252 | $0 |
| 2019 | $2,561 | $0 | $0 | $2,561 | $0 |
| 2018 | $2,561 | $0 | $0 | $2,561 | $0 |
| 2017 | $2,721 | $0 | $0 | $2,721 | $0 |
| 2016 | $2,721 | $0 | $0 | $2,721 | $0 |
| 2015 | $2,721 | $0 | $0 | $2,721 | $0 |
| 2014 | $2,721 | $0 | $0 | $2,721 | $0 |
| 2013 | $2,721 | $0 | $0 | $2,721 | $0 |
| 2012 | $2,721 | $0 | $0 | $2,721 | $0 |
| 2011 | $4,508 | $0 | $0 | $4,508 | $0 |
| 2010 | $4,803 | $0 | $0 | $4,803 | $0 |
| 2009 | $4,974 | $0 | $0 | $4,974 | $0 |
| 2008 | $5,038 | $0 | $0 | $5,038 | $0 |
| 2007 | $5,103 | $0 | $0 | $5,103 | $0 |
Deed and Sales History
| 1 | 08/18/2025 | MANHOME | Manufactured Home | PARKWOOD MHP LLC | MANZANO, SANDRA | | | $3,000.00 | 64515 | |
| 2 | 10/25/2024 | MANHOME | Manufactured Home | HAMILTON-WASHINGTON, SAMUEL | PARKWOOD MHP LLC | | | $0.00 | 61697 | |
| 3 | 08/20/2021 | MANHOME | Manufactured Home | DREXL, BARBARA | DREXL, BARBARA | | | $0.00 | 49719 | |
| 4 | 10/14/2021 | MANHOME | Manufactured Home | DREXL, BARBARA | HAMILTON-WASHINGTON, SAMUEL | | | $1,000.00 | 50453 | |
| 5 | 03/22/2007 | OTHER | Other - Misc. Documents | STEVENS, JERRY / | DREXL, BARBARA | | | $0.00 | 70970 | 0 |
| 6 | 09/01/1995 | OTHER | Other - Misc. Documents | RIES, BLAINE D | STEVENS, JERRY / | | | $2,000.00 | 53093 | 0 |
| 7 | 03/01/1995 | OTHER | Other - Misc. Documents | MITCHELL, JAMES C | RIES, BLAINE D | | | $1,800.00 | 50980 | 0 |
| 8 | 11/01/1993 | OTHER | Other - Misc. Documents | WOODFORD, ALLEN R | MITCHELL, JAMES C | | | $1,800.00 | 34284 | 0 |
| 9 | 02/01/1992 | OTHER | Other - Misc. Documents | Unknown | WOODFORD, ALLEN R | | | $1,000.00 | 20457 | 0 |
Payout Agreement
| No payout information available.. |