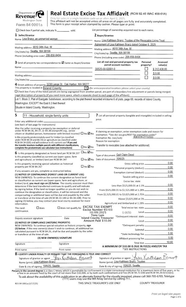
Property
Account |
| Property ID: | 666826 | Abbreviated Legal Description: | TARA LOT 4 SP 27-90.8295.00.0000A-0 V2 SP P338 AF#92001413 DRAINFIELD LOC 00A11-0 AF#91017966 |
| Geographic ID: | S8295-00-00A14-0 | Agent Code: | |
| Type: | Real | | |
| Tax Area: | 710 - APPRAISER-S Whid Schl Dist, outside Langley, improved & 1 acre or less | Land Use Code | 11 |
| Open Space: | N | DFL | N |
| Historic Property: | N | Remodel Property: | N |
| Multi-Family Redevelopment: | N | | |
| Township: | | Section: | |
| Range: | |
Location |
| Address: | 5608 TARA DR FREELAND, WA 98249 | Mapsco: | |
| Neighborhood: | Cycle 3 | Map ID: | 333 |
| Neighborhood CD: | 3 |
Owner |
| Name: | REA, ASHLEY | Owner ID: | 297603 |
| Mailing Address: | 5608 TARA DR FREELAND, WA 98249 | % Ownership: | 100.0000000000% |
| | | Exemptions: | |
Taxes and Assessment Details
Values
| (+) Improvement Homesite Value: | + | $0 | |
| (+) Improvement Non-Homesite Value: | + | $2,074,030 | |
| (+) Land Homesite Value: | + | $0 | |
| (+) Land Non-Homesite Value: | + | $1,850,000 | |
| (+) Curr Use (HS): | + | $0 | $0 |
| (+) Curr Use (NHS): | + | $0 | $0 |
| | | -------------------------- | |
| (=) Market Value: | = | $3,924,030 | |
| (–) Productivity Loss: | – | $0 | |
| | | -------------------------- | |
| (=) Subtotal: | = | $3,924,030 | |
| (+) Senior Appraised Value: | + | $0 | |
| (+) Non-Senior Appraised Value: | + | $3,924,030 | |
| | | -------------------------- | |
| (=) Total Appraised Value: | = | $3,924,030 | |
| (–) Senior Exemption Loss: | – | $0 | |
| (–) Exemption Loss: | – | $0 | |
| | | -------------------------- | |
| (=) Taxable Value: | = | $3,924,030 | |
Taxing Jurisdiction
| Owner: | REA, ASHLEY | | |
| % Ownership: | 100.0000000000% | | |
| Total Value: | $3,924,030 | | |
| Tax Area: | 710 - APPRAISER-S Whid Schl Dist, outside Langley, improved & 1 acre or less |
| CF | Conservation Futures | 0.0316035091 | $3,924,030 | $3,924,030 | $124.01 | | |
| FIRE3 | Fire & Rescue Dist #3 S Whidbey GEN | 1.2004855531 | $3,924,030 | $3,924,030 | $4,710.74 | | |
| HOBOND | Hospital BOND | 0.1910887512 | $3,924,030 | $3,924,030 | $749.84 | | |
| HOGEN | Hospital GEN | 0.3902502903 | $3,924,030 | $3,924,030 | $1,531.35 | | |
| CE | County Current Expense | 0.3708482477 | $3,924,030 | $3,924,030 | $1,455.22 | | |
| CR | County Roads | 0.4584763726 | $3,924,030 | $3,924,030 | $1,799.08 | | |
| ISLANDEMS | Hospital GEN (EMS) | 0.5000000000 | $3,924,030 | $3,924,030 | $1,962.02 | | |
| LIB | Library Sno-Isle GEN | 0.3153421757 | $3,924,030 | $3,924,030 | $1,237.41 | | |
| PORTWHID | Port of S Whidbey GEN | 0.1094540357 | $3,924,030 | $3,924,030 | $429.50 | | |
| SCH206BOND | School 206 BOND | 0.3161759235 | $3,924,030 | $3,924,030 | $1,240.68 | | |
| SCH206MO | School 206 Enrichment | 0.4547169547 | $3,924,030 | $3,924,030 | $1,784.32 | | |
| ST | State School | 1.3035497053 | $3,924,030 | $3,924,030 | $5,115.17 | | |
| ST2 | State School Part 2 | 0.8169543533 | $3,924,030 | $3,924,030 | $3,205.75 | | |
| SWHIDPRBD | P & R S Whidbey BOND | 0.0152817568 | $3,924,030 | $3,924,030 | $59.97 | | |
| SWHIDPRBD2 | P & R S Whidbey BOND2 | 0.0138911264 | $3,924,030 | $3,924,030 | $54.51 | | |
| SWHIDPRMT | P & R S Whidbey GEN | 0.2053334452 | $3,924,030 | $3,924,030 | $805.73 | | |
| | Total Tax Rate: | 6.6934522006 | | | | | |
| | | | | Taxes w/Current Exemptions: | $26,265.30 | | |
| | | | | Taxes w/o Exemptions: | $26,265.30 | | |
Improvement / Building
| Improvement #1: | RESIDENTIAL | State Code: | Y | 6179.1 sqft | Value: | $2,074,030 |
| Bathrooms: | 4 | Bedrooms: | 3 | | Ceiling: | DRYWALL PAINTED | Exterior Wall/Cover: | SHINGLE | | Floor Covering: | CERAMIC TILE/HWD 40/60 | Floor Structure: | WOOD W/SUBFLOOR | | Foundation: | CONCRETE | Heating: | FHA GAS | | Interior Finish: | DRYWALL PAINT | Plumbing Fixture Cnt: | 30 | | Roof Slope: | 10" IN 12" | Roof Structure/Cover: | CJ ASPHALT |
|
| | Type | Description | Class CD | Sub Class CD | Year Built | Area |
| | BAS | BASE/MAIN FLOOR | 8 | 0 | 2008 | 2121.7 |
| | OP4 | OPEN PORCH W/CEILING-ROOF | 8 | 0 | 2008 | 292.1 |
| | OP4 | OPEN PORCH W/CEILING-ROOF | 8 | 0 | 2008 | 36.0 |
| | AGR | ATTACHED GARAGE | 8 | 0 | 2008 | 605.2 |
| | UPS | UPPER STORY | 8 | 0 | 2008 | 3066.9 |
| | UPS | UPPER STORY | 8 | 0 | 2008 | 990.5 |
| | BAW | BALCONY WOOD RAIL | 8 | 0 | 2008 | 147.5 |
| | OWP | OPEN WOOD PORCH W/STEPS | 8 | 0 | 2008 | 254.0 |
| | OWP | OPEN WOOD PORCH W/STEPS | 8 | 0 | 2008 | 28.0 |
| | OWP | OPEN WOOD PORCH W/STEPS | 8 | 0 | 2008 | 193.6 |
| | OWP | OPEN WOOD PORCH W/STEPS | 8 | 0 | 2008 | 38.5 |
Sketch
Property Image
Land
| 1 | HB | HIGH BLUFF | 0.5700 | 24829.20 | 280.00 | 0.00 | 1.00 | $1,850,000 | $0 |
Roll Value History
| 2026 | N/A | N/A | N/A | N/A | N/A |
| 2025 | $2,074,030 | $1,850,000 | $0 | $3,924,030 | $3,924,030 |
| 2024 | $2,097,803 | $1,850,000 | $0 | $3,947,803 | $3,947,803 |
| 2023 | $2,121,574 | $1,850,000 | $0 | $3,971,574 | $3,971,574 |
| 2022 | $1,937,236 | $1,650,000 | $0 | $3,587,236 | $3,587,236 |
| 2021 | $1,699,495 | $1,350,000 | $0 | $3,049,495 | $3,049,495 |
| 2020 | $1,647,982 | $1,250,000 | $0 | $2,897,982 | $2,897,982 |
| 2019 | $1,721,031 | $1,300,000 | $0 | $3,021,031 | $3,021,031 |
| 2018 | $1,725,800 | $1,200,000 | $0 | $2,925,800 | $2,925,800 |
| 2017 | $1,719,448 | $1,200,000 | $0 | $2,919,448 | $2,919,448 |
| 2016 | $1,738,341 | $1,200,000 | $0 | $2,938,341 | $2,938,341 |
| 2015 | $1,757,237 | $1,200,000 | $0 | $2,957,237 | $2,957,237 |
| 2014 | $1,776,131 | $1,200,000 | $0 | $2,976,131 | $2,976,131 |
| 2013 | $1,542,691 | $913,777 | $0 | $2,456,468 | $2,456,468 |
| 2012 | $1,558,790 | $913,777 | $0 | $2,472,567 | $2,472,567 |
| 2011 | $1,574,889 | $913,777 | $0 | $2,488,666 | $2,488,666 |
| 2010 | $1,545,078 | $913,777 | $0 | $2,458,855 | $2,458,855 |
| 2009 | $1,608,665 | $1,098,290 | $0 | $2,706,955 | $2,706,955 |
| 2008 | $664,291 | $1,335,534 | $0 | $1,999,825 | $1,999,825 |
| 2007 | $171,892 | $902,436 | $0 | $1,074,328 | $1,074,328 |
Deed and Sales History
| 1 | 12/22/2020 | WD | Warranty Deed | CLARK, DWAYNE | REA, ASHLEY | | | $0.00 | 46426 | 4506877 |
| 2 | 09/25/2009 | ESTSEPPROP | Establish Separate Property | CLARK, DWAYNE | CLARK, DWAYNE | | | $0.00 | 92317 | 4260992 |
| 3 | 04/03/2006 | ESTSEPPROP | Establish Separate Property | CLARK, DWAYNE | CLARK, DWAYNE | | | $0.00 | 61530 | 4167042 |
| 4 | 04/03/2006 | WD | Warranty Deed | GREVE', DONALD A | CLARK, DWAYNE | | | $945,000.00 | 61529 | 4167041 |
| 5 | 01/01/1900 | OTHER | Other - Misc. Documents | Unknown | GREVE', DONALD A | | | $0.00 | 58553 | 348818 |
Payout Agreement
| No payout information available.. |