Property
Account |
| Property ID: | 666835 | Abbreviated Legal Description: | 1978 WESTBROOK 23X64 TPO $57294 FROM K-573285 |
| Geographic ID: | M906500000220 | Agent Code: | |
| Type: | Mobile Home | | |
| Tax Area: | 510 - APPRAISER-Stan/Cam Schl Dist, improved & 1 acre or less | Land Use Code | 11 |
| Open Space: | N | DFL | N |
| Historic Property: | N | Remodel Property: | N |
| Multi-Family Redevelopment: | N | | |
| Township: | | Section: | |
| Range: | |
Location |
| Address: | 36 BLUE BIRD LN CAMANO ISLAND, WA 98282 | Mapsco: | |
| Neighborhood: | Cycle 5 | Map ID: | |
| Neighborhood CD: | 5 |
Owner |
| Name: | KITCHNER, TED | Owner ID: | 280302 |
| Mailing Address: | 6333 83RD AVE SE SNOHOMISH, WA 98290 | % Ownership: | 100.0000000000% |
| | | Exemptions: | |
Taxes and Assessment Details
Values
| (+) Improvement Homesite Value: | + | $0 | |
| (+) Improvement Non-Homesite Value: | + | $51,040 | |
| (+) Land Homesite Value: | + | $0 | |
| (+) Land Non-Homesite Value: | + | $0 | |
| (+) Curr Use (HS): | + | $0 | $0 |
| (+) Curr Use (NHS): | + | $0 | $0 |
| | | -------------------------- | |
| (=) Market Value: | = | $51,040 | |
| (–) Productivity Loss: | – | $0 | |
| | | -------------------------- | |
| (=) Subtotal: | = | $51,040 | |
| (+) Senior Appraised Value: | + | $0 | |
| (+) Non-Senior Appraised Value: | + | $51,040 | |
| | | -------------------------- | |
| (=) Total Appraised Value: | = | $51,040 | |
| (–) Senior Exemption Loss: | – | $0 | |
| (–) Exemption Loss: | – | $0 | |
| | | -------------------------- | |
| (=) Taxable Value: | = | $51,040 | |
Taxing Jurisdiction
| Owner: | KITCHNER, TED | | |
| % Ownership: | 100.0000000000% | | |
| Total Value: | $51,040 | | |
| Tax Area: | 510 - APPRAISER-Stan/Cam Schl Dist, improved & 1 acre or less |
| CF | Conservation Futures | 0.0316035091 | $51,040 | $51,040 | $1.61 | | |
| EMS1 | Fire & Rescue Dist #1 Camano GEN (EMS) | 0.3677864386 | $51,040 | $51,040 | $18.77 | | |
| FIRE1 | Fire & Rescue Dist #1 Camano GEN | 1.2502910536 | $51,040 | $51,040 | $63.81 | | |
| FIRE1BOND | Fire & Rescue Dist #1 Camano BOND | 0.1570001679 | $51,040 | $51,040 | $8.01 | | |
| CE | County Current Expense | 0.3708482477 | $51,040 | $51,040 | $18.93 | | |
| CR | County Roads | 0.4584763726 | $51,040 | $51,040 | $23.40 | | |
| LCIB | Library Sno-Isle BOND (Camano Island) | 0.0396325772 | $51,040 | $51,040 | $2.02 | | |
| LIB | Library Sno-Isle GEN | 0.3153421757 | $51,040 | $51,040 | $16.10 | | |
| SCH205_401 | School 205-401 Enrichment | 1.2698420524 | $51,040 | $51,040 | $64.81 | | |
| SCH205BOND | School 205-401 BOND | 0.9396497583 | $51,040 | $51,040 | $47.96 | | |
| ST | State School | 1.3035497053 | $51,040 | $51,040 | $66.53 | | |
| ST2 | State School Part 2 | 0.8169543533 | $51,040 | $51,040 | $41.70 | | |
| | Total Tax Rate: | 7.3209764117 | | | | | |
| | | | | Taxes w/Current Exemptions: | $373.65 | | |
| | | | | Taxes w/o Exemptions: | $373.65 | | |
Improvement / Building
| Improvement #1: | MANUFACTURED HOME | State Code: | Y | 1472.0 sqft | Value: | $51,040 |
| Bathrooms: | 0 | Bedrooms: | 0 | | Ceiling: | PLASTER PAINTED | Cooling: | EVAP NO DUCT | | Exterior Wall/Cover: | VINYL | Floor Covering: | CARPET 100% | | Floor Structure: | SLAB ON GRADE | Foundation: | SLAB | | Heating: | FHA ELECTRIC | Interior Finish: | PLASTER | | Plumbing Fixture Cnt: | 1 | Roof Slope: | FLAT | | Roof Structure/Cover: | CJ ALUMINIUM HEAVY |   |   |
|
| | Type | Description | Class CD | Sub Class CD | Year Built | Area |
| | BAS | BASE/MAIN FLOOR | 4 | 0 | 1978 | 1472.0 |
| | OWP | OPEN WOOD PORCH W/STEPS | 4 | 0 | 1978 | 100.0 |
| | OWP | OPEN WOOD PORCH W/STEPS | 4 | 0 | 1978 | 160.0 |
| | ENP | ENCLOSED PORCH | 4 | 0 | 1978 | 200.0 |
Sketch
Property Image
Land
No land segments exist for this property.
Roll Value History
| 2026 | N/A | N/A | N/A | N/A | N/A |
| 2025 | $51,040 | $0 | $0 | $51,040 | $51,040 |
| 2024 | $52,741 | $0 | $0 | $52,741 | $52,741 |
| 2023 | $48,820 | $0 | $0 | $48,820 | $48,820 |
| 2022 | $46,888 | $0 | $0 | $46,888 | $46,888 |
| 2021 | $19,572 | $0 | $0 | $19,572 | $19,572 |
| 2020 | $19,796 | $0 | $0 | $19,796 | $19,796 |
| 2019 | $16,839 | $0 | $0 | $16,839 | $16,839 |
| 2018 | $17,462 | $0 | $0 | $17,462 | $17,462 |
| 2017 | $18,710 | $0 | $0 | $18,710 | $18,710 |
| 2016 | $19,333 | $0 | $0 | $19,333 | $19,333 |
| 2015 | $20,023 | $0 | $0 | $20,023 | $20,023 |
| 2014 | $20,985 | $0 | $0 | $20,985 | $20,985 |
| 2013 | $22,427 | $0 | $0 | $22,427 | $22,427 |
| 2012 | $23,389 | $0 | $0 | $23,389 | $23,389 |
| 2011 | $24,351 | $0 | $0 | $24,351 | $24,351 |
| 2010 | $25,247 | $0 | $0 | $25,247 | $25,247 |
| 2009 | $27,092 | $0 | $0 | $27,092 | $27,092 |
| 2008 | $28,134 | $0 | $0 | $28,134 | $28,134 |
| 2007 | $58,717 | $0 | $0 | $58,717 | $58,717 |
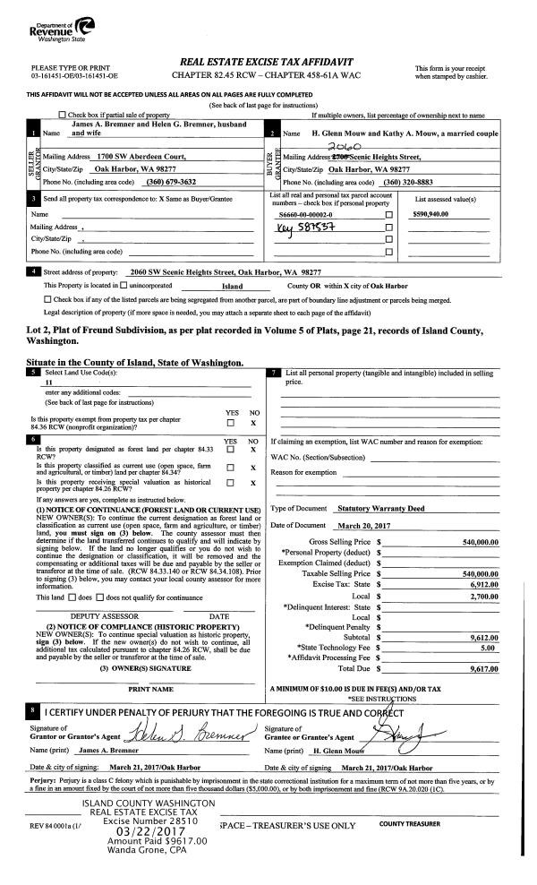
Deed and Sales History
| 1 | 06/01/2017 | MANHOME | Manufactured Home | PLATT, KAREN | KITCHNER, TED | | | $6,000.00 | 29653 | |
| 2 | 04/24/2017 | MANHOME | Manufactured Home | PLATT, VERN / KAREN | PLATT, KAREN | | | $0.00 | 29028 | |
| 3 | 03/01/1984 | OTHER | Other - Misc. Documents | Unknown | PLATT, VERN/KAREN | | | $27,238.00 | 40693 | 0 |
Payout Agreement
| No payout information available.. |