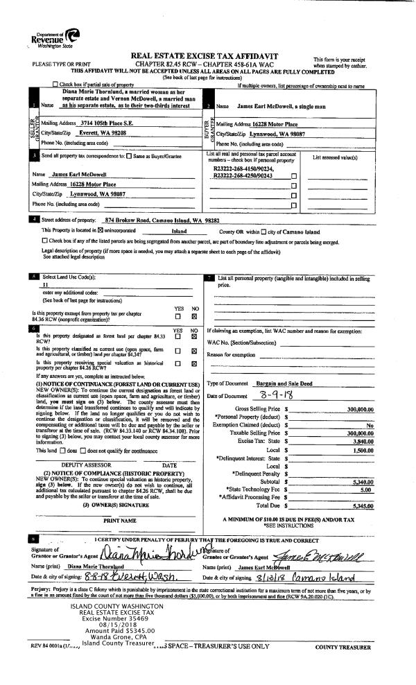
Property
Account |
| Property ID: | 666915 | Abbreviated Legal Description: | LOT 1 SP 31-89.23234.056-4480 V2 SP P340 AF#92002590 |
| Geographic ID: | R23234-042-4590 | Agent Code: | |
| Type: | Real | | |
| Tax Area: | 510 - APPRAISER-Stan/Cam Schl Dist, improved & 1 acre or less | Land Use Code | 11 |
| Open Space: | N | DFL | N |
| Historic Property: | N | Remodel Property: | N |
| Multi-Family Redevelopment: | N | | |
| Township: | 32 | Section: | 34 |
| Range: | R2 |
Location |
| Address: | 835 MADRONA BEACH RD CAMANO ISLAND, WA 98282 | Mapsco: | |
| Neighborhood: | North Camano | Map ID: | 573 |
| Neighborhood CD: | 06-C |
Owner |
| Name: | WILLIAMS, GARY | Owner ID: | 285739 |
| Mailing Address: | PAM WILLIAMS 835 MADRONA BEACH RD CAMANO ISLAND, WA 98282 | % Ownership: | 100.0000000000% |
| | | Exemptions: | |
Taxes and Assessment Details
Values
| (+) Improvement Homesite Value: | + | $0 | |
| (+) Improvement Non-Homesite Value: | + | $490,117 | |
| (+) Land Homesite Value: | + | $0 | |
| (+) Land Non-Homesite Value: | + | $330,000 | |
| (+) Curr Use (HS): | + | $0 | $0 |
| (+) Curr Use (NHS): | + | $0 | $0 |
| | | -------------------------- | |
| (=) Market Value: | = | $820,117 | |
| (–) Productivity Loss: | – | $0 | |
| | | -------------------------- | |
| (=) Subtotal: | = | $820,117 | |
| (+) Senior Appraised Value: | + | $0 | |
| (+) Non-Senior Appraised Value: | + | $820,117 | |
| | | -------------------------- | |
| (=) Total Appraised Value: | = | $820,117 | |
| (–) Senior Exemption Loss: | – | $0 | |
| (–) Exemption Loss: | – | $0 | |
| | | -------------------------- | |
| (=) Taxable Value: | = | $820,117 | |
Taxing Jurisdiction
| Owner: | WILLIAMS, GARY | | |
| % Ownership: | 100.0000000000% | | |
| Total Value: | $820,117 | | |
| Tax Area: | 510 - APPRAISER-Stan/Cam Schl Dist, improved & 1 acre or less |
| CF | Conservation Futures | 0.0316035091 | $820,117 | $820,117 | $25.92 | | |
| EMS1 | Fire & Rescue Dist #1 Camano GEN (EMS) | 0.3677864386 | $820,117 | $820,117 | $301.63 | | |
| FIRE1 | Fire & Rescue Dist #1 Camano GEN | 1.2502910536 | $820,117 | $820,117 | $1,025.38 | | |
| FIRE1BOND | Fire & Rescue Dist #1 Camano BOND | 0.1570001679 | $820,117 | $820,117 | $128.76 | | |
| CE | County Current Expense | 0.3708482477 | $820,117 | $820,117 | $304.14 | | |
| CR | County Roads | 0.4584763726 | $820,117 | $820,117 | $376.00 | | |
| LCIB | Library Sno-Isle BOND (Camano Island) | 0.0396325772 | $820,117 | $820,117 | $32.50 | | |
| LIB | Library Sno-Isle GEN | 0.3153421757 | $820,117 | $820,117 | $258.62 | | |
| SCH205_401 | School 205-401 Enrichment | 1.2698420524 | $820,117 | $820,117 | $1,041.42 | | |
| SCH205BOND | School 205-401 BOND | 0.9396497583 | $820,117 | $820,117 | $770.62 | | |
| ST | State School | 1.3035497053 | $820,117 | $820,117 | $1,069.06 | | |
| ST2 | State School Part 2 | 0.8169543533 | $820,117 | $820,117 | $670.00 | | |
| | Total Tax Rate: | 7.3209764117 | | | | | |
| | | | | Taxes w/Current Exemptions: | $6,004.05 | | |
| | | | | Taxes w/o Exemptions: | $6,004.05 | | |
Improvement / Building
| Improvement #1: | RESIDENTIAL | State Code: | Y | 3150.4 sqft | Value: | $490,117 |
| Bathrooms: | 2.75 | Bedrooms: | 3 | | Ceiling: | DRYWALL PAINTED | Cooling: | HEAT PUMP/CONV/V | | Exterior Wall/Cover: | PLY/HARDBOARD T-111 | Floor Covering: | HARDWOOD 100% | | Floor Structure: | WOOD W/SUBFLOOR | Foundation: | SLAB/CONCRETE | | Interior Finish: | DRYWALL PAINT | Plumbing Fixture Cnt: | 15 | | Roof Slope: | 5" IN 12" | Roof Structure/Cover: | CJ ASPHALT |
|
| | Type | Description | Class CD | Sub Class CD | Year Built | Area |
| | BAS | BASE/MAIN FLOOR | 3 | 0 | 1995 | 1610.1 |
| | DWN | DOWNSTAIRS LIVING AREA | 3 | 0 | 1995 | 1540.3 |
| | OP4 | OPEN PORCH W/CEILING-ROOF | 3 | 0 | 1995 | 19.2 |
| | DGR | DETACHED GARAGE | 3 | 0 | 1995 | 980.0 |
| | AGR | ATTACHED GARAGE | 3 | 0 | 1995 | 817.6 |
| | ENP | ENCLOSED PORCH | 3 | 0 | 1995 | 429.2 |
Sketch
Property Image
Land
| 1 | 15 | SQ (12001-21780) | 0.0000 | 0.00 | 0.00 | 0.00 | 1.00 | $330,000 | $0 |
Roll Value History
| 2026 | N/A | N/A | N/A | N/A | N/A |
| 2025 | $490,117 | $330,000 | $0 | $820,117 | $820,117 |
| 2024 | $496,301 | $320,000 | $0 | $816,301 | $816,301 |
| 2023 | $502,485 | $300,000 | $0 | $802,485 | $802,485 |
| 2022 | $452,010 | $260,000 | $0 | $712,010 | $712,010 |
| 2021 | $397,969 | $200,000 | $0 | $597,969 | $597,969 |
| 2020 | $388,492 | $160,000 | $0 | $548,492 | $548,492 |
| 2019 | $312,542 | $190,000 | $0 | $502,542 | $502,542 |
| 2018 | $257,549 | $150,000 | $0 | $407,549 | $407,549 |
| 2017 | $259,234 | $150,000 | $0 | $409,234 | $409,234 |
| 2016 | $269,606 | $90,000 | $0 | $359,606 | $359,606 |
| 2015 | $273,063 | $66,400 | $0 | $339,463 | $339,463 |
| 2014 | $276,521 | $66,400 | $0 | $342,921 | $342,921 |
| 2013 | $279,978 | $66,400 | $0 | $346,378 | $346,378 |
| 2012 | $283,434 | $66,400 | $0 | $349,834 | $349,834 |
| 2011 | $286,886 | $83,000 | $0 | $369,886 | $369,886 |
| 2010 | $291,226 | $83,000 | $0 | $374,226 | $374,226 |
| 2009 | $304,302 | $114,000 | $0 | $418,302 | $418,302 |
| 2008 | $312,060 | $115,000 | $0 | $427,060 | $427,060 |
| 2007 | $316,196 | $115,000 | $0 | $431,196 | $431,196 |
Deed and Sales History
| 1 | 06/22/2018 | WD | Warranty Deed | LARSON, CLAYTON L / MARIANNE | WILLIAMS, GARY | | | $485,000.00 | 34710 | 4446922 |
| 2 | 06/01/1994 | WD | Warranty Deed | LARSON, VIRGIL A | LARSON, CLAYTON L | | | $60,000.00 | 42454 | 94013700 |
| 3 | 07/01/1992 | WD | Warranty Deed | HOPKINS, FORREST | LARSON, VIRGIL A | | | $45,000.00 | 22892 | 92014089 |
| 4 | 01/01/1900 | OTHER | Other - Misc. Documents | Unknown | HOPKINS, FORREST | | | $0.00 | 91638 | 89005672 |
Payout Agreement
| No payout information available.. |