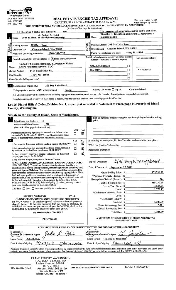
Property
Account |
| Property ID: | 667228 | Abbreviated Legal Description: | CASCADE PLACE CONDO ROOM 22 7.32% INT |
| Geographic ID: | S6327-00-00022-0 | Agent Code: | |
| Type: | Real | | |
| Tax Area: | 100 - APPRAISER-OH Schl Dist, in OH | Land Use Code | 50 |
| Open Space: | N | DFL | N |
| Historic Property: | N | Remodel Property: | N |
| Multi-Family Redevelopment: | N | | |
| Township: | | Section: | |
| Range: | |
Location |
| Address: | 520 E WHIDBEY AVE RM 22 OAK HARBOR, WA 98277 | Mapsco: | |
| Neighborhood: | 6BcOH-highway 20 | Map ID: | 256 |
| Neighborhood CD: | 6BcOHhwy20 |
Owner |
| Name: | LAM HOLDINGS II, LLC | Owner ID: | 284924 |
| Mailing Address: | 2403 NW 201ST LN SHORELINE, WA 98177 | % Ownership: | 100.0000000000% |
| | | Exemptions: | |
Taxes and Assessment Details
Values
| (+) Improvement Homesite Value: | + | $0 | |
| (+) Improvement Non-Homesite Value: | + | $134,369 | |
| (+) Land Homesite Value: | + | $0 | |
| (+) Land Non-Homesite Value: | + | $37,444 | |
| (+) Curr Use (HS): | + | $0 | $0 |
| (+) Curr Use (NHS): | + | $0 | $0 |
| | | -------------------------- | |
| (=) Market Value: | = | $171,813 | |
| (–) Productivity Loss: | – | $0 | |
| | | -------------------------- | |
| (=) Subtotal: | = | $171,813 | |
| (+) Senior Appraised Value: | + | $0 | |
| (+) Non-Senior Appraised Value: | + | $171,813 | |
| | | -------------------------- | |
| (=) Total Appraised Value: | = | $171,813 | |
| (–) Senior Exemption Loss: | – | $0 | |
| (–) Exemption Loss: | – | $0 | |
| | | -------------------------- | |
| (=) Taxable Value: | = | $171,813 | |
Taxing Jurisdiction
| Owner: | LAM HOLDINGS II, LLC | | |
| % Ownership: | 100.0000000000% | | |
| Total Value: | $171,813 | | |
| Tax Area: | 100 - APPRAISER-OH Schl Dist, in OH |
| CF | Conservation Futures | 0.0316035091 | $171,813 | $171,813 | $5.43 | | |
| CEM1 | Cemetery #1 | 0.0040320932 | $171,813 | $171,813 | $0.69 | | |
| COH | City of Oak Harbor | 2.3001546061 | $171,813 | $171,813 | $395.20 | | |
| OAKBOND | City of Oak Harbor BOND | 0.1926904192 | $171,813 | $171,813 | $33.11 | | |
| HOBOND | Hospital BOND | 0.1910887512 | $171,813 | $171,813 | $32.83 | | |
| HOGEN | Hospital GEN | 0.3902502903 | $171,813 | $171,813 | $67.05 | | |
| CE | County Current Expense | 0.3708482477 | $171,813 | $171,813 | $63.72 | | |
| ISLANDEMS | Hospital GEN (EMS) | 0.5000000000 | $171,813 | $171,813 | $85.91 | | |
| LIB | Library Sno-Isle GEN | 0.3153421757 | $171,813 | $171,813 | $54.18 | | |
| NWHIDPRMT | P & R N Whidbey GEN | 0.2004466701 | $171,813 | $171,813 | $34.44 | | |
| SCH201MO | School 201 Enrichment | 1.8559231640 | $171,813 | $171,813 | $318.87 | | |
| ST | State School | 1.3035497053 | $171,813 | $171,813 | $223.97 | | |
| ST2 | State School Part 2 | 0.8169543533 | $171,813 | $171,813 | $140.36 | | |
| | Total Tax Rate: | 8.4728839852 | | | | | |
| | | | | Taxes w/Current Exemptions: | $1,455.76 | | |
| | | | | Taxes w/o Exemptions: | $1,455.76 | | |
Improvement / Building
| Improvement #1: | COMMERCIAL | State Code: | F1 | 993.9 sqft | Value: | $134,369 |
| Bathrooms: | 0 | Bedrooms: | 0 | | Ceiling: | DRYWALL PAINTED | Exterior Wall/Cover: | WD/WD OR STEEL STUDS | | Floor Covering: | CARPET 100% | Floor Structure: | WOOD ON WOOD JOIST | | Foundation: | CONCRETE | Heating: | HEAT PUMP | | Interior Finish: | OFFICE | Plumbing Fixture Cnt: | 1 | | Roof Structure/Cover: | COMP OPEN WOOD |   |   |
|
| | Type | Description | Class CD | Sub Class CD | Year Built | Area |
| | BAS | BASE/MAIN FLOOR | 3 | 0 | 1984 | 993.9 |
| | oSIT | Site Improvements | 3 | 0 | 1984 | 0.0 |
Sketch
Property Image
Land
| 1 | 64 | PERSONAL BUSINESS | 0.0781 | 3404.00 | 0.00 | 0.00 | 1.00 | $37,444 | $0 |
Roll Value History
| 2026 | N/A | N/A | N/A | N/A | N/A |
| 2025 | $134,369 | $37,444 | $0 | $171,813 | $171,813 |
| 2024 | $140,499 | $37,444 | $0 | $177,943 | $177,943 |
| 2023 | $220,881 | $44,473 | $0 | $265,354 | $265,354 |
| 2022 | $195,317 | $44,473 | $0 | $239,790 | $239,790 |
| 2021 | $175,639 | $44,473 | $0 | $220,112 | $220,112 |
| 2020 | $173,406 | $44,473 | $0 | $217,879 | $217,879 |
| 2019 | $144,259 | $72,774 | $0 | $217,033 | $217,033 |
| 2018 | $144,666 | $60,645 | $0 | $205,311 | $205,311 |
| 2017 | $145,481 | $120,077 | $0 | $265,558 | $265,558 |
| 2016 | $82,270 | $120,077 | $0 | $202,347 | $202,347 |
| 2015 | $82,270 | $120,077 | $0 | $202,347 | $202,347 |
| 2014 | $82,270 | $120,077 | $0 | $202,347 | $202,347 |
| 2013 | $82,270 | $120,077 | $0 | $202,347 | $202,347 |
| 2012 | $82,270 | $120,077 | $0 | $202,347 | $202,347 |
| 2011 | $82,270 | $120,077 | $0 | $202,347 | $202,347 |
| 2010 | $102,314 | $120,077 | $0 | $222,391 | $222,391 |
| 2009 | $103,856 | $143,971 | $0 | $247,827 | $247,827 |
| 2008 | $103,856 | $143,971 | $0 | $247,827 | $247,827 |
| 2007 | $110,028 | $143,971 | $0 | $253,999 | $253,999 |
Deed and Sales History
| 1 | 07/19/2018 | WD | Warranty Deed | DIEM, CHARLES R | LAM HOLDINGS II, LLC | | | $375,000.00 | 35092 | 4448396 |
|   | |
| 2 | 11/14/2012 | ESTSEPPROP | Establish Separate Property | DIEM, CHARLES R | DIEM, CHARLES R | | | $0.00 | 9506 | 4327392 |
| 3 | 01/01/1900 | OTHER | Other - Misc. Documents | Unknown | DIEM, CHARLES R | | | $0.00 | 84088 | 88015310 |
Payout Agreement
| No payout information available.. |