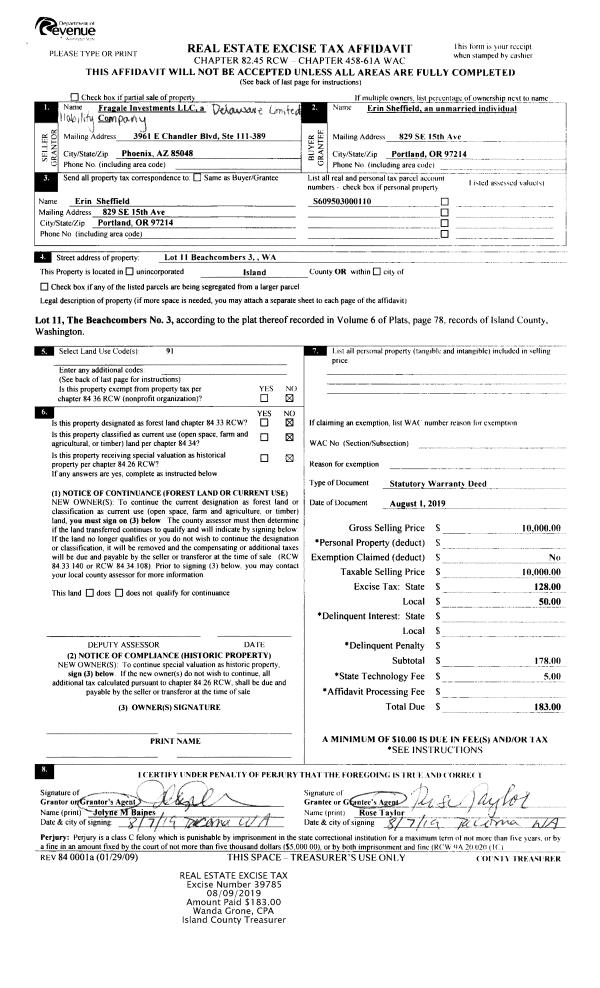
Property
Account |
| Property ID: | 667460 | Abbreviated Legal Description: | IN SW NW: S248' OF PT N/2 SW NW LY WLY OF SR 525 EX W330' TGW & SUB EZ FR 340-0700 EX PT TO ST OF WASH AF#96010469 |
| Geographic ID: | R23021-338-0700 | Agent Code: | |
| Type: | Real | | |
| Tax Area: | 312 - APPRAISER-Cpvl Schl Dist, outside Cpvl, improved, greater than 1 acre | Land Use Code | 11 |
| Open Space: | N | DFL | N |
| Historic Property: | N | Remodel Property: | N |
| Multi-Family Redevelopment: | N | | |
| Township: | 30 | Section: | 21 |
| Range: | R2 |
Location |
| Address: | 845 CLOVER RIDGE DR GREENBANK, WA 98253 | Mapsco: | |
| Neighborhood: | Cycle 3 | Map ID: | 402 |
| Neighborhood CD: | 3 |
Owner |
| Name: | STIGEN, CHRISTOPHER K | Owner ID: | 296904 |
| Mailing Address: | MARYANN STIGEN 845 CLOVER RIDGE DR GREENBANK, WA 98253 | % Ownership: | 100.0000000000% |
| | | Exemptions: | |
Taxes and Assessment Details
Values
| (+) Improvement Homesite Value: | + | $0 | |
| (+) Improvement Non-Homesite Value: | + | $348,307 | |
| (+) Land Homesite Value: | + | $0 | |
| (+) Land Non-Homesite Value: | + | $350,000 | |
| (+) Curr Use (HS): | + | $0 | $0 |
| (+) Curr Use (NHS): | + | $0 | $0 |
| | | -------------------------- | |
| (=) Market Value: | = | $698,307 | |
| (–) Productivity Loss: | – | $0 | |
| | | -------------------------- | |
| (=) Subtotal: | = | $698,307 | |
| (+) Senior Appraised Value: | + | $0 | |
| (+) Non-Senior Appraised Value: | + | $698,307 | |
| | | -------------------------- | |
| (=) Total Appraised Value: | = | $698,307 | |
| (–) Senior Exemption Loss: | – | $0 | |
| (–) Exemption Loss: | – | $0 | |
| | | -------------------------- | |
| (=) Taxable Value: | = | $698,307 | |
Taxing Jurisdiction
| Owner: | STIGEN, CHRISTOPHER K | | |
| % Ownership: | 100.0000000000% | | |
| Total Value: | $698,307 | | |
| Tax Area: | 312 - APPRAISER-Cpvl Schl Dist, outside Cpvl, improved, greater than 1 acre |
| CF | Conservation Futures | 0.0316035091 | $698,307 | $698,307 | $22.07 | | |
| CEM2 | Cemetery #2 | 0.0095056933 | $698,307 | $698,307 | $6.64 | | |
| FIRE5 | Fire & Rescue Dist #5 C Whidbey GEN | 1.2008080668 | $698,307 | $698,307 | $838.53 | | |
| FIRE5BOND | Fire & Rescue Dist #5 C Whidbey BOND | 0.1400090713 | $698,307 | $698,307 | $97.77 | | |
| HOBOND | Hospital BOND | 0.1910887512 | $698,307 | $698,307 | $133.44 | | |
| HOGEN | Hospital GEN | 0.3902502903 | $698,307 | $698,307 | $272.51 | | |
| CE | County Current Expense | 0.3708482477 | $698,307 | $698,307 | $258.97 | | |
| CR | County Roads | 0.4584763726 | $698,307 | $698,307 | $320.16 | | |
| ISLANDEMS | Hospital GEN (EMS) | 0.5000000000 | $698,307 | $698,307 | $349.15 | | |
| LIB | Library Sno-Isle GEN | 0.3153421757 | $698,307 | $698,307 | $220.21 | | |
| LIBCAP | Library Sno-Isle BOND (Cap Fac Imp Area) | 0.0543427938 | $698,307 | $698,307 | $37.95 | | |
| POCOUP | Port of Coupeville GEN | 0.1093371703 | $698,307 | $698,307 | $76.35 | | |
| POCOUPIDD | Port of Coupeville IDD | 0.3409740022 | $698,307 | $698,307 | $238.10 | | |
| COUPSDTECH | School 204 CP (TECH) | 0.7545480007 | $698,307 | $698,307 | $526.91 | | |
| SCH204MO | School 204 Enrichment | 0.6716186034 | $698,307 | $698,307 | $469.00 | | |
| ST | State School | 1.3035497053 | $698,307 | $698,307 | $910.28 | | |
| ST2 | State School Part 2 | 0.8169543533 | $698,307 | $698,307 | $570.48 | | |
| | Total Tax Rate: | 7.6592568070 | | | | | |
| | | | | Taxes w/Current Exemptions: | $5,348.52 | | |
| | | | | Taxes w/o Exemptions: | $5,348.52 | | |
Improvement / Building
| Improvement #1: | RESIDENTIAL | State Code: | Y | 1233.6 sqft | Value: | $348,307 |
| Bathrooms: | 2 | Bedrooms: | 3 | | Ceiling: | DRYWALL PAINTED | Exterior Wall/Cover: | PLY/HARDBOARD T-111 | | Floor Covering: | HARDWOOD/CARP 60-40 | Floor Structure: | WOOD W/SUBFLOOR | | Foundation: | CONCRETE | Heating: | FHA ELECTRIC | | Interior Finish: | DRYWALL PAINT | Plumbing Fixture Cnt: | 14 | | Roof Slope: | 3" IN 12" | Roof Structure/Cover: | CJ ASPHALT |
|
| | Type | Description | Class CD | Sub Class CD | Year Built | Area |
| | BAS | BASE/MAIN FLOOR | 3 | 0 | 1993 | 1233.6 |
| | AGR | ATTACHED GARAGE | 3 | 0 | 1993 | 537.6 |
| | OWP | OPEN WOOD PORCH W/STEPS | 3 | 0 | 1993 | 36.0 |
| | OWP | OPEN WOOD PORCH W/STEPS | 3 | 0 | 1993 | 424.0 |
| | ENP | ENCLOSED PORCH | 3 | 0 | 1993 | 140.0 |
| | ATF | ATTIC FINISHED | 3 | 0 | 1993 | 360.0 |
| | DGR | DETACHED GARAGE | 3 | 0 | 1993 | 1080.0 |
| | CPD | OPEN CARPORT DIRT FLOOR | 3 | 0 | 1993 | 720.0 |
Sketch
Property Image
Land
| 1 | 32 | AC (03.01-09.99) | 3.8600 | 168141.60 | 0.00 | 0.00 | 1.00 | $350,000 | $0 |
Roll Value History
| 2026 | N/A | N/A | N/A | N/A | N/A |
| 2025 | $348,307 | $350,000 | $0 | $698,307 | $698,307 |
| 2024 | $352,592 | $340,000 | $0 | $692,592 | $692,592 |
| 2023 | $356,878 | $320,000 | $0 | $676,878 | $676,878 |
| 2022 | $327,039 | $260,000 | $0 | $587,039 | $587,039 |
| 2021 | $287,762 | $230,000 | $0 | $517,762 | $517,762 |
| 2020 | $232,809 | $180,000 | $0 | $412,809 | $412,809 |
| 2019 | $182,416 | $220,000 | $0 | $402,416 | $402,416 |
| 2018 | $182,849 | $170,000 | $0 | $352,849 | $352,849 |
| 2017 | $183,664 | $160,000 | $0 | $343,664 | $343,664 |
| 2016 | $148,801 | $120,000 | $0 | $268,801 | $268,801 |
| 2015 | $150,332 | $130,000 | $0 | $280,332 | $280,332 |
| 2014 | $151,865 | $95,000 | $0 | $246,865 | $246,865 |
| 2013 | $152,174 | $100,000 | $0 | $252,174 | $252,174 |
| 2012 | $153,753 | $103,700 | $0 | $257,453 | $257,453 |
| 2011 | $155,332 | $122,000 | $0 | $277,332 | $277,332 |
| 2010 | $161,145 | $122,000 | $0 | $283,145 | $283,145 |
| 2009 | $167,551 | $150,540 | $0 | $318,091 | $318,091 |
| 2008 | $170,379 | $130,275 | $0 | $300,654 | $300,654 |
| 2007 | $168,834 | $119,660 | $0 | $288,494 | $288,494 |
Deed and Sales History
| 1 | 10/08/2020 | WD | Warranty Deed | FOX, JOYCE | STIGEN, CHRISTOPHER K | | | $519,000.00 | 45192 | 4499168 |
| 2 | 07/29/2019 | WD | Warranty Deed | WARDE, HEIDI C | FOX, JOYCE | | | $415,000.00 | 39786 | 4469008 |
| 3 | 05/16/2016 | WD | Warranty Deed | LUICK, ANNE E | WARDE, HEIDI C | | | $335,000.00 | 24381 | 4399605 |
| 4 | 05/01/1996 | WD | Warranty Deed | LUICK, ANNE E | LUICK, ANNE E | | | $5,000.00 | 62114 | 96010469 |
| 5 | 02/01/1994 | WD | Warranty Deed | MEGORDEN, HERBERT T | LUICK, ANNE E | | | $132,500.00 | 40574 | 94003696 |
| 6 | 03/01/1992 | OTHER | Other - Misc. Documents | MEGORDEN, HERBERT T | MEGORDEN, HERBERT T | | | $0.00 | 64736 | 92003800 |
| 7 | 01/01/1900 | OTHER | Other - Misc. Documents | Unknown | MEGORDEN, HERBERT T | | | $0.00 | 64144 | 91005064 |
Payout Agreement
| No payout information available.. |