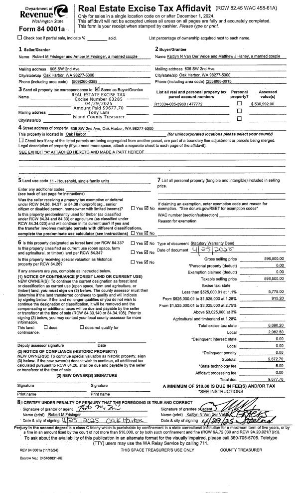
Property
Account |
| Property ID: | 667610 | Abbreviated Legal Description: | 1992 SKYLINE OAKMANOR 27X48 VIN# 06910564EAB TPO %036800 |
| Geographic ID: | M9170000000C-1 | Agent Code: | |
| Type: | Mobile Home | | |
| Tax Area: | 110 - APPRAISER-OH Schl Dist, outside OH, improved & 1 acre or less | Land Use Code | 11 |
| Open Space: | N | DFL | N |
| Historic Property: | N | Remodel Property: | N |
| Multi-Family Redevelopment: | N | | |
| Township: | | Section: | |
| Range: | |
Location |
| Address: | 2920 HELLER RD UNIT C OAK HARBOR, WA 98277 | Mapsco: | |
| Neighborhood: | Cycle 6 | Map ID: | |
| Neighborhood CD: | 6 |
Owner |
| Name: | NICHOLS, MACKENZIE LAVONNE | Owner ID: | 314860 |
| Mailing Address: | 2920 HELLER RD TRLR C OAK HARBOR, WA 98277 | % Ownership: | 100.0000000000% |
| | | Exemptions: | |
Taxes and Assessment Details
Values
| (+) Improvement Homesite Value: | + | $0 | |
| (+) Improvement Non-Homesite Value: | + | $91,877 | |
| (+) Land Homesite Value: | + | $0 | |
| (+) Land Non-Homesite Value: | + | $0 | |
| (+) Curr Use (HS): | + | $0 | $0 |
| (+) Curr Use (NHS): | + | $0 | $0 |
| | | -------------------------- | |
| (=) Market Value: | = | $91,877 | |
| (–) Productivity Loss: | – | $0 | |
| | | -------------------------- | |
| (=) Subtotal: | = | $91,877 | |
| (+) Senior Appraised Value: | + | $0 | |
| (+) Non-Senior Appraised Value: | + | $91,877 | |
| | | -------------------------- | |
| (=) Total Appraised Value: | = | $91,877 | |
| (–) Senior Exemption Loss: | – | $0 | |
| (–) Exemption Loss: | – | $0 | |
| | | -------------------------- | |
| (=) Taxable Value: | = | $91,877 | |
Taxing Jurisdiction
| Owner: | NICHOLS, MACKENZIE LAVONNE | | |
| % Ownership: | 100.0000000000% | | |
| Total Value: | $91,877 | | |
| Tax Area: | 110 - APPRAISER-OH Schl Dist, outside OH, improved & 1 acre or less |
| CF | Conservation Futures | 0.0316035091 | $91,877 | $91,877 | $2.90 | | |
| CEM1 | Cemetery #1 | 0.0040320932 | $91,877 | $91,877 | $0.37 | | |
| FIRE2 | Fire & Rescue Dist #2 N Whidbey GEN | 0.5475949600 | $91,877 | $91,877 | $50.31 | | |
| HOBOND | Hospital BOND | 0.1910887512 | $91,877 | $91,877 | $17.56 | | |
| HOGEN | Hospital GEN | 0.3902502903 | $91,877 | $91,877 | $35.86 | | |
| CE | County Current Expense | 0.3708482477 | $91,877 | $91,877 | $34.07 | | |
| CR | County Roads | 0.4584763726 | $91,877 | $91,877 | $42.12 | | |
| ISLANDEMS | Hospital GEN (EMS) | 0.5000000000 | $91,877 | $91,877 | $45.94 | | |
| LIB | Library Sno-Isle GEN | 0.3153421757 | $91,877 | $91,877 | $28.97 | | |
| NWHIDPRMT | P & R N Whidbey GEN | 0.2004466701 | $91,877 | $91,877 | $18.42 | | |
| SCH201MO | School 201 Enrichment | 1.8559231640 | $91,877 | $91,877 | $170.52 | | |
| ST | State School | 1.3035497053 | $91,877 | $91,877 | $119.77 | | |
| ST2 | State School Part 2 | 0.8169543533 | $91,877 | $91,877 | $75.06 | | |
| | Total Tax Rate: | 6.9861102925 | | | | | |
| | | | | Taxes w/Current Exemptions: | $641.87 | | |
| | | | | Taxes w/o Exemptions: | $641.87 | | |
Improvement / Building
| Improvement #1: | MANUFACTURED HOME | State Code: | Y | 1296.0 sqft | Value: | $91,877 |
| Bathrooms: | 0 | Bedrooms: | 0 | | Ceiling: | PLASTER PAINTED | Cooling: | EVAP NO DUCT | | Exterior Wall/Cover: | VINYL | Floor Covering: | CARPET 100% | | Floor Structure: | SLAB ON GRADE | Foundation: | SLAB | | Heating: | FHA ELECTRIC | Interior Finish: | PLASTER | | Plumbing Fixture Cnt: | 1 | Roof Slope: | FLAT | | Roof Structure/Cover: | CJ ALUMINIUM HEAVY |   |   |
|
Sketch
Property Image
Land
No land segments exist for this property.
Roll Value History
| 2026 | N/A | N/A | N/A | N/A | N/A |
| 2025 | $91,877 | $0 | $0 | $91,877 | $91,877 |
| 2024 | $66,324 | $0 | $0 | $66,324 | $66,324 |
| 2023 | $59,420 | $0 | $0 | $59,420 | $59,420 |
| 2022 | $49,060 | $0 | $0 | $49,060 | $49,060 |
| 2021 | $44,034 | $0 | $0 | $44,034 | $44,034 |
| 2020 | $44,089 | $0 | $0 | $44,089 | $44,089 |
| 2019 | $35,780 | $0 | $0 | $35,780 | $35,780 |
| 2018 | $36,832 | $0 | $0 | $36,832 | $36,832 |
| 2017 | $37,885 | $0 | $0 | $37,885 | $37,885 |
| 2016 | $24,467 | $0 | $0 | $24,467 | $24,467 |
| 2015 | $25,256 | $0 | $0 | $25,256 | $25,256 |
| 2014 | $26,046 | $0 | $0 | $26,046 | $26,046 |
| 2013 | $26,835 | $0 | $0 | $26,835 | $26,835 |
| 2012 | $27,624 | $0 | $0 | $27,624 | $27,624 |
| 2011 | $28,414 | $0 | $0 | $28,414 | $28,414 |
| 2010 | $31,381 | $0 | $0 | $31,381 | $31,381 |
| 2009 | $33,384 | $0 | $0 | $33,384 | $33,384 |
| 2008 | $34,456 | $0 | $0 | $34,456 | $34,456 |
| 2007 | $35,061 | $0 | $0 | $35,061 | $35,061 |
Deed and Sales History
| 1 | 12/03/2024 | MANHOME | Manufactured Home | MELISSA BECKMAN, PR | NICHOLS, MACKENZIE LAVONNE | | | $107,000.00 | 62087 | |
| 2 | 12/10/2024 | LACPROBATE | Lack of Probate | KENNEDY, LANA C | MELISSA BECKMAN, PR | | | $0.00 | 62085 | |
| 3 | 10/22/2001 | OTHER | Other - Misc. Documents | BURNS, JAMES D | KENNEDY, LANA C | | | $0.00 | 14393 | 0 |
| 4 | 12/01/1991 | OTHER | Other - Misc. Documents | Unknown | BURNS, JAMES D | | | $39,967.00 | 11111111 | 0 |
Payout Agreement
| No payout information available.. |