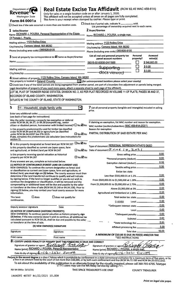
Property
Account |
| Property ID: | 667852 | Abbreviated Legal Description: | LOT 2 SP 31-91.33230.467.0980 V2 SP P342 AF#92003892 |
| Geographic ID: | R33230-501-0850 | Agent Code: | |
| Type: | Real | | |
| Tax Area: | 592 - APPRAISER-Stan/Cam Schl Dist, Special Dist, improved, greater than 1 acre | Land Use Code | 11 |
| Open Space: | N | DFL | N |
| Historic Property: | N | Remodel Property: | N |
| Multi-Family Redevelopment: | N | | |
| Township: | 32 | Section: | 30 |
| Range: | R3 |
Location |
| Address: | 785 ELDERBERRY LN CAMANO ISLAND, WA 98282 | Mapsco: | |
| Neighborhood: | North Camano | Map ID: | 990 |
| Neighborhood CD: | 06-C |
Owner |
| Name: | STAFF, CAROL L | Owner ID: | 297771 |
| Mailing Address: | DAVID A STAFF 785 ELDERBERRY LN CAMANO ISLAND, WA 98282 | % Ownership: | 100.0000000000% |
| | | Exemptions: | |
Taxes and Assessment Details
Values
| (+) Improvement Homesite Value: | + | $0 | |
| (+) Improvement Non-Homesite Value: | + | $668,721 | |
| (+) Land Homesite Value: | + | $0 | |
| (+) Land Non-Homesite Value: | + | $330,000 | |
| (+) Curr Use (HS): | + | $0 | $0 |
| (+) Curr Use (NHS): | + | $0 | $0 |
| | | -------------------------- | |
| (=) Market Value: | = | $998,721 | |
| (–) Productivity Loss: | – | $0 | |
| | | -------------------------- | |
| (=) Subtotal: | = | $998,721 | |
| (+) Senior Appraised Value: | + | $0 | |
| (+) Non-Senior Appraised Value: | + | $998,721 | |
| | | -------------------------- | |
| (=) Total Appraised Value: | = | $998,721 | |
| (–) Senior Exemption Loss: | – | $0 | |
| (–) Exemption Loss: | – | $0 | |
| | | -------------------------- | |
| (=) Taxable Value: | = | $998,721 | |
Taxing Jurisdiction
| Owner: | STAFF, CAROL L | | |
| % Ownership: | 100.0000000000% | | |
| Total Value: | $998,721 | | |
| Tax Area: | 592 - APPRAISER-Stan/Cam Schl Dist, Special Dist, improved, greater than 1 acre |
| CF | Conservation Futures | 0.0316035091 | $998,721 | $998,721 | $31.56 | | |
| EMS1 | Fire & Rescue Dist #1 Camano GEN (EMS) | 0.3677864386 | $998,721 | $998,721 | $367.32 | | |
| FIRE1 | Fire & Rescue Dist #1 Camano GEN | 1.2502910536 | $998,721 | $998,721 | $1,248.69 | | |
| FIRE1BOND | Fire & Rescue Dist #1 Camano BOND | 0.1570001679 | $998,721 | $998,721 | $156.80 | | |
| CE | County Current Expense | 0.3708482477 | $998,721 | $998,721 | $370.37 | | |
| CR | County Roads | 0.4584763726 | $998,721 | $998,721 | $457.89 | | |
| LCIB | Library Sno-Isle BOND (Camano Island) | 0.0396325772 | $998,721 | $998,721 | $39.58 | | |
| LIB | Library Sno-Isle GEN | 0.3153421757 | $998,721 | $998,721 | $314.94 | | |
| SCH205_401 | School 205-401 Enrichment | 1.2698420524 | $998,721 | $998,721 | $1,268.22 | | |
| SCH205BOND | School 205-401 BOND | 0.9396497583 | $998,721 | $998,721 | $938.45 | | |
| ST | State School | 1.3035497053 | $998,721 | $998,721 | $1,301.88 | | |
| ST2 | State School Part 2 | 0.8169543533 | $998,721 | $998,721 | $815.91 | | |
| | Total Tax Rate: | 7.3209764117 | | | | | |
| | | | | Taxes w/Current Exemptions: | $7,311.61 | | |
| | | | | Taxes w/o Exemptions: | $7,311.61 | | |
Improvement / Building
| Improvement #1: | RESIDENTIAL | State Code: | Y | 2788.8 sqft | Value: | $668,721 |
| Bathrooms: | 2.5 | Bedrooms: | 3 | | Ceiling: | DRYWALL PAINTED | Cooling: | HEAT PUMP/CONV/V | | Exterior Wall/Cover: | WOOD SIDING | Floor Covering: | HARDWOOD/CARP 80-20 | | Floor Structure: | WOOD W/SUBFLOOR | Foundation: | CONCRETE | | Interior Finish: | DRYWALL PAINT | Plumbing Fixture Cnt: | 14 | | Roof Slope: | 6" IN 12" | Roof Structure/Cover: | CJ ASPHALT |
|
| | Type | Description | Class CD | Sub Class CD | Year Built | Area |
| | BAS | BASE/MAIN FLOOR | 4 | 0 | 2000 | 2788.8 |
| | OP4 | OPEN PORCH W/CEILING-ROOF | 4 | 0 | 2000 | 84.0 |
| | OP4 | OPEN PORCH W/CEILING-ROOF | 4 | 0 | 2000 | 150.0 |
| | AGR | ATTACHED GARAGE | 4 | 0 | 2000 | 1299.7 |
| | OWC | OPEN WOOD PORCH W/STEPS/ROOF/C | 4 | 0 | 2000 | 247.0 |
| | oPOL | POLE BARN | 4 | 0 | 2000 | 150.0 |
Sketch
Property Image
Land
| 1 | 32 | AC (03.01-09.99) | 4.6800 | 0.00 | 0.00 | 0.00 | 1.00 | $330,000 | $0 |
Roll Value History
| 2026 | N/A | N/A | N/A | N/A | N/A |
| 2025 | $668,721 | $330,000 | $0 | $998,721 | $998,721 |
| 2024 | $674,209 | $340,000 | $0 | $1,014,209 | $1,014,209 |
| 2023 | $680,064 | $320,000 | $0 | $1,000,064 | $1,000,064 |
| 2022 | $586,297 | $300,000 | $0 | $886,297 | $886,297 |
| 2021 | $500,534 | $190,000 | $0 | $690,534 | $690,534 |
| 2020 | $462,320 | $190,000 | $0 | $652,320 | $652,320 |
| 2019 | $356,286 | $220,000 | $0 | $576,286 | $576,286 |
| 2018 | $357,308 | $190,000 | $0 | $547,308 | $547,308 |
| 2017 | $358,824 | $170,000 | $0 | $528,824 | $528,824 |
| 2016 | $360,071 | $135,000 | $0 | $495,071 | $495,071 |
| 2015 | $364,162 | $117,000 | $0 | $481,162 | $481,162 |
| 2014 | $368,254 | $117,000 | $0 | $485,254 | $485,254 |
| 2013 | $372,345 | $104,832 | $0 | $477,177 | $477,177 |
| 2012 | $376,437 | $104,832 | $0 | $481,269 | $481,269 |
| 2011 | $380,529 | $131,040 | $0 | $511,569 | $511,569 |
| 2010 | $410,104 | $131,040 | $0 | $541,144 | $541,144 |
| 2009 | $423,112 | $149,760 | $0 | $572,872 | $572,872 |
| 2008 | $428,120 | $173,160 | $0 | $601,280 | $601,280 |
| 2007 | $437,569 | $173,160 | $0 | $610,729 | $610,729 |
Deed and Sales History
| 1 | 01/11/2021 | WD | Warranty Deed | HARIRI, MARTY | STAFF, CAROL L | | | $799,500.00 | 46609 | 4508439 |
| 2 | 07/09/2004 | WD | Warranty Deed | WASHO, JOHN | HARIRI, MARTY | | | $495,000.00 | 43242 | 41047227 |
| 3 | 02/25/2000 | WD | Warranty Deed | CUMMINGS, CURTIS L & LAURA | WASHO, JOHN | | | $90,000.00 | 711 | 20003669 |
| 4 | 01/01/1900 | OTHER | Other - Misc. Documents | Unknown | CUMMINGS, CURTIS L | | | $0.00 | 11371 | 91005878 |
| 5 | 01/01/1900 | OTHER | Other - Misc. Documents | CUMMINGS, CURTIS L | CUMMINGS, CURTIS L & LAURA | | | $0.00 | 0 | 0 |
Payout Agreement
| No payout information available.. |