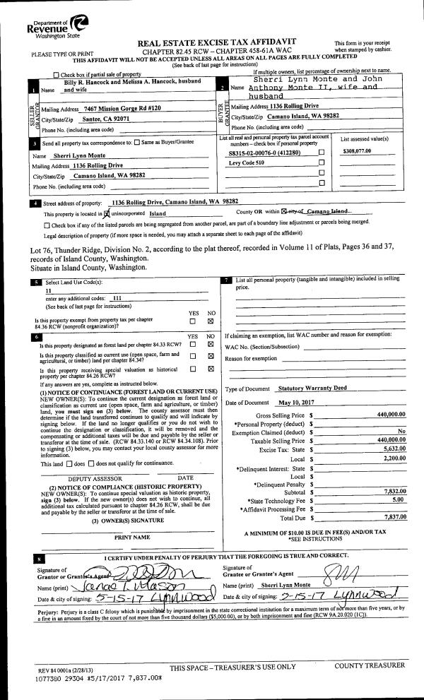
Property
Account |
| Property ID: | 667870 | Abbreviated Legal Description: | LOT 4 SP 31-91.33230.467.0980 V2 SP P342 AF#92003892 |
| Geographic ID: | R33230-435-0850 | Agent Code: | |
| Type: | Real | | |
| Tax Area: | 592 - APPRAISER-Stan/Cam Schl Dist, Special Dist, improved, greater than 1 acre | Land Use Code | 11 |
| Open Space: | N | DFL | N |
| Historic Property: | N | Remodel Property: | N |
| Multi-Family Redevelopment: | N | | |
| Township: | 32 | Section: | 30 |
| Range: | R3 |
Location |
| Address: | 753 ELDERBERRY ST CAMANO ISLAND, WA 98282 | Mapsco: | |
| Neighborhood: | North Camano | Map ID: | 990 |
| Neighborhood CD: | 06-C |
Owner |
| Name: | PROUTY, BRANDON A | Owner ID: | 286805 |
| Mailing Address: | BRYTA E PROUTY 753 ELDERBERRY LN CAMANO ISLAND, WA 98282 | % Ownership: | 100.0000000000% |
| | | Exemptions: | |
Taxes and Assessment Details
Values
| (+) Improvement Homesite Value: | + | $0 | |
| (+) Improvement Non-Homesite Value: | + | $867,566 | |
| (+) Land Homesite Value: | + | $0 | |
| (+) Land Non-Homesite Value: | + | $380,000 | |
| (+) Curr Use (HS): | + | $0 | $0 |
| (+) Curr Use (NHS): | + | $0 | $0 |
| | | -------------------------- | |
| (=) Market Value: | = | $1,247,566 | |
| (–) Productivity Loss: | – | $0 | |
| | | -------------------------- | |
| (=) Subtotal: | = | $1,247,566 | |
| (+) Senior Appraised Value: | + | $0 | |
| (+) Non-Senior Appraised Value: | + | $1,247,566 | |
| | | -------------------------- | |
| (=) Total Appraised Value: | = | $1,247,566 | |
| (–) Senior Exemption Loss: | – | $0 | |
| (–) Exemption Loss: | – | $0 | |
| | | -------------------------- | |
| (=) Taxable Value: | = | $1,247,566 | |
Taxing Jurisdiction
| Owner: | PROUTY, BRANDON A | | |
| % Ownership: | 100.0000000000% | | |
| Total Value: | $1,247,566 | | |
| Tax Area: | 592 - APPRAISER-Stan/Cam Schl Dist, Special Dist, improved, greater than 1 acre |
| CF | Conservation Futures | 0.0316035091 | $1,247,566 | $1,247,566 | $39.43 | | |
| EMS1 | Fire & Rescue Dist #1 Camano GEN (EMS) | 0.3677864386 | $1,247,566 | $1,247,566 | $458.84 | | |
| FIRE1 | Fire & Rescue Dist #1 Camano GEN | 1.2502910536 | $1,247,566 | $1,247,566 | $1,559.82 | | |
| FIRE1BOND | Fire & Rescue Dist #1 Camano BOND | 0.1570001679 | $1,247,566 | $1,247,566 | $195.87 | | |
| CE | County Current Expense | 0.3708482477 | $1,247,566 | $1,247,566 | $462.66 | | |
| CR | County Roads | 0.4584763726 | $1,247,566 | $1,247,566 | $571.98 | | |
| LCIB | Library Sno-Isle BOND (Camano Island) | 0.0396325772 | $1,247,566 | $1,247,566 | $49.44 | | |
| LIB | Library Sno-Isle GEN | 0.3153421757 | $1,247,566 | $1,247,566 | $393.41 | | |
| SCH205_401 | School 205-401 Enrichment | 1.2698420524 | $1,247,566 | $1,247,566 | $1,584.21 | | |
| SCH205BOND | School 205-401 BOND | 0.9396497583 | $1,247,566 | $1,247,566 | $1,172.28 | | |
| ST | State School | 1.3035497053 | $1,247,566 | $1,247,566 | $1,626.26 | | |
| ST2 | State School Part 2 | 0.8169543533 | $1,247,566 | $1,247,566 | $1,019.20 | | |
| | Total Tax Rate: | 7.3209764117 | | | | | |
| | | | | Taxes w/Current Exemptions: | $9,133.40 | | |
| | | | | Taxes w/o Exemptions: | $9,133.40 | | |
Improvement / Building
| Improvement #1: | RESIDENTIAL | State Code: | Y | 2584.0 sqft | Value: | $658,413 |
| Bathrooms: | 2.5 | Bedrooms: | 4 | | Ceiling: | DRYWALL PAINTED | Exterior Wall/Cover: | PLY/HARDBOARD T-111 | | Floor Covering: | HARDWOOD/CARP 60-40 | Floor Structure: | WOOD W/SUBFLOOR | | Foundation: | CONCRETE | Heating: | FHA ELECTRIC | | Interior Finish: | DRYWALL PAINT | Plumbing Fixture Cnt: | 14 | | Roof Slope: | 6" IN 12" | Roof Structure/Cover: | CJ ASPHALT |
|
| | Type | Description | Class CD | Sub Class CD | Year Built | Area |
| | BAS | BASE/MAIN FLOOR | 4 | 0 | 1991 | 1208.0 |
| | OP1 | OPEN PORCH SLAB | 4 | 0 | 1991 | 229.0 |
| | AGR | ATTACHED GARAGE | 4 | 0 | 1991 | 918.0 |
| | OCP | OPEN CARPORT | 4 | 0 | 1991 | 660.0 |
| | UPS | UPPER STORY | 4 | 0 | 1991 | 1376.0 |
| | BAW | BALCONY WOOD RAIL | 4 | 0 | 1991 | 64.0 |
| | OWP | OPEN WOOD PORCH W/STEPS | 4 | 0 | 1991 | 343.0 |
| | OWR | OPEN WOOD PORCH W/STEPS/ROOF | 4 | 0 | 1991 | 50.0 |
| | OWC | OPEN WOOD PORCH W/STEPS/ROOF/C | 4 | 0 | 1991 | 96.0 |
| | UTY | STORAGE/UTILITY | 4 | 0 | 1991 | 2548.0 |
| Improvement #2: | RESIDENTIAL | State Code: | Y | 962.0 sqft | Value: | $209,153 |
| Bathrooms: | 1 | Bedrooms: | 2 | | Ceiling: | DRYWALL PAINTED | Cooling: | HEAT PUMP/CONV/V | | Exterior Wall/Cover: | CEMENT FIBER | Floor Covering: | VINYL TILE | | Floor Structure: | WOOD W/SUBFLOOR | Foundation: | CONCRETE | | Interior Finish: | DRYWALL PAINT | Plumbing Fixture Cnt: | 6 | | Roof Slope: | 4" IN 12" | Roof Structure/Cover: | CJ ASPHALT |
|
| | Type | Description | Class CD | Sub Class CD | Year Built | Area |
| | BAS | BASE/MAIN FLOOR | 3 | 0 | 2021 | 962.0 |
| | AGR | ATTACHED GARAGE | 3 | 0 | 2021 | 390.0 |
| | OWP | OPEN WOOD PORCH W/STEPS | 3 | 0 | 2021 | 0.0 |
| | OWR | OPEN WOOD PORCH W/STEPS/ROOF | 3 | 0 | 2021 | 0.0 |
Sketch
Property Image
Land
| 1 | 32 | AC (03.01-09.99) | 5.0000 | 0.00 | 0.00 | 0.00 | 1.00 | $380,000 | $0 |
Roll Value History
| 2026 | N/A | N/A | N/A | N/A | N/A |
| 2025 | $867,566 | $380,000 | $0 | $1,247,566 | $1,247,566 |
| 2024 | $876,770 | $390,000 | $0 | $1,266,770 | $1,266,770 |
| 2023 | $869,337 | $380,000 | $0 | $1,249,337 | $1,249,337 |
| 2022 | $778,912 | $350,000 | $0 | $1,128,912 | $1,128,912 |
| 2021 | $671,091 | $240,000 | $0 | $911,091 | $911,091 |
| 2020 | $501,169 | $200,000 | $0 | $701,169 | $701,169 |
| 2019 | $375,043 | $240,000 | $0 | $615,043 | $615,043 |
| 2018 | $338,645 | $190,000 | $0 | $528,645 | $528,645 |
| 2017 | $340,334 | $170,000 | $0 | $510,334 | $510,334 |
| 2016 | $328,057 | $125,000 | $0 | $453,057 | $453,057 |
| 2015 | $331,370 | $125,000 | $0 | $456,370 | $456,370 |
| 2014 | $334,679 | $125,000 | $0 | $459,679 | $459,679 |
| 2013 | $337,992 | $120,000 | $0 | $457,992 | $457,992 |
| 2012 | $341,302 | $140,000 | $0 | $481,302 | $481,302 |
| 2011 | $344,613 | $175,000 | $0 | $519,613 | $519,613 |
| 2010 | $363,285 | $175,000 | $0 | $538,285 | $538,285 |
| 2009 | $378,721 | $160,000 | $0 | $538,721 | $538,721 |
| 2008 | $372,538 | $185,000 | $0 | $557,538 | $557,538 |
| 2007 | $378,761 | $185,000 | $0 | $563,761 | $563,761 |
Deed and Sales History
| 1 | 09/06/2018 | WD | Warranty Deed | LINDENAU, TONYA A | PROUTY, BRANDON A | | | $615,000.00 | 35803 | 4451325 |
| 2 | 02/26/2009 | WD | Warranty Deed | CUMMINGS, CURTIS L | LINDENAU, TONYA A | | | $579,000.00 | 90506 | 4246066 |
| 3 | 01/01/1900 | OTHER | Other - Misc. Documents | Unknown | CUMMINGS, CURTIS L | | | $0.00 | 11371 | 91005878 |
Payout Agreement
| No payout information available.. |