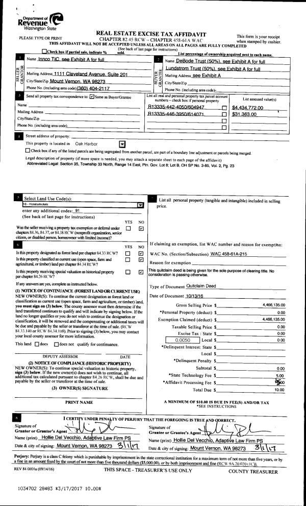
Property
Account |
| Property ID: | 668058 | Abbreviated Legal Description: | LOT 1 SP 43-89.23227.162-3650 V2 SP P346 AF#92005146 INCL ADJ TIDES EX PT TO IS CO AF#92007090 |
| Geographic ID: | R23227-169-3630 | Agent Code: | |
| Type: | Real | | |
| Tax Area: | 519 - APPRAISER-Stan/Cam Schl Dist, vacant & 50 acres or less | Land Use Code | 91 |
| Open Space: | N | DFL | N |
| Historic Property: | N | Remodel Property: | N |
| Multi-Family Redevelopment: | N | | |
| Township: | 32 | Section: | 27 |
| Range: | R2 |
Location |
| Address: | | Mapsco: | |
| Neighborhood: | North Camano | Map ID: | 570 |
| Neighborhood CD: | 06-C |
Owner |
| Name: | TERRA, IRINA | Owner ID: | 265879 |
| Mailing Address: | 531 N SUNSET DR CAMANO ISLAND, WA 98282 | % Ownership: | 100.0000000000% |
| | | Exemptions: | |
Taxes and Assessment Details
Values
| (+) Improvement Homesite Value: | + | $0 | |
| (+) Improvement Non-Homesite Value: | + | $0 | |
| (+) Land Homesite Value: | + | $0 | |
| (+) Land Non-Homesite Value: | + | $280,850 | |
| (+) Curr Use (HS): | + | $0 | $0 |
| (+) Curr Use (NHS): | + | $0 | $0 |
| | | -------------------------- | |
| (=) Market Value: | = | $280,850 | |
| (–) Productivity Loss: | – | $0 | |
| | | -------------------------- | |
| (=) Subtotal: | = | $280,850 | |
| (+) Senior Appraised Value: | + | $0 | |
| (+) Non-Senior Appraised Value: | + | $280,850 | |
| | | -------------------------- | |
| (=) Total Appraised Value: | = | $280,850 | |
| (–) Senior Exemption Loss: | – | $0 | |
| (–) Exemption Loss: | – | $0 | |
| | | -------------------------- | |
| (=) Taxable Value: | = | $280,850 | |
Taxing Jurisdiction
| Owner: | TERRA, IRINA | | |
| % Ownership: | 100.0000000000% | | |
| Total Value: | $280,850 | | |
| Tax Area: | 519 - APPRAISER-Stan/Cam Schl Dist, vacant & 50 acres or less |
| CF | Conservation Futures | 0.0316035091 | $280,850 | $280,850 | $8.88 | | |
| EMS1 | Fire & Rescue Dist #1 Camano GEN (EMS) | 0.3677864386 | $280,850 | $280,850 | $103.29 | | |
| CE | County Current Expense | 0.3708482477 | $280,850 | $280,850 | $104.15 | | |
| CR | County Roads | 0.4584763726 | $280,850 | $280,850 | $128.76 | | |
| LCIB | Library Sno-Isle BOND (Camano Island) | 0.0396325772 | $280,850 | $280,850 | $11.13 | | |
| LIB | Library Sno-Isle GEN | 0.3153421757 | $280,850 | $280,850 | $88.56 | | |
| SCH205_401 | School 205-401 Enrichment | 1.2698420524 | $280,850 | $280,850 | $356.64 | | |
| SCH205BOND | School 205-401 BOND | 0.9396497583 | $280,850 | $280,850 | $263.90 | | |
| ST | State School | 1.3035497053 | $280,850 | $280,850 | $366.10 | | |
| ST2 | State School Part 2 | 0.8169543533 | $280,850 | $280,850 | $229.44 | | |
| | Total Tax Rate: | 5.9136851902 | | | | | |
| | | | | Taxes w/Current Exemptions: | $1,660.85 | | |
| | | | | Taxes w/o Exemptions: | $1,660.85 | | |
Improvement / Building
Sketch
| No sketches available for this property. |
Property Image
Land
| 1 | HB | HIGH BLUFF | 0.0000 | 0.00 | 85.00 | 0.00 | 1.00 | $280,000 | $0 |
| 2 | 55 | TIDES | 0.0000 | 0.00 | 85.00 | 0.00 | 1.00 | $850 | $0 |
Roll Value History
| 2026 | N/A | N/A | N/A | N/A | N/A |
| 2025 | $0 | $280,850 | $0 | $280,850 | $280,850 |
| 2024 | $0 | $280,850 | $0 | $280,850 | $280,850 |
| 2023 | $0 | $280,850 | $0 | $280,850 | $280,850 |
| 2022 | $0 | $300,850 | $0 | $300,850 | $300,850 |
| 2021 | $0 | $250,850 | $0 | $250,850 | $250,850 |
| 2020 | $0 | $250,850 | $0 | $250,850 | $250,850 |
| 2019 | $0 | $250,850 | $0 | $250,850 | $250,850 |
| 2018 | $0 | $250,850 | $0 | $250,850 | $250,850 |
| 2017 | $0 | $250,850 | $0 | $250,850 | $250,850 |
| 2016 | $0 | $250,850 | $0 | $250,850 | $250,850 |
| 2015 | $0 | $250,850 | $0 | $250,850 | $250,850 |
| 2014 | $0 | $250,850 | $0 | $250,850 | $250,850 |
| 2013 | $0 | $235,108 | $0 | $235,108 | $235,108 |
| 2012 | $0 | $235,108 | $0 | $235,108 | $235,108 |
| 2011 | $0 | $293,672 | $0 | $293,672 | $293,672 |
| 2010 | $0 | $293,672 | $0 | $293,672 | $293,672 |
| 2009 | $0 | $315,712 | $0 | $315,712 | $315,712 |
| 2008 | $0 | $308,321 | $0 | $308,321 | $308,321 |
| 2007 | $0 | $307,726 | $0 | $307,726 | $307,726 |
Deed and Sales History
| 1 | 04/30/2014 | ESTSEPPROP | Establish Separate Property | LEE, JOHN | TERRA, IRINA | | | $0.00 | 15158 | 4358829 |
| 2 | 06/19/2000 | WD | Warranty Deed | LEE, JOHN | LEE, JOHN | | | $0.00 | 2526 | 20011989 |
| 3 | 06/19/2000 | WD | Warranty Deed | MOSTARSHED, IRA J | LEE, JOHN | | | $165,000.00 | 2303 | 20011043 |
| 4 | 12/17/1998 | WD | Warranty Deed | HARP, JAMES M & JOAN B | MOSTARSHED, IRA J | | | $133,000.00 | 90079 | 99000534 |
| 5 | 09/01/1992 | WD | Warranty Deed | GUEST, MARGUERITE M | HARP, JAMES M | | | $100,000.00 | 23912 | 92018969 |
| 6 | 08/01/1992 | OTHER | Other - Misc. Documents | GUEST, MARGUERITE M | GUEST, MARGUERITE M | | | $0.00 | 64999 | 92015249 |
| 7 | 01/01/1900 | OTHER | Other - Misc. Documents | Unknown | GUEST, MARGUERITE M | | | $0.00 | 60241 | 0 |
Payout Agreement
| No payout information available.. |