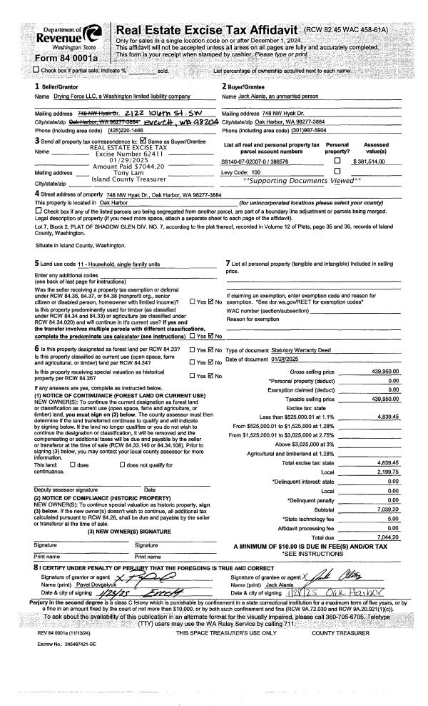
Property
Account |
| Property ID: | 668101 | Abbreviated Legal Description: | ALEX DC: BG PT ELN ALEX DC LY 992.90'N OF NWCR J CROCKETT DC N173' W248' S172.86' S89*E248'TPB EX W110' TGW EZ FR 480-3880 |
| Geographic ID: | R13104-490-4050 | Agent Code: | |
| Type: | Real | | |
| Tax Area: | 300 - APPRAISER-Cpvl Schl Dist, in Cpvl | Land Use Code | 91 |
| Open Space: | N | DFL | N |
| Historic Property: | N | Remodel Property: | N |
| Multi-Family Redevelopment: | N | | |
| Township: | 31 | Section: | 04 |
| Range: | R1 |
Location |
| Address: | S MAIN ST COUPEVILLE, WA 98239 | Mapsco: | |
| Neighborhood: | Cycle 2 | Map ID: | 32 |
| Neighborhood CD: | 2 |
Owner |
| Name: | MCPHERSON, MOLLY M | Owner ID: | 183282 |
| Mailing Address: | PO BOX 1617 COUPEVILLE, WA 98239-1617 | % Ownership: | 100.0000000000% |
| | | Exemptions: | |
Taxes and Assessment Details
Values
| (+) Improvement Homesite Value: | + | $0 | |
| (+) Improvement Non-Homesite Value: | + | $0 | |
| (+) Land Homesite Value: | + | $0 | |
| (+) Land Non-Homesite Value: | + | $83,409 | |
| (+) Curr Use (HS): | + | $0 | $0 |
| (+) Curr Use (NHS): | + | $0 | $0 |
| | | -------------------------- | |
| (=) Market Value: | = | $83,409 | |
| (–) Productivity Loss: | – | $0 | |
| | | -------------------------- | |
| (=) Subtotal: | = | $83,409 | |
| (+) Senior Appraised Value: | + | $0 | |
| (+) Non-Senior Appraised Value: | + | $83,409 | |
| | | -------------------------- | |
| (=) Total Appraised Value: | = | $83,409 | |
| (–) Senior Exemption Loss: | – | $0 | |
| (–) Exemption Loss: | – | $0 | |
| | | -------------------------- | |
| (=) Taxable Value: | = | $83,409 | |
Taxing Jurisdiction
| Owner: | MCPHERSON, MOLLY M | | |
| % Ownership: | 100.0000000000% | | |
| Total Value: | $83,409 | | |
| Tax Area: | 300 - APPRAISER-Cpvl Schl Dist, in Cpvl |
| CF | Conservation Futures | 0.0316035091 | $83,409 | $83,409 | $2.64 | | |
| CEM2 | Cemetery #2 | 0.0095056933 | $83,409 | $83,409 | $0.79 | | |
| COUP | City: Town of Coupeville | 0.8426414490 | $83,409 | $83,409 | $70.28 | | |
| FIRE5 | Fire & Rescue Dist #5 C Whidbey GEN | 1.2008080668 | $83,409 | $83,409 | $100.16 | | |
| FIRE5BOND | Fire & Rescue Dist #5 C Whidbey BOND | 0.1400090713 | $83,409 | $83,409 | $11.68 | | |
| HOBOND | Hospital BOND | 0.1910887512 | $83,409 | $83,409 | $15.94 | | |
| HOGEN | Hospital GEN | 0.3902502903 | $83,409 | $83,409 | $32.55 | | |
| CE | County Current Expense | 0.3708482477 | $83,409 | $83,409 | $30.93 | | |
| ISLANDEMS | Hospital GEN (EMS) | 0.5000000000 | $83,409 | $83,409 | $41.70 | | |
| LIB | Library Sno-Isle GEN | 0.3153421757 | $83,409 | $83,409 | $26.30 | | |
| LIBCAP | Library Sno-Isle BOND (Cap Fac Imp Area) | 0.0543427938 | $83,409 | $83,409 | $4.53 | | |
| POCOUP | Port of Coupeville GEN | 0.1093371703 | $83,409 | $83,409 | $9.12 | | |
| POCOUPIDD | Port of Coupeville IDD | 0.3409740022 | $83,409 | $83,409 | $28.44 | | |
| COUPSDTECH | School 204 CP (TECH) | 0.7545480007 | $83,409 | $83,409 | $62.94 | | |
| SCH204MO | School 204 Enrichment | 0.6716186034 | $83,409 | $83,409 | $56.02 | | |
| ST | State School | 1.3035497053 | $83,409 | $83,409 | $108.73 | | |
| ST2 | State School Part 2 | 0.8169543533 | $83,409 | $83,409 | $68.14 | | |
| | Total Tax Rate: | 8.0434218834 | | | | | |
| | | | | Taxes w/Current Exemptions: | $670.89 | | |
| | | | | Taxes w/o Exemptions: | $670.89 | | |
Improvement / Building
Sketch
| No sketches available for this property. |
Property Image
Land
| 1 | 91 | UNDEVELOPED LAND-METES AND BOUNDS | 0.4300 | 18730.80 | 0.00 | 0.00 | 1.00 | $83,409 | $0 |
Roll Value History
| 2026 | N/A | N/A | N/A | N/A | N/A |
| 2025 | $0 | $83,409 | $0 | $83,409 | $83,409 |
| 2024 | $0 | $95,000 | $0 | $95,000 | $95,000 |
| 2023 | $0 | $95,000 | $0 | $95,000 | $95,000 |
| 2022 | $0 | $95,000 | $0 | $95,000 | $95,000 |
| 2021 | $0 | $75,000 | $0 | $75,000 | $75,000 |
| 2020 | $0 | $75,000 | $0 | $75,000 | $75,000 |
| 2019 | $0 | $75,000 | $0 | $75,000 | $75,000 |
| 2018 | $0 | $75,000 | $0 | $75,000 | $75,000 |
| 2017 | $0 | $75,000 | $0 | $75,000 | $75,000 |
| 2016 | $0 | $80,000 | $0 | $80,000 | $80,000 |
| 2015 | $0 | $75,000 | $0 | $75,000 | $75,000 |
| 2014 | $0 | $75,000 | $0 | $75,000 | $75,000 |
| 2013 | $0 | $75,000 | $0 | $75,000 | $75,000 |
| 2012 | $0 | $75,000 | $0 | $75,000 | $75,000 |
| 2011 | $0 | $75,000 | $0 | $75,000 | $75,000 |
| 2010 | $0 | $75,000 | $0 | $75,000 | $75,000 |
| 2009 | $0 | $85,000 | $0 | $85,000 | $85,000 |
| 2008 | $0 | $90,000 | $0 | $90,000 | $90,000 |
| 2007 | $0 | $71,500 | $0 | $71,500 | $71,500 |
Deed and Sales History
| 1 | 03/19/2021 | QCD | Quit Claim Deed | WOLFE, DEREK L | MCPHERSON, MOLLY M | | | $0.00 | 50068 | 4529335 |
| 2 | 05/04/2000 | WD | Warranty Deed | RKP ENTERPRISES, | MCPHERSON, MOLLY M | | | $65,000.00 | 1726 | 20008290 |
| 3 | 08/01/1997 | WD | Warranty Deed | TGMM, INC | R, K P | | | $82,500.00 | 72735 | 97012978 |
| 4 | 11/01/1996 | QCD | Quit Claim Deed | ALL, 4 I | TGMM, INC | | | $0.00 | 64203 | 96020446 |
| 5 | 10/01/1996 | ESTSEPPROP | Establish Separate Property | STODDARD, DAVID N | STODDARD, DAVID N | | | $0.00 | 63953 | 96019093 |
| 6 | 10/01/1996 | WD | Warranty Deed | STODDARD, DAVID N | ALL, 4 I | | | $45,000.00 | 63954 | 96019096 |
| 7 | 04/01/1992 | OTHER | Other - Misc. Documents | BENNETT, ALBERTA | STODDARD, DAVID N | | | $0.00 | 64769 | 92005574 |
| 8 | 01/01/1900 | OTHER | Other - Misc. Documents | Unknown | BENNETT, ALBERTA | | | $0.00 | 19110 | 0 |
| 9 | 01/01/1900 | OTHER | Other - Misc. Documents | R, K P | RKP ENTERPRISES, | | | $0.00 | 0 | 0 |
Payout Agreement
| No payout information available.. |