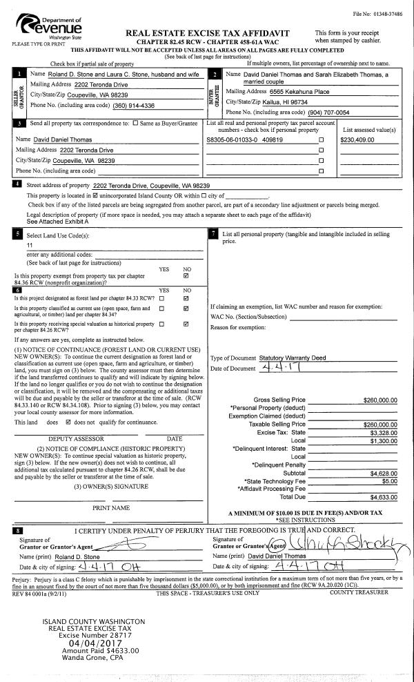
Property
Account |
| Property ID: | 66813 | Abbreviated Legal Description: | 19 - W/2 SE SE |
| Geographic ID: | R23025-067-4200 | Agent Code: | |
| Type: | Real | | |
| Tax Area: | 719 - APPRAISER-S Whid Schl Dist, outside Langley, vacant & 50 acres or less | Land Use Code | 91 |
| Open Space: | N | DFL | N |
| Historic Property: | N | Remodel Property: | N |
| Multi-Family Redevelopment: | N | | |
| Township: | 30 | Section: | 25 |
| Range: | R2 |
Location |
| Address: | LANGLEY, WA 98260 | Mapsco: | |
| Neighborhood: | Cycle 3 | Map ID: | 413 |
| Neighborhood CD: | 3 |
Owner |
| Name: | MCGINLEY TRUSTEE, ROSITA H | Owner ID: | 279555 |
| Mailing Address: | 1028 NW 197TH PLACE SHORLINE, WA 98177 | % Ownership: | 100.0000000000% |
| | | Exemptions: | |
Taxes and Assessment Details
Values
| (+) Improvement Homesite Value: | + | $0 | |
| (+) Improvement Non-Homesite Value: | + | $0 | |
| (+) Land Homesite Value: | + | $0 | |
| (+) Land Non-Homesite Value: | + | $370,000 | |
| (+) Curr Use (HS): | + | $0 | $0 |
| (+) Curr Use (NHS): | + | $0 | $0 |
| | | -------------------------- | |
| (=) Market Value: | = | $370,000 | |
| (–) Productivity Loss: | – | $0 | |
| | | -------------------------- | |
| (=) Subtotal: | = | $370,000 | |
| (+) Senior Appraised Value: | + | $0 | |
| (+) Non-Senior Appraised Value: | + | $370,000 | |
| | | -------------------------- | |
| (=) Total Appraised Value: | = | $370,000 | |
| (–) Senior Exemption Loss: | – | $0 | |
| (–) Exemption Loss: | – | $0 | |
| | | -------------------------- | |
| (=) Taxable Value: | = | $370,000 | |
Taxing Jurisdiction
| Owner: | MCGINLEY TRUSTEE, ROSITA H | | |
| % Ownership: | 100.0000000000% | | |
| Total Value: | $370,000 | | |
| Tax Area: | 719 - APPRAISER-S Whid Schl Dist, outside Langley, vacant & 50 acres or less |
| CF | Conservation Futures | 0.0316035091 | $370,000 | $370,000 | $11.69 | | |
| HOBOND | Hospital BOND | 0.1910887512 | $370,000 | $370,000 | $70.70 | | |
| HOGEN | Hospital GEN | 0.3902502903 | $370,000 | $370,000 | $144.39 | | |
| CE | County Current Expense | 0.3708482477 | $370,000 | $370,000 | $137.21 | | |
| CR | County Roads | 0.4584763726 | $370,000 | $370,000 | $169.64 | | |
| ISLANDEMS | Hospital GEN (EMS) | 0.5000000000 | $370,000 | $370,000 | $185.00 | | |
| LIB | Library Sno-Isle GEN | 0.3153421757 | $370,000 | $370,000 | $116.68 | | |
| PORTWHID | Port of S Whidbey GEN | 0.1094540357 | $370,000 | $370,000 | $40.50 | | |
| SCH206BOND | School 206 BOND | 0.3161759235 | $370,000 | $370,000 | $116.99 | | |
| SCH206MO | School 206 Enrichment | 0.4547169547 | $370,000 | $370,000 | $168.25 | | |
| ST | State School | 1.3035497053 | $370,000 | $370,000 | $482.31 | | |
| ST2 | State School Part 2 | 0.8169543533 | $370,000 | $370,000 | $302.27 | | |
| SWHIDPRBD | P & R S Whidbey BOND | 0.0152817568 | $370,000 | $370,000 | $5.65 | | |
| SWHIDPRBD2 | P & R S Whidbey BOND2 | 0.0138911264 | $370,000 | $370,000 | $5.14 | | |
| SWHIDPRMT | P & R S Whidbey GEN | 0.2053334452 | $370,000 | $370,000 | $75.97 | | |
| | Total Tax Rate: | 5.4929666475 | | | | | |
| | | | | Taxes w/Current Exemptions: | $2,032.39 | | |
| | | | | Taxes w/o Exemptions: | $2,032.39 | | |
Improvement / Building
Sketch
| No sketches available for this property. |
Property Image
Land
| 1 | 35 | AC (10.00-30.99) | 0.0000 | 0.00 | 0.00 | 0.00 | 1.00 | $370,000 | $0 |
Roll Value History
| 2026 | N/A | N/A | N/A | N/A | N/A |
| 2025 | $0 | $370,000 | $0 | $370,000 | $370,000 |
| 2024 | $0 | $340,000 | $0 | $340,000 | $340,000 |
| 2023 | $0 | $300,000 | $0 | $300,000 | $300,000 |
| 2022 | $0 | $250,000 | $0 | $250,000 | $250,000 |
| 2021 | $0 | $250,000 | $0 | $250,000 | $250,000 |
| 2020 | $0 | $210,000 | $0 | $210,000 | $210,000 |
| 2019 | $0 | $210,000 | $0 | $210,000 | $210,000 |
| 2018 | $0 | $200,000 | $0 | $200,000 | $200,000 |
| 2017 | $0 | $200,000 | $0 | $200,000 | $200,000 |
| 2016 | $0 | $200,000 | $0 | $200,000 | $200,000 |
| 2015 | $0 | $200,000 | $0 | $200,000 | $200,000 |
| 2014 | $0 | $180,000 | $0 | $180,000 | $180,000 |
| 2013 | $0 | $180,000 | $0 | $180,000 | $180,000 |
| 2012 | $0 | $180,000 | $0 | $180,000 | $180,000 |
| 2011 | $0 | $180,000 | $0 | $180,000 | $180,000 |
| 2010 | $0 | $200,000 | $0 | $200,000 | $200,000 |
| 2009 | $0 | $400,000 | $0 | $400,000 | $400,000 |
| 2008 | $0 | $240,000 | $0 | $240,000 | $240,000 |
| 2007 | $0 | $210,000 | $0 | $210,000 | $210,000 |
Deed and Sales History
| 1 | 03/15/2017 | WD | Warranty Deed | MCGINLEY, ROSITA H | MCGINLEY TRUSTEE, ROSITA H | | | $0.00 | 28974 | 4421159 |
| 2 | 03/20/2009 | QCD | Quit Claim Deed | LUNDEN TRUSTEE, HELENA K | MCGINLEY, ROSITA H | | | $0.00 | 90731 | 4247896 |
| 3 | 03/19/2009 | PRD | Personal Representatives Deed | LUNDEN, BENGT G | LUNDEN TRUSTEE, HELENA K | | | $0.00 | 90629 | 4247188 |
| 4 | 04/01/1996 | QCD | Quit Claim Deed | LUNDEN, BENGT G | LUNDEN, BENGT G | | | $0.00 | 61733 | 96008603 |
| 5 | 11/01/1995 | QCD | Quit Claim Deed | MCGINLEY, THOMAS J | LUNDEN, BENGT G | | | $0.00 | 54183 | 95019237 |
| 6 | 11/01/1989 | PACD | Purchaser's Assignment | JOHNSON, PROPERTIES | MCGINLEY, THOMAS J | | | $55,000.00 | 95164 | 89016641 |
| 7 | 03/01/1987 | REC | Real Estate Contract | JOHNSON, PHILIP & | JOHNSON, PROPERTIES | | | $46,000.00 | 70787 | 87004208 |
| 8 | 01/01/1900 | OTHER | Other - Misc. Documents | Unknown | JOHNSON, PHILIP & | | | $0.00 | 0 | 0 |
Payout Agreement
| No payout information available.. |