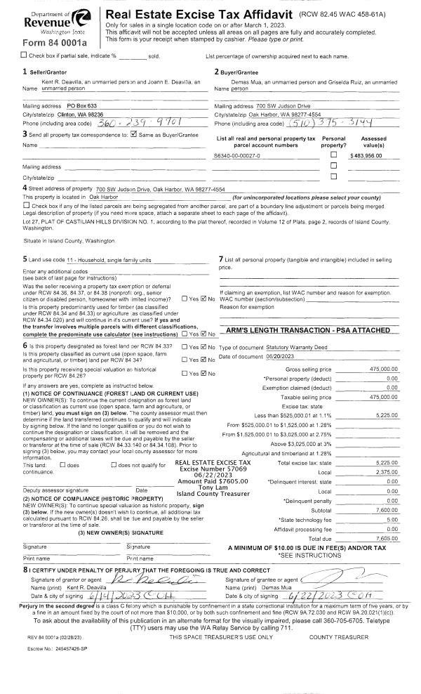
Property
Account |
| Property ID: | 668165 | Abbreviated Legal Description: | LOT 2 SP 43-90.23234.167-3060 V2 SP P347 AF#92005147 INCL ADJ TIDES |
| Geographic ID: | R23234-159-3050 | Agent Code: | |
| Type: | Real | | |
| Tax Area: | 510 - APPRAISER-Stan/Cam Schl Dist, improved & 1 acre or less | Land Use Code | 11 |
| Open Space: | N | DFL | N |
| Historic Property: | N | Remodel Property: | N |
| Multi-Family Redevelopment: | N | | |
| Township: | 32 | Section: | 34 |
| Range: | R2 |
Location |
| Address: | 121 N SUNSET DR CAMANO ISLAND, WA 98282 | Mapsco: | |
| Neighborhood: | North Camano | Map ID: | 573 |
| Neighborhood CD: | 06-C |
Owner |
| Name: | HOFF, HOWARD J | Owner ID: | 260949 |
| Mailing Address: | LUZVIMINDA B HOFF 17213 15TH AVE NW SHORELINE, WA 98177 | % Ownership: | 100.0000000000% |
| | | Exemptions: | |
Taxes and Assessment Details
Values
| (+) Improvement Homesite Value: | + | $0 | |
| (+) Improvement Non-Homesite Value: | + | $184,026 | |
| (+) Land Homesite Value: | + | $0 | |
| (+) Land Non-Homesite Value: | + | $675,640 | |
| (+) Curr Use (HS): | + | $0 | $0 |
| (+) Curr Use (NHS): | + | $0 | $0 |
| | | -------------------------- | |
| (=) Market Value: | = | $859,666 | |
| (–) Productivity Loss: | – | $0 | |
| | | -------------------------- | |
| (=) Subtotal: | = | $859,666 | |
| (+) Senior Appraised Value: | + | $0 | |
| (+) Non-Senior Appraised Value: | + | $859,666 | |
| | | -------------------------- | |
| (=) Total Appraised Value: | = | $859,666 | |
| (–) Senior Exemption Loss: | – | $0 | |
| (–) Exemption Loss: | – | $0 | |
| | | -------------------------- | |
| (=) Taxable Value: | = | $859,666 | |
Taxing Jurisdiction
| Owner: | HOFF, HOWARD J | | |
| % Ownership: | 100.0000000000% | | |
| Total Value: | $859,666 | | |
| Tax Area: | 510 - APPRAISER-Stan/Cam Schl Dist, improved & 1 acre or less |
| CF | Conservation Futures | 0.0316035091 | $859,666 | $859,666 | $27.17 | | |
| EMS1 | Fire & Rescue Dist #1 Camano GEN (EMS) | 0.3677864386 | $859,666 | $859,666 | $316.17 | | |
| FIRE1 | Fire & Rescue Dist #1 Camano GEN | 1.2502910536 | $859,666 | $859,666 | $1,074.83 | | |
| FIRE1BOND | Fire & Rescue Dist #1 Camano BOND | 0.1570001679 | $859,666 | $859,666 | $134.97 | | |
| CE | County Current Expense | 0.3708482477 | $859,666 | $859,666 | $318.81 | | |
| CR | County Roads | 0.4584763726 | $859,666 | $859,666 | $394.14 | | |
| LCIB | Library Sno-Isle BOND (Camano Island) | 0.0396325772 | $859,666 | $859,666 | $34.07 | | |
| LIB | Library Sno-Isle GEN | 0.3153421757 | $859,666 | $859,666 | $271.09 | | |
| SCH205_401 | School 205-401 Enrichment | 1.2698420524 | $859,666 | $859,666 | $1,091.64 | | |
| SCH205BOND | School 205-401 BOND | 0.9396497583 | $859,666 | $859,666 | $807.78 | | |
| ST | State School | 1.3035497053 | $859,666 | $859,666 | $1,120.62 | | |
| ST2 | State School Part 2 | 0.8169543533 | $859,666 | $859,666 | $702.31 | | |
| | Total Tax Rate: | 7.3209764117 | | | | | |
| | | | | Taxes w/Current Exemptions: | $6,293.60 | | |
| | | | | Taxes w/o Exemptions: | $6,293.60 | | |
Improvement / Building
| Improvement #1: | MANUFACTURED HOME | State Code: | Y | 2445.0 sqft | Value: | $184,026 |
| Bathrooms: | 0 | Bedrooms: | 0 | | Ceiling: | PLASTER PAINTED | Cooling: | HEAT PUMP/CONV/V | | Exterior Wall/Cover: | VINYL | Floor Covering: | CARPET 100% | | Floor Structure: | SLAB ON GRADE | Foundation: | SLAB | | Interior Finish: | PLASTER | Plumbing Fixture Cnt: | 1 | | Roof Slope: | FLAT | Roof Structure/Cover: | CJ ALUMINIUM HEAVY |
|
| | Type | Description | Class CD | Sub Class CD | Year Built | Area |
| | BAS | BASE/MAIN FLOOR | 4 | 0 | 1994 | 2445.0 |
| | DGR | DETACHED GARAGE | 4 | 0 | 1994 | 576.0 |
| | OWP | OPEN WOOD PORCH W/STEPS | 4 | 0 | 1994 | 326.5 |
| | OWR | OPEN WOOD PORCH W/STEPS/ROOF | 4 | 0 | 1994 | 149.0 |
| | OCP | OPEN CARPORT | 4 | 0 | 1994 | 240.0 |
Sketch
Property Image
Land
| 1 | LB | LOW BANK | 0.0000 | 0.00 | 61.00 | 0.00 | 1.00 | $675,000 | $0 |
| 2 | 55 | TIDES | 0.0000 | 0.00 | 64.00 | 0.00 | 1.00 | $640 | $0 |
Roll Value History
| 2026 | N/A | N/A | N/A | N/A | N/A |
| 2025 | $184,026 | $675,640 | $0 | $859,666 | $859,666 |
| 2024 | $186,478 | $675,640 | $0 | $862,118 | $862,118 |
| 2023 | $166,432 | $675,640 | $0 | $842,072 | $842,072 |
| 2022 | $149,420 | $700,640 | $0 | $850,060 | $850,060 |
| 2021 | $131,727 | $450,640 | $0 | $582,367 | $582,367 |
| 2020 | $131,379 | $450,640 | $0 | $582,019 | $582,019 |
| 2019 | $106,251 | $450,640 | $0 | $556,891 | $556,891 |
| 2018 | $109,011 | $450,640 | $0 | $559,651 | $559,651 |
| 2017 | $111,772 | $450,640 | $0 | $562,412 | $562,412 |
| 2016 | $98,166 | $450,640 | $0 | $548,806 | $548,806 |
| 2015 | $100,783 | $450,640 | $0 | $551,423 | $551,423 |
| 2014 | $103,402 | $450,640 | $0 | $554,042 | $554,042 |
| 2013 | $72,944 | $474,127 | $0 | $547,071 | $547,071 |
| 2012 | $74,745 | $474,127 | $0 | $548,872 | $548,872 |
| 2011 | $76,546 | $592,499 | $0 | $669,045 | $669,045 |
| 2010 | $125,551 | $592,499 | $0 | $718,050 | $718,050 |
| 2009 | $128,208 | $637,736 | $0 | $765,944 | $765,944 |
| 2008 | $130,844 | $770,622 | $0 | $901,466 | $901,466 |
| 2007 | $133,492 | $682,526 | $0 | $816,018 | $816,018 |
Deed and Sales History
| 1 | 02/20/2013 | WD | Warranty Deed | SANDBERG, ALVIN M | HOFF, HOWARD J | | | $538,000.00 | 10477 | 4334085 |
| 2 | 05/01/1996 | OTHER | Other - Misc. Documents | SANDBERG, ALVIN M | SANDBERG, ALVIN M | | | $0.00 | 66916 | 0 |
| 3 | 10/01/1993 | OTHER | Other - Misc. Documents | Unknown | SANDBERG, ALVIN M | | | $87,500.00 | 11111111 | 0 |
| 4 | 04/01/1992 | QCD | Quit Claim Deed | SANDBERG, ALVIN M | SANDBERG, ALVIN M | | | $0.00 | 21439 | 92006913 |
| 5 | 01/01/1900 | CD | DNU - Correction Deed | SANDBERG, ALVIN M | SANDBERG, ALVIN M | | | $0.00 | 55067 | 0 |
Payout Agreement
| No payout information available.. |