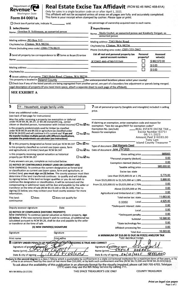
Property
Account |
| Property ID: | 6683 | Abbreviated Legal Description: | 4 ENGLE DC - BG 157.50'N & 389.65'W OF SECR ENGLE DC N186' N89*W75.90' M/L TO CO RD SE ALG CO RD TP N89*W FR TPB S89*E55.20' M/L TPB |
| Geographic ID: | R13109-235-3610 | Agent Code: | |
| Type: | Real | | |
| Tax Area: | 310 - APPRAISER-Cpvl Schl Dist, outside Cpvl, improved & 1 acre or less | Land Use Code | 11 |
| Open Space: | N | DFL | N |
| Historic Property: | N | Remodel Property: | N |
| Multi-Family Redevelopment: | N | | |
| Township: | 31 | Section: | 09 |
| Range: | R1 |
Location |
| Address: | | Mapsco: | |
| Neighborhood: | Cycle 2 | Map ID: | 43 |
| Neighborhood CD: | 2 |
Owner |
| Name: | SHERMAN, DALE A | Owner ID: | 5915 |
| Mailing Address: | 172 S EBEY RD COUPEVILLE, WA 98239-9748 | % Ownership: | 100.0000000000% |
| | | Exemptions: | |
Taxes and Assessment Details
Values
| (+) Improvement Homesite Value: | + | $0 | |
| (+) Improvement Non-Homesite Value: | + | $60,840 | |
| (+) Land Homesite Value: | + | $0 | |
| (+) Land Non-Homesite Value: | + | $110,000 | |
| (+) Curr Use (HS): | + | $0 | $0 |
| (+) Curr Use (NHS): | + | $0 | $0 |
| | | -------------------------- | |
| (=) Market Value: | = | $170,840 | |
| (–) Productivity Loss: | – | $0 | |
| | | -------------------------- | |
| (=) Subtotal: | = | $170,840 | |
| (+) Senior Appraised Value: | + | $0 | |
| (+) Non-Senior Appraised Value: | + | $170,840 | |
| | | -------------------------- | |
| (=) Total Appraised Value: | = | $170,840 | |
| (–) Senior Exemption Loss: | – | $0 | |
| (–) Exemption Loss: | – | $0 | |
| | | -------------------------- | |
| (=) Taxable Value: | = | $170,840 | |
Taxing Jurisdiction
| Owner: | SHERMAN, DALE A | | |
| % Ownership: | 100.0000000000% | | |
| Total Value: | $170,840 | | |
| Tax Area: | 310 - APPRAISER-Cpvl Schl Dist, outside Cpvl, improved & 1 acre or less |
| CF | Conservation Futures | 0.0316035091 | $170,840 | $170,840 | $5.40 | | |
| CEM2 | Cemetery #2 | 0.0095056933 | $170,840 | $170,840 | $1.62 | | |
| FIRE5 | Fire & Rescue Dist #5 C Whidbey GEN | 1.2008080668 | $170,840 | $170,840 | $205.15 | | |
| FIRE5BOND | Fire & Rescue Dist #5 C Whidbey BOND | 0.1400090713 | $170,840 | $170,840 | $23.92 | | |
| HOBOND | Hospital BOND | 0.1910887512 | $170,840 | $170,840 | $32.65 | | |
| HOGEN | Hospital GEN | 0.3902502903 | $170,840 | $170,840 | $66.67 | | |
| CE | County Current Expense | 0.3708482477 | $170,840 | $170,840 | $63.36 | | |
| CR | County Roads | 0.4584763726 | $170,840 | $170,840 | $78.33 | | |
| ISLANDEMS | Hospital GEN (EMS) | 0.5000000000 | $170,840 | $170,840 | $85.42 | | |
| LIB | Library Sno-Isle GEN | 0.3153421757 | $170,840 | $170,840 | $53.87 | | |
| LIBCAP | Library Sno-Isle BOND (Cap Fac Imp Area) | 0.0543427938 | $170,840 | $170,840 | $9.28 | | |
| POCOUP | Port of Coupeville GEN | 0.1093371703 | $170,840 | $170,840 | $18.68 | | |
| POCOUPIDD | Port of Coupeville IDD | 0.3409740022 | $170,840 | $170,840 | $58.25 | | |
| COUPSDTECH | School 204 CP (TECH) | 0.7545480007 | $170,840 | $170,840 | $128.91 | | |
| SCH204MO | School 204 Enrichment | 0.6716186034 | $170,840 | $170,840 | $114.74 | | |
| ST | State School | 1.3035497053 | $170,840 | $170,840 | $222.70 | | |
| ST2 | State School Part 2 | 0.8169543533 | $170,840 | $170,840 | $139.57 | | |
| | Total Tax Rate: | 7.6592568070 | | | | | |
| | | | | Taxes w/Current Exemptions: | $1,308.52 | | |
| | | | | Taxes w/o Exemptions: | $1,308.52 | | |
Improvement / Building
| Improvement #1: | RESIDENTIAL | State Code: | Y | 0.0 sqft | Value: | $60,840 |
Sketch
| No sketches available for this property. |
Property Image
Land
| 1 | 91 | UNDEVELOPED LAND-METES AND BOUNDS | 0.2800 | 12196.80 | 0.00 | 0.00 | 1.00 | $110,000 | $0 |
Roll Value History
| 2026 | N/A | N/A | N/A | N/A | N/A |
| 2025 | $60,840 | $110,000 | $0 | $170,840 | $170,840 |
| 2024 | $16,200 | $110,000 | $0 | $126,200 | $126,200 |
| 2023 | $16,200 | $110,000 | $0 | $126,200 | $126,200 |
| 2022 | $16,200 | $110,000 | $0 | $126,200 | $126,200 |
| 2021 | $16,200 | $90,000 | $0 | $106,200 | $106,200 |
| 2020 | $16,200 | $90,000 | $0 | $106,200 | $106,200 |
| 2019 | $16,200 | $90,000 | $0 | $106,200 | $106,200 |
| 2018 | $8,154 | $80,000 | $0 | $88,154 | $88,154 |
| 2017 | $8,154 | $80,000 | $0 | $88,154 | $88,154 |
| 2016 | $8,154 | $90,000 | $0 | $98,154 | $98,154 |
| 2015 | $8,154 | $90,000 | $0 | $98,154 | $98,154 |
| 2014 | $8,154 | $90,000 | $0 | $98,154 | $98,154 |
| 2013 | $8,154 | $63,750 | $0 | $71,904 | $71,904 |
| 2012 | $8,154 | $63,750 | $0 | $71,904 | $71,904 |
| 2011 | $8,154 | $75,000 | $0 | $83,154 | $83,154 |
| 2010 | $8,154 | $75,000 | $0 | $83,154 | $83,154 |
| 2009 | $8,154 | $85,000 | $0 | $93,154 | $93,154 |
| 2008 | $8,154 | $105,000 | $0 | $113,154 | $113,154 |
| 2007 | $8,154 | $105,000 | $0 | $113,154 | $113,154 |
Deed and Sales History
| 1 | 10/01/1994 | QCD | Quit Claim Deed | SHERMAN, EDWIN R | SHERMAN, DALE A | | | $0.00 | 44249 | 94021911 |
| 2 | 02/01/1967 | EXECUTORD | Executor Deed | HANCOCK, ROBERT L | SHERMAN, EDWIN R | | | $0.00 | 24945 | 0 |
| 3 | 01/01/1900 | OTHER | Other - Misc. Documents | Unknown | HANCOCK, ROBERT L | | | $0.00 | 0 | 0 |
Payout Agreement
| No payout information available.. |