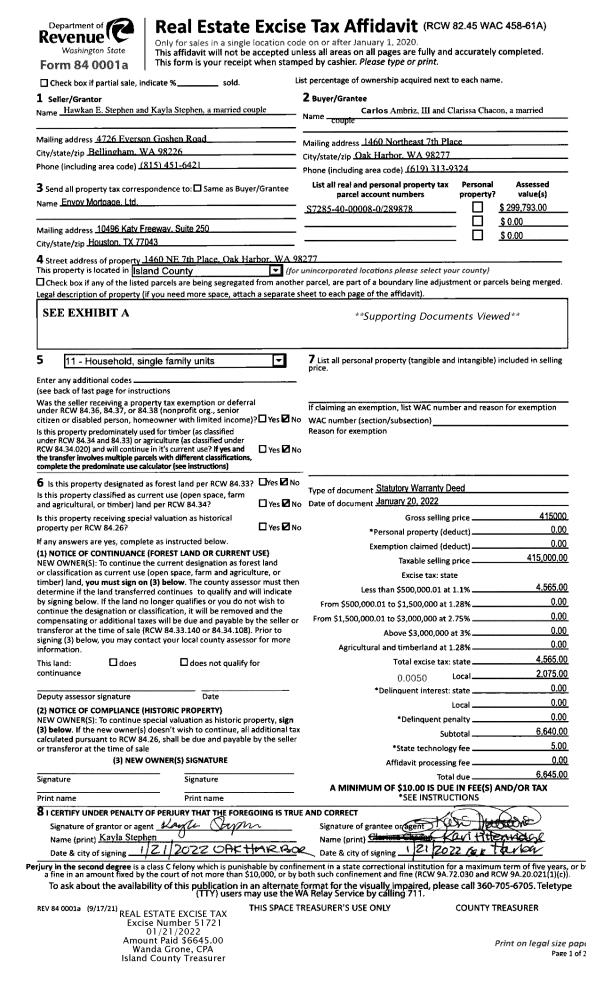
Property
Account |
| Property ID: | 668691 | Abbreviated Legal Description: | SECOND ST PROJECT LOT 1 |
| Geographic ID: | S8138-00-00001-0 | Agent Code: | |
| Type: | Real | | |
| Tax Area: | 700 - APPRAISER-S Whid Schl Dist, in town of Langley | Land Use Code | 69 |
| Open Space: | N | DFL | N |
| Historic Property: | N | Remodel Property: | N |
| Multi-Family Redevelopment: | N | | |
| Township: | | Section: | |
| Range: | |
Location |
| Address: | 199 SECOND ST LANGLEY, WA 98260 | Mapsco: | |
| Neighborhood: | 42cLG-north | Map ID: | 913 |
| Neighborhood CD: | 42cLGnorth |
Owner |
| Name: | THREE OH SEVEN LLC | Owner ID: | 257492 |
| Mailing Address: | PO BOX 307 LANGLEY, WA 98260-0307 | % Ownership: | 100.0000000000% |
| | | Exemptions: | |
Taxes and Assessment Details
Values
| (+) Improvement Homesite Value: | + | $0 | |
| (+) Improvement Non-Homesite Value: | + | $277,399 | |
| (+) Land Homesite Value: | + | $0 | |
| (+) Land Non-Homesite Value: | + | $99,960 | |
| (+) Curr Use (HS): | + | $0 | $0 |
| (+) Curr Use (NHS): | + | $0 | $0 |
| | | -------------------------- | |
| (=) Market Value: | = | $377,359 | |
| (–) Productivity Loss: | – | $0 | |
| | | -------------------------- | |
| (=) Subtotal: | = | $377,359 | |
| (+) Senior Appraised Value: | + | $0 | |
| (+) Non-Senior Appraised Value: | + | $377,359 | |
| | | -------------------------- | |
| (=) Total Appraised Value: | = | $377,359 | |
| (–) Senior Exemption Loss: | – | $0 | |
| (–) Exemption Loss: | – | $0 | |
| | | -------------------------- | |
| (=) Taxable Value: | = | $377,359 | |
Taxing Jurisdiction
| Owner: | THREE OH SEVEN LLC | | |
| % Ownership: | 100.0000000000% | | |
| Total Value: | $377,359 | | |
| Tax Area: | 700 - APPRAISER-S Whid Schl Dist, in town of Langley |
| CF | Conservation Futures | 0.0316035091 | $377,359 | $377,359 | $11.93 | | |
| LANG | City of Langley | 1.0093520762 | $377,359 | $377,359 | $380.89 | | |
| LANGBOND | City of Langley BOND | 1.0326110892 | $377,359 | $377,359 | $389.67 | | |
| FIRE3 | Fire & Rescue Dist #3 S Whidbey GEN | 1.2004855531 | $377,359 | $377,359 | $453.01 | | |
| HOBOND | Hospital BOND | 0.1910887512 | $377,359 | $377,359 | $72.11 | | |
| HOGEN | Hospital GEN | 0.3902502903 | $377,359 | $377,359 | $147.26 | | |
| CE | County Current Expense | 0.3708482477 | $377,359 | $377,359 | $139.94 | | |
| ISLANDEMS | Hospital GEN (EMS) | 0.5000000000 | $377,359 | $377,359 | $188.68 | | |
| LIB | Library Sno-Isle GEN | 0.3153421757 | $377,359 | $377,359 | $119.00 | | |
| PORTWHID | Port of S Whidbey GEN | 0.1094540357 | $377,359 | $377,359 | $41.30 | | |
| SCH206BOND | School 206 BOND | 0.3161759235 | $377,359 | $377,359 | $119.31 | | |
| SCH206MO | School 206 Enrichment | 0.4547169547 | $377,359 | $377,359 | $171.59 | | |
| ST | State School | 1.3035497053 | $377,359 | $377,359 | $491.91 | | |
| ST2 | State School Part 2 | 0.8169543533 | $377,359 | $377,359 | $308.29 | | |
| SWHIDPRBD | P & R S Whidbey BOND | 0.0152817568 | $377,359 | $377,359 | $5.77 | | |
| SWHIDPRBD2 | P & R S Whidbey BOND2 | 0.0138911264 | $377,359 | $377,359 | $5.24 | | |
| SWHIDPRMT | P & R S Whidbey GEN | 0.2053334452 | $377,359 | $377,359 | $77.48 | | |
| | Total Tax Rate: | 8.2769389934 | | | | | |
| | | | | Taxes w/Current Exemptions: | $3,123.38 | | |
| | | | | Taxes w/o Exemptions: | $3,123.38 | | |
Improvement / Building
| Improvement #1: | COMMERCIAL | State Code: | F1 | 2342.0 sqft | Value: | $277,399 |
| Bathrooms: | 0 | Bedrooms: | 0 | | Ceiling: | DRYWALL PAINTED | Exterior Wall/Cover: | CEMENT FIBER | | Floor Covering: | VINYL TILE | Floor Structure: | CONCRETE ON GROUND | | Foundation: | SLAB | Plumbing Fixture Cnt: | 1 | | Roof Structure/Cover: | METAL/OPEN WOOD |   |   |
|
| | Type | Description | Class CD | Sub Class CD | Year Built | Area |
| | BAS | BASE/MAIN FLOOR | 3 | 0 | 1991 | 1135.2 |
| | OP3 | OPEN PORCH W/ROOF | 3 | 0 | 1991 | 90.9 |
| | OWP | OPEN WOOD PORCH W/STEPS | 3 | 0 | 1991 | 32.0 |
| | UPS | UPPER STORY | 3 | 0 | 1991 | 1043.6 |
| | MZS | MEZZ STORAGE | 3 | 0 | 1991 | 163.2 |
Sketch
Property Image
Land
| 1 | 68 | COMMERCIAL RETAIL | 0.0270 | 1176.00 | 0.00 | 0.00 | 1.00 | $99,960 | $0 |
Roll Value History
| 2026 | N/A | N/A | N/A | N/A | N/A |
| 2025 | $277,399 | $99,960 | $0 | $377,359 | $377,359 |
| 2024 | $285,670 | $99,960 | $0 | $385,630 | $385,630 |
| 2023 | $296,086 | $99,960 | $0 | $396,046 | $396,046 |
| 2022 | $215,716 | $82,320 | $0 | $298,036 | $298,036 |
| 2021 | $215,518 | $82,320 | $0 | $297,838 | $297,838 |
| 2020 | $150,135 | $82,320 | $0 | $232,455 | $232,455 |
| 2019 | $160,255 | $82,320 | $0 | $242,575 | $242,575 |
| 2018 | $160,259 | $82,320 | $0 | $242,579 | $242,579 |
| 2017 | $160,258 | $58,800 | $0 | $219,058 | $219,058 |
| 2016 | $160,276 | $58,800 | $0 | $219,076 | $219,076 |
| 2015 | $166,501 | $52,920 | $0 | $219,421 | $219,421 |
| 2014 | $145,031 | $228,004 | $0 | $373,035 | $373,035 |
| 2013 | $145,031 | $228,004 | $0 | $373,035 | $373,035 |
| 2012 | $145,031 | $228,004 | $0 | $373,035 | $373,035 |
| 2011 | $145,031 | $228,004 | $0 | $373,035 | $373,035 |
| 2010 | $167,423 | $228,004 | $0 | $395,427 | $395,427 |
| 2009 | $171,206 | $275,318 | $0 | $446,524 | $446,524 |
| 2008 | $181,916 | $275,318 | $0 | $457,234 | $457,234 |
| 2007 | $187,969 | $275,318 | $0 | $463,287 | $463,287 |
Deed and Sales History
| 1 | 11/17/2011 | QCD | Quit Claim Deed | FELTON, EUGENE R | MITCHELL, WILLIAM P | | | $0.00 | 6189 | 4305099 |
| 2 | 10/20/2003 | WD | Warranty Deed | 199, SECOND S | FELTON, EUGENE R | | | $350,000.00 | 34838 | 4080646 |
| 3 | 04/01/1992 | WD | Warranty Deed | SCHELL, PAUL & | 199, SECOND S | | | $250,000.00 | 21356 | 92006510 |
| 4 | 07/01/1991 | OTHER | Other - Misc. Documents | Unknown | SCHELL, PAUL & | | | $0.00 | 64348 | 91008927 |
Payout Agreement
| No payout information available.. |