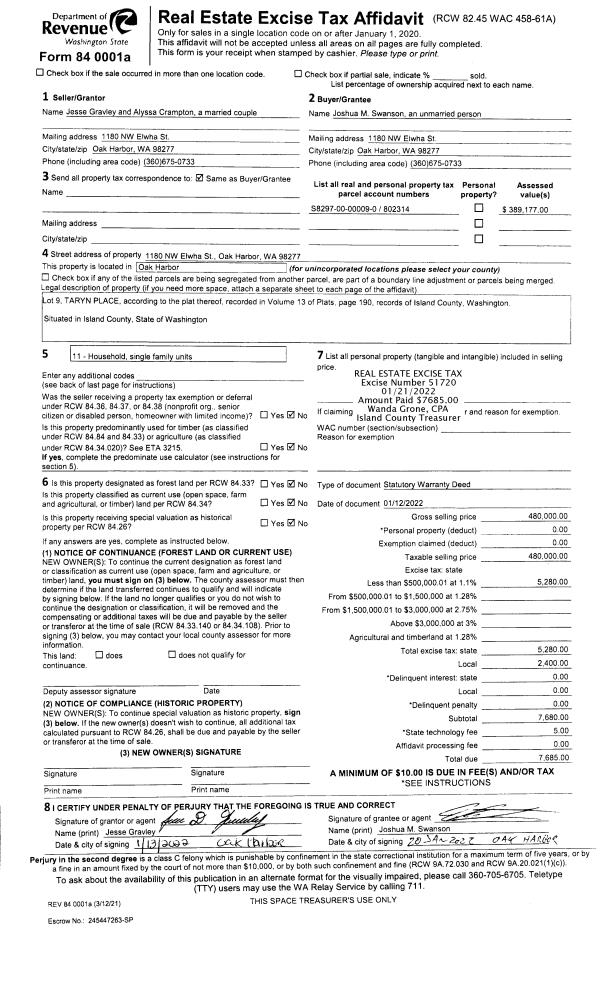
Property
Account |
| Property ID: | 668708 | Abbreviated Legal Description: | SECOND ST PROJECT LOT 2 |
| Geographic ID: | S8138-00-00002-0 | Agent Code: | |
| Type: | Real | | |
| Tax Area: | 700 - APPRAISER-S Whid Schl Dist, in town of Langley | Land Use Code | 69 |
| Open Space: | N | DFL | N |
| Historic Property: | N | Remodel Property: | N |
| Multi-Family Redevelopment: | N | | |
| Township: | | Section: | |
| Range: | |
Location |
| Address: | 195 SECOND ST LANGLEY, WA 98260 | Mapsco: | |
| Neighborhood: | 42cLG-north | Map ID: | 913 |
| Neighborhood CD: | 42cLGnorth |
Owner |
| Name: | SB COREY, LLC | Owner ID: | 279803 |
| Mailing Address: | RL NELSON LLC 4904 111TH AVE NE KIRKLAND, WA 98033 | % Ownership: | 100.0000000000% |
| | | Exemptions: | |
Taxes and Assessment Details
Values
| (+) Improvement Homesite Value: | + | $0 | |
| (+) Improvement Non-Homesite Value: | + | $326,135 | |
| (+) Land Homesite Value: | + | $0 | |
| (+) Land Non-Homesite Value: | + | $95,200 | |
| (+) Curr Use (HS): | + | $0 | $0 |
| (+) Curr Use (NHS): | + | $0 | $0 |
| | | -------------------------- | |
| (=) Market Value: | = | $421,335 | |
| (–) Productivity Loss: | – | $0 | |
| | | -------------------------- | |
| (=) Subtotal: | = | $421,335 | |
| (+) Senior Appraised Value: | + | $0 | |
| (+) Non-Senior Appraised Value: | + | $421,335 | |
| | | -------------------------- | |
| (=) Total Appraised Value: | = | $421,335 | |
| (–) Senior Exemption Loss: | – | $0 | |
| (–) Exemption Loss: | – | $0 | |
| | | -------------------------- | |
| (=) Taxable Value: | = | $421,335 | |
Taxing Jurisdiction
| Owner: | SB COREY, LLC | | |
| % Ownership: | 100.0000000000% | | |
| Total Value: | $421,335 | | |
| Tax Area: | 700 - APPRAISER-S Whid Schl Dist, in town of Langley |
| CF | Conservation Futures | 0.0316035091 | $421,335 | $421,335 | $13.32 | | |
| LANG | City of Langley | 1.0093520762 | $421,335 | $421,335 | $425.28 | | |
| LANGBOND | City of Langley BOND | 1.0326110892 | $421,335 | $421,335 | $435.08 | | |
| FIRE3 | Fire & Rescue Dist #3 S Whidbey GEN | 1.2004855531 | $421,335 | $421,335 | $505.81 | | |
| HOBOND | Hospital BOND | 0.1910887512 | $421,335 | $421,335 | $80.51 | | |
| HOGEN | Hospital GEN | 0.3902502903 | $421,335 | $421,335 | $164.43 | | |
| CE | County Current Expense | 0.3708482477 | $421,335 | $421,335 | $156.25 | | |
| ISLANDEMS | Hospital GEN (EMS) | 0.5000000000 | $421,335 | $421,335 | $210.67 | | |
| LIB | Library Sno-Isle GEN | 0.3153421757 | $421,335 | $421,335 | $132.86 | | |
| PORTWHID | Port of S Whidbey GEN | 0.1094540357 | $421,335 | $421,335 | $46.12 | | |
| SCH206BOND | School 206 BOND | 0.3161759235 | $421,335 | $421,335 | $133.22 | | |
| SCH206MO | School 206 Enrichment | 0.4547169547 | $421,335 | $421,335 | $191.59 | | |
| ST | State School | 1.3035497053 | $421,335 | $421,335 | $549.23 | | |
| ST2 | State School Part 2 | 0.8169543533 | $421,335 | $421,335 | $344.21 | | |
| SWHIDPRBD | P & R S Whidbey BOND | 0.0152817568 | $421,335 | $421,335 | $6.44 | | |
| SWHIDPRBD2 | P & R S Whidbey BOND2 | 0.0138911264 | $421,335 | $421,335 | $5.85 | | |
| SWHIDPRMT | P & R S Whidbey GEN | 0.2053334452 | $421,335 | $421,335 | $86.51 | | |
| | Total Tax Rate: | 8.2769389934 | | | | | |
| | | | | Taxes w/Current Exemptions: | $3,487.38 | | |
| | | | | Taxes w/o Exemptions: | $3,487.38 | | |
Improvement / Building
| Improvement #1: | COMMERCIAL | State Code: | F1 | 2240.0 sqft | Value: | $326,135 |
| Bathrooms: | 0 | Bedrooms: | 0 | | Ceiling: | DRYWALL PAINTED | Exterior Wall/Cover: | PLYWD/WD OR ST STUDS | | Floor Covering: | CARPET 100% | Floor Structure: | CONCRETE ON GROUND | | Foundation: | CONCRETE | Heating: | B/B HOT WATER-GAS | | Interior Finish: | OFFICE | Plumbing Fixture Cnt: | 1 | | Roof Structure/Cover: | BEAM BUILT-UP ROCK |   |   |
|
| | Type | Description | Class CD | Sub Class CD | Year Built | Area |
| | BAS | BASE/MAIN FLOOR | 3 | 0 | 1991 | 2240.0 |
| | oPV1 | PV/ASPH 2" | 3 | 0 | 1991 | 0.0 |
Sketch
Property Image
Land
| 1 | 68 | COMMERCIAL RETAIL | 0.0257 | 1120.00 | 0.00 | 0.00 | 1.00 | $95,200 | $0 |
Roll Value History
| 2026 | N/A | N/A | N/A | N/A | N/A |
| 2025 | $326,135 | $95,200 | $0 | $421,335 | $421,335 |
| 2024 | $335,856 | $95,200 | $0 | $431,056 | $431,056 |
| 2023 | $345,576 | $95,200 | $0 | $440,776 | $440,776 |
| 2022 | $275,269 | $78,400 | $0 | $353,669 | $353,669 |
| 2021 | $275,269 | $78,400 | $0 | $353,669 | $353,669 |
| 2020 | $275,269 | $78,400 | $0 | $353,669 | $353,669 |
| 2019 | $264,236 | $78,400 | $0 | $342,636 | $342,636 |
| 2018 | $264,236 | $78,400 | $0 | $342,636 | $342,636 |
| 2017 | $264,236 | $56,000 | $0 | $320,236 | $320,236 |
| 2016 | $189,982 | $56,000 | $0 | $245,982 | $245,982 |
| 2015 | $195,474 | $50,400 | $0 | $245,874 | $245,874 |
| 2014 | $174,869 | $224,268 | $0 | $399,137 | $399,137 |
| 2013 | $174,869 | $224,268 | $0 | $399,137 | $399,137 |
| 2012 | $174,869 | $224,268 | $0 | $399,137 | $399,137 |
| 2011 | $174,869 | $224,268 | $0 | $399,137 | $399,137 |
| 2010 | $176,079 | $224,268 | $0 | $400,347 | $400,347 |
| 2009 | $180,889 | $270,807 | $0 | $451,696 | $451,696 |
| 2008 | $183,322 | $270,807 | $0 | $454,129 | $454,129 |
| 2007 | $190,585 | $270,807 | $0 | $461,392 | $461,392 |
Deed and Sales History
| 1 | 05/08/2017 | WD | Warranty Deed | PIPER, GARY A | SB COREY, LLC | | | $447,000.00 | 29201 | 4422131 |
| 2 | 10/15/2005 | WD | Warranty Deed | SCHELL, PAUL/PAMELA | PIPER, GARY A | | | $250,000.00 | 55431 | 4152320 |
| 3 | 07/01/1991 | OTHER | Other - Misc. Documents | Unknown | SCHELL, PAUL/PAMELA | | | $0.00 | 64348 | 91008927 |
Payout Agreement
| No payout information available.. |