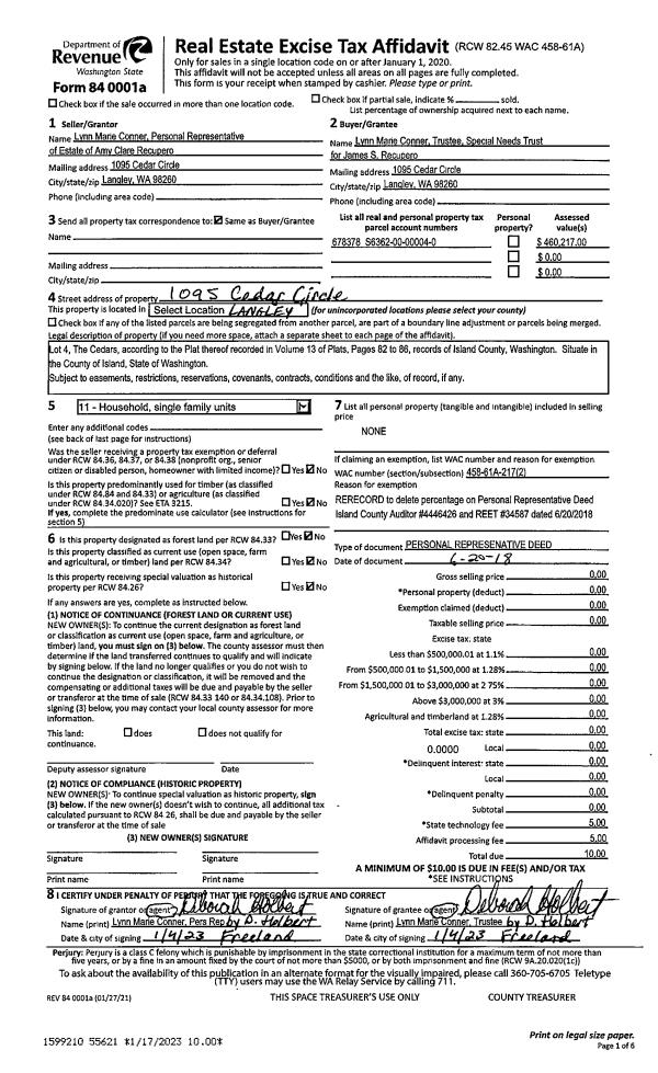
Property
Account |
| Property ID: | 669155 | Abbreviated Legal Description: | CAMANO HILLS #1 - PRD LOT 15 |
| Geographic ID: | S6263-00-00015-0 | Agent Code: | |
| Type: | Real | | |
| Tax Area: | 510 - APPRAISER-Stan/Cam Schl Dist, improved & 1 acre or less | Land Use Code | 11 |
| Open Space: | N | DFL | N |
| Historic Property: | N | Remodel Property: | N |
| Multi-Family Redevelopment: | N | | |
| Township: | | Section: | |
| Range: | |
Location |
| Address: | 136 GLACIER PEAK DR CAMANO ISLAND, WA 98282 | Mapsco: | |
| Neighborhood: | Cycle 5 | Map ID: | 452 |
| Neighborhood CD: | 5 |
Owner |
| Name: | ANDELIN, GARY R | Owner ID: | 273540 |
| Mailing Address: | 136 GLACIER PEAK DR CAMANO ISLAND, WA 98282 | % Ownership: | 100.0000000000% |
| | | Exemptions: | |
Taxes and Assessment Details
Values
| (+) Improvement Homesite Value: | + | $0 | |
| (+) Improvement Non-Homesite Value: | + | $718,633 | |
| (+) Land Homesite Value: | + | $0 | |
| (+) Land Non-Homesite Value: | + | $345,000 | |
| (+) Curr Use (HS): | + | $0 | $0 |
| (+) Curr Use (NHS): | + | $0 | $0 |
| | | -------------------------- | |
| (=) Market Value: | = | $1,063,633 | |
| (–) Productivity Loss: | – | $0 | |
| | | -------------------------- | |
| (=) Subtotal: | = | $1,063,633 | |
| (+) Senior Appraised Value: | + | $0 | |
| (+) Non-Senior Appraised Value: | + | $1,063,633 | |
| | | -------------------------- | |
| (=) Total Appraised Value: | = | $1,063,633 | |
| (–) Senior Exemption Loss: | – | $0 | |
| (–) Exemption Loss: | – | $0 | |
| | | -------------------------- | |
| (=) Taxable Value: | = | $1,063,633 | |
Taxing Jurisdiction
| Owner: | ANDELIN, GARY R | | |
| % Ownership: | 100.0000000000% | | |
| Total Value: | $1,063,633 | | |
| Tax Area: | 510 - APPRAISER-Stan/Cam Schl Dist, improved & 1 acre or less |
| CF | Conservation Futures | 0.0316035091 | $1,063,633 | $1,063,633 | $33.61 | | |
| EMS1 | Fire & Rescue Dist #1 Camano GEN (EMS) | 0.3677864386 | $1,063,633 | $1,063,633 | $391.19 | | |
| FIRE1 | Fire & Rescue Dist #1 Camano GEN | 1.2502910536 | $1,063,633 | $1,063,633 | $1,329.85 | | |
| FIRE1BOND | Fire & Rescue Dist #1 Camano BOND | 0.1570001679 | $1,063,633 | $1,063,633 | $166.99 | | |
| CE | County Current Expense | 0.3708482477 | $1,063,633 | $1,063,633 | $394.45 | | |
| CR | County Roads | 0.4584763726 | $1,063,633 | $1,063,633 | $487.65 | | |
| LCIB | Library Sno-Isle BOND (Camano Island) | 0.0396325772 | $1,063,633 | $1,063,633 | $42.15 | | |
| LIB | Library Sno-Isle GEN | 0.3153421757 | $1,063,633 | $1,063,633 | $335.41 | | |
| SCH205_401 | School 205-401 Enrichment | 1.2698420524 | $1,063,633 | $1,063,633 | $1,350.65 | | |
| SCH205BOND | School 205-401 BOND | 0.9396497583 | $1,063,633 | $1,063,633 | $999.44 | | |
| ST | State School | 1.3035497053 | $1,063,633 | $1,063,633 | $1,386.50 | | |
| ST2 | State School Part 2 | 0.8169543533 | $1,063,633 | $1,063,633 | $868.94 | | |
| | Total Tax Rate: | 7.3209764117 | | | | | |
| | | | | Taxes w/Current Exemptions: | $7,786.83 | | |
| | | | | Taxes w/o Exemptions: | $7,786.83 | | |
Improvement / Building
| Improvement #1: | RESIDENTIAL | State Code: | Y | 4282.1 sqft | Value: | $718,633 |
| Bathrooms: | 4 | Bedrooms: | 4 | | Ceiling: | DRYWALL PAINTED | Cooling: | HEAT PUMP/CONV/V | | Exterior Wall/Cover: | WOOD SIDING | Floor Covering: | HARDWOOD/CARP 60-40 | | Floor Structure: | WOOD W/SUBFLOOR | Foundation: | CONCRETE | | Interior Finish: | DRYWALL PAINT | Plumbing Fixture Cnt: | 19 | | Roof Slope: | 8" IN 12" | Roof Structure/Cover: | CJ ASPHALT |
|
| | Type | Description | Class CD | Sub Class CD | Year Built | Area |
| | BAS | BASE/MAIN FLOOR | 5 | 0 | 1997 | 2045.4 |
| | OP1 | OPEN PORCH SLAB | 5 | 0 | 1997 | 768.0 |
| | OP4 | OPEN PORCH W/CEILING-ROOF | 5 | 0 | 1997 | 43.1 |
| | AGR | ATTACHED GARAGE | 5 | 0 | 1997 | 389.9 |
| | BIG | BUILT IN GARAGE | 5 | 0 | 1997 | 590.2 |
| | UPS | UPPER STORY | 5 | 0 | 1997 | 2236.7 |
Sketch
Property Image
Land
| 1 | 16 | AC (00.51-01.00) | 0.0000 | 0.00 | 0.00 | 0.00 | 1.00 | $345,000 | $0 |
Roll Value History
| 2026 | N/A | N/A | N/A | N/A | N/A |
| 2025 | $718,633 | $345,000 | $0 | $1,063,633 | $1,063,633 |
| 2024 | $727,701 | $340,000 | $0 | $1,067,701 | $1,067,701 |
| 2023 | $736,769 | $340,000 | $0 | $1,076,769 | $1,076,769 |
| 2022 | $675,349 | $320,000 | $0 | $995,349 | $995,349 |
| 2021 | $489,992 | $210,000 | $0 | $699,992 | $699,992 |
| 2020 | $478,355 | $200,000 | $0 | $678,355 | $678,355 |
| 2019 | $420,041 | $230,000 | $0 | $650,041 | $650,041 |
| 2018 | $421,383 | $210,000 | $0 | $631,383 | $631,383 |
| 2017 | $424,067 | $200,000 | $0 | $624,067 | $624,067 |
| 2016 | $429,435 | $150,000 | $0 | $579,435 | $579,435 |
| 2015 | $552,461 | $140,000 | $0 | $692,461 | $692,461 |
| 2014 | $559,124 | $140,000 | $0 | $699,124 | $699,124 |
| 2013 | $565,789 | $140,000 | $0 | $705,789 | $705,789 |
| 2012 | $572,452 | $140,000 | $0 | $712,452 | $712,452 |
| 2011 | $579,115 | $175,000 | $0 | $754,115 | $754,115 |
| 2010 | $609,600 | $175,000 | $0 | $784,600 | $784,600 |
| 2009 | $663,499 | $205,000 | $0 | $868,499 | $868,499 |
| 2008 | $693,427 | $215,000 | $0 | $908,427 | $908,427 |
| 2007 | $701,978 | $180,480 | $0 | $882,458 | $882,458 |
Deed and Sales History
| 1 | 01/26/2016 | ESTSEPPROP | Establish Separate Property | ANDELIN, GARY R | ANDELIN, GARY R | | | $0.00 | 22961 | 4393220 |
| 2 | 01/22/2016 | SPWARDEED | Special Warranty Deed | BANK OF NEW MELLON | ANDELIN, GARY R | | | $501,366.00 | 22960 | 4393219 |
| 3 | 08/12/2015 | TRUSTEED | Trustee's Deed | NASH, TROY | BANK OF NEW MELLON | | | $0.00 | 20976 | 4384299 |
| 4 | 09/17/2004 | WD | Warranty Deed | VERBARENDSE, MARK & | NASH, TROY | | | $650,000.00 | 44382 | 4113205 |
| 5 | 02/01/1997 | WD | Warranty Deed | HOLBECK, LIMITED P | VERBARENDSE, MARK & | | | $85,000.00 | 70646 | 97002940 |
| 6 | 01/01/1900 | OTHER | Other - Misc. Documents | Unknown | HOLBECK, LIMITED P | | | $0.00 | 4475 | 90014757 |
Payout Agreement
| No payout information available.. |