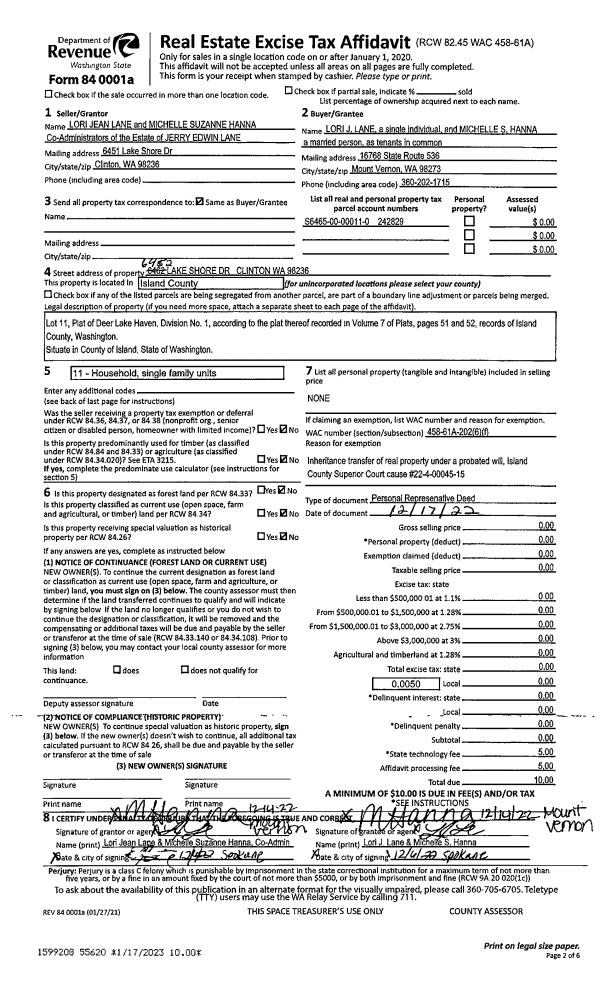
Property
Account |
| Property ID: | 669208 | Abbreviated Legal Description: | CAMANO HILLS #1 - PRD LOT 20 |
| Geographic ID: | S6263-00-00020-0 | Agent Code: | |
| Type: | Real | | |
| Tax Area: | 512 - APPRAISER-Stan/Cam Schl Dist, improved, greater than 1 acre | Land Use Code | 11 |
| Open Space: | N | DFL | N |
| Historic Property: | N | Remodel Property: | N |
| Multi-Family Redevelopment: | N | | |
| Township: | | Section: | |
| Range: | |
Location |
| Address: | 135 GLACIER PEAK DR CAMANO ISLAND, WA 98282 | Mapsco: | |
| Neighborhood: | Cycle 5 | Map ID: | 452 |
| Neighborhood CD: | 5 |
Owner |
| Name: | KEETON, WILLIAM G | Owner ID: | 292101 |
| Mailing Address: | DARLA KEETON 135 GLACIER PEAK DR CAMANO ISLAND, WA 98282 | % Ownership: | 100.0000000000% |
| | | Exemptions: | |
Taxes and Assessment Details
Values
| (+) Improvement Homesite Value: | + | $0 | |
| (+) Improvement Non-Homesite Value: | + | $626,737 | |
| (+) Land Homesite Value: | + | $0 | |
| (+) Land Non-Homesite Value: | + | $465,000 | |
| (+) Curr Use (HS): | + | $0 | $0 |
| (+) Curr Use (NHS): | + | $0 | $0 |
| | | -------------------------- | |
| (=) Market Value: | = | $1,091,737 | |
| (–) Productivity Loss: | – | $0 | |
| | | -------------------------- | |
| (=) Subtotal: | = | $1,091,737 | |
| (+) Senior Appraised Value: | + | $0 | |
| (+) Non-Senior Appraised Value: | + | $1,091,737 | |
| | | -------------------------- | |
| (=) Total Appraised Value: | = | $1,091,737 | |
| (–) Senior Exemption Loss: | – | $0 | |
| (–) Exemption Loss: | – | $0 | |
| | | -------------------------- | |
| (=) Taxable Value: | = | $1,091,737 | |
Taxing Jurisdiction
| Owner: | KEETON, WILLIAM G | | |
| % Ownership: | 100.0000000000% | | |
| Total Value: | $1,091,737 | | |
| Tax Area: | 512 - APPRAISER-Stan/Cam Schl Dist, improved, greater than 1 acre |
| CF | Conservation Futures | 0.0316035091 | $1,091,737 | $1,091,737 | $34.50 | | |
| EMS1 | Fire & Rescue Dist #1 Camano GEN (EMS) | 0.3677864386 | $1,091,737 | $1,091,737 | $401.53 | | |
| FIRE1 | Fire & Rescue Dist #1 Camano GEN | 1.2502910536 | $1,091,737 | $1,091,737 | $1,364.99 | | |
| FIRE1BOND | Fire & Rescue Dist #1 Camano BOND | 0.1570001679 | $1,091,737 | $1,091,737 | $171.40 | | |
| CE | County Current Expense | 0.3708482477 | $1,091,737 | $1,091,737 | $404.87 | | |
| CR | County Roads | 0.4584763726 | $1,091,737 | $1,091,737 | $500.54 | | |
| LCIB | Library Sno-Isle BOND (Camano Island) | 0.0396325772 | $1,091,737 | $1,091,737 | $43.27 | | |
| LIB | Library Sno-Isle GEN | 0.3153421757 | $1,091,737 | $1,091,737 | $344.27 | | |
| SCH205_401 | School 205-401 Enrichment | 1.2698420524 | $1,091,737 | $1,091,737 | $1,386.33 | | |
| SCH205BOND | School 205-401 BOND | 0.9396497583 | $1,091,737 | $1,091,737 | $1,025.85 | | |
| ST | State School | 1.3035497053 | $1,091,737 | $1,091,737 | $1,423.13 | | |
| ST2 | State School Part 2 | 0.8169543533 | $1,091,737 | $1,091,737 | $891.90 | | |
| | Total Tax Rate: | 7.3209764117 | | | | | |
| | | | | Taxes w/Current Exemptions: | $7,992.58 | | |
| | | | | Taxes w/o Exemptions: | $7,992.58 | | |
Improvement / Building
| Improvement #1: | RESIDENTIAL | State Code: | Y | 3689.2 sqft | Value: | $626,737 |
| Bathrooms: | 2.5 | Bedrooms: | 3 | | Ceiling: | DRYWALL PAINTED | Exterior Wall/Cover: | WOOD SIDING | | Floor Covering: | HARDWOOD/CARP 20-80 | Floor Structure: | WOOD W/SUBFLOOR | | Foundation: | CONCRETE | Heating: | FHA GAS | | Interior Finish: | DRYWALL PAINT | Plumbing Fixture Cnt: | 15 | | Roof Slope: | 5" IN 12" | Roof Structure/Cover: | CJ ASPHALT |
|
| | Type | Description | Class CD | Sub Class CD | Year Built | Area |
| | BAS | BASE/MAIN FLOOR | 4 | 0 | 1995 | 3377.2 |
| | AGR | ATTACHED GARAGE | 4 | 0 | 1995 | 912.9 |
| | OWP | OPEN WOOD PORCH W/STEPS | 4 | 0 | 1995 | 456.3 |
| | OWP | OPEN WOOD PORCH W/STEPS | 4 | 0 | 1995 | 128.0 |
| | OP4 | OPEN PORCH W/CEILING-ROOF | 4 | 0 | 1995 | 46.0 |
| | DWN | DOWNSTAIRS LIVING AREA | 4 | 0 | 1995 | 312.0 |
Sketch
Property Image
Land
| 1 | 17 | AC (01.01-02.00) | 0.0000 | 0.00 | 0.00 | 0.00 | 1.00 | $465,000 | $0 |
Roll Value History
| 2026 | N/A | N/A | N/A | N/A | N/A |
| 2025 | $626,737 | $465,000 | $0 | $1,091,737 | $1,091,737 |
| 2024 | $634,266 | $460,000 | $0 | $1,094,266 | $1,094,266 |
| 2023 | $641,795 | $400,000 | $0 | $1,041,795 | $1,041,795 |
| 2022 | $587,994 | $365,000 | $0 | $952,994 | $952,994 |
| 2021 | $481,645 | $260,000 | $0 | $741,645 | $741,645 |
| 2020 | $470,397 | $240,000 | $0 | $710,397 | $710,397 |
| 2019 | $360,139 | $300,000 | $0 | $660,139 | $660,139 |
| 2018 | $361,219 | $250,000 | $0 | $611,219 | $611,219 |
| 2017 | $363,314 | $200,000 | $0 | $563,314 | $563,314 |
| 2016 | $367,639 | $150,000 | $0 | $517,639 | $517,639 |
| 2015 | $387,415 | $140,000 | $0 | $527,415 | $527,415 |
| 2014 | $392,206 | $140,000 | $0 | $532,206 | $532,206 |
| 2013 | $396,994 | $140,000 | $0 | $536,994 | $536,994 |
| 2012 | $401,783 | $140,000 | $0 | $541,783 | $541,783 |
| 2011 | $406,573 | $175,000 | $0 | $581,573 | $581,573 |
| 2010 | $425,434 | $175,000 | $0 | $600,434 | $600,434 |
| 2009 | $391,047 | $205,000 | $0 | $596,047 | $596,047 |
| 2008 | $397,010 | $215,000 | $0 | $612,010 | $612,010 |
| 2007 | $402,933 | $180,480 | $0 | $583,413 | $583,413 |
Deed and Sales History
| 1 | 10/01/2019 | WD | Warranty Deed | ANDREWS, DONALD R / JOANN D | KEETON, WILLIAM G | | | $695,000.00 | 40556 | 4472731 |
| 2 | 12/01/1995 | WD | Warranty Deed | BEVAN, DAVID K | ANDREWS, DONALD R | | | $335,000.00 | 54324 | 95019975 |
| 3 | 02/01/1994 | WD | Warranty Deed | HOLBECK, LIMITED P | BEVAN, DAVID K | | | $89,900.00 | 45062 | 94025795 |
| 4 | 01/01/1900 | OTHER | Other - Misc. Documents | Unknown | HOLBECK, LIMITED P | | | $0.00 | 4475 | 90014757 |
Payout Agreement
| No payout information available.. |