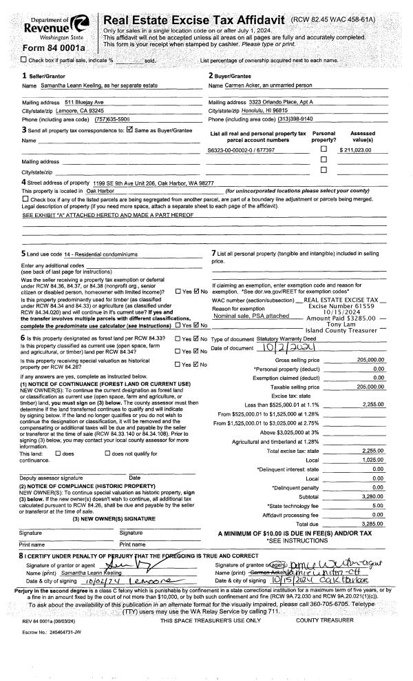
Property
Account |
| Property ID: | 669388 | Abbreviated Legal Description: | CAMANO HILLS #1 - PRD LOT 34 |
| Geographic ID: | S6263-00-00034-0 | Agent Code: | |
| Type: | Real | | |
| Tax Area: | 510 - APPRAISER-Stan/Cam Schl Dist, improved & 1 acre or less | Land Use Code | 11 |
| Open Space: | N | DFL | N |
| Historic Property: | N | Remodel Property: | N |
| Multi-Family Redevelopment: | N | | |
| Township: | | Section: | |
| Range: | |
Location |
| Address: | 191 GLACIER PEAK DR CAMANO ISLAND, WA 98282 | Mapsco: | |
| Neighborhood: | Cycle 5 | Map ID: | 452 |
| Neighborhood CD: | 5 |
Owner |
| Name: | CUCHNA, TIMOTHY D | Owner ID: | 315653 |
| Mailing Address: | CYNTHIA L LAHTI PO BOX 817 STANWOOD, WA 98292 | % Ownership: | 100.0000000000% |
| | | Exemptions: | |
Taxes and Assessment Details
Values
| (+) Improvement Homesite Value: | + | $0 | |
| (+) Improvement Non-Homesite Value: | + | $783,223 | |
| (+) Land Homesite Value: | + | $0 | |
| (+) Land Non-Homesite Value: | + | $465,000 | |
| (+) Curr Use (HS): | + | $0 | $0 |
| (+) Curr Use (NHS): | + | $0 | $0 |
| | | -------------------------- | |
| (=) Market Value: | = | $1,248,223 | |
| (–) Productivity Loss: | – | $0 | |
| | | -------------------------- | |
| (=) Subtotal: | = | $1,248,223 | |
| (+) Senior Appraised Value: | + | $0 | |
| (+) Non-Senior Appraised Value: | + | $1,248,223 | |
| | | -------------------------- | |
| (=) Total Appraised Value: | = | $1,248,223 | |
| (–) Senior Exemption Loss: | – | $0 | |
| (–) Exemption Loss: | – | $0 | |
| | | -------------------------- | |
| (=) Taxable Value: | = | $1,248,223 | |
Taxing Jurisdiction
| Owner: | CUCHNA, TIMOTHY D | | |
| % Ownership: | 100.0000000000% | | |
| Total Value: | $1,248,223 | | |
| Tax Area: | 510 - APPRAISER-Stan/Cam Schl Dist, improved & 1 acre or less |
| CF | Conservation Futures | 0.0316035091 | $1,248,223 | $1,248,223 | $39.45 | | |
| EMS1 | Fire & Rescue Dist #1 Camano GEN (EMS) | 0.3677864386 | $1,248,223 | $1,248,223 | $459.08 | | |
| FIRE1 | Fire & Rescue Dist #1 Camano GEN | 1.2502910536 | $1,248,223 | $1,248,223 | $1,560.64 | | |
| FIRE1BOND | Fire & Rescue Dist #1 Camano BOND | 0.1570001679 | $1,248,223 | $1,248,223 | $195.97 | | |
| CE | County Current Expense | 0.3708482477 | $1,248,223 | $1,248,223 | $462.90 | | |
| CR | County Roads | 0.4584763726 | $1,248,223 | $1,248,223 | $572.28 | | |
| LCIB | Library Sno-Isle BOND (Camano Island) | 0.0396325772 | $1,248,223 | $1,248,223 | $49.47 | | |
| LIB | Library Sno-Isle GEN | 0.3153421757 | $1,248,223 | $1,248,223 | $393.62 | | |
| SCH205_401 | School 205-401 Enrichment | 1.2698420524 | $1,248,223 | $1,248,223 | $1,585.05 | | |
| SCH205BOND | School 205-401 BOND | 0.9396497583 | $1,248,223 | $1,248,223 | $1,172.89 | | |
| ST | State School | 1.3035497053 | $1,248,223 | $1,248,223 | $1,627.12 | | |
| ST2 | State School Part 2 | 0.8169543533 | $1,248,223 | $1,248,223 | $1,019.74 | | |
| | Total Tax Rate: | 7.3209764117 | | | | | |
| | | | | Taxes w/Current Exemptions: | $9,138.21 | | |
| | | | | Taxes w/o Exemptions: | $9,138.21 | | |
Improvement / Building
| Improvement #1: | RESIDENTIAL | State Code: | Y | 4944.0 sqft | Value: | $783,223 |
| Bathrooms: | 2.5 | Bedrooms: | 3 | | Ceiling: | DRYWALL PAINTED | Exterior Wall/Cover: | STUCCO | | Floor Covering: | HARDWOOD/CARP 20-80 | Floor Structure: | WOOD W/SUBFLOOR | | Foundation: | CONCRETE | Heating: | FHA GAS | | Interior Finish: | DRYWALL PAINT | Plumbing Fixture Cnt: | 15 | | Roof Slope: | 5" IN 12" | Roof Structure/Cover: | CJ ASPHALT |
|
| | Type | Description | Class CD | Sub Class CD | Year Built | Area |
| | BAS | BASE/MAIN FLOOR | 5 | 0 | 1998 | 2688.0 |
| | OP3 | OPEN PORCH W/ROOF | 5 | 0 | 1998 | 464.0 |
| | OP4 | OPEN PORCH W/CEILING-ROOF | 5 | 0 | 1998 | 520.0 |
| | AGR | ATTACHED GARAGE | 5 | 0 | 1998 | 576.0 |
| | UTY | STORAGE/UTILITY | 5 | 0 | 1998 | 330.0 |
| | OWC | OPEN WOOD PORCH W/STEPS/ROOF/C | 5 | 0 | 1998 | 464.5 |
| | DWN | DOWNSTAIRS LIVING AREA | 5 | 0 | 1998 | 2256.0 |
Sketch
Property Image
Land
| 1 | 16 | AC (00.51-01.00) | 0.0000 | 0.00 | 0.00 | 0.00 | 1.00 | $465,000 | $0 |
Roll Value History
| 2026 | N/A | N/A | N/A | N/A | N/A |
| 2025 | $783,223 | $465,000 | $0 | $1,248,223 | $1,248,223 |
| 2024 | $792,410 | $460,000 | $0 | $1,252,410 | $1,252,410 |
| 2023 | $801,599 | $400,000 | $0 | $1,201,599 | $1,201,599 |
| 2022 | $734,197 | $365,000 | $0 | $1,099,197 | $1,099,197 |
| 2021 | $602,253 | $260,000 | $0 | $862,253 | $862,253 |
| 2020 | $588,374 | $240,000 | $0 | $828,374 | $828,374 |
| 2019 | $536,044 | $300,000 | $0 | $836,044 | $836,044 |
| 2018 | $537,617 | $250,000 | $0 | $787,617 | $787,617 |
| 2017 | $540,760 | $200,000 | $0 | $740,760 | $740,760 |
| 2016 | $547,049 | $150,000 | $0 | $697,049 | $697,049 |
| 2015 | $563,916 | $140,000 | $0 | $703,916 | $703,916 |
| 2014 | $570,596 | $140,000 | $0 | $710,596 | $710,596 |
| 2013 | $577,276 | $140,000 | $0 | $717,276 | $717,276 |
| 2012 | $583,957 | $140,000 | $0 | $723,957 | $723,957 |
| 2011 | $590,637 | $175,000 | $0 | $765,637 | $765,637 |
| 2010 | $639,042 | $175,000 | $0 | $814,042 | $814,042 |
| 2009 | $378,842 | $205,000 | $0 | $583,842 | $583,842 |
| 2008 | $384,105 | $215,000 | $0 | $599,105 | $599,105 |
| 2007 | $389,483 | $180,480 | $0 | $569,963 | $569,963 |
Deed and Sales History
| 1 | 02/27/2025 | WD | Warranty Deed | ROBERTS, TERRENCE W | CUCHNA, TIMOTHY D | | | $1,415,000.00 | 62716 | 4582856 |
| 2 | 05/31/2011 | QCD | Quit Claim Deed | ROBERTS TRUSTEE, TERRENCE W | ROBERTS, TERRENCE W | | | $0.00 | 4736 | 4296975 |
| 3 | 11/26/2007 | WD | Warranty Deed | ROBERTS, NANCY CLAIRE | ROBERTS TRUSTEE, TERRENCE W | | | $0.00 | 73992 | 4217857 |
| 4 | 06/18/2002 | WD | Warranty Deed | BUSBY, JOE C | ROBERTS, NANCY CLAIRE | | | $429,000.00 | 22437 | 4023878 |
| 5 | 05/17/2001 | WD | Warranty Deed | JOHAN FAMILY LLP, | BUSBY, JOE C | | | $429,000.00 | 11844 | 20033132 |
| 6 | 05/14/1999 | QCD | Quit Claim Deed | BERG, HANS K | JOHAN FAMILY LLP, | | | $0.00 | 91975 | 99012527 |
| 7 | 11/01/1997 | WD | Warranty Deed | HOLBECK, LIMITED P | BERG, HANS K | | | $112,000.00 | 74189 | 97020058 |
| 8 | 01/01/1900 | OTHER | Other - Misc. Documents | Unknown | HOLBECK, LIMITED P | | | $0.00 | 4475 | 90014757 |
Payout Agreement
| No payout information available.. |