Property
Account |
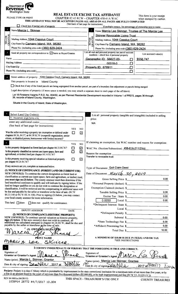
| Property ID: | 671240 | Abbreviated Legal Description: | LOT 1 SP 328/23 AFN 4566992 |
| Geographic ID: | R32921-230-0350 | Agent Code: | |
| Type: | Real | | |
| Tax Area: | 712 - APPRAISER-S Whid Schl Dist, outside Langley, improved, greater than 1 acre | Land Use Code | 11 |
| Open Space: | N | DFL | N |
| Historic Property: | N | Remodel Property: | N |
| Multi-Family Redevelopment: | N | | |
| Township: | 29 | Section: | 21 |
| Range: | R3 |
Location |
| Address: | | Mapsco: | |
| Neighborhood: | Cycle 4 | Map ID: | 795 |
| Neighborhood CD: | 4 |
Owner |
| Name: | JOHNSON JTWROS, LYDIA | Owner ID: | 315589 |
| Mailing Address: | ALISON JOHNSON JTWROS 6240 KIRKHILL RD CLINTON, WA 98236 | % Ownership: | 100.0000000000% |
| | | Exemptions: | |
Taxes and Assessment Details
Values
| (+) Improvement Homesite Value: | + | $0 | |
| (+) Improvement Non-Homesite Value: | + | $282,691 | |
| (+) Land Homesite Value: | + | $0 | |
| (+) Land Non-Homesite Value: | + | $380,000 | |
| (+) Curr Use (HS): | + | $0 | $0 |
| (+) Curr Use (NHS): | + | $0 | $0 |
| | | -------------------------- | |
| (=) Market Value: | = | $662,691 | |
| (–) Productivity Loss: | – | $0 | |
| | | -------------------------- | |
| (=) Subtotal: | = | $662,691 | |
| (+) Senior Appraised Value: | + | $0 | |
| (+) Non-Senior Appraised Value: | + | $662,691 | |
| | | -------------------------- | |
| (=) Total Appraised Value: | = | $662,691 | |
| (–) Senior Exemption Loss: | – | $0 | |
| (–) Exemption Loss: | – | $0 | |
| | | -------------------------- | |
| (=) Taxable Value: | = | $662,691 | |
Taxing Jurisdiction
| Owner: | JOHNSON JTWROS, LYDIA | | |
| % Ownership: | 100.0000000000% | | |
| Total Value: | $662,691 | | |
| Tax Area: | 712 - APPRAISER-S Whid Schl Dist, outside Langley, improved, greater than 1 acre |
| CF | Conservation Futures | 0.0316035091 | $662,691 | $662,691 | $20.94 | | |
| FIRE3 | Fire & Rescue Dist #3 S Whidbey GEN | 1.2004855531 | $662,691 | $662,691 | $795.55 | | |
| HOBOND | Hospital BOND | 0.1910887512 | $662,691 | $662,691 | $126.63 | | |
| HOGEN | Hospital GEN | 0.3902502903 | $662,691 | $662,691 | $258.62 | | |
| CE | County Current Expense | 0.3708482477 | $662,691 | $662,691 | $245.76 | | |
| CR | County Roads | 0.4584763726 | $662,691 | $662,691 | $303.83 | | |
| ISLANDEMS | Hospital GEN (EMS) | 0.5000000000 | $662,691 | $662,691 | $331.35 | | |
| LIB | Library Sno-Isle GEN | 0.3153421757 | $662,691 | $662,691 | $208.97 | | |
| PORTWHID | Port of S Whidbey GEN | 0.1094540357 | $662,691 | $662,691 | $72.53 | | |
| SCH206BOND | School 206 BOND | 0.3161759235 | $662,691 | $662,691 | $209.53 | | |
| SCH206MO | School 206 Enrichment | 0.4547169547 | $662,691 | $662,691 | $301.34 | | |
| ST | State School | 1.3035497053 | $662,691 | $662,691 | $863.85 | | |
| ST2 | State School Part 2 | 0.8169543533 | $662,691 | $662,691 | $541.39 | | |
| SWHIDPRBD | P & R S Whidbey BOND | 0.0152817568 | $662,691 | $662,691 | $10.13 | | |
| SWHIDPRBD2 | P & R S Whidbey BOND2 | 0.0138911264 | $662,691 | $662,691 | $9.21 | | |
| SWHIDPRMT | P & R S Whidbey GEN | 0.2053334452 | $662,691 | $662,691 | $136.07 | | |
| | Total Tax Rate: | 6.6934522006 | | | | | |
| | | | | Taxes w/Current Exemptions: | $4,435.70 | | |
| | | | | Taxes w/o Exemptions: | $4,435.70 | | |
Improvement / Building
| Improvement #1: | RESIDENTIAL | State Code: | Y | 1440.0 sqft | Value: | $282,691 |
| Bathrooms: | 2.5 | Bedrooms: | 2 | | Ceiling: | DRYWALL PAINTED | Exterior Wall/Cover: | PLY/HARDBOARD T-111 | | Floor Covering: | CONCRETE SEALER | Floor Structure: | WOOD W/SUBFLOOR | | Foundation: | CONCRETE | Heating: | RADIANT FLOOR | | Interior Finish: | DRYWALL PAINT | Plumbing Fixture Cnt: | 11 | | Roof Slope: | 3" IN 12" | Roof Structure/Cover: | BEAM ASPHALT |
|
| | Type | Description | Class CD | Sub Class CD | Year Built | Area |
| | BAS | BASE/MAIN FLOOR | 3 | 0 | 2019 | 1440.0 |
| | OWP | OPEN WOOD PORCH W/STEPS | 3 | 0 | 2019 | 288.0 |
| | OWC | OPEN WOOD PORCH W/STEPS/ROOF/C | 3 | 0 | 2019 | 96.0 |
| | OWR | OPEN WOOD PORCH W/STEPS/ROOF | 3 | 0 | 2019 | 140.0 |
Sketch
| No sketches available for this property. |
Property Image
Land
| 1 | 32 | AC (03.01-09.99) | 4.8300 | 210394.80 | 0.00 | 0.00 | 1.00 | $380,000 | $0 |
Roll Value History
| 2026 | N/A | N/A | N/A | N/A | N/A |
| 2025 | $282,691 | $380,000 | $0 | $662,691 | $662,691 |
| 2024 | $284,971 | $350,000 | $0 | $634,971 | $634,971 |
| 2023 | $287,252 | $330,000 | $0 | $617,252 | $617,252 |
| 2022 | $297,734 | $350,000 | $0 | $647,734 | $647,734 |
| 2021 | $228,128 | $250,000 | $0 | $478,128 | $478,128 |
| 2020 | $214,460 | $250,000 | $0 | $464,460 | $464,460 |
| 2019 | $13,147 | $160,000 | $0 | $173,147 | $173,147 |
| 2018 | $0 | $150,000 | $0 | $150,000 | $150,000 |
| 2017 | $0 | $150,000 | $0 | $150,000 | $150,000 |
| 2016 | $0 | $130,000 | $0 | $130,000 | $130,000 |
| 2015 | $0 | $130,000 | $0 | $130,000 | $130,000 |
| 2014 | $0 | $130,000 | $0 | $130,000 | $130,000 |
| 2013 | $0 | $130,000 | $0 | $130,000 | $130,000 |
| 2012 | $0 | $130,000 | $0 | $130,000 | $130,000 |
| 2011 | $0 | $130,000 | $0 | $130,000 | $130,000 |
| 2010 | $0 | $130,000 | $0 | $130,000 | $130,000 |
| 2009 | $0 | $200,000 | $0 | $200,000 | $200,000 |
| 2008 | $0 | $200,000 | $0 | $200,000 | $200,000 |
| 2007 | $0 | $140,000 | $0 | $140,000 | $140,000 |
Deed and Sales History
| 1 | 02/18/2025 | QCD | Quit Claim Deed | JOHNSON, LYDIA | JOHNSON JTWROS, LYDIA | | | $0.00 | 62667 | 4582678 |
| 2 | 03/30/2017 | WD | Warranty Deed | KIRKHAM, DAVID L / KARYL J | JOHNSON, LYDIA | | | $140,000.00 | 28631 | 4419764 |
| 3 | 01/01/1995 | QCD | Quit Claim Deed | KIRKHAM, GERTRUDE K | KIRKHAM, DAVID L | | | $0.00 | 50202 | 95000948 |
| 4 | 12/01/1994 | QCD | Quit Claim Deed | KIRKHAM, GERTRUDE K | KIRKHAM, GERTRUDE K | | | $0.00 | 44988 | 94025399 |
| 5 | 04/01/1992 | OTHER | Other - Misc. Documents | KIRKHAM, GERTRUDE K | KIRKHAM, GERTRUDE K | | | $0.00 | 64826 | 0 |
| 6 | 01/01/1900 | OTHER | Other - Misc. Documents | Unknown | KIRKHAM, GERTRUDE K | | | $0.00 | 4320 | 90014263 |
Payout Agreement
| No payout information available.. |