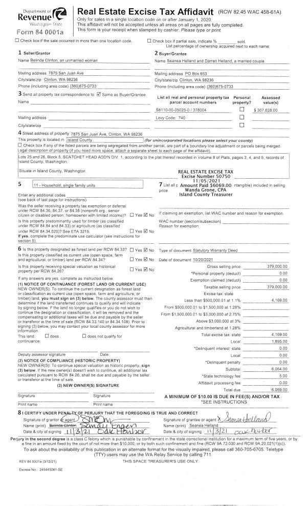
Property
Account |
| Property ID: | 671311 | Abbreviated Legal Description: | SE SW SW TGW & SUB EZ AF#94014335 FR 066-0730 |
| Geographic ID: | R32921-035-1060 | Agent Code: | |
| Type: | Real | | |
| Tax Area: | 712 - APPRAISER-S Whid Schl Dist, outside Langley, improved, greater than 1 acre | Land Use Code | 11 |
| Open Space: | N | DFL | N |
| Historic Property: | N | Remodel Property: | N |
| Multi-Family Redevelopment: | N | | |
| Township: | 29 | Section: | 21 |
| Range: | R3 |
Location |
| Address: | 6389 KIRKHILL RD CLINTON, WA 98236 | Mapsco: | |
| Neighborhood: | Cycle 4 | Map ID: | 795 |
| Neighborhood CD: | 4 |
Owner |
| Name: | TEARNEY, STEVEN LEE | Owner ID: | 254846 |
| Mailing Address: | KELLY ANNE TEARNEY BOX 454 CLINTON, WA 98236 | % Ownership: | 100.0000000000% |
| | | Exemptions: | |
Taxes and Assessment Details
Values
| (+) Improvement Homesite Value: | + | $0 | |
| (+) Improvement Non-Homesite Value: | + | $366,293 | |
| (+) Land Homesite Value: | + | $0 | |
| (+) Land Non-Homesite Value: | + | $400,000 | |
| (+) Curr Use (HS): | + | $0 | $0 |
| (+) Curr Use (NHS): | + | $0 | $0 |
| | | -------------------------- | |
| (=) Market Value: | = | $766,293 | |
| (–) Productivity Loss: | – | $0 | |
| | | -------------------------- | |
| (=) Subtotal: | = | $766,293 | |
| (+) Senior Appraised Value: | + | $0 | |
| (+) Non-Senior Appraised Value: | + | $766,293 | |
| | | -------------------------- | |
| (=) Total Appraised Value: | = | $766,293 | |
| (–) Senior Exemption Loss: | – | $0 | |
| (–) Exemption Loss: | – | $0 | |
| | | -------------------------- | |
| (=) Taxable Value: | = | $766,293 | |
Taxing Jurisdiction
| Owner: | TEARNEY, STEVEN LEE | | |
| % Ownership: | 100.0000000000% | | |
| Total Value: | $766,293 | | |
| Tax Area: | 712 - APPRAISER-S Whid Schl Dist, outside Langley, improved, greater than 1 acre |
| CF | Conservation Futures | 0.0316035091 | $766,293 | $766,293 | $24.22 | | |
| FIRE3 | Fire & Rescue Dist #3 S Whidbey GEN | 1.2004855531 | $766,293 | $766,293 | $919.92 | | |
| HOBOND | Hospital BOND | 0.1910887512 | $766,293 | $766,293 | $146.43 | | |
| HOGEN | Hospital GEN | 0.3902502903 | $766,293 | $766,293 | $299.05 | | |
| CE | County Current Expense | 0.3708482477 | $766,293 | $766,293 | $284.18 | | |
| CR | County Roads | 0.4584763726 | $766,293 | $766,293 | $351.33 | | |
| ISLANDEMS | Hospital GEN (EMS) | 0.5000000000 | $766,293 | $766,293 | $383.15 | | |
| LIB | Library Sno-Isle GEN | 0.3153421757 | $766,293 | $766,293 | $241.64 | | |
| PORTWHID | Port of S Whidbey GEN | 0.1094540357 | $766,293 | $766,293 | $83.87 | | |
| SCH206BOND | School 206 BOND | 0.3161759235 | $766,293 | $766,293 | $242.28 | | |
| SCH206MO | School 206 Enrichment | 0.4547169547 | $766,293 | $766,293 | $348.45 | | |
| ST | State School | 1.3035497053 | $766,293 | $766,293 | $998.90 | | |
| ST2 | State School Part 2 | 0.8169543533 | $766,293 | $766,293 | $626.03 | | |
| SWHIDPRBD | P & R S Whidbey BOND | 0.0152817568 | $766,293 | $766,293 | $11.71 | | |
| SWHIDPRBD2 | P & R S Whidbey BOND2 | 0.0138911264 | $766,293 | $766,293 | $10.64 | | |
| SWHIDPRMT | P & R S Whidbey GEN | 0.2053334452 | $766,293 | $766,293 | $157.35 | | |
| | Total Tax Rate: | 6.6934522006 | | | | | |
| | | | | Taxes w/Current Exemptions: | $5,129.15 | | |
| | | | | Taxes w/o Exemptions: | $5,129.15 | | |
Improvement / Building
| Improvement #1: | RESIDENTIAL | State Code: | Y | 1620.0 sqft | Value: | $366,293 |
| Bathrooms: | 1.5 | Bedrooms: | 2 | | Ceiling: | DRYWALL PAINTED | Exterior Wall/Cover: | PLY/HARDBOARD T-111 | | Floor Covering: | CARPET/VINYL 80-20 | Floor Structure: | SLAB ABOVE GRADE | | Foundation: | SLAB | Heating: | FHA ELECTRIC | | Interior Finish: | DRYWALL PAINT | Plumbing Fixture Cnt: | 8 | | Roof Slope: | 8" IN 12" | Roof Structure/Cover: | CJ ALUMINIUM HEAVY |
|
| | Type | Description | Class CD | Sub Class CD | Year Built | Area |
| | BAS | BASE/MAIN FLOOR | 3 | 0 | 1995 | 1180.0 |
| | OP3 | OPEN PORCH W/ROOF | 3 | 0 | 1995 | 320.0 |
| | UPS | UPPER STORY | 3 | 0 | 1995 | 440.0 |
| | DGR | DETACHED GARAGE | 3 | 0 | 1995 | 1034.0 |
| | CPD | OPEN CARPORT DIRT FLOOR | 3 | 0 | 1995 | 972.0 |
| | ENP | ENCLOSED PORCH | 3 | 0 | 1995 | 271.3 |
| | OWR | OPEN WOOD PORCH W/STEPS/ROOF | 3 | 0 | 1995 | 180.0 |
Sketch
Property Image
Land
| 1 | 35 | AC (10.00-30.99) | 10.0000 | 435600.00 | 0.00 | 0.00 | 1.00 | $400,000 | $0 |
Roll Value History
| 2026 | N/A | N/A | N/A | N/A | N/A |
| 2025 | $366,293 | $400,000 | $0 | $766,293 | $766,293 |
| 2024 | $370,694 | $360,000 | $0 | $730,694 | $730,694 |
| 2023 | $375,093 | $360,000 | $0 | $735,093 | $735,093 |
| 2022 | $343,638 | $350,000 | $0 | $693,638 | $693,638 |
| 2021 | $302,267 | $250,000 | $0 | $552,267 | $552,267 |
| 2020 | $245,145 | $250,000 | $0 | $495,145 | $495,145 |
| 2019 | $180,693 | $300,000 | $0 | $480,693 | $480,693 |
| 2018 | $181,222 | $245,000 | $0 | $426,222 | $426,222 |
| 2017 | $182,282 | $200,000 | $0 | $382,282 | $382,282 |
| 2016 | $184,401 | $200,000 | $0 | $384,401 | $384,401 |
| 2015 | $186,521 | $200,000 | $0 | $386,521 | $386,521 |
| 2014 | $189,432 | $150,000 | $0 | $339,432 | $339,432 |
| 2013 | $191,422 | $150,000 | $0 | $341,422 | $341,422 |
| 2012 | $193,412 | $150,000 | $0 | $343,412 | $343,412 |
| 2011 | $195,402 | $150,000 | $0 | $345,402 | $345,402 |
| 2010 | $202,628 | $150,000 | $0 | $352,628 | $352,628 |
| 2009 | $211,405 | $220,000 | $0 | $431,405 | $431,405 |
| 2008 | $214,922 | $190,000 | $0 | $404,922 | $404,922 |
| 2007 | $218,147 | $190,000 | $0 | $408,147 | $408,147 |
Deed and Sales History
| 1 | 06/14/2011 | QCD | Quit Claim Deed | TEARNEY, STEVEN LEE | TEARNEY, STEVEN LEE | | | $0.00 | 4907 | 4297800 |
| 2 | 04/28/2004 | WD | Warranty Deed | SLATTUM, DOUGLAS W | TEARNEY, STEVEN LEE | | | $396,000.00 | 41802 | 4099111 |
| 3 | 08/01/1994 | WD | Warranty Deed | KIRKHAM, GERTRUDE K | SLATTUM, DOUGLAS W | | | $81,500.00 | 43250 | 94017503 |
| 4 | 04/01/1992 | OTHER | Other - Misc. Documents | KIRKHAM, GERTRUDE K | KIRKHAM, GERTRUDE K | | | $0.00 | 64826 | 0 |
| 5 | 01/01/1900 | OTHER | Other - Misc. Documents | Unknown | KIRKHAM, GERTRUDE K | | | $0.00 | 4320 | 90014263 |
Payout Agreement
| No payout information available.. |