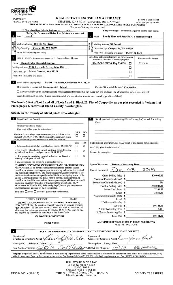
Property
Account |
| Property ID: | 67206 | Abbreviated Legal Description: | 42 - IN GL1: BG SWCR SEC 27 N89*E1317.41' TP ON NLN CO RD TPB ALG NLN RD CUR/L 83 .68' N23*E452.09' TO ML ALG ML S60*E100' TO NWCR GORDON TR AF#96368 S25*W443.49 TPB INCL ADJ TIDES TGW ELY 10' OF FOLL DESC: BG SWCR SEC 27 N89*E1317.41' TP ON NLN CO RD AL |
| Geographic ID: | R23027-025-1380 | Agent Code: | |
| Type: | Real | | |
| Tax Area: | 312 - APPRAISER-Cpvl Schl Dist, outside Cpvl, improved, greater than 1 acre | Land Use Code | 11 |
| Open Space: | N | DFL | N |
| Historic Property: | N | Remodel Property: | N |
| Multi-Family Redevelopment: | N | | |
| Township: | 30 | Section: | 27 |
| Range: | R2 |
Location |
| Address: | 4423 HONEYMOON BAY RD GREENBANK, WA 98253 | Mapsco: | |
| Neighborhood: | Cycle 3 | Map ID: | 419 |
| Neighborhood CD: | 3 |
Owner |
| Name: | DONOHOE, MICHAEL | Owner ID: | 189322 |
| Mailing Address: | CATHERINE DONOHOE 4423 HONEYMOON BAY RD GREENBANK, WA 98253-6322 | % Ownership: | 100.0000000000% |
| | | Exemptions: | |
Taxes and Assessment Details
Values
| (+) Improvement Homesite Value: | + | $0 | |
| (+) Improvement Non-Homesite Value: | + | $143,502 | |
| (+) Land Homesite Value: | + | $0 | |
| (+) Land Non-Homesite Value: | + | $701,100 | |
| (+) Curr Use (HS): | + | $0 | $0 |
| (+) Curr Use (NHS): | + | $0 | $0 |
| | | -------------------------- | |
| (=) Market Value: | = | $844,602 | |
| (–) Productivity Loss: | – | $0 | |
| | | -------------------------- | |
| (=) Subtotal: | = | $844,602 | |
| (+) Senior Appraised Value: | + | $0 | |
| (+) Non-Senior Appraised Value: | + | $844,602 | |
| | | -------------------------- | |
| (=) Total Appraised Value: | = | $844,602 | |
| (–) Senior Exemption Loss: | – | $0 | |
| (–) Exemption Loss: | – | $0 | |
| | | -------------------------- | |
| (=) Taxable Value: | = | $844,602 | |
Taxing Jurisdiction
| Owner: | DONOHOE, MICHAEL | | |
| % Ownership: | 100.0000000000% | | |
| Total Value: | $844,602 | | |
| Tax Area: | 312 - APPRAISER-Cpvl Schl Dist, outside Cpvl, improved, greater than 1 acre |
| CF | Conservation Futures | 0.0316035091 | $844,602 | $844,602 | $26.69 | | |
| CEM2 | Cemetery #2 | 0.0095056933 | $844,602 | $844,602 | $8.03 | | |
| FIRE5 | Fire & Rescue Dist #5 C Whidbey GEN | 1.2008080668 | $844,602 | $844,602 | $1,014.20 | | |
| FIRE5BOND | Fire & Rescue Dist #5 C Whidbey BOND | 0.1400090713 | $844,602 | $844,602 | $118.25 | | |
| HOBOND | Hospital BOND | 0.1910887512 | $844,602 | $844,602 | $161.39 | | |
| HOGEN | Hospital GEN | 0.3902502903 | $844,602 | $844,602 | $329.61 | | |
| CE | County Current Expense | 0.3708482477 | $844,602 | $844,602 | $313.22 | | |
| CR | County Roads | 0.4584763726 | $844,602 | $844,602 | $387.23 | | |
| ISLANDEMS | Hospital GEN (EMS) | 0.5000000000 | $844,602 | $844,602 | $422.30 | | |
| LIB | Library Sno-Isle GEN | 0.3153421757 | $844,602 | $844,602 | $266.34 | | |
| LIBCAP | Library Sno-Isle BOND (Cap Fac Imp Area) | 0.0543427938 | $844,602 | $844,602 | $45.90 | | |
| POCOUP | Port of Coupeville GEN | 0.1093371703 | $844,602 | $844,602 | $92.35 | | |
| POCOUPIDD | Port of Coupeville IDD | 0.3409740022 | $844,602 | $844,602 | $287.99 | | |
| COUPSDTECH | School 204 CP (TECH) | 0.7545480007 | $844,602 | $844,602 | $637.29 | | |
| SCH204MO | School 204 Enrichment | 0.6716186034 | $844,602 | $844,602 | $567.25 | | |
| ST | State School | 1.3035497053 | $844,602 | $844,602 | $1,100.98 | | |
| ST2 | State School Part 2 | 0.8169543533 | $844,602 | $844,602 | $690.00 | | |
| | Total Tax Rate: | 7.6592568070 | | | | | |
| | | | | Taxes w/Current Exemptions: | $6,469.02 | | |
| | | | | Taxes w/o Exemptions: | $6,469.02 | | |
Improvement / Building
| Improvement #1: | RESIDENTIAL | State Code: | Y | 2186.0 sqft | Value: | $143,502 |
| Bathrooms: | 2 | Bedrooms: | 2 | | Ceiling: | DRYWALL PAINTED | Exterior Wall/Cover: | PLY/HARDBOARD T-111 | | Floor Covering: | CARPET/VINYL 60-40 | Floor Structure: | WOOD W/SUBFLOOR | | Foundation: | CONCRETE | Heating: | GAS HEATERS | | Interior Finish: | DRYWALL PAINT | Plumbing Fixture Cnt: | 7 | | Roof Slope: | FLAT | Roof Structure/Cover: | CJ ALUMINIUM HEAVY |
|
| | Type | Description | Class CD | Sub Class CD | Year Built | Area |
| | BAS | BASE/MAIN FLOOR | 3 | 0 | 1961 | 1018.0 |
| | OWP | OPEN WOOD PORCH W/STEPS | 3 | 0 | 1961 | 52.0 |
| | OWP | OPEN WOOD PORCH W/STEPS | 3 | 0 | 1961 | 436.0 |
| | DWN | DOWNSTAIRS LIVING AREA | 3 | 0 | 1961 | 1168.0 |
Sketch
Property Image
Land
| 1 | HB | HIGH BLUFF | 1.0400 | 45302.40 | 102.00 | 0.00 | 1.00 | $700,000 | $0 |
| 2 | 55 | TIDES | 0.0000 | 0.00 | 110.00 | 0.00 | 1.00 | $1,100 | $0 |
Roll Value History
| 2026 | N/A | N/A | N/A | N/A | N/A |
| 2025 | $143,502 | $701,100 | $0 | $844,602 | $844,602 |
| 2024 | $146,673 | $651,100 | $0 | $797,773 | $797,773 |
| 2023 | $134,859 | $601,100 | $0 | $735,959 | $735,959 |
| 2022 | $124,696 | $601,100 | $0 | $725,796 | $725,796 |
| 2021 | $110,674 | $401,100 | $0 | $511,774 | $511,774 |
| 2020 | $109,110 | $351,100 | $0 | $460,210 | $460,210 |
| 2019 | $62,158 | $436,100 | $0 | $498,258 | $498,258 |
| 2018 | $62,525 | $351,100 | $0 | $413,625 | $413,625 |
| 2017 | $63,260 | $251,100 | $0 | $314,360 | $314,360 |
| 2016 | $64,731 | $251,100 | $0 | $315,831 | $315,831 |
| 2015 | $66,202 | $251,100 | $0 | $317,302 | $317,302 |
| 2014 | $67,674 | $251,100 | $0 | $318,774 | $318,774 |
| 2013 | $78,407 | $253,370 | $0 | $331,777 | $331,777 |
| 2012 | $79,932 | $253,370 | $0 | $333,302 | $333,302 |
| 2011 | $81,343 | $253,370 | $0 | $334,713 | $334,713 |
| 2010 | $83,859 | $253,370 | $0 | $337,229 | $337,229 |
| 2009 | $88,094 | $399,686 | $0 | $487,780 | $487,780 |
| 2008 | $89,982 | $399,686 | $0 | $489,668 | $489,668 |
| 2007 | $96,437 | $315,668 | $0 | $412,105 | $412,105 |
Deed and Sales History
| 1 | 12/26/2002 | WD | Warranty Deed | TISH, BLAINE A | DONOHUE, MICHAEL | | | $264,000.00 | 25265 | 442670 |
| 2 | 09/01/1995 | WD | Warranty Deed | ROCKWOOD, INVESTMENTS I | TISH, BLAINE A | | | $210,000.00 | 53227 | 95014882 |
| 3 | 03/01/1993 | WD | Warranty Deed | MACINDOE, RONALD J | ROCKWOOD, INVESTMENTS I | | | $149,227.00 | 31083 | 93005585 |
| 4 | 10/01/1989 | OTHER | Other - Misc. Documents | MACINDOE, RONALD J | MACINDOE, RONALD J | | | $0.00 | 63312 | 89011879 |
| 5 | 04/01/1987 | WD | Warranty Deed | SUNNEN, JOE & | MACINDOE, RONALD J | | | $61,000.00 | 71140 | 87005687 |
| 6 | 03/01/1984 | WD | Warranty Deed | ANTIC, NICKOLAS A | SUNNEN, JOE & | | | $33,550.00 | 40542 | 421647 |
| 7 | 08/01/1960 | TRUSTEED | Trustee's Deed | JARVI, JOHN | ANTIC, NICKOLAS A | | | $0.00 | 8805 | 0 |
| 8 | 07/01/1960 | TRUSTEED | Trustee's Deed | POPE, & T | JARVI, JOHN | | | $0.00 | 8804 | 0 |
| 9 | 01/01/1900 | OTHER | Other - Misc. Documents | Unknown | POPE, & T | | | $0.00 | 0 | 0 |
Payout Agreement
| No payout information available.. |