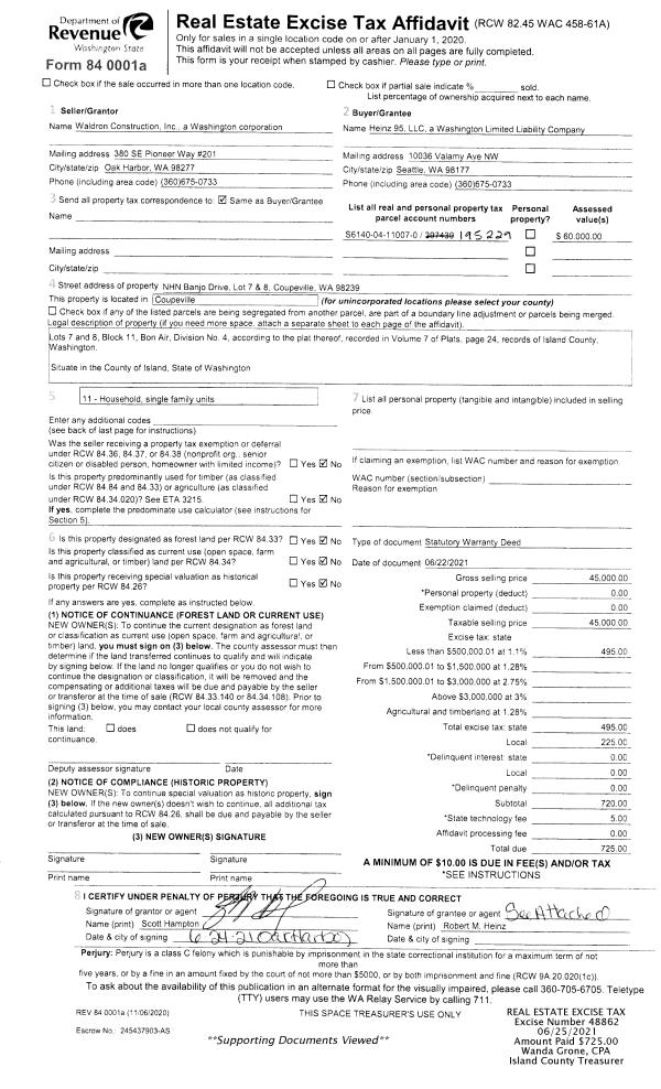
Property
Account |
| Property ID: | 672169 | Abbreviated Legal Description: | IN GL 4: BG SWCR GL 4 N132 .5'TPB N67.5' E TO ML SLY ALG ML TP E OF TPB W TPB INCL ADJ TIDES FR 015-0100 |
| Geographic ID: | R32812-016-0100 | Agent Code: | |
| Type: | Real | | |
| Tax Area: | 710 - APPRAISER-S Whid Schl Dist, outside Langley, improved & 1 acre or less | Land Use Code | 11 |
| Open Space: | N | DFL | N |
| Historic Property: | N | Remodel Property: | N |
| Multi-Family Redevelopment: | N | | |
| Township: | 28 | Section: | 12 |
| Range: | R3 |
Location |
| Address: | 7988 POSSESSION BEACH WALK CLINTON, WA 98236 | Mapsco: | |
| Neighborhood: | Cycle 4 | Map ID: | 705 |
| Neighborhood CD: | 4 |
Owner |
| Name: | GEURKINK, JONATHAN | Owner ID: | 182394 |
| Mailing Address: | KAARINA MERIKAARTO 7988 POSSESSION BEACH WALK CLINTON, WA 98236 | % Ownership: | 100.0000000000% |
| | | Exemptions: | |
Taxes and Assessment Details
Values
| (+) Improvement Homesite Value: | + | $0 | |
| (+) Improvement Non-Homesite Value: | + | $71,667 | |
| (+) Land Homesite Value: | + | $0 | |
| (+) Land Non-Homesite Value: | + | $400,000 | |
| (+) Curr Use (HS): | + | $0 | $0 |
| (+) Curr Use (NHS): | + | $0 | $0 |
| | | -------------------------- | |
| (=) Market Value: | = | $471,667 | |
| (–) Productivity Loss: | – | $0 | |
| | | -------------------------- | |
| (=) Subtotal: | = | $471,667 | |
| (+) Senior Appraised Value: | + | $0 | |
| (+) Non-Senior Appraised Value: | + | $471,667 | |
| | | -------------------------- | |
| (=) Total Appraised Value: | = | $471,667 | |
| (–) Senior Exemption Loss: | – | $0 | |
| (–) Exemption Loss: | – | $0 | |
| | | -------------------------- | |
| (=) Taxable Value: | = | $471,667 | |
Taxing Jurisdiction
| Owner: | GEURKINK, JONATHAN | | |
| % Ownership: | 100.0000000000% | | |
| Total Value: | $471,667 | | |
| Tax Area: | 710 - APPRAISER-S Whid Schl Dist, outside Langley, improved & 1 acre or less |
| CF | Conservation Futures | 0.0316035091 | $471,667 | $471,667 | $14.91 | | |
| FIRE3 | Fire & Rescue Dist #3 S Whidbey GEN | 1.2004855531 | $471,667 | $471,667 | $566.23 | | |
| HOBOND | Hospital BOND | 0.1910887512 | $471,667 | $471,667 | $90.13 | | |
| HOGEN | Hospital GEN | 0.3902502903 | $471,667 | $471,667 | $184.07 | | |
| CE | County Current Expense | 0.3708482477 | $471,667 | $471,667 | $174.92 | | |
| CR | County Roads | 0.4584763726 | $471,667 | $471,667 | $216.25 | | |
| ISLANDEMS | Hospital GEN (EMS) | 0.5000000000 | $471,667 | $471,667 | $235.83 | | |
| LIB | Library Sno-Isle GEN | 0.3153421757 | $471,667 | $471,667 | $148.74 | | |
| PORTWHID | Port of S Whidbey GEN | 0.1094540357 | $471,667 | $471,667 | $51.63 | | |
| SCH206BOND | School 206 BOND | 0.3161759235 | $471,667 | $471,667 | $149.13 | | |
| SCH206MO | School 206 Enrichment | 0.4547169547 | $471,667 | $471,667 | $214.47 | | |
| ST | State School | 1.3035497053 | $471,667 | $471,667 | $614.84 | | |
| ST2 | State School Part 2 | 0.8169543533 | $471,667 | $471,667 | $385.33 | | |
| SWHIDPRBD | P & R S Whidbey BOND | 0.0152817568 | $471,667 | $471,667 | $7.21 | | |
| SWHIDPRBD2 | P & R S Whidbey BOND2 | 0.0138911264 | $471,667 | $471,667 | $6.55 | | |
| SWHIDPRMT | P & R S Whidbey GEN | 0.2053334452 | $471,667 | $471,667 | $96.85 | | |
| | Total Tax Rate: | 6.6934522006 | | | | | |
| | | | | Taxes w/Current Exemptions: | $3,157.09 | | |
| | | | | Taxes w/o Exemptions: | $3,157.09 | | |
Improvement / Building
| Improvement #1: | RESIDENTIAL | State Code: | Y | 770.4 sqft | Value: | $71,667 |
| Bathrooms: | 1 | Bedrooms: | 2 | | Ceiling: | DRYWALL PAINTED | Exterior Wall/Cover: | WOOD SIDING | | Floor Covering: | SOFTWOOD 100% | Floor Structure: | WOOD W/SUBFLOOR | | Foundation: | PEIRS | Interior Finish: | DRYWALL PAINT | | Plumbing Fixture Cnt: | 3 | Roof Slope: | 6" IN 12" | | Roof Structure/Cover: | CJ WOOD SHAKES |   |   |
|
| | Type | Description | Class CD | Sub Class CD | Year Built | Area |
| | BAS | BASE/MAIN FLOOR | 2 | 0 | 1927 | 434.4 |
| | OWP | OPEN WOOD PORCH W/STEPS | 2 | 0 | 1927 | 96.0 |
| | OWR | OPEN WOOD PORCH W/STEPS/ROOF | 2 | 0 | 1927 | 144.0 |
| | UPH | HALF STORY | 2 | 0 | 1927 | 336.0 |
| | UTY | STORAGE/UTILITY | 2 | 0 | 1927 | 200.6 |
| | ATU | ATTIC UNFINISHED | 2 | 0 | 1927 | 200.0 |
| | ATU | ATTIC UNFINISHED | 2 | 0 | 1927 | 80.0 |
Sketch
| No sketches available for this property. |
Property Image
Land
| 1 | LB | LOW BANK | 0.4300 | 18730.80 | 68.00 | 0.00 | 1.00 | $400,000 | $0 |
Roll Value History
| 2026 | N/A | N/A | N/A | N/A | N/A |
| 2025 | $71,667 | $400,000 | $0 | $471,667 | $471,667 |
| 2024 | $72,964 | $350,000 | $0 | $422,964 | $422,964 |
| 2023 | $74,261 | $300,000 | $0 | $374,261 | $374,261 |
| 2022 | $68,419 | $300,000 | $0 | $368,419 | $368,419 |
| 2021 | $60,520 | $275,000 | $0 | $335,520 | $335,520 |
| 2020 | $58,397 | $275,000 | $0 | $333,397 | $333,397 |
| 2019 | $42,754 | $300,000 | $0 | $342,754 | $342,754 |
| 2018 | $42,929 | $250,000 | $0 | $292,929 | $292,929 |
| 2017 | $43,277 | $230,000 | $0 | $273,277 | $273,277 |
| 2016 | $43,976 | $250,000 | $0 | $293,976 | $293,976 |
| 2015 | $44,674 | $250,000 | $0 | $294,674 | $294,674 |
| 2014 | $19,749 | $250,000 | $0 | $269,749 | $269,749 |
| 2013 | $19,749 | $280,826 | $0 | $300,575 | $300,575 |
| 2012 | $19,749 | $280,826 | $0 | $300,575 | $300,575 |
| 2011 | $19,749 | $280,826 | $0 | $300,575 | $300,575 |
| 2010 | $20,262 | $280,826 | $0 | $301,088 | $301,088 |
| 2009 | $20,784 | $280,826 | $0 | $301,610 | $301,610 |
| 2008 | $19,144 | $280,826 | $0 | $299,970 | $299,970 |
| 2007 | $19,144 | $280,826 | $0 | $299,970 | $299,970 |
Deed and Sales History
| 1 | 11/24/1999 | WD | Warranty Deed | TAUSCHER, KENNETH | GEURKINK, JONATHAN | | | $145,000.00 | 94961 | 99027753 |
| 2 | 05/01/1992 | OTHER | Other - Misc. Documents | TAUSCHER, KATHRYN E | TAUSCHER, KATHRYN E | | | $0.00 | 64836 | 92008351 |
| 3 | 05/01/1992 | QCD | Quit Claim Deed | TAUSCHER, KATHRYN E | TAUSCHER, KENNETH/CATHY G | | | $0.00 | 21759 | 92008353 |
| 4 | 06/01/1991 | OTHER | Other - Misc. Documents | Unknown | TAUSCHER, KATHRYN E | | | $0.00 | 64260 | 0 |
| 5 | 01/01/1900 | OTHER | Other - Misc. Documents | TAUSCHER, KENNETH/CATHY G | TAUSCHER, KENNETH | | | $0.00 | 0 | 0 |
Payout Agreement
| No payout information available.. |