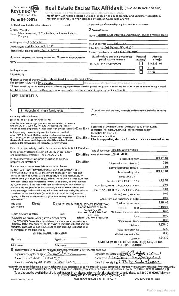
Property
Account |
| Property ID: | 673015 | Abbreviated Legal Description: | PIER POINT CONDO UNIT 1-B 12.50% INT |
| Geographic ID: | S7738-01-00002-0 | Agent Code: | |
| Type: | Real | | |
| Tax Area: | 100 - APPRAISER-OH Schl Dist, in OH | Land Use Code | 14 |
| Open Space: | N | DFL | N |
| Historic Property: | N | Remodel Property: | N |
| Multi-Family Redevelopment: | N | | |
| Township: | | Section: | |
| Range: | |
Location |
| Address: | 1771 SE 10TH AVE D101 OAK HARBOR, WA 98277 | Mapsco: | |
| Neighborhood: | 13*OH-pier point | Map ID: | 82 |
| Neighborhood CD: | 13*OHpierp |
Owner |
| Name: | QUEST IRA FBO LAWRENCE S THOMSON # 1267211 | Owner ID: | 277564 |
| Mailing Address: | 11155 RIVERVIEW WAY HOUSTON, TX 77042 | % Ownership: | 100.0000000000% |
| | | Exemptions: | |
Taxes and Assessment Details
Values
| (+) Improvement Homesite Value: | + | $0 | |
| (+) Improvement Non-Homesite Value: | + | $373,045 | |
| (+) Land Homesite Value: | + | $0 | |
| (+) Land Non-Homesite Value: | + | $100,000 | |
| (+) Curr Use (HS): | + | $0 | $0 |
| (+) Curr Use (NHS): | + | $0 | $0 |
| | | -------------------------- | |
| (=) Market Value: | = | $473,045 | |
| (–) Productivity Loss: | – | $0 | |
| | | -------------------------- | |
| (=) Subtotal: | = | $473,045 | |
| (+) Senior Appraised Value: | + | $0 | |
| (+) Non-Senior Appraised Value: | + | $473,045 | |
| | | -------------------------- | |
| (=) Total Appraised Value: | = | $473,045 | |
| (–) Senior Exemption Loss: | – | $0 | |
| (–) Exemption Loss: | – | $0 | |
| | | -------------------------- | |
| (=) Taxable Value: | = | $473,045 | |
Taxing Jurisdiction
| Owner: | QUEST IRA FBO LAWRENCE S THOMSON # 1267211 | | |
| % Ownership: | 100.0000000000% | | |
| Total Value: | $473,045 | | |
| Tax Area: | 100 - APPRAISER-OH Schl Dist, in OH |
| CF | Conservation Futures | 0.0316035091 | $473,045 | $473,045 | $14.95 | | |
| CEM1 | Cemetery #1 | 0.0040320932 | $473,045 | $473,045 | $1.91 | | |
| COH | City of Oak Harbor | 2.3001546061 | $473,045 | $473,045 | $1,088.08 | | |
| OAKBOND | City of Oak Harbor BOND | 0.1926904192 | $473,045 | $473,045 | $91.15 | | |
| HOBOND | Hospital BOND | 0.1910887512 | $473,045 | $473,045 | $90.39 | | |
| HOGEN | Hospital GEN | 0.3902502903 | $473,045 | $473,045 | $184.61 | | |
| CE | County Current Expense | 0.3708482477 | $473,045 | $473,045 | $175.43 | | |
| ISLANDEMS | Hospital GEN (EMS) | 0.5000000000 | $473,045 | $473,045 | $236.52 | | |
| LIB | Library Sno-Isle GEN | 0.3153421757 | $473,045 | $473,045 | $149.17 | | |
| NWHIDPRMT | P & R N Whidbey GEN | 0.2004466701 | $473,045 | $473,045 | $94.82 | | |
| SCH201MO | School 201 Enrichment | 1.8559231640 | $473,045 | $473,045 | $877.94 | | |
| ST | State School | 1.3035497053 | $473,045 | $473,045 | $616.64 | | |
| ST2 | State School Part 2 | 0.8169543533 | $473,045 | $473,045 | $386.46 | | |
| | Total Tax Rate: | 8.4728839852 | | | | | |
| | | | | Taxes w/Current Exemptions: | $4,008.07 | | |
| | | | | Taxes w/o Exemptions: | $4,008.07 | | |
Improvement / Building
| Improvement #1: | RESIDENTIAL | State Code: | B2 | 1604.0 sqft | Value: | $373,045 |
| Bathrooms: | 2 | Bedrooms: | 2 | | Ceiling: | DRYWALL PAINTED | Exterior Wall/Cover: | SHINGLE | | Floor Covering: | CARPET/VINYL 80-20 | Floor Structure: | WOOD W/SUBFLOOR | | Foundation: | CONCRETE | Heating: | FHA GAS | | Interior Finish: | DRYWALL PAINT | Plumbing Fixture Cnt: | 9 | | Roof Slope: | FLAT | Roof Structure/Cover: | BEAM BUILT-UP ROCK |
|
| | Type | Description | Class CD | Sub Class CD | Year Built | Area |
| | BAS | BASE/MAIN FLOOR | 4 | 0 | 1992 | 1604.0 |
| | BGR | BASEMENT GARAGE | 4 | 0 | 1992 | 786.0 |
| | OWP | OPEN WOOD PORCH W/STEPS | 4 | 0 | 1992 | 84.0 |
| | OP4 | OPEN PORCH W/CEILING-ROOF | 4 | 0 | 1992 | 57.6 |
| | oOP1 | CON SLAB | 4 | 0 | 1992 | 0.0 |
Sketch
Property Image
Land
| 1 | 61 | MULTIPLE RESIDENCES | 0.0000 | 3328.00 | 0.00 | 0.00 | 1.00 | $100,000 | $0 |
Roll Value History
| 2026 | N/A | N/A | N/A | N/A | N/A |
| 2025 | $373,045 | $100,000 | $0 | $473,045 | $473,045 |
| 2024 | $377,617 | $100,000 | $0 | $477,617 | $477,617 |
| 2023 | $373,045 | $100,000 | $0 | $473,045 | $473,045 |
| 2022 | $342,081 | $100,000 | $0 | $442,081 | $442,081 |
| 2021 | $301,271 | $85,000 | $0 | $386,271 | $386,271 |
| 2020 | $293,618 | $80,000 | $0 | $373,618 | $373,618 |
| 2019 | $218,089 | $140,000 | $0 | $358,089 | $358,089 |
| 2018 | $218,724 | $65,000 | $0 | $283,724 | $283,724 |
| 2017 | $212,787 | $51,584 | $0 | $264,371 | $264,371 |
| 2016 | $215,586 | $51,584 | $0 | $267,170 | $267,170 |
| 2015 | $218,386 | $51,584 | $0 | $269,970 | $269,970 |
| 2014 | $221,186 | $51,584 | $0 | $272,770 | $272,770 |
| 2013 | $223,986 | $51,584 | $0 | $275,570 | $275,570 |
| 2012 | $229,586 | $51,584 | $0 | $281,170 | $281,170 |
| 2011 | $229,586 | $51,584 | $0 | $281,170 | $281,170 |
| 2010 | $230,909 | $57,009 | $0 | $287,918 | $287,918 |
| 2009 | $240,802 | $83,200 | $0 | $324,002 | $324,002 |
| 2008 | $243,644 | $83,200 | $0 | $326,844 | $326,844 |
| 2007 | $246,556 | $83,200 | $0 | $329,756 | $329,756 |
Deed and Sales History
| 1 | 11/16/2016 | WD | Warranty Deed | ROYCE JR, JOHN C | QUEST IRA FBO LAWRENCE S THOMSON # 1267211 | | | $295,000.00 | 26987 | 4411716 |
| 2 | 12/18/2009 | WD | Warranty Deed | ROLLAG, PHYLLIS E | ROYCE JR, JOHN C | | | $240,000.00 | 93165 | 4265931 |
| 3 | 07/01/1995 | WD | Warranty Deed | ELLIS, JEFFERY B | ROLLAG, PHYLLIS E | | | $165,000.00 | 52535 | 95011736 |
| 4 | 03/01/1994 | WD | Warranty Deed | MOTT, DONNA L | PIER, POINTE L | | | $31,250.00 | 40924 | 94006106 |
| 5 | 03/01/1994 | WD | Warranty Deed | PIER, POINTE L | ELLIS, JEFFERY B | | | $173,000.00 | 40925 | 94006107 |
| 6 | 01/01/1900 | OTHER | Other - Misc. Documents | Unknown | MOTT, DONNA L | | | $0.00 | 82911 | 88010865 |
Payout Agreement
| No payout information available.. |