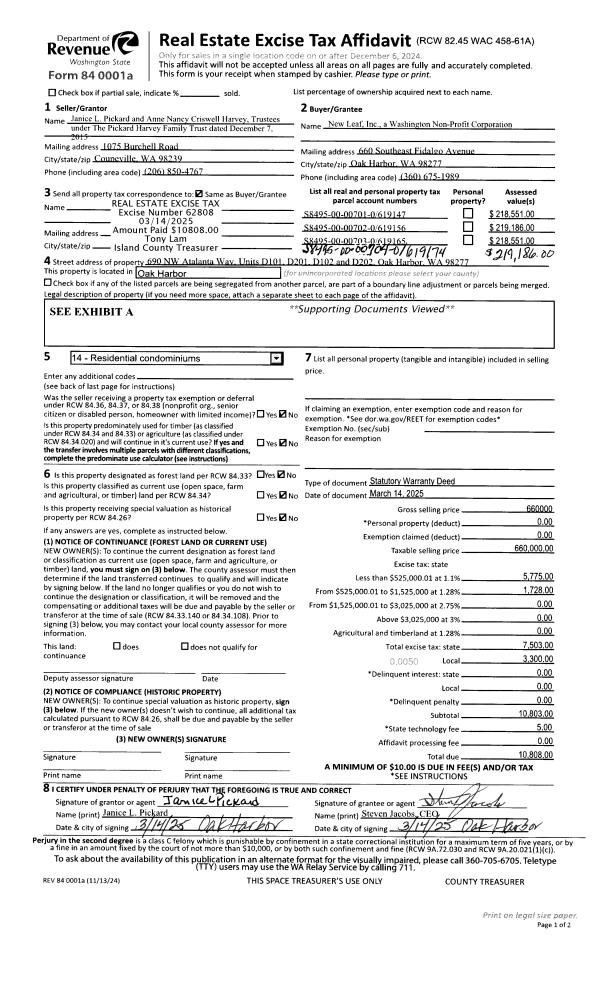
Property
Account |
| Property ID: | 673275 | Abbreviated Legal Description: | IN KINETH DC: BG INTER ELN LONG PT MANOR & PENN COVE ML N80*E ALG SD ML 743.54' S72*E102.07'TPB S0*W1843' M/L TO NELY R/W LN PARKER RD SELY TO ELN SD DLC N ALG SD ELN TO ML OF PENN COVE NWLY ALG SD ML TPB EX PT LY WLY & NLY OF RHODENA DR ALSO EX PARKER R |
| Geographic ID: | R13236-212-0600 | Agent Code: | |
| Type: | Real | | |
| Tax Area: | 319 - APPRAISER-Cpvl Schl Dist, outside Cpvl, vacant & 50 acres or less | Land Use Code | 91 |
| Open Space: | N | DFL | N |
| Historic Property: | N | Remodel Property: | N |
| Multi-Family Redevelopment: | N | | |
| Township: | 32 | Section: | 36 |
| Range: | R1 |
Location |
| Address: | | Mapsco: | |
| Neighborhood: | Cycle 2 | Map ID: | 185 |
| Neighborhood CD: | 2 |
Owner |
| Name: | ARNOLD, STEVEN E | Owner ID: | 113162 |
| Mailing Address: | JAMES A ARNOLD 4105 WESLIN AVE SHERMAN OAKS, CA 91423-4660 | % Ownership: | 100.0000000000% |
| | | Exemptions: | |
Taxes and Assessment Details
Values
| (+) Improvement Homesite Value: | + | $0 | |
| (+) Improvement Non-Homesite Value: | + | $0 | |
| (+) Land Homesite Value: | + | $0 | |
| (+) Land Non-Homesite Value: | + | $140,000 | |
| (+) Curr Use (HS): | + | $0 | $0 |
| (+) Curr Use (NHS): | + | $0 | $0 |
| | | -------------------------- | |
| (=) Market Value: | = | $140,000 | |
| (–) Productivity Loss: | – | $0 | |
| | | -------------------------- | |
| (=) Subtotal: | = | $140,000 | |
| (+) Senior Appraised Value: | + | $0 | |
| (+) Non-Senior Appraised Value: | + | $140,000 | |
| | | -------------------------- | |
| (=) Total Appraised Value: | = | $140,000 | |
| (–) Senior Exemption Loss: | – | $0 | |
| (–) Exemption Loss: | – | $0 | |
| | | -------------------------- | |
| (=) Taxable Value: | = | $140,000 | |
Taxing Jurisdiction
| Owner: | ARNOLD, STEVEN E | | |
| % Ownership: | 100.0000000000% | | |
| Total Value: | $140,000 | | |
| Tax Area: | 319 - APPRAISER-Cpvl Schl Dist, outside Cpvl, vacant & 50 acres or less |
| CF | Conservation Futures | 0.0316035091 | $140,000 | $140,000 | $4.42 | | |
| CEM2 | Cemetery #2 | 0.0095056933 | $140,000 | $140,000 | $1.33 | | |
| HOBOND | Hospital BOND | 0.1910887512 | $140,000 | $140,000 | $26.75 | | |
| HOGEN | Hospital GEN | 0.3902502903 | $140,000 | $140,000 | $54.64 | | |
| CE | County Current Expense | 0.3708482477 | $140,000 | $140,000 | $51.92 | | |
| CR | County Roads | 0.4584763726 | $140,000 | $140,000 | $64.19 | | |
| ISLANDEMS | Hospital GEN (EMS) | 0.5000000000 | $140,000 | $140,000 | $70.00 | | |
| LIB | Library Sno-Isle GEN | 0.3153421757 | $140,000 | $140,000 | $44.15 | | |
| LIBCAP | Library Sno-Isle BOND (Cap Fac Imp Area) | 0.0543427938 | $140,000 | $140,000 | $7.61 | | |
| POCOUP | Port of Coupeville GEN | 0.1093371703 | $140,000 | $140,000 | $15.31 | | |
| POCOUPIDD | Port of Coupeville IDD | 0.3409740022 | $140,000 | $140,000 | $47.74 | | |
| COUPSDTECH | School 204 CP (TECH) | 0.7545480007 | $140,000 | $140,000 | $105.64 | | |
| SCH204MO | School 204 Enrichment | 0.6716186034 | $140,000 | $140,000 | $94.03 | | |
| ST | State School | 1.3035497053 | $140,000 | $140,000 | $182.50 | | |
| ST2 | State School Part 2 | 0.8169543533 | $140,000 | $140,000 | $114.37 | | |
| | Total Tax Rate: | 6.3184396689 | | | | | |
| | | | | Taxes w/Current Exemptions: | $884.60 | | |
| | | | | Taxes w/o Exemptions: | $884.60 | | |
Improvement / Building
Sketch
| No sketches available for this property. |
Property Image
Land
| 1 | 91 | UNDEVELOPED LAND-METES AND BOUNDS | 4.0000 | 0.00 | 0.00 | 0.00 | 1.00 | $140,000 | $0 |
Roll Value History
| 2026 | N/A | N/A | N/A | N/A | N/A |
| 2025 | $0 | $140,000 | $0 | $140,000 | $140,000 |
| 2024 | $0 | $150,000 | $0 | $150,000 | $150,000 |
| 2023 | $0 | $140,000 | $0 | $140,000 | $140,000 |
| 2022 | $0 | $130,000 | $0 | $130,000 | $130,000 |
| 2021 | $0 | $130,000 | $0 | $130,000 | $130,000 |
| 2020 | $0 | $120,000 | $0 | $120,000 | $120,000 |
| 2019 | $0 | $100,000 | $0 | $100,000 | $100,000 |
| 2018 | $0 | $100,000 | $0 | $100,000 | $100,000 |
| 2017 | $0 | $85,000 | $0 | $85,000 | $85,000 |
| 2016 | $0 | $85,000 | $0 | $85,000 | $85,000 |
| 2015 | $0 | $80,000 | $0 | $80,000 | $80,000 |
| 2014 | $0 | $80,000 | $0 | $80,000 | $80,000 |
| 2013 | $0 | $80,000 | $0 | $80,000 | $80,000 |
| 2012 | $0 | $80,000 | $0 | $80,000 | $80,000 |
| 2011 | $0 | $80,000 | $0 | $80,000 | $80,000 |
| 2010 | $0 | $80,000 | $0 | $80,000 | $80,000 |
| 2009 | $0 | $98,000 | $0 | $98,000 | $98,000 |
| 2008 | $0 | $104,000 | $0 | $104,000 | $104,000 |
| 2007 | $0 | $92,000 | $0 | $92,000 | $92,000 |
Deed and Sales History
| 1 | 08/13/2003 | WD | Warranty Deed | REED, JILL R | ARJOLD, STEVEN E | | | $72,500.00 | 33631 | 4071653 |
| 2 | 03/26/1998 | QCD | Quit Claim Deed | REED, JILL R | REED, JILL R | | | $5,000.00 | 81322 | 98007424 |
| 3 | 03/01/1998 | TRUSTEED | Trustee's Deed | NEWLIN, ALICE G | REED, JILL R | | | $0.00 | 81017 | 98005682 |
| 4 | 01/01/1992 | TRUSTEED | Trustee's Deed | NEWLIN, ALICE G | NEWLIN, ALICE G | | | $0.00 | 21956 | 92009339 |
| 5 | 01/01/1900 | OTHER | Other - Misc. Documents | Unknown | NEWLIN, ALICE G | | | $0.00 | 32598 | 414945 |
| 6 | 01/01/1900 | OTHER | Other - Misc. Documents | REED, JILL R | REED, JILL R | | | $0.00 | 81322 | 98007424 |
Payout Agreement
| No payout information available.. |