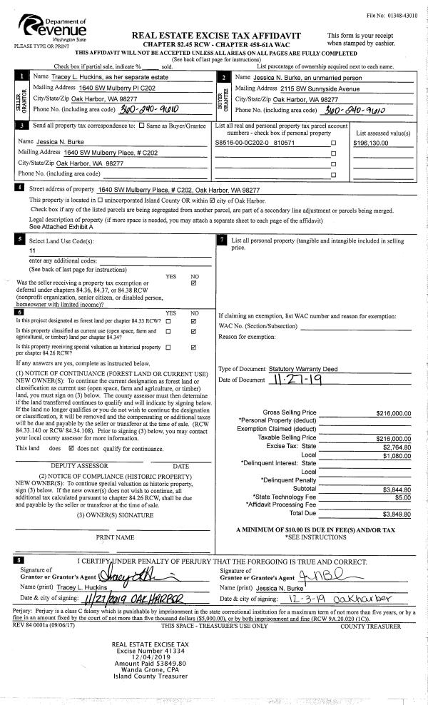
Property
Account |
| Property ID: | 673471 | Abbreviated Legal Description: | TRACT 1 SP 32-89.23027.505-0700 V2 SP P355 AF#92009506 INCL ADJ TIDES EXT EZ AF#93002073 |
| Geographic ID: | R23027-511-0590 | Agent Code: | |
| Type: | Real | | |
| Tax Area: | 312 - APPRAISER-Cpvl Schl Dist, outside Cpvl, improved, greater than 1 acre | Land Use Code | 11 |
| Open Space: | N | DFL | N |
| Historic Property: | N | Remodel Property: | N |
| Multi-Family Redevelopment: | N | | |
| Township: | 30 | Section: | 27 |
| Range: | R2 |
Location |
| Address: | 1277 VIA TOSCANA LN GREENBANK, WA 98253 | Mapsco: | |
| Neighborhood: | Cycle 3 | Map ID: | 420 |
| Neighborhood CD: | 3 |
Owner |
| Name: | THE JARRIS FAMILY LLC | Owner ID: | 307295 |
| Mailing Address: | 6830 NE BOTHELL HWY, SUITE C456 KENMORE, WA 98028 | % Ownership: | 100.0000000000% |
| | | Exemptions: | |
Taxes and Assessment Details
Values
| (+) Improvement Homesite Value: | + | $0 | |
| (+) Improvement Non-Homesite Value: | + | $739,523 | |
| (+) Land Homesite Value: | + | $0 | |
| (+) Land Non-Homesite Value: | + | $877,300 | |
| (+) Curr Use (HS): | + | $0 | $0 |
| (+) Curr Use (NHS): | + | $0 | $0 |
| | | -------------------------- | |
| (=) Market Value: | = | $1,616,823 | |
| (–) Productivity Loss: | – | $0 | |
| | | -------------------------- | |
| (=) Subtotal: | = | $1,616,823 | |
| (+) Senior Appraised Value: | + | $0 | |
| (+) Non-Senior Appraised Value: | + | $1,616,823 | |
| | | -------------------------- | |
| (=) Total Appraised Value: | = | $1,616,823 | |
| (–) Senior Exemption Loss: | – | $0 | |
| (–) Exemption Loss: | – | $0 | |
| | | -------------------------- | |
| (=) Taxable Value: | = | $1,616,823 | |
Taxing Jurisdiction
| Owner: | THE JARRIS FAMILY LLC | | |
| % Ownership: | 100.0000000000% | | |
| Total Value: | $1,616,823 | | |
| Tax Area: | 312 - APPRAISER-Cpvl Schl Dist, outside Cpvl, improved, greater than 1 acre |
| CF | Conservation Futures | 0.0316035091 | $1,616,823 | $1,616,823 | $51.10 | | |
| CEM2 | Cemetery #2 | 0.0095056933 | $1,616,823 | $1,616,823 | $15.37 | | |
| FIRE5 | Fire & Rescue Dist #5 C Whidbey GEN | 1.2008080668 | $1,616,823 | $1,616,823 | $1,941.49 | | |
| FIRE5BOND | Fire & Rescue Dist #5 C Whidbey BOND | 0.1400090713 | $1,616,823 | $1,616,823 | $226.37 | | |
| HOBOND | Hospital BOND | 0.1910887512 | $1,616,823 | $1,616,823 | $308.96 | | |
| HOGEN | Hospital GEN | 0.3902502903 | $1,616,823 | $1,616,823 | $630.97 | | |
| CE | County Current Expense | 0.3708482477 | $1,616,823 | $1,616,823 | $599.60 | | |
| CR | County Roads | 0.4584763726 | $1,616,823 | $1,616,823 | $741.28 | | |
| ISLANDEMS | Hospital GEN (EMS) | 0.5000000000 | $1,616,823 | $1,616,823 | $808.41 | | |
| LIB | Library Sno-Isle GEN | 0.3153421757 | $1,616,823 | $1,616,823 | $509.85 | | |
| LIBCAP | Library Sno-Isle BOND (Cap Fac Imp Area) | 0.0543427938 | $1,616,823 | $1,616,823 | $87.86 | | |
| POCOUP | Port of Coupeville GEN | 0.1093371703 | $1,616,823 | $1,616,823 | $176.78 | | |
| POCOUPIDD | Port of Coupeville IDD | 0.3409740022 | $1,616,823 | $1,616,823 | $551.29 | | |
| COUPSDTECH | School 204 CP (TECH) | 0.7545480007 | $1,616,823 | $1,616,823 | $1,219.97 | | |
| SCH204MO | School 204 Enrichment | 0.6716186034 | $1,616,823 | $1,616,823 | $1,085.89 | | |
| ST | State School | 1.3035497053 | $1,616,823 | $1,616,823 | $2,107.61 | | |
| ST2 | State School Part 2 | 0.8169543533 | $1,616,823 | $1,616,823 | $1,320.87 | | |
| | Total Tax Rate: | 7.6592568070 | | | | | |
| | | | | Taxes w/Current Exemptions: | $12,383.67 | | |
| | | | | Taxes w/o Exemptions: | $12,383.67 | | |
Improvement / Building
| Improvement #1: | RESIDENTIAL | State Code: | Y | 5819.9 sqft | Value: | $739,523 |
| Bathrooms: | 2 | Bedrooms: | 2 | | Ceiling: | TONGUE & GROOVE | Exterior Wall/Cover: | SHINGLE | | Floor Covering: | CERAMIC TILE/HWD 40/60 | Floor Structure: | WOOD W/SUBFLOOR | | Foundation: | CONCRETE | Heating: | WALL HEAT ELECTRIC | | Interior Finish: | DRYWALL PAINT | Plumbing Fixture Cnt: | 12 | | Roof Slope: | 6" IN 12" | Roof Structure/Cover: | BEAM ALUMINUM HEAVY |
|
| | Type | Description | Class CD | Sub Class CD | Year Built | Area |
| | BAS | BASE/MAIN FLOOR | 5 | 0 | 1928 | 2586.9 |
| | OP4 | OPEN PORCH W/CEILING-ROOF | 5 | 0 | 1928 | 110.3 |
| | UPS | UPPER STORY | 5 | 0 | 1928 | 553.0 |
| | BAW | BALCONY WOOD RAIL | 5 | 0 | 1928 | 36.0 |
| | OWP | OPEN WOOD PORCH W/STEPS | 5 | 0 | 1928 | 829.0 |
| | LOF | LOFT | 5 | 0 | 1928 | 2136.0 |
| | AGR | ATTACHED GARAGE | 5 | 0 | 1928 | 480.0 |
| | DWN | DOWNSTAIRS LIVING AREA | 5 | 0 | 1928 | 384.0 |
| | DWN | DOWNSTAIRS LIVING AREA | 5 | 0 | 1928 | 160.0 |
| | OP4 | OPEN PORCH W/CEILING-ROOF | 5 | 0 | 1928 | 48.0 |
Sketch
Property Image
Land
| 1 | HB | HIGH BLUFF | 8.7900 | 382892.40 | 252.00 | 0.00 | 1.00 | $875,000 | $0 |
| 2 | 55 | TIDES | 0.0000 | 0.00 | 230.00 | 0.00 | 1.00 | $2,300 | $0 |
Roll Value History
| 2026 | N/A | N/A | N/A | N/A | N/A |
| 2025 | $739,523 | $877,300 | $0 | $1,616,823 | $1,616,823 |
| 2024 | $749,096 | $827,300 | $0 | $1,576,396 | $1,576,396 |
| 2023 | $758,668 | $802,300 | $0 | $1,560,968 | $1,560,968 |
| 2022 | $695,636 | $802,300 | $0 | $1,497,936 | $1,497,936 |
| 2021 | $612,430 | $702,300 | $0 | $1,314,730 | $1,314,730 |
| 2020 | $599,834 | $702,300 | $0 | $1,302,134 | $1,302,134 |
| 2019 | $451,062 | $802,300 | $0 | $1,253,362 | $1,253,362 |
| 2018 | $452,664 | $652,300 | $0 | $1,104,964 | $1,104,964 |
| 2017 | $455,880 | $652,300 | $0 | $1,108,180 | $1,108,180 |
| 2016 | $540,177 | $652,300 | $0 | $1,192,477 | $1,192,477 |
| 2015 | $287,037 | $652,300 | $0 | $939,337 | $939,337 |
| 2014 | $294,455 | $652,300 | $0 | $946,755 | $946,755 |
| 2013 | $237,778 | $639,546 | $0 | $877,324 | $877,324 |
| 2012 | $240,822 | $639,546 | $0 | $880,368 | $880,368 |
| 2011 | $245,335 | $639,546 | $0 | $884,881 | $884,881 |
| 2010 | $253,517 | $639,546 | $0 | $893,063 | $893,063 |
| 2009 | $260,773 | $851,963 | $0 | $1,112,736 | $1,112,736 |
| 2008 | $347,946 | $851,963 | $0 | $1,199,909 | $1,199,909 |
| 2007 | $347,943 | $672,891 | $0 | $1,020,834 | $1,020,834 |
Deed and Sales History
| 1 | 01/06/2023 | QCD | Quit Claim Deed | JARRIS TTEE, ANN ELIZABETH | THE JARRIS FAMILY LLC | | | $0.00 | 55625 | 4555732 |
| 2 | 11/27/2020 | QCD | Quit Claim Deed | JARRIS JR, RAYMOND F | JARRIS TTEE, ANN ELIZABETH | | | $0.00 | 46365 | 4506679 |
| 3 | 11/10/2011 | QCD | Quit Claim Deed | JARRIS JR, RAYMOND F | JARRIS JR, RAYMOND F | | | $0.00 | 6700 | 4308719 |
| 4 | 12/06/2007 | QCD | Quit Claim Deed | JARRIS, RAYMOND F | JARRIS JR, RAYMOND F | | | $0.00 | 73985 | 4217832 |
| 5 | 03/01/1995 | WD | Warranty Deed | RUSNAK, RONALD A | JARRIS, RAYMOND F | | | $524,500.00 | 51172 | 95005476 |
| 6 | 01/01/1900 | OTHER | Other - Misc. Documents | Unknown | RUSNAK, RONALD A | | | $0.00 | 83429 | 88012829 |
Payout Agreement
| No payout information available.. |