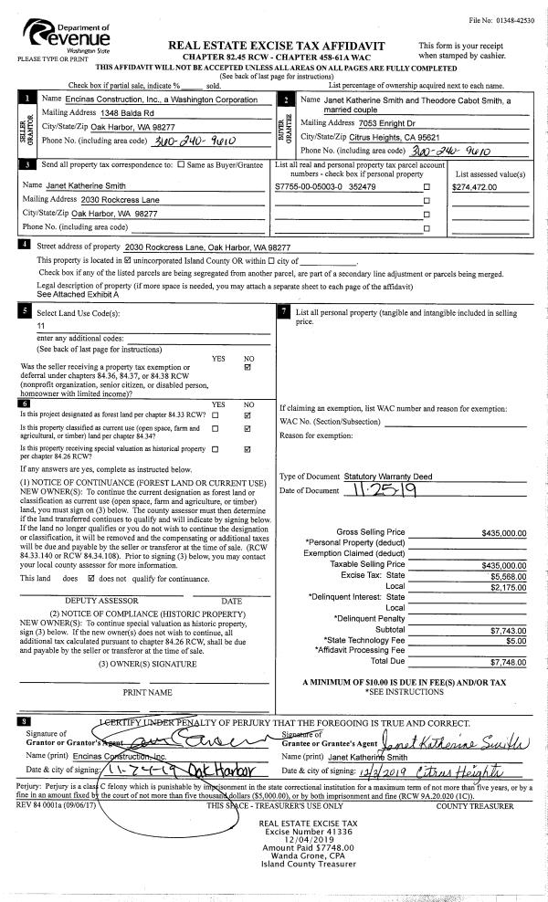
Property
Account |
| Property ID: | 673480 | Abbreviated Legal Description: | TRACT 2 SP 32-89.23027.505-0700 V2 SP P355 AF#92009506 INCL ADJ TIDES EXT EZ AF#93002073 |
| Geographic ID: | R23027-496-0990 | Agent Code: | |
| Type: | Real | | |
| Tax Area: | 312 - APPRAISER-Cpvl Schl Dist, outside Cpvl, improved, greater than 1 acre | Land Use Code | 11 |
| Open Space: | N | DFL | N |
| Historic Property: | N | Remodel Property: | N |
| Multi-Family Redevelopment: | N | | |
| Township: | 30 | Section: | 27 |
| Range: | R2 |
Location |
| Address: | 1281 VIA TOSCANA LN GREENBANK, WA 98253 | Mapsco: | |
| Neighborhood: | Cycle 3 | Map ID: | 420 |
| Neighborhood CD: | 3 |
Owner |
| Name: | CAREW, GARY O | Owner ID: | 83715 |
| Mailing Address: | DIANA S CAREW PO BOX 267 GREENBANK, WA 98253 | % Ownership: | 100.0000000000% |
| | | Exemptions: | |
Taxes and Assessment Details
Values
| (+) Improvement Homesite Value: | + | $0 | |
| (+) Improvement Non-Homesite Value: | + | $594,777 | |
| (+) Land Homesite Value: | + | $0 | |
| (+) Land Non-Homesite Value: | + | $751,040 | |
| (+) Curr Use (HS): | + | $0 | $0 |
| (+) Curr Use (NHS): | + | $0 | $0 |
| | | -------------------------- | |
| (=) Market Value: | = | $1,345,817 | |
| (–) Productivity Loss: | – | $0 | |
| | | -------------------------- | |
| (=) Subtotal: | = | $1,345,817 | |
| (+) Senior Appraised Value: | + | $0 | |
| (+) Non-Senior Appraised Value: | + | $1,345,817 | |
| | | -------------------------- | |
| (=) Total Appraised Value: | = | $1,345,817 | |
| (–) Senior Exemption Loss: | – | $0 | |
| (–) Exemption Loss: | – | $0 | |
| | | -------------------------- | |
| (=) Taxable Value: | = | $1,345,817 | |
Taxing Jurisdiction
| Owner: | CAREW, GARY O | | |
| % Ownership: | 100.0000000000% | | |
| Total Value: | $1,345,817 | | |
| Tax Area: | 312 - APPRAISER-Cpvl Schl Dist, outside Cpvl, improved, greater than 1 acre |
| CF | Conservation Futures | 0.0316035091 | $1,345,817 | $1,345,817 | $42.53 | | |
| CEM2 | Cemetery #2 | 0.0095056933 | $1,345,817 | $1,345,817 | $12.79 | | |
| FIRE5 | Fire & Rescue Dist #5 C Whidbey GEN | 1.2008080668 | $1,345,817 | $1,345,817 | $1,616.07 | | |
| FIRE5BOND | Fire & Rescue Dist #5 C Whidbey BOND | 0.1400090713 | $1,345,817 | $1,345,817 | $188.43 | | |
| HOBOND | Hospital BOND | 0.1910887512 | $1,345,817 | $1,345,817 | $257.17 | | |
| HOGEN | Hospital GEN | 0.3902502903 | $1,345,817 | $1,345,817 | $525.21 | | |
| CE | County Current Expense | 0.3708482477 | $1,345,817 | $1,345,817 | $499.09 | | |
| CR | County Roads | 0.4584763726 | $1,345,817 | $1,345,817 | $617.03 | | |
| ISLANDEMS | Hospital GEN (EMS) | 0.5000000000 | $1,345,817 | $1,345,817 | $672.91 | | |
| LIB | Library Sno-Isle GEN | 0.3153421757 | $1,345,817 | $1,345,817 | $424.39 | | |
| LIBCAP | Library Sno-Isle BOND (Cap Fac Imp Area) | 0.0543427938 | $1,345,817 | $1,345,817 | $73.14 | | |
| POCOUP | Port of Coupeville GEN | 0.1093371703 | $1,345,817 | $1,345,817 | $147.15 | | |
| POCOUPIDD | Port of Coupeville IDD | 0.3409740022 | $1,345,817 | $1,345,817 | $458.89 | | |
| COUPSDTECH | School 204 CP (TECH) | 0.7545480007 | $1,345,817 | $1,345,817 | $1,015.48 | | |
| SCH204MO | School 204 Enrichment | 0.6716186034 | $1,345,817 | $1,345,817 | $903.88 | | |
| ST | State School | 1.3035497053 | $1,345,817 | $1,345,817 | $1,754.34 | | |
| ST2 | State School Part 2 | 0.8169543533 | $1,345,817 | $1,345,817 | $1,099.47 | | |
| | Total Tax Rate: | 7.6592568070 | | | | | |
| | | | | Taxes w/Current Exemptions: | $10,307.97 | | |
| | | | | Taxes w/o Exemptions: | $10,307.97 | | |
Improvement / Building
| Improvement #1: | RESIDENTIAL | State Code: | Y | 2323.0 sqft | Value: | $594,777 |
| Bathrooms: | 2.5 | Bedrooms: | 3 | | Ceiling: | DRYWALL PAINTED | Exterior Wall/Cover: | CEMENT FIBER | | Floor Covering: | HARDWOOD/CARP 80-20 | Floor Structure: | WOOD W/SUBFLOOR | | Foundation: | CONCRETE | Heating: | FHA GAS | | Interior Finish: | DRYWALL PAINT | Plumbing Fixture Cnt: | 14 | | Roof Slope: | 8" IN 12" | Roof Structure/Cover: | CJ ASPHALT |
|
| | Type | Description | Class CD | Sub Class CD | Year Built | Area |
| | BAS | BASE/MAIN FLOOR | 4 | 0 | 2003 | 2025.4 |
| | OP2 | OPEN PORCH W/STEPS | 4 | 0 | 2003 | 12.5 |
| | OP4 | OPEN PORCH W/CEILING-ROOF | 4 | 0 | 2003 | 105.6 |
| | OP4 | OPEN PORCH W/CEILING-ROOF | 4 | 0 | 2003 | 38.4 |
| | OP4 | OPEN PORCH W/CEILING-ROOF | 4 | 0 | 2003 | 259.8 |
| | AGR | ATTACHED GARAGE | 4 | 0 | 2003 | 149.8 |
| | AGR | ATTACHED GARAGE | 4 | 0 | 2003 | 124.1 |
| | BIG | BUILT IN GARAGE | 4 | 0 | 2003 | 297.7 |
| | UPH | HALF STORY | 4 | 0 | 2003 | 297.6 |
| | OWP | OPEN WOOD PORCH W/STEPS | 4 | 0 | 2003 | 415.0 |
Sketch
Property Image
Land
| 1 | HB | HIGH BLUFF | 1.3000 | 56628.00 | 104.00 | 0.00 | 1.00 | $750,000 | $0 |
| 2 | 55 | TIDES | 0.0000 | 0.00 | 104.00 | 0.00 | 1.00 | $1,040 | $0 |
Roll Value History
| 2026 | N/A | N/A | N/A | N/A | N/A |
| 2025 | $594,777 | $751,040 | $0 | $1,345,817 | $1,345,817 |
| 2024 | $601,321 | $701,040 | $0 | $1,302,361 | $1,302,361 |
| 2023 | $557,865 | $626,040 | $0 | $1,183,905 | $1,183,905 |
| 2022 | $511,091 | $626,040 | $0 | $1,137,131 | $1,137,131 |
| 2021 | $449,571 | $401,040 | $0 | $850,611 | $850,611 |
| 2020 | $437,742 | $351,040 | $0 | $788,782 | $788,782 |
| 2019 | $326,905 | $436,040 | $0 | $762,945 | $762,945 |
| 2018 | $327,843 | $351,040 | $0 | $678,883 | $678,883 |
| 2017 | $329,653 | $301,040 | $0 | $630,693 | $630,693 |
| 2016 | $333,400 | $301,040 | $0 | $634,440 | $634,440 |
| 2015 | $337,146 | $301,040 | $0 | $638,186 | $638,186 |
| 2014 | $340,891 | $301,040 | $0 | $641,931 | $641,931 |
| 2013 | $323,997 | $291,000 | $0 | $614,997 | $614,997 |
| 2012 | $327,639 | $291,000 | $0 | $618,639 | $618,639 |
| 2011 | $331,278 | $291,000 | $0 | $622,278 | $622,278 |
| 2010 | $346,676 | $291,000 | $0 | $637,676 | $637,676 |
| 2009 | $420,944 | $407,442 | $0 | $828,386 | $828,386 |
| 2008 | $430,314 | $407,442 | $0 | $837,756 | $837,756 |
| 2007 | $413,997 | $321,833 | $0 | $735,830 | $735,830 |
Deed and Sales History
| 1 | 03/24/2008 | WD | Warranty Deed | HETTICH, MICHAEL | CAREW, GARY O | | | $895,000.00 | 80740 | 4224933 |
| 2 | 05/18/2001 | QCD | Quit Claim Deed | HETTICH, MICHAEL | HETTICH, MICHAEL | | | $0.00 | 12025 | 20033855 |
| 3 | 12/16/1998 | WD | Warranty Deed | YEATON, STEPHEN H | HETTICH, MICHAEL | | | $146,000.00 | 85091 | 98027922 |
| 4 | 10/01/1994 | WD | Warranty Deed | RUSNAK, RONALD A | YEATON, STEPHEN H | | | $135,000.00 | 44316 | 94022214 |
| 5 | 01/01/1900 | OTHER | Other - Misc. Documents | Unknown | RUSNAK, RONALD A | | | $0.00 | 83429 | 88012829 |
Payout Agreement
| No payout information available.. |